
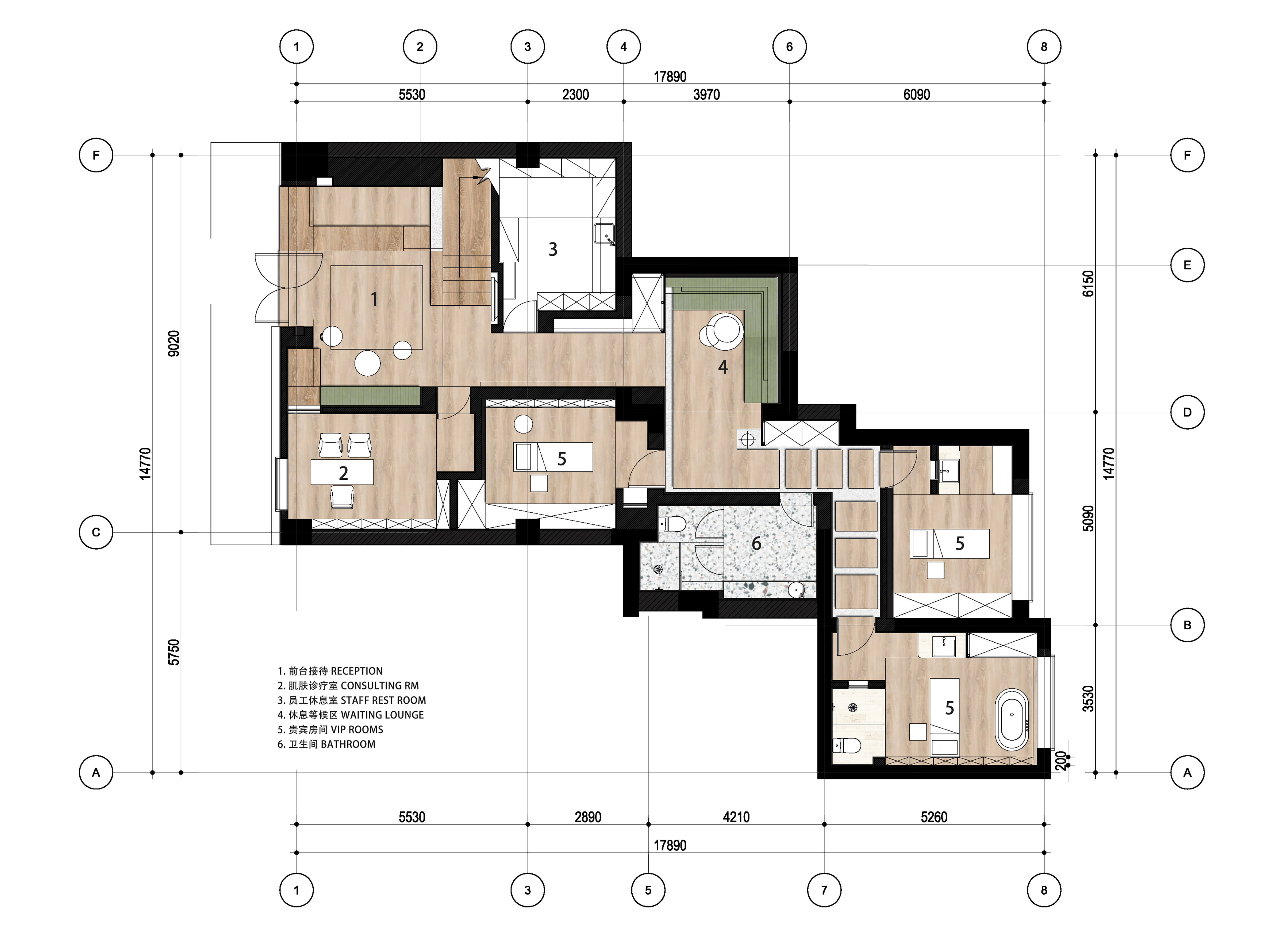
This project is to remodel the existing hair salon into a beauty salon. Creating a quiet, personal, and comfortable environment in a busy street store was the first key question of the project. As a solution to this, a space like a 'cave' was created. This space varies in size and material depending on the degree of privacy required. It was the first to expand the existing middle and double-decker area by utilizing the ceiling height of the building. Passing through here and following the corridor, which is finished with dark wood, you will find a "cave of water" covered with ivory-colored limestone. This is the waiting room, and people stay here for a while before and after using the skin care room. Every space is deliberately broken and stretched along a long stretch of aisles, trying to awaken the memories of the body that may be connected to the intimate experiences of cave dwellings in primitive times. Natural materials such as stone and wood were applied to each space, and through this space and material composition, it was intended to provide calmness to the body and mind.

이 프로젝트는 기존의 헤어 살롱을 뷰티 살롱으로 리모델링하는 프로젝트다. 번화가에 자리한 노변 점포에 조용하고 개인적이며 편안한 환경을 조성하는 것이 이번 프로젝트의 첫 번째 핵심 질문이었다. 이에 대한 해결책으로 ‘동굴’같은 공간을 조성했다. 이 공간은 필요한 사생활 보호 정도에 따라 크기와 소재가 달라진다. 건물의 천장고를 활용해 가장 먼저 기존 중이층 영역을 확장했다. 이곳을 지나 어두운 색감의 목재로 마감한 복도를 따라 들어가면 아이보리색 석회석으로 덮여 있는 ‘물의 동굴’이 나온다. 이곳은 대기실로, 사람들은 피부관리실 이용 전후에 잠시 이곳에 머물게 된다. 모든 공간은 의도적으로 꺾고 길게 늘린 통로를 따라 이어지며 원시시대 동굴 주거의 친밀했던 경험과 연결되어 있을지도 모를 육체의 기억을 깨우려 한다. 각 공간에는 석재나 목재 같은 자연 소재를 적용했는데, 이러한 공간 및 소재 구성을 통해 육체와 정신에 평온을 선사하고자 했다.







건축가 Studio DOTCOF
위치 Yushan Road, Pudong District, Shanghai, China
연면적 170㎡
준공 2019. 9.
디자인팀 Xi Chen, Rong Li, Lan Lan
발주자 Natural Beauty
사진작가 Sa Xiao
해당 프로젝트는 건축문화 2020년 3월호(Vol. 466)에 게재되었습니다.
The project was published in the March, 2020 recent projects of the magazine(Vol. 466).
March, 2020 : vol. 466
Contents : RECORDSA MEETING OF POP AND ART, CONNECT BTS SYNESTHETIC EXHIBITION : BOOK & NEWS : SKETCHA PUB IN BARCELONA / CRISTINA CORREA FREILE : RECENT PROJECT MK BUILDING / DOSUNG ARCHITECTS&DESIGN GROUP A DEEP LANDSCAPE / ARCHITECTURE LAB BOUM JANGGI-D
anc.masilwide.com
'Architecture Project > Healthcare' 카테고리의 다른 글
| Winship Cancer Institute (0) | 2023.05.15 |
|---|---|
| Heng Salon - A 29m2 Pop-up Scalp Care Salon (0) | 2023.04.12 |
| Ulsan Jongang Hospital (0) | 2023.01.16 |
| SMART TRAINING PAVILION (0) | 2022.08.17 |
| IMPRESS MADRID TEENS (0) | 2022.03.21 |
마실와이드 | 등록번호 : 서울, 아03630 | 등록일자 : 2015년 03월 11일 | 마실와이드 | 발행ㆍ편집인 : 김명규 | 청소년보호책임자 : 최지희 | 발행소 : 서울시 마포구 월드컵로8길 45-8 1층 | 발행일자 : 매일



