
‘화정헌(畵庭軒)’은 ‘그림과 마당이 있는 집’이라는 뜻으로 대구광역시 동구 혁신도시에 있는 단독주택이다. 영화와 음악, 그림을 좋아하는 건축주는 아파트 층간소음으로부터 벗어나 사적으로 즐길 수 있는 마당 같은 공간을 원했다. 또한, 집안 어디에서나 마당에서 생활하는 반려견과 함께할 수 있는 공간을 원했다.
대구광역시 혁신도시 서북쪽 끝으로 산과 인접한 대지는 반듯한 직사각형 모양이다. 주변에 근린생활시설과 단독주택들이 늘어서 있으며, 서쪽에서만 진출입할 수 있고 정남향으로 열린 땅이었다.
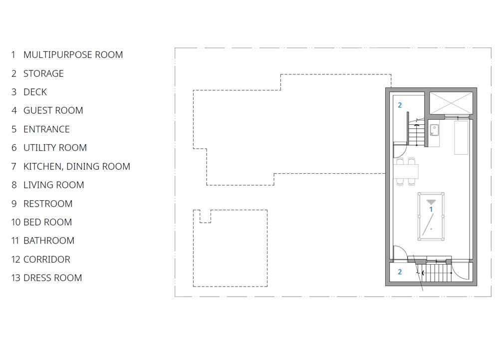
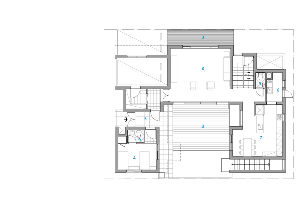
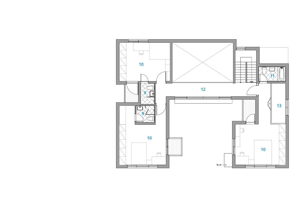
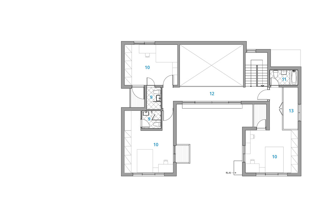
대구 지역 특성상, 여름의 강한 일사량을 피하기 위하여 서향 벽면은 개구부가 극도로 제한됐고, 내부로 들어오는 따스한 빛을 위한 개구부를 따로 만들었다. 1층은 공적인 영역이다. 거실과 식당, 주방만, 침실 등 사적인 생활공간은 모두 2층에 배치했다. 손님을 위한 공간은 1층에 독립된 공간으로 계획했으며, 본채를 거치지 않고 게스트들의 진출입이 가능하다. 건축주의 취미생활 공간은 지하에 별도 배치하였다.
거실은 시각적으로 공간을 확장한 것처럼 보이도록 하기 위해 ‘Inside Going Outside, Outside Going Inside’의 개념으로 거실과 같은 바닥 높이의 데크를 지닌 앞뜰과 뒤뜰을 계획했다. 반려견이 생활하는 앞뜰을 바라보는 거실 남쪽 면은 채광과 조망을 위하여 시원하게 뚫린 높이의 채광창이 있다. 2개 층 높이의 거실 북쪽 면은 프라이버시를 위하여 낮은 바닥 면에 위치한 채광창만 설치하여 외부의 담쟁이덩굴이 내부로 스며든다. 나머지 상부의 벽은 내부에 스크린을 대신하는 벽으로 활용할 수 있다.


















건축가 이지훈 + 건축사사무소 백
위치 대구광역시 동구 과학로
용도 단독주택
대지면적 283.9㎡
건축면적 148.87㎡
연면적 302.05㎡
규모 지하 1층, 지상 2층
건폐율 52.44%
용적률 87.65%
설계기간 2021. 5. - 9.
시공기간 2021. 10. - 2022. 7.
준공 2022. 8.
대표건축가 이지훈(영진전문대학교 교수)
프로젝트건축가 김수정(건축사사무소 백)
디자인팀 건축사사무소 백
전기엔지니어 엄성렬
시공 장수석, (주)선재종합건설
발주자 강민정
사진작가 윤동규
해당 프로젝트는 건축문화 2023년 2월호(Vol. 501)에 게재되었습니다.
The project was published in the February, 2023 recent projects of the magazine(Vol. 501).
February 2023 : vol. 501
Contents : NEWS / COMPETITION / BOOKS : SKETCH Things that make a day in your daily life / Hossain mousavi 일상 속에서 하루를 만드는 것들 / 호사인 무사비 : RECENT PROJECT Building of Music / Aisaka Architects’ Atelier 음악 복합공
anc.masilwide.com
'Architecture Project > Single Family' 카테고리의 다른 글
| A Modern Japanese-style Residence with Square Shape (0) | 2023.05.02 |
|---|---|
| CELL PARTITION-House (0) | 2023.04.28 |
| GODO HOUSE (0) | 2023.04.18 |
| Otakanomori House (0) | 2023.04.18 |
| Jeongbalsan-dong Residence Remodeling (0) | 2023.04.17 |
마실와이드 | 등록번호 : 서울, 아03630 | 등록일자 : 2015년 03월 11일 | 마실와이드 | 발행ㆍ편집인 : 김명규 | 청소년보호책임자 : 최지희 | 발행소 : 서울시 마포구 월드컵로8길 45-8 1층 | 발행일자 : 매일



