
건축주는 고양이와 함께 살 50평 내외의 주택을 꿈꿨다. 고양이 놀이터, 보호실과 고양이를 위한 자그마한 기능적인 요구들뿐 아니라 두 사람이 누릴 수 있는 자그마한 공간까지 구체적인 요구 사항이 있었다. 특히, 건축주는 고양이가 집 밖으로 나가는 상황에 대한 우려가 컸으며, 그런 우려는 고양이 탈출을 막을 수 있는 중정형 주택을 염두에 두고 있을 정도였다.
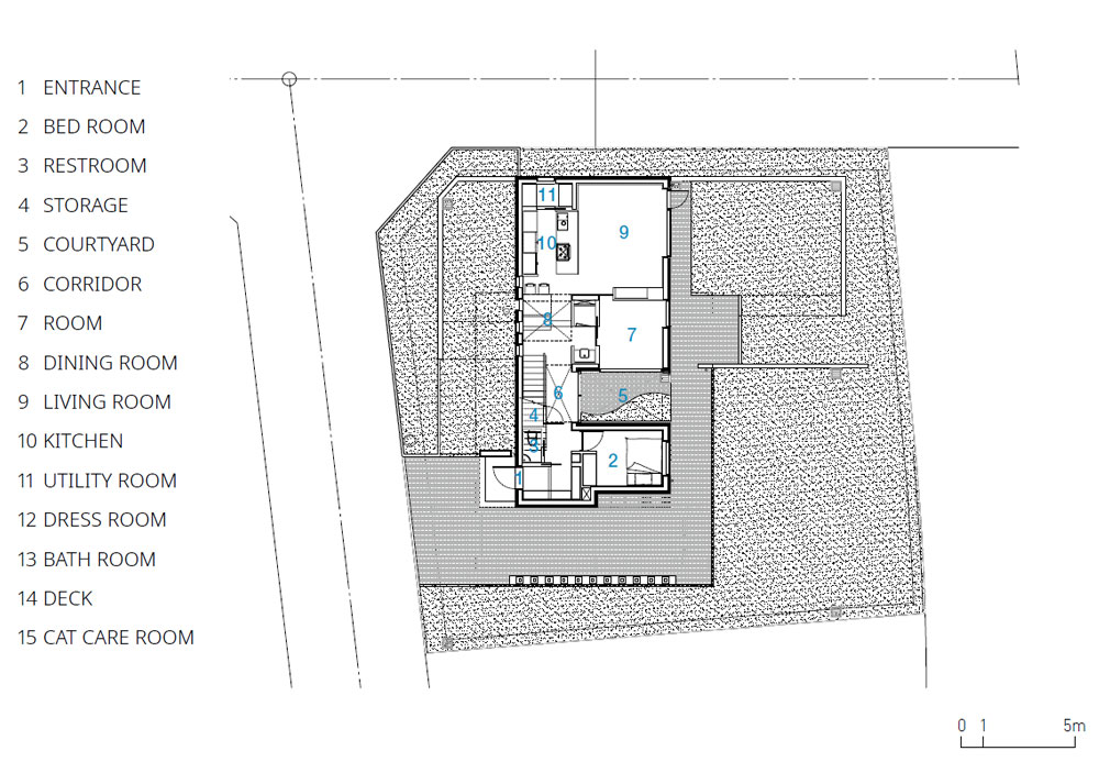
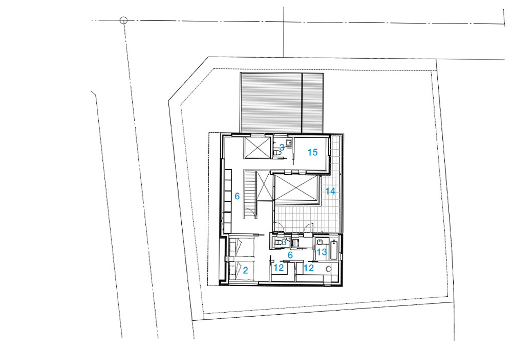
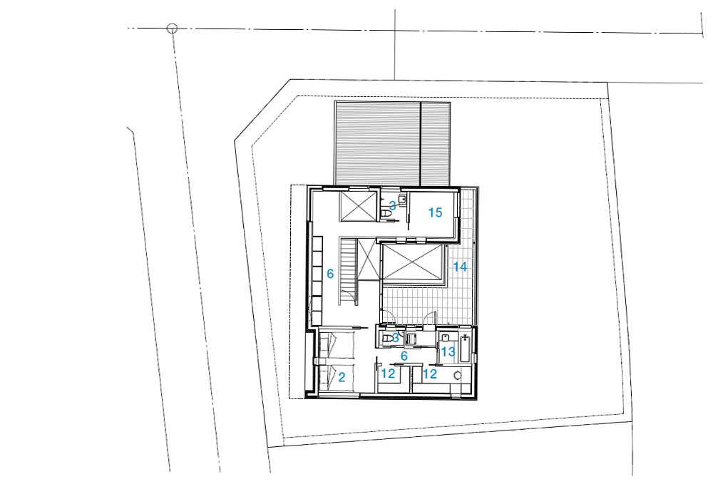
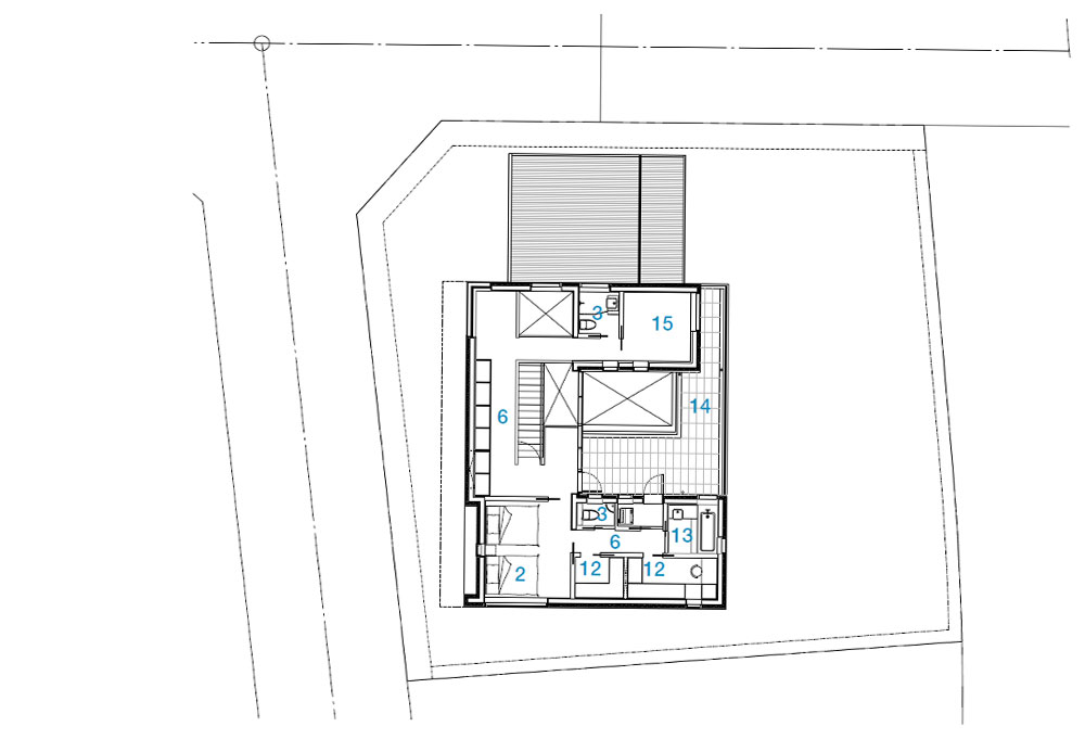
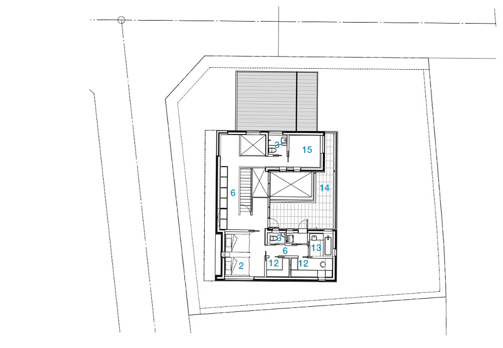
담양주택 고도는 2층에 고양이 관련 실과 부부만 사용하는 사적인 공간이 있고, 1층에는 게스트룸을 포함 비교적 공적인 영역이 들어올 수 있는 공간으로 실 배치가 되어 있다. 주차를 위한 필로티와 고양이 탈출을 방지할 수 있는 중정의 기능을 담당할 2층 테라스가 있으며, 이로 인해 2층의 전체 볼륨이 1층의 1.5배가 되었다. 고양이를 안전하게 보호하는 섬과 같은 이미지를 구체화하는 방편으로 주차장 필로티 기둥은 최대한 존재감을 없애려 각파이프 기둥으로 만들었다.
2층이 지면과 분리된 형상과 반대로 1층은 외부 대지와 적극적으로 조응하는 집이다. 높은 층고의 거실을 원하는 건축주의 요구에 맞춰 거실의 지붕을 올리고 바닥을 내렸다. 내린 바닥에 맞춰 낮은 정원을 배치하고, 낮은 담을 두어 남쪽의 옆집과 접하는 마당과 구분하였다. 정원을 바라보며 앉을 수 있게 2층 캐노피 바닥 하부엔 벽돌을 둘렀다. 정원은 2층 옥상과 연결되는 자그마한 소정원으로 연결되고 거실 옆에 붙은 작은 내실에서 내밀히 바라볼 수 있도록 계획하였고, 복도 건너편엔 식사 공간과 마주하는 작은 정원을 두었다. 1층과 2층이 교차하는 부분은 최소한의 동선 공간을 제외하곤 모두 비웠다. 커튼월 창을 통해 들어오는 빛을 담을 수 있도록 다소 높은 막힌 난간벽으로 계단을 두르고, 유리 난간과 벽 난간을 교차로 계획하여 공간의 변화를 줬다. 2층 천장면은 박공 지붕면을 따라 계획하여 특이한 공간적 경험을 할 수 있다.














건축가 건축사사무소 이담
위치 전라남도 담양군 담양읍 담빛리
용도 단독주택
대지면적 473.70㎡
건축면적 148.05㎡
연면적 170.84㎡
규모 지상 2층
건폐율 31.25%
용적률 36.07%
설계기간 2020. 11. - 2021. 6.
시공기간 2021. 9. - 2022. 7.
준공 2022. 8
대표건축가 정봉찬
구조엔지니어 조소훈
기계엔지니어 이명근
전기엔지니어 이명근
시공 도윤종합건설(주)
발주자 김새벽, 소수인
사진작가 김용수
해당 프로젝트는 건축문화 2023년 2월호(Vol. 501)에 게재되었습니다.
The project was published in the February, 2023 recent projects of the magazine(Vol. 501).
February 2023 : vol. 501
Contents : NEWS / COMPETITION / BOOKS : SKETCH Things that make a day in your daily life / Hossain mousavi 일상 속에서 하루를 만드는 것들 / 호사인 무사비 : RECENT PROJECT Building of Music / Aisaka Architects’ Atelier 음악 복합공
anc.masilwide.com
'Architecture Project > Single Family' 카테고리의 다른 글
| CELL PARTITION-House (0) | 2023.04.28 |
|---|---|
| The House of Painting & Patio (0) | 2023.04.19 |
| Otakanomori House (0) | 2023.04.18 |
| Jeongbalsan-dong Residence Remodeling (0) | 2023.04.17 |
| House at Foot of Mountain (0) | 2023.04.17 |
마실와이드 | 등록번호 : 서울, 아03630 | 등록일자 : 2015년 03월 11일 | 마실와이드 | 발행ㆍ편집인 : 김명규 | 청소년보호책임자 : 최지희 | 발행소 : 서울시 마포구 월드컵로8길 45-8 1층 | 발행일자 : 매일



