
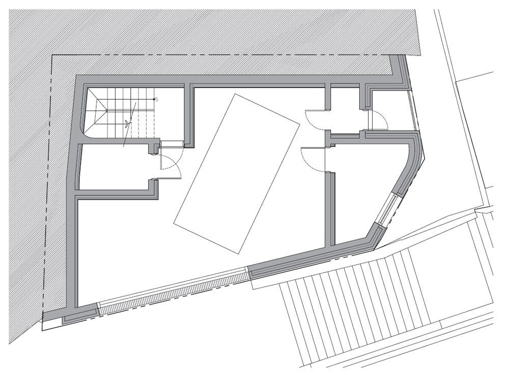
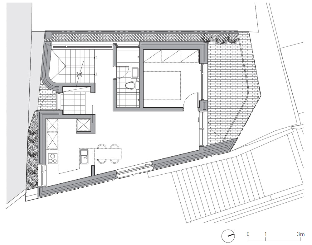
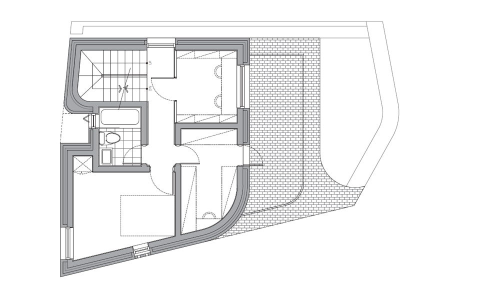
Ogindan Dandan is on the left side of Gyeongbokgung Palace in Seochon. Cafes and restaurants can be found one after another along the street from Gyeongbokgung Station, but the area is quiet because it is somewhat far from the main boulevard. The site where Ogindan Dandan is located sits at the end of the mountain ridge to the west. To be exact, the road next to it was created at a right angle to the mountain range, and the land next to the road was used to build the last house in the village that was formed all the way to the bottom of the mountain. It would be appropriate to say that the stature of the place can be appreciated from the east, west, and south sides. If you look from the three sides, other than the west side, the house is located at the beginning point of the village on the hill. The relatively gentle slope in the south curves to the west as it meets the land and leads to the top of the hill. When viewed from the east side, the site sits above the retaining wall next to the road, and it is 8m apart from the house to the north. Due to these characteristics, Namsan Mountain can be seen far away in the south. Bukaksan Mountain and Cheong Wa Dae can be seen simultaneously to the north. The landscape surrounding the site and the environmental characteristics around the building had an integral influence on the appearance of the house and the planning of each space inside it. Ogindan Dandan is right next to the road to the south. The yard is on the opposite side of the solid-looking southern part of the building. Additionally, balconies were planned for the second and third floors above the yard. The client requested a house with spaces in which families could live independently on each floor. The combination of rooms and three external areas forms an independent space with each floor having a different shape. As a result, the shape of the house as a whole is formed by a large stylobate and stacked layers. The initial design was to have a large window in the direction of the patio on each floor so that everything could be seen, from the balcony indoors to the scenery of Bukaksan Mountain far away. In this way, the interior extends to the outer part of the house, making the interior appear to be more expansive. In the study room, where retired parents could spend most of their time, the changing scenery outside the window throughout the day would be expected to fill the space with color. To protect residents’ privacy from the surrounding environmental factors, the windows were carefully positioned except for the ones on the northern part of the building, blocking people’s views from surrounding areas through an extended volume of walls.
Slightly widened door
The house is directly adjacent to the road on the south side, and the main entrance is located in the center of the building. The door was designed to be as tall as two floors and was made this way so that one’s sense of physical distance would be influenced by taking psychological and visual elements into account. The wall on the right side of the porch stands vertically, and the wall’s surface on the left is a smooth curve. However, all of the bricks on the curved surface starting from the ground exhibit different angles and positions that are integrated into the two wall surfaces in a right-angled direction as they approach the ceiling surface of the entrance.

서촌은 가로를 따라 카페와 음식점이 즐비하지만 대로에서부터 다소 거리가 있어 주변은 한적함을 유지하고 있다. 옥인단 단단이 위치한 대지는 서쪽 산에서부터 이어지는 능선의 끝에 있다. 정확하게는 산줄기의 직각 방향으로 도로가 생기면서 도로 옆에 위치한 대지가 산에서부터 자연스럽게 내려오던 마을의 마지막 집이 되고 남쪽, 동쪽, 북쪽에서는 우뚝 솟은 것처럼 보이게 되었다고 하는 편이 적절하겠다. 서쪽을 제외한 3면에서 바라보면 언덕 위 마을의 시작점이다. 남쪽의 비교적 완만한 경사로는 대지와 만나면서 서쪽으로 굽어지며 언덕 위로 이어진다. 대상지는 동쪽에서 바라보면 도로 옆 옹벽 위에 있고 북쪽 주택과도 8m 단차가 있다. 이러한 특성으로 남쪽으로는 멀리 남산이 보이고, 북으로는 북악산과 청와대가 한눈에 들어오는 탁 트인 경관이 펼쳐진다. 대지를 둘러싸는 원경과 건물 주변 환경적 특성은 집의 외형과 내부 각 공간의 계획에 세세한 영향을 주었다. 옥인단 단단은 남쪽의 전면 도로에 바짝 닿아 있다. 단단해 보이는 남측면의 반대편과 마당 위 2층, 3층에도 테라스를 계획했다. 건축주는 ‘하나의 집이지만 각 층에서 가족들의 독립적인 생활이 가능한 공간’을 요청했는데, 이를 반영한 실내공간과 3곳의 외부공간이 조합되면서 층마다 형태가 다른 ‘단’을 소유하는 독립공간이 되었다. 집은 하나의 큰 기단과 단, 단이 쌓여 있는 형상이다. 각층 테라스 방향으로는 큰 창을 두어 실내에서 테라스 그리고 멀리 북악산 풍경도 끌어안는다. 실내는 외부로 확장되고 가족들은 더 넓은 내부 공간을 느낄 수 있다. 은퇴한 부모님이 가장 많은 시간을 보내게 될 서재에서는 시시각각 변화하는 창밖의 풍경이 공간을 풍요롭게 채우길 기대했다. 북측을 제외한 입면의 창은 주변 환경적 특성으로부터 거주자의 사생활을 보호하기 위해 창의 위치가 세심하게 배치됐으며, 연장된 볼륨에 의해 주변으로부터 시선이 차단된다.
살짝 넓힌 문
집은 남쪽 도로에 바로 접해 있고 주 출입구는 입면의 중심에 있다. 입구는 2개 층의 높이와 깊이감을 느끼도록 계획했는데, 이는 물리적 거리를 심리적, 시각적으로 보정하기 위한 장치다. 현관의 우측 벽은 수직으로 서 있고 좌측 벽은 부드러운 곡면으로 돌아간다. 하지만 바닥에서 시작한 곡면의 모든 벽돌은 다른 각도와 위치값을 가지고 입구 천장면에 가까워질수록 직각 방향의 두 벽면과 일체화된다. 상승하면서 벽체의 곡률은 작아지지만, 벽돌을 자르지 않고 형상을 온전히 쌓았다.















Architect SML
Location Jongno-gu, Seoul, Republic of Korea
Program Single Family House
Site area 103.5㎡
Building area 61.44㎡
Gross floor area 214.12㎡
Building scope B1, 3F
Building to land ratio 59.36%
Floor area ratio 134.12%
Design period 2020. 6 - 10
Construction period 2021. 2 - 2022. 1
Principal architect Seungmo Lim
Design team Jaeil Kim
Construction 3-SQUARE
Photographer Kyungsub Shin, SML
해당 프로젝트는 건축문화 2023년 1월호(Vol. 500)에 게재되었습니다.
The project was published in the January, 2023 recent projects of the magazine(Vol. 500).
January 2023 : vol. 500
Contents : RECORDS Peek into the future of architecture and urban space through data from various fields 다양한 분야의 데이터로 건축·도시공간의 미래를 엿보다 Seoul's Urban and Architecture Field in Walking 걸어보며 느끼는 서
anc.masilwide.com
'Architecture Project > Single Family' 카테고리의 다른 글
| House at Foot of Mountain (0) | 2023.04.17 |
|---|---|
| Future Artspace H (0) | 2023.04.14 |
| Message from the Sky (0) | 2023.04.06 |
| The Flat Bench House (0) | 2023.04.05 |
| Todoroki House (0) | 2023.04.05 |
마실와이드 | 등록번호 : 서울, 아03630 | 등록일자 : 2015년 03월 11일 | 마실와이드 | 발행ㆍ편집인 : 김명규 | 청소년보호책임자 : 최지희 | 발행소 : 서울시 마포구 월드컵로8길 45-8 1층 | 발행일자 : 매일



