
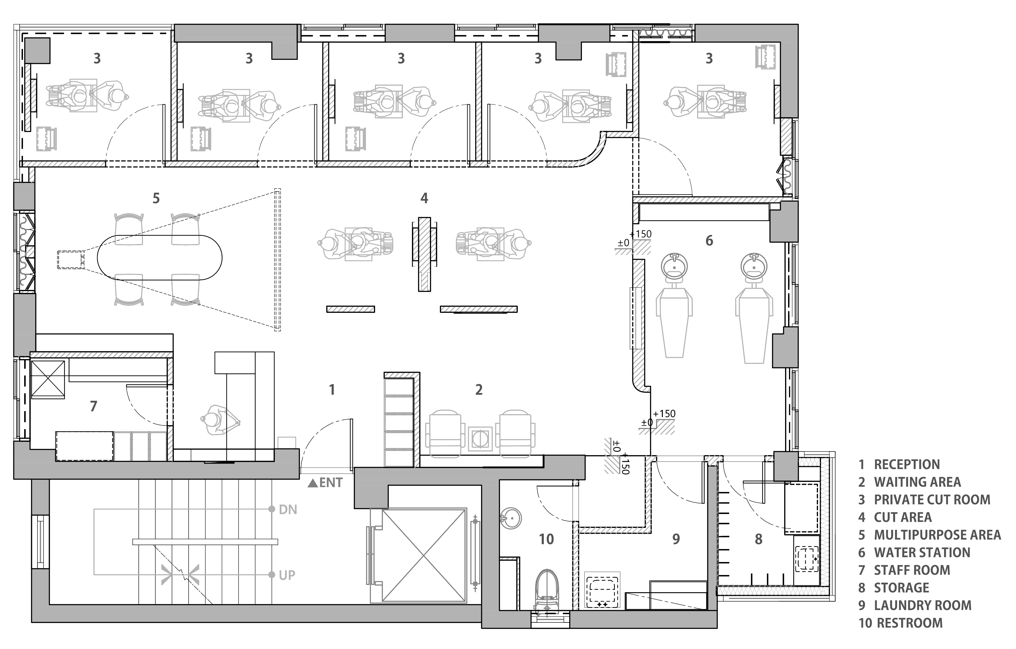
TAMNADODA is a hair salon specializing in hair extensions in Korea. We were involved in the interior design of TAMNADODA Cheongdam branch. Based on the client's needs, Design Studio Mono have created a private room- type hair salon that is out of the general structure. Cut rooms and open cut area, reception, waiting area, staff room, shampoo room, laundry room and storage had to be built in 115m² area. In addition, the design was carried out in consideration of facilities, equipment, and the flow of customers and staff. It was important to design as many private cut rooms as possible in the space. Considering using hair products, we chose the layout using windows and built an duct system. Each of the other rooms was constructed with a focus on functionality. The client preferred a configuration with straight lines and decoration excluded. So we tried to express linear space based on structural beauty. The space has been completed like a gallery that can clearly express the beautiful changes of customers. We hope it will be a space where customers can focus on their own beauty and feel comfortable.

탐나도다는 붙임머리 전문 헤어샵으로 새롭게 오픈하는 청담점의 설계를 진행하였습니다. 디자인스튜디오모노는 클라이언트의 니즈를 기반으로 일반적인 오픈형 구조에서 벗어난 퍼스널한 서비스를 위한 프라이빗한 룸 형태의 헤어샵을 만들었습니다. 우리는 115m²의 공간에 5개의 프라이빗 룸, 오픈형 워크 스테이션, 리셉션과 고객 대기공간, 스탭을 위한 휴게 공간, 샴푸실, 세탁실, 약제실을 구성해야 했습니다. 또한 헤어샵 특성에 따라 설비, 미용기구, 손님과 스탭의 작업 동선을 고려하여 공간을 그려나갔습니다. 평면에 최대한의 프라이빗한 룸을 구성하기 위해 외벽 창을 활용한 레이아웃을 선택했고 공간의 쾌적함을 위해 자연 환기와 공조 시스템을 구축했습니다. 오픈형 워크 스테이션은 시술 외에도 라운지, 아카데미 등 다양한 목적으로 활용되는 공간으로 캐주얼하게 표현했으며, 고객 대기공간은 셀피를 찍는 곳으로 활용되도록 유도했습니다. 이 외의 각 실은 기능에 초점을 맞추어 구성했습니다. 클라이언트는 명료한 직선과 장식성이 배제된 구성을 선호했습니다. 이에 구조적인 아름다움에 기반한 직선의 공간을 표현하고자 했습니다. 공간은 고객의 아름다운 변화를 선명하게 담을 수 있는 갤러리와 같은 이미지로 완성되었습니다. 고객이 자신의 아름다움에 집중하며 편안하게 머무는 장소가 되길 바랍니다.












Design : DESIGN STUDIO MONO
Location : 45, Dosan-daero 81-gil, Gangnam-gu, Seoul, Republic of Korea
Site area : 115㎡
Construction : 2022
Photographer : Seeun Park
'Interior Project > Retail' 카테고리의 다른 글
| ONION STUDIO (0) | 2023.03.10 |
|---|---|
| THE Hyundai, JASMIN BLACK (0) | 2023.02.24 |
| Ardour (0) | 2023.02.15 |
| EDIT Hannam (0) | 2023.02.08 |
| HOTEL DAWSON (0) | 2023.02.06 |
마실와이드 | 등록번호 : 서울, 아03630 | 등록일자 : 2015년 03월 11일 | 마실와이드 | 발행ㆍ편집인 : 김명규 | 청소년보호책임자 : 최지희 | 발행소 : 서울시 마포구 월드컵로8길 45-8 1층 | 발행일자 : 매일



