
"hotel tt" is a boutique hotel with branches in Gupo and Seomyeon in Busan.
Surveying the first and 20th floors, the design team was inspired by the spatial feeling of the first floor and the exterior scenery of the 20th floor.
It could look down the natural ecological park surrounded by the mountains and stream of the river Nakdonggang connected to the sea across Busan.
The design team envisioned the entire concept in "a space where people can appreciate this region's own beauty and culture".
According to the client who wanted a different atmosphere from any other franchise hotels, the design team proposed to break the hotels' general principles and to create a space to contain a simple yet unique taste, and focused on expressing natural elements.
Externally, modern and functional materials were used, and internally, it was hoped that the surronding elements could be felt perfectly.
Rather than expensive finishes or designs full of techniques, the design team imagined a space keeping emotions based of the sense of place, and emphasized natural elements to reveal its identity clearly.
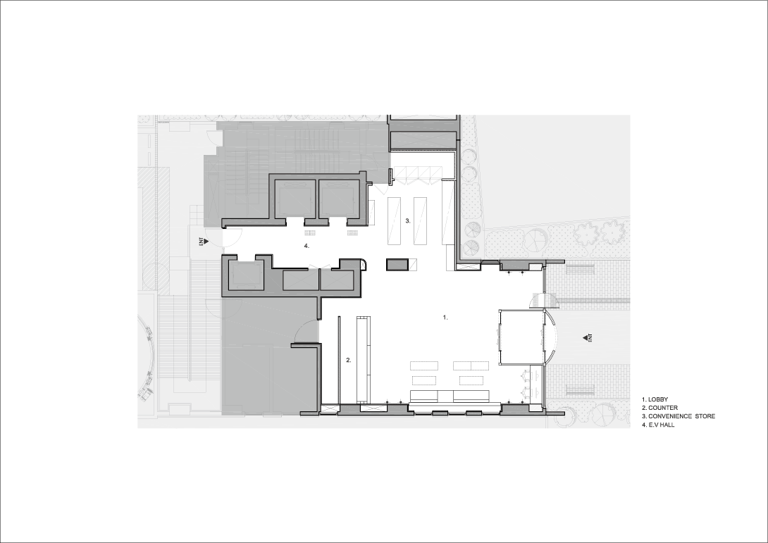
For most people, Busan is reminiscent of scenery of the sea and the river.
In order to express such symbolic images into the space, the ceiling of the lobby on the first floor was expressed like a wave, and the foil seeming like the sunlight on the waves was chosen as finishing material.
Artificial lighting was excluded as much as possible to make the materiality of the finishing material look better, and indirect lighting was used.
Customers experience the local beauty before they are aware.
Customers should walk through a long corrider with the food seved on the plate at the buffer area in order to reach the restaurant on the 20th floor.
The design team made use of nature beyond the window in order to overcome the problems of low ceiling and long traffic line.
To open a large window was a strategy to make it difficult to recognize long traffic line by being entranced with the scenery of the river Nakdonggang, the park and the mountain Seobusan.
In order to introduce the exterior nature into the interior, the design team used the wood-tone finish and the stone tiles, making customers feel like eating in a forest.
While the first floor containing nature in a constructive form concentrates more on interior space, the 20th floor allows the relationship between the interior space and exterior natural elements to be recognized as one rather than disconnected.
In spatial design, "sense of place" is an element to be considered first.

호텔은 머무르는 손님들은 일 또는 관광 및 휴식을 목적으로 좀 더 나은 서비스와 휴식을 제공하는 공간입니다.
더 나아가 ‘지역적인 아름다움과 문화를 감상할 수 있는 공간이 되면 어떨까?’ 라는 물음에서 컨셉을 생각하게 되었습니다.
부산을 상징하는 낙동강이 내려다 보이는 곳에 위치한 티티호텔은 클라이언트와의 처음 만나 site를 둘러본 후 그 장소성이 가지는 Identity가 확연히 드러나는 디자인을 하자는 제안을 하였습니다.
일반적으로 호텔로비가 가지는 일반적인 이미지인 럭셔리하거나 장식적인 것과는 대조되는 심플하면서 지역적인 아름다움을 담아 내기 위해 고민을 하였습니다.
부산하면 떠오르는 바다와 강이 가지는 물의 흐름이 느껴지는 형태와 시각적으로 흐르는 물결이 머금고 있는 따스한 햇살을 표현할 수 있는 마감재인 은박지를 선택하였습니다.
입구에 들어서면 파도를 연상시키는 형태와 빛을 머금고 있는 듯한 느낌의 은박지로 마감된 심플하지만 웅장한 천장이 손님들을 반깁니다.
호텔 컨시어지는 편안한 느낌을 주는 자연소재 그대로가 드러난 무게감 있는 카운터로 디자인하였습니다. 또한 로비 오른쪽에 들어선 편의점은 기존의 편의점의 느낌과는 사뭇 다른 마감재를 활용하여 아이코닉하게 연출하였습니다.
엘리베이터 홀은 로비에서 느껴졌던 웅장한 파도와 같은 형상과는 달리 잔잔한 물의 일렁임이 느껴지는 워터웨이브 금속판넬을 천장에 시공하여 컨셉을 직접적으로 전달하려고 하였습니다.
20층에 위치한 레스토랑으로 올라가면 낙동강이 흐르고 공원과 산들이 즐비한 서부산의 모습을 한눈에 볼 수 있습니다. 이러한 외부적인 요소를 내부로 유입시키기 위해 자연소재느낌의 Stone tile을 선택하여 고객들이 마치 자연속에서 편안하게 식사를 할 수 있게 연출하였습니다.
짙은 우드의 바닥타일과 가구 역시 그러한 연출에 조화롭게 배치하였습니다.
음식을 제공하는 뷔페에는 식사공간과는 차이점을 두면서도 조화롭게 보이기 위해 톤이 비슷한 트래버틴 화이트 대리석으로 마감을 하여 무게감있는 형태로 디자인하였습니다.


















Design : deisgn by 83
Location : 1684 Nakdong-daero, Buk-gu, Busan, Republic of Korea
Site area : 1F Lobby 150㎡, 20F Restaurant 279㎡
Construction : Sejong Construction Development Inc
Photographer : Donggyu Kim
'Interior Project > Cafe&Restaurant' 카테고리의 다른 글
| sted (0) | 2023.01.23 |
|---|---|
| or whatever (0) | 2023.01.18 |
| naver 1784 canteen, cafe (0) | 2023.01.13 |
| HeavyLayers (0) | 2022.11.11 |
| ToTheMoon (0) | 2022.11.10 |
마실와이드 | 등록번호 : 서울, 아03630 | 등록일자 : 2015년 03월 11일 | 마실와이드 | 발행ㆍ편집인 : 김명규 | 청소년보호책임자 : 최지희 | 발행소 : 서울시 마포구 월드컵로8길 45-8 1층 | 발행일자 : 매일



