
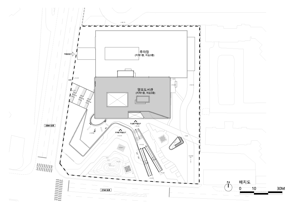
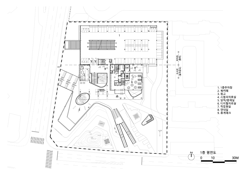
The library is located at the center of Yangpo District, Gumi. Yangpo is a new town rapidly growing by taking up over 50% of recent population influx. The city accommodates from 50,000 to 70,000 populations and the city’s image is dominated by the monotonous street covered with private capital-based commercial buildings and apartment houses just like other residential areas. Yangpo Library is located at the corner of the intersection that forms a boundary between residential district and commercial district. In addition to original features such as information delivery, learning, and center of community, the library is designed to present tension and relaxation to the inflexible streetscape to create a lively streetscape. The library design also considers about actively opening the external space to residents so that residents would feel friendly with the library.
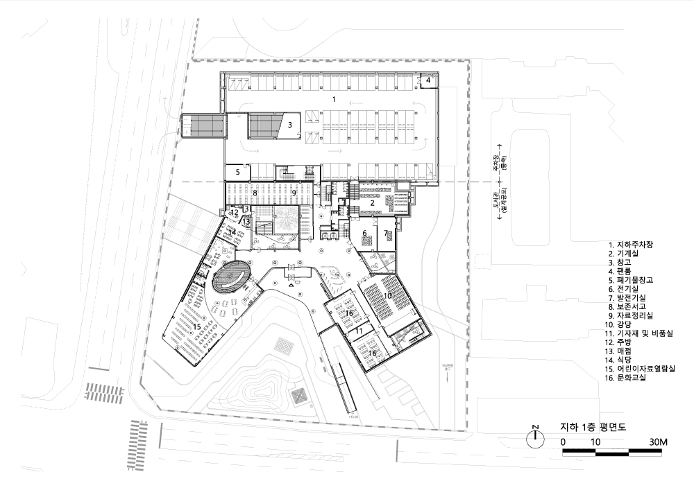
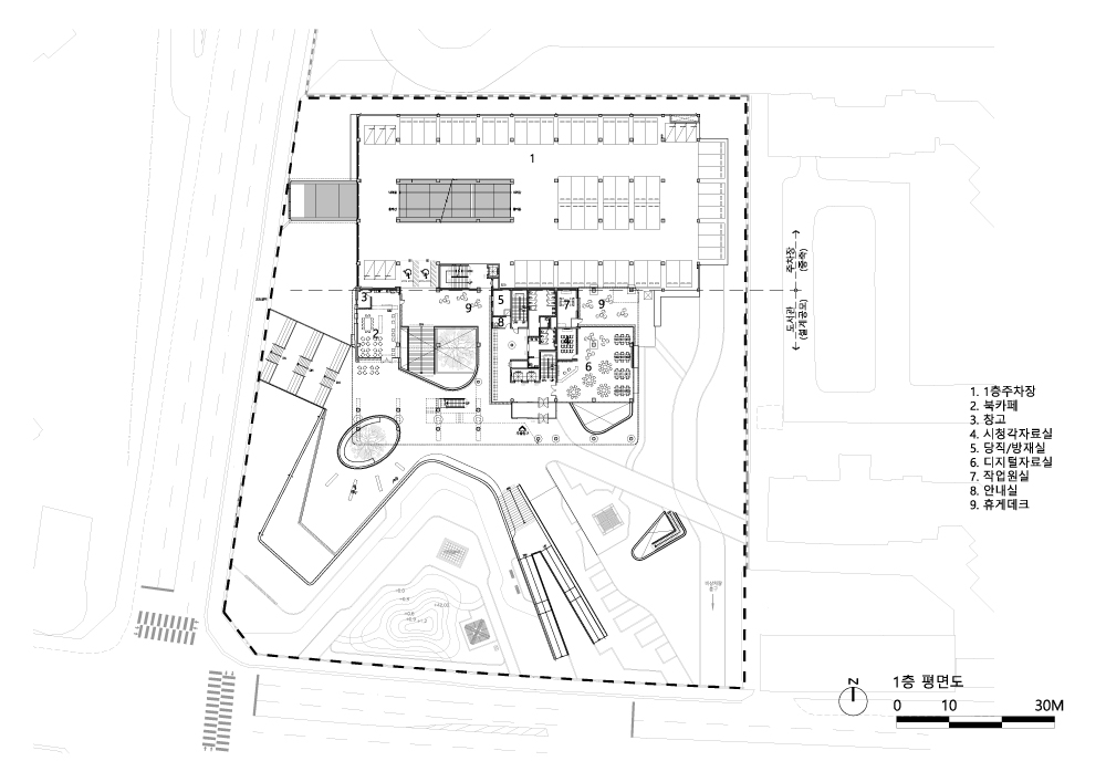
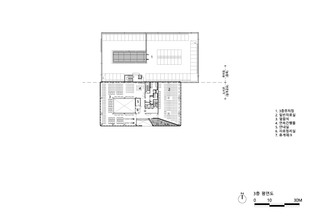
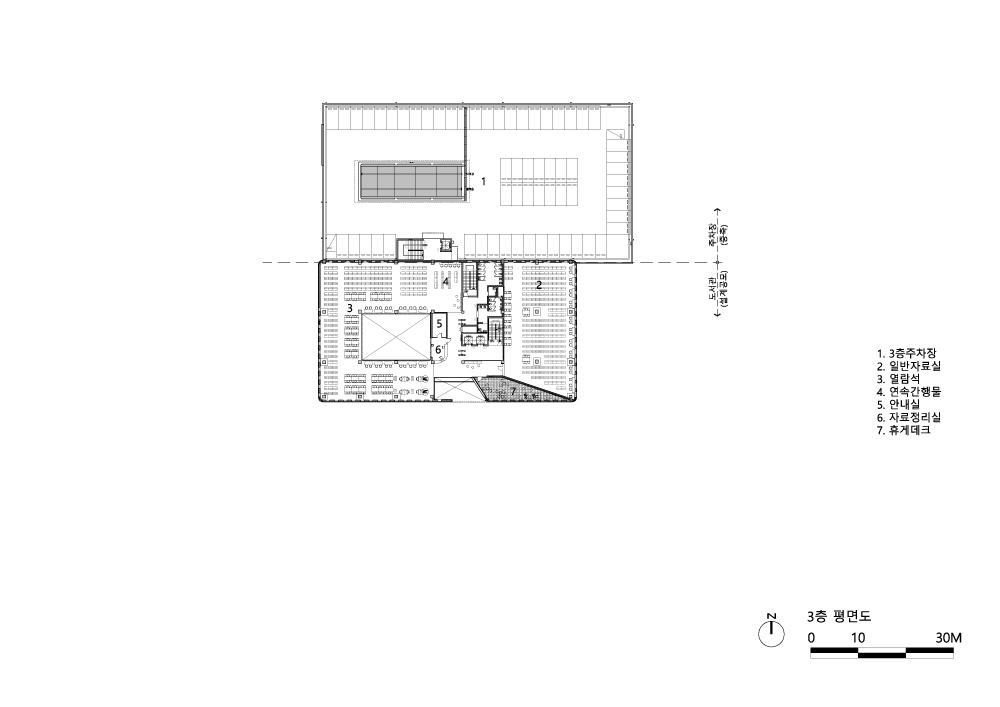
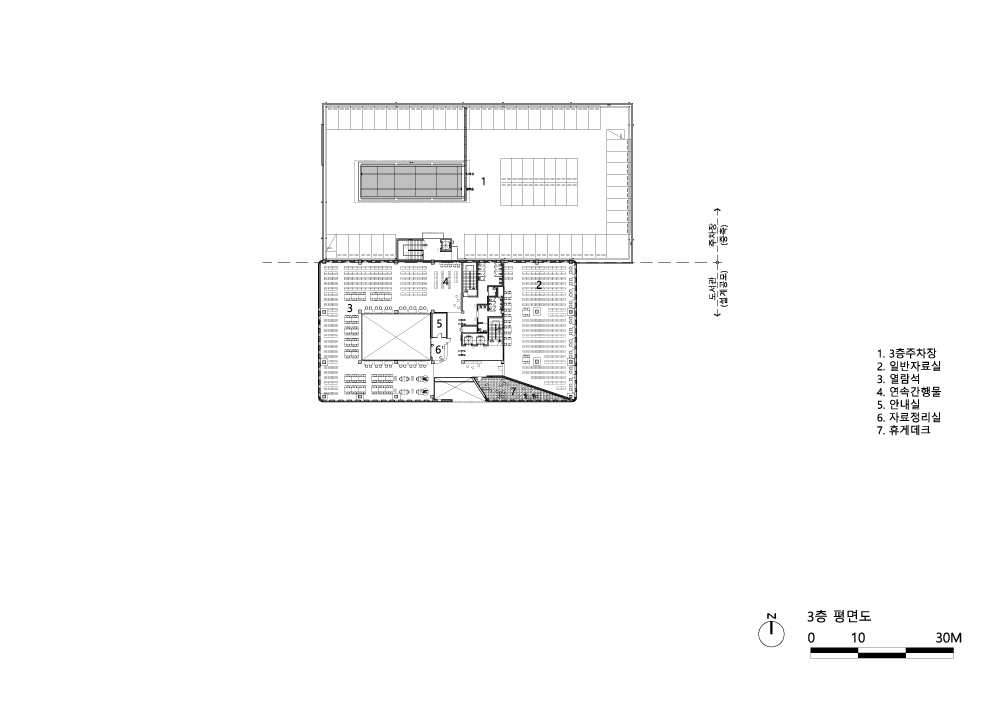
The first architectural strategy to be introduced on the wide empty site along the intersection’s corner part was securing the way to the library that crosses north-west and south-east directions. With this way to library, the residents are able to meet library in closer distance and enjoy the new pedestrian system accommodating moving flows of various purposes and manners. The pedestrian axis clearly imprinted on the ±0 ground level flows along the basement floor mass in free forms to create external spaces in different scales. The deep garden emerging from the external space, free planting plan, stand-type stairs with enough space to sit, and shady elements neutralize the boundary between library and road while creating more open and friendly external spaces.
Heavy mass found on the top of way to library contrasts with the surrounding inflexible mood. The elevation processing that lightly lifts the heavy red brick and it emphasizes the emptiness penetrating the top and bottom part from the point where the library and road overlaps. Such emphasis on visual twist maximizes the openness of the space and stimulates curiosity to the internal space. In this place where the top, down, left, and right sides of the library are thoroughly penetrated together, the people visiting the library with different levels and citizens taking a walk visually communicate and feel the spatial depth created by the library. Instead of combining the simple box-type external & three-dimensional inner space, the library twists the concept so that the three-dimensional elements inside the library would get exposed to users outside. This is based on the interpretation that library isn’t a simple structure that only focuses on internal features and provides limited programs and that library is the expandable knowledge platform that seeks the flexible boundary by extensively accommodating the parts of the city.

구미 시립 양포도서관
구미 양포지구는 최근 구미 인구 유입의 50% 이상을 차지하는 곳으로, 빠르게 성장하는 신도시다. 인구 약 7만 명을 수용하는 규모의 도시는 여느 택지개발지구가 그렇듯이 상업건축과 공동주택 일변도인 무색무취의 거리 풍경이 도시의 이미지를 선점하고 있었다. 주거와 상업지역의 경계를 이루는 사거리 코너부에 자리잡은 양포도서관은 도서관 본연의 기능인 정보전달과 학습 및 지역 공동체의 구심점 역할을 한다. 개발지구의 경직된 가로 경관 속에서 생동감 있는 건축물이 색다른 가로 경관을 만들며 주민들에게 친근한 장소로써 다가가고 있다.
도서관은 사거리 코너부를 점유하며 넓게 비워진 부지에 들어 서 있다. 북서와 남동 방향을 가로지르는 도서관 가는 길은 건축가가 설계에서 가장 중요하게 생각한 부분이다. 건축가는 이 길이 주민들에게 물리적으로 가까운 도서관을 만나게 해주며, 다양한 생활 동선을 만들어내는 새로운 보행체계를 만들 수 있다고 생각한 것이다. ±0 레벨부터 시작된 보행축은 건축물 형태의 지하층 매스와 그 흐름을 같이 하며 다양한 스케일의 외부공간들을 만들어 낸다. 외부공간에서 나타나는 움푹 꺼진 선큰 정원, 여유롭게 늘어진 경사로, 자유분방한 식재계획, 걸터앉기 넉넉한 스탠드형 계단과 그늘진 외부마당의 요소들은 도서관과 도로의 경계를 중화시키며 양포도서관만의 개방적이고 친근한 이미지를 형성한다.
도서관의 육중한 매스는 주변의 경직된 분위기와는 상반되는 모습을 보인다. 무거운 적벽돌 매스를 가볍게 부유시키는 입면 처리는 도서관과 길이 중첩된 지점에서 상하부를 관통하는 비워짐을 강조한다. 이처럼 강조된 시각적 반전은 공간의 개방감을 극대화 시키며 내부 공간에 대한 호기심을 한껏 끌어 올리게 된다. 도서관의 상하좌우가 온전하게 관통되는 이 비워진 곳에서 다양한 높낮이에 위치한 도서관 이용객과 산책하는 시민들은 서로 시각적으로 교감하게 되고, 도서관이 만들어 내는 공간의 깊이감을 온전하게 느끼며, 공간의 반전으로 내부의 입체적인 요소들까지 자연스럽게 노출되도록 만든다. 양포도서관은 단지 도서관이라는 내부기능에 집중하여 한정된 프로그램만을 제공하는 단순한 건축물이 아니라 도시의 일부로 존재하며, 그 도시의 영역을 폭넓게 수용하고 유연한 경계를 추구하는 확장 가능한 지식 플랫폼이다.


























Architect PLAN ARCHITECTS OFFICE
Location Okgyebuk-ro, Gumi-si, Gyeongsangbuk-do, Republic of Korea
Program Library
Site area 10,063㎡
Building area 3,529.81㎡
Gross floor area 11,944.53㎡
Building scope B1 - 3F
Building to land ratio 35.08%
Floor area ratio 74.95%
Completion 2020. 7
Principal architect / Project architect Taehyung Lim
Design team Hanee Jo, Yeongtak Go, Jinbae Jang
Structural engineer JUNGGUJO
Mechanical engineer SU Engineering
Electrical engineer Joeun Engineering
Client Gumi-si, Gyeongsangbuk-do
Photographer Joonhwan Yoon
해당 프로젝트는 건축문화 2022년 9월호(Vol. 496)에 게재되었습니다.
The project was published in the September, 2022 recent projects of the magazine(Vol. 496).
September 2022 : vol. 496
Contents : RECORDS "SHINGIL MIDDLE SCHOOL" TO PROPOSE A NEW SCHOOL SPACE STRUCTURE THAT WON THE 40TH SEOUL ARCHITECTURE AWARDS 새로운 학교 공간 구조를 제안한 ‘신길중학교’ 제40회 서울시 건축상 대상 수상 : NEWS / COMPETITION
anc.masilwide.com
'Architecture Project > Education' 카테고리의 다른 글
| GEUMSAEM LIBRARY (0) | 2022.12.19 |
|---|---|
| DOBRA 55 (0) | 2022.12.15 |
| SCHOOL AND LEISURE CENTER (0) | 2022.12.12 |
| ILLSIN HALL AJOU UNIVERSITY (0) | 2022.12.08 |
| NAEPO NATURE PLAY GARDEN (0) | 2022.12.01 |
마실와이드 | 등록번호 : 서울, 아03630 | 등록일자 : 2015년 03월 11일 | 마실와이드 | 발행ㆍ편집인 : 김명규 | 청소년보호책임자 : 최지희 | 발행소 : 서울시 마포구 월드컵로8길 45-8 1층 | 발행일자 : 매일



