
“The Green Silhouette” is a renewal project, rebuilt from an abandoned structure that was part of a masterplan with 3 buildings on the same plot. Considering recent changes of market trends, the old structure had to be torn down since it no longer fit the new unit layouts. However, following the authority’s requirement for resubmission, the building could not be demolished completely resulting in the reuse of existing foundation and retention of existing column layout on ground floor with some addition of new structure. Above the ground floor are 3m deep transfer beams carrying different structural grid above.
The existing masterplan comprises of 3 identical buildings so the team had to start the redesign process with this inherited building form, sort of cardboard-box shape. It was a difficult task to get a striking form since any addition on top of the previously approved building frame was not an option and removal meant loss of saleable area. After a few rounds of frustrating façade design study, the design team decided to make use of the bulky form as a billboard to create building character out of it instead.
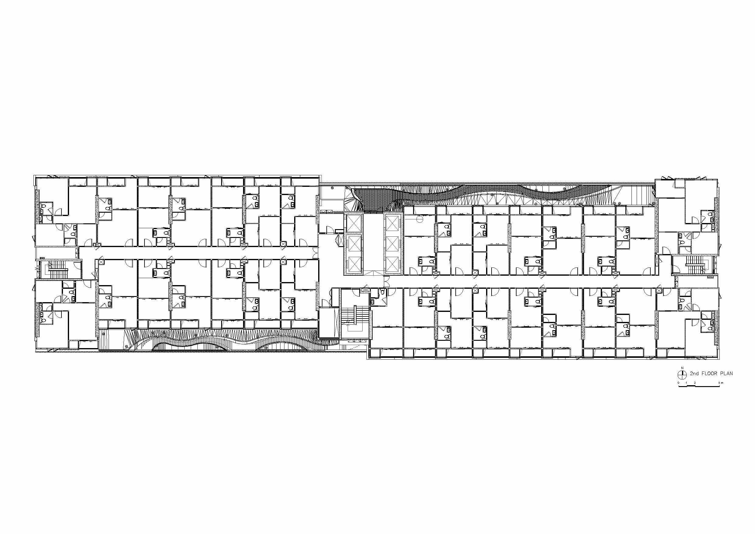
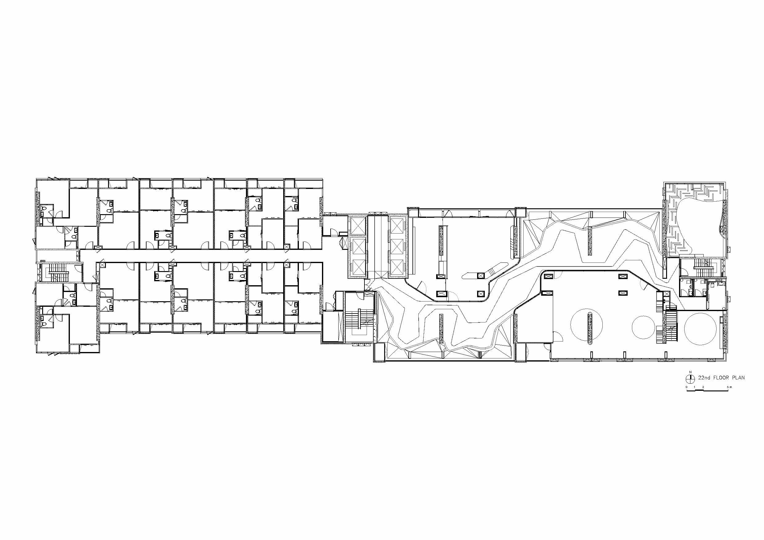
Contextually, the main selling point of the development is a large, park-scaled green area with fully grown trees and its location adjacent to a popular fairytale amusement park. With this ‘double park’ condition, the design team imagined a magical tree growing out of the vast green area as a design concept which is thoroughly used as a common theme for architectural, landscape and interior designs; root/cave for ground floor, tree hole for facilities at 22nd floor and tree canopy for the rooftop. A giant mythical tree with bird nests and tree friends conforms with the tagline, imagination is everything, set by the marketing team.
The façade design composes of rows of precast concrete fins twisted and tapered at specific points to create an image of tree silhouette. Due to the complexity of the pattern, there are more than hundred variations of module. The precast panels at gable end walls have recessed pattern mimicking tree bark texture. Communal facilities at 22nd floor and roof terrace are wrapped with warped strips of spectra aluminium composite panel that change colours when seen from different angles. The iridescent strips combine into double curvature surface to represent bird nest on the tree. Such surface is peeled apart for light and view to the rooms and pulled back at the roof level to create a viewpoint for an observation deck.
The project is earmarked by the developer to be their first green condominium so besides providing water saving sanitary wares, EV charger, solar cell rooftop, and so on, natural ventilation is encouraged wherever possible to emphasize the idea of living with nature. Large sliding doors at lobby can be fully opened on nice weather days. Residents can open folding doors at rooftop fitness if they wish to use treadmill without air conditioner. Horizontal fins on the façade not only portrays the building image but also provides shading for the rooms.

더 그린 실루엣
‘더 그린 실루엣’은 마스터플랜의 일부로 지어진 같은 구조의 3개 건물 중 하나를 리모델링한 프로젝트다. 최근 시장 트렌드를 고려해 기존에 배치된 어울리지 않고, 낡은 구조물을 철거해야 했다. 그러나 건물을 완전히 철거할 수 없었고, 기존의 기초 구조를 재사용하면서 일부 새로운 구조를 추가하기로 했다. 1층 위에는 서로 다른 구조의 그리드를 운반하는 3m 깊이의 전송 빔이 있다.
기존 마스터 플랜은 3개의 동일한 건물로 이루어져 있으며, 디자인 팀은 판지 상자 형태로 만들기 위한 프로세스를 거쳐야 했다. 기존에 승인된 건물 프레임 위에 추가하는 것은 선택 사항이 아니었지만, 제거는 수익을 낼 수 있는 면적이 줄어드는 것을 의미했기 때문에, 눈에 띄는 형태를 만들어 내기 어려웠다. 몇 차례에 걸친 외관 디자인의 수정과 연구 끝에 디자인 팀은 부피가 큰 형태는 광고판으로 사용해 이 건물만의 특징을 만들어 내기로 했다.
컨텍스트에 따라 개발의 주안점은 높이 자란 나무가 있는 대규모 녹지와 인기 있는 동화 테마의 놀이공원과 거리가 가까워야 했다. 이러한 조건을 고려하여 디자인 팀은 건축, 조경, 인테리어 디자인의 공통 테마로 사용되는 넓은 녹지에서 자라는 마법의 나무를 상상했다. 1층에는 뿌리와 동굴이, 22층에는 시설물을 위한 나무 구멍, 옥상에는 나무 캐노피가 있다. 새 둥지와 나무 친구들이 있는 신화 속 거대한 나무는 핵심이 되고, 상상은 모든 것이 된다.
파사드 디자인은 나무 실루엣의 모습을 만들기 위해 꼬이고, 늘어지는 프리캐스트 콘크리트 핀을 줄지어 두었다. 복잡한 패턴으로 수백 가지 이상의 변형 모듈을 만들었다. 박공 끝 벽 프리캐스트 패널은 나무껍질의 질감을 내기 위한 오목한 패턴이 있다. 22층의 공용 시설과 옥상의 테라스는 각도에 따라 색이 변하는 휘어진 형태의 스팩트럼 알루미늄 복합 패널로 둘러싸여 있다. 나무 위 새 둥지를 나타내기 위한 무지개 빛깔의 스트립은 이중 곡률 표면을 만들어 낸다. 이러한 표면은 빛과 방의 뷰를 위해 벗겨지고, 전망대의 뷰를 만들어내기 위해 지붕 높이에서 뒤로 당겨져 있다.
이 프로젝트는 첫 녹색아파트로 지정되었다. 절수 가능한 위생 용품과 EV 충전기, 태양광 옥상 등을 제공하고 있고, 이 밖에도 자연 환기를 추구하면서 자연과 함께 사는 것을 강조하고 있다. 날씨가 좋은 날에는 로비의 대형 미닫이문을 완전히 열 수 있고, 거주자들은 옥상 피트니스에서 접이식 문을 열어 에어컨 없이도 러닝머신을 이용할 수 있다. 파사드와 수평을 이루는 핀은 건물 이미지를 표현하면서 객실에 음영을 만들어 낸다.









































Architect ARCHISMITH ARCHITECTS
Location Bangkok, Thailand
Program Residential, Condominium
Gross floor area 50,636㎡
Completion 2021
Project architect Archismith
Design team Jirawit Yamkleeb, Sukonthip Sa-ngiamvongse, Thanaphon Phumipanchaphak
Structural engineer 2-R Engineering
Mechanical engineer V.Group Engineer
Landscape Designer Landscape Studio by Arsomsilp
Construction Manager De Promis Construction Consulting
Client Sansiri PLC
Photographer W Workspace
해당 프로젝트는 건축문화 2022년 8월호(Vol. 495)에 게재되었습니다.
The project was published in the August, 2022 recent projects of the magazine(Vol. 495).
August 2022 : vol. 495
Contents : RECORDS FIVE ARCHITECTS FROM THREE TEAMS SELECTED FOR ‘2022 KOREA YOUNG ARCHITECTS AWARD’ 2022 젊은 건축가상에 선정된 3개 팀, 5명의 건축가들 : NEWS / COMPETITION / BOOKS : SKETCH THE FLASHING ELEMENTS / CRISTINA CORREA FREI
anc.masilwide.com
'Architecture Project > Commercial' 카테고리의 다른 글
| EAVES OF J (0) | 2022.12.02 |
|---|---|
| MSTATE1292 (0) | 2022.11.30 |
| STARSCAPE (0) | 2022.11.18 |
| Cantina Podernuovo a Palazzone (0) | 2022.09.01 |
| Villa Magallon (0) | 2022.08.04 |
마실와이드 | 등록번호 : 서울, 아03630 | 등록일자 : 2015년 03월 11일 | 마실와이드 | 발행ㆍ편집인 : 김명규 | 청소년보호책임자 : 최지희 | 발행소 : 서울시 마포구 월드컵로8길 45-8 1층 | 발행일자 : 매일



