
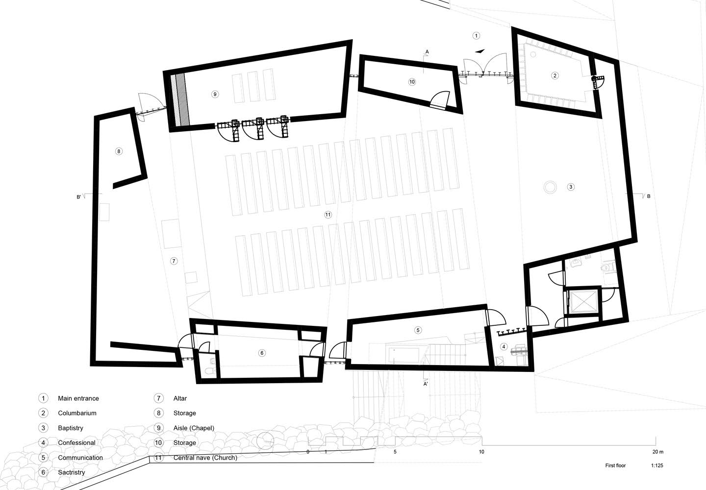
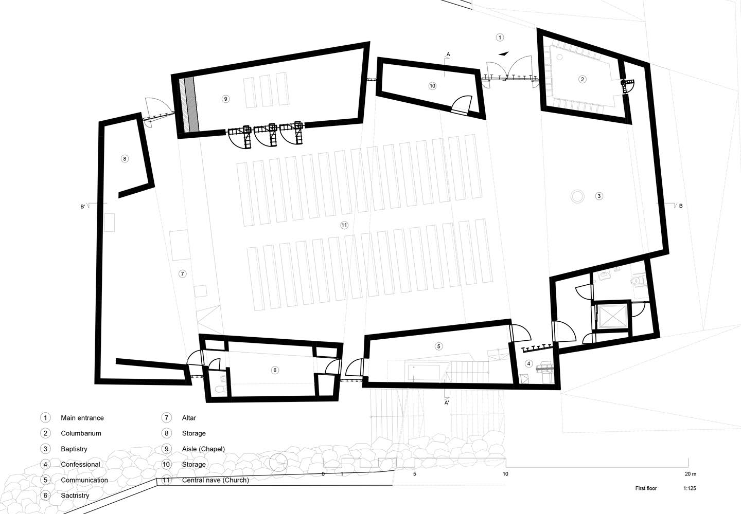
The construction of The Holy Redeemer Church took more than fifteen years and it has overlapped with the transformation process of Las Chumberas, which is a neighborhood of 670 homes from the 1970s, organized into 42 blocks, to which were later added shopping centers and industrial buildings. Menis conceived the Church as a necessary catalyst for the urban and social changes that were taking place in the neighborhood: in his vision, the new building should create a place where there was none, and contribute to giving Las Chumberas an identity of its own, establishing itself as a reference space in a confusing urban fabric. The resulting compound includes a Church, a community centre and a public square surrounded by greenery, that is, a public meeting place that the neighborhood needed.
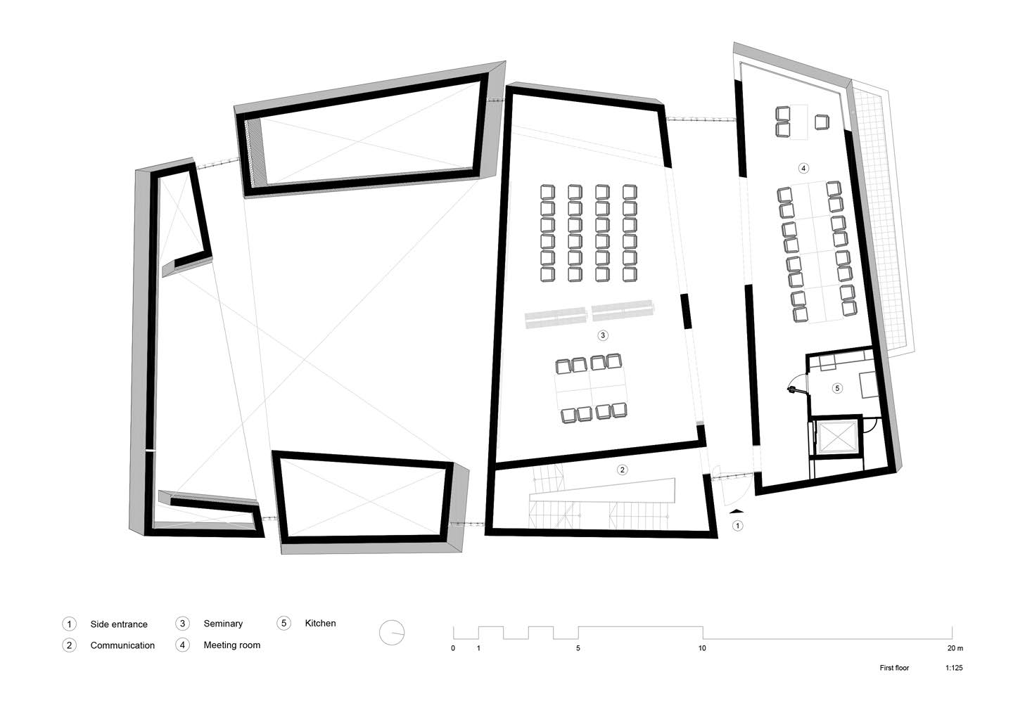
The building is also an example of collective action since the financing of the works has been carried out through donations from various organizations, many neighbors and some businessmen committed to the neighborhood where they were born and grew. The uneven rhythm of remittances is in fact what has determined the constructive logic of the project and its subsequent execution: a compound made up of four independent modules plus their surroundings, which has been delivered in phases. The community center, housed in two of the four volumes, was completed in 2008 and has been in use ever since while waiting to raise the necessary funds for the rest of the works.
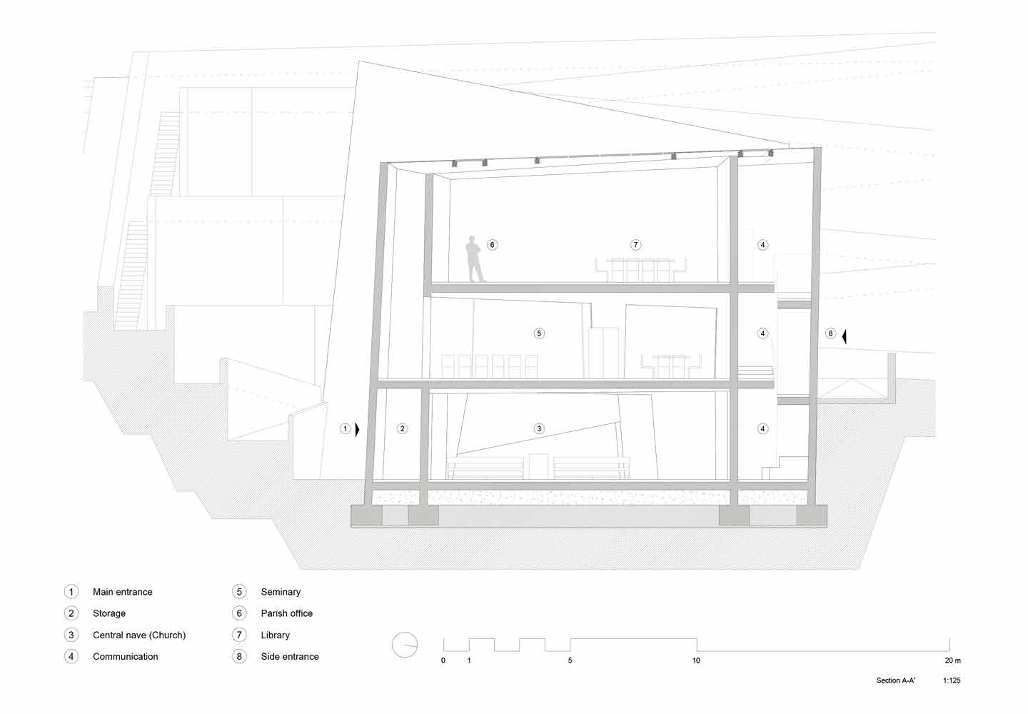
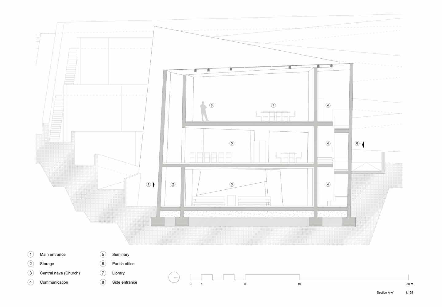
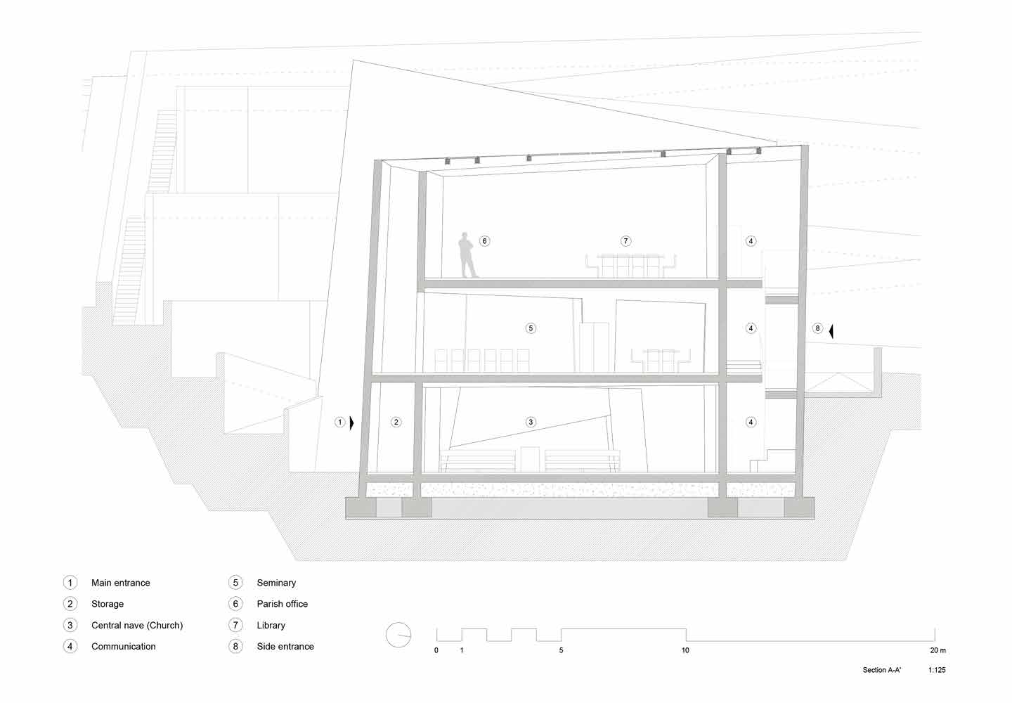
Inspired by the geology of the volcanic island, the building is embedded in the ground and rises with its four massive volumes resembling large restless rocks. The rough texture of the exposed concrete strikes a sharp contrast with the conventional residential context where it goes up. It is as if a geological phenomena had occurred on the outskirts, as if nature were fighting against banality. Its petrous volumes are separated by narrow cracks filled with sculptural structures made of metal and glass, through which daylight enters the building to configure an austere and stark compound, which relinquishes all superfluous elements.
The use of concrete as the main material in this building, addresses several aspects at the same time: exterior, interior, structure, form, matter and texture. First of all, it is a common material, accesible locally, which allows the architect to work only with local companies and materials, in accordance with the Km 0 architecture principles to which Menis adheres. Second, the energy efficiency provided by concrete, due to its isotropic nature, is enhanced here by the thermal inertia of the thick solid walls.
Finally, in terms of acoustics, concrete has been used here in two ways: for diffusion, conventional exposed concrete was used, while for absorption, the surface of the exposed concrete previously mixed with light porous volcanic stone (picón) was chipped. The acoustics thus achieved resemble the usual in the opera, suitable for speech and song, ideally designed for a building that combines ecclesiastical and social functions.

성스러운 예수 교회가 지어지기까지 15년 이상의 시간이 걸렸다. 1970년대부터 라스 첨베라스가 변화했던 기간과도 겹친다. 라스 첨베라스의 주변은 670가구와 42개의 블록으로 이루어져 있다. 나중에는 쇼핑센터와 산업 건물들도 들어섰다. 건축가는 교회를 주변에서 일어나고 있는 도시와 사회적 변화에서 중요한 기폭제로 생각했다. 또한, 새로운 건물에는 기존에 없던 새로운 공간을 만들어야 한다는 비전을 갖고 있었다. 라스 첨베라스만의 고유한 정체성을 부여하기 위해 노력했고 혼잡한 도시 구조 속에서 최고의 공간으로 자리매김했다. 그 결과, 건물에는 교회를 비롯하여 커뮤니티 센터, 녹지로 둘러싸인 광장이 있다. 이곳은 주변 거주자들의 만남의 장소가 되었다.
이 건물은 여러 기관과 다수의 주민, 몇몇 사업가들의 기부를 통해 프로젝트의 자금조달이 이루어지면서 진행된 집단행위의 사례다. 일정하지 않은 예산의 흐름은 실제로 프로젝트의 건설적 논리와 행정절차에 영향을 미치게 되었고 단계적으로 진행된 4개의 개별 모듈과 주변 환경으로 구성된 복합체를 이루었다. 4개 볼륨 중 2개의 볼륨에 있는 커뮤니티 센터는 2008년에 완공됐다. 그리고 프로젝트의 나머지 작업에 필요한 자금이 마련되는 동안에도 계속해서 사용되었다.
화산섬의 지질적 특성에서 영감을 받아 땅에 묻혀 있는 듯한 4개의 거대한 볼륨이 움직이지 않는 커다란 암석처럼 솟아 있다. 거친 느낌을 주는 노출 콘크리트는 기존 주거 환경과 뚜렷한 대조를 이룬다. 자연이 마치 평범함과 맞서 싸우는 것처럼 변두리에서 지질학적 현상이 일어난 것처럼 보인다. 암석의 부피는 금속과 유리 조각들로 채워진 좁은 균열에 의해 나누어 지는데 이곳을 통해 햇빛이 건물 안으로 들어오게 되고 모든 불필요한 요소들은 엄격하고 완전한 화합물이 된다.
이 건물의 주재료로 콘크리트를 사용하여 외부와 내부를 비롯해 구조, 형태, 물질, 질감 등 여러 가지 측면을 동시에 해결했다. 우선, 건축가가 고수하는 0Km 건축 원칙에 따라 건축가가 지역 내 회사와 자재만을 이용하여 작업할 때에 지역 내에서 구할 수 있는 공통 자재를 사용했다. 둘째, 콘크리트를 통해 얻게 되는 에너지 효율은 공간의 방향과 상관없이 동일한 특성과 두껍고 단단한 벽에 의해 생기는 열 관성에 의해 향상된다.
마지막으로 음향적 측면에서 콘크리트는 두 가지 방식으로 사용된다. 확산을 위해 기존 노출 콘크리트를 사용하고 흡수를 위해 가벼운 다공성 화산암(피콘)을 쪼개서 혼합한 노출 콘크리트 표면을 사용했다. 이렇게 만들어진 음향적 특성은 오페라에서 흔히 볼 수 있는 것과 유사하여 노래나 연설을 하기에 적합하고 사회적 기능을 결합한 교회 건물에 이상적인 설계다.































Architects Fernando Menis
Location Las Chumberas, La Laguna, Tenerife island, Canary Islands, Spain
Site area 1,590㎡
Building area 538㎡
Gross floor area 833.91㎡
Height 16.90m
Design period 2004 - 2005
Construction period 2005 - 2008(Community Centre), 2021 (Church), 2022 (Environment)
Structure Reinforced concrete
Design team Babak Asadi, Juan Bercedo, María Berga, Roberto Delgado, Javier Espílez, Andrés Ferrer, Niels Heinrich, Yanira León, Joanna Makowska Czerska, Paula Manzano, Natalia Pyzio, Raúl Rivera, Gerardo Rodríguez, Esther Senís, Andreas Weihnacht, Julia Zasada
Construction CONSTRUCCIONES CAROLINA, CONSTRUCCIONES ÁTICO (Mercedes Suárez, Francisco José Tejera), SOLVENTIA INGENIERÍA Y CONSTRUCCIÓN.
Photographer Hisao Suzuki, Patri Campora, Simona Rota
해당 프로젝트는 건축문화 2022년 6월호(Vol. 493)에 게재되었습니다.
The project was published in the June, 2022 recent projects of the magazine(Vol. 493).
June 2022 : vol. 493
Contents : RECORDS A NEW SPACE PROPOSAL THAT REFLECTS PERSONAL PREFERENCES OUTSIDE THE CITY CENTER 도심 밖, 개인의 취향을 반영한 새로운 공간 제안 CALL FOR ENTRIES: ‘SEOUL AR..
anc.masilwide.com
'Architecture Project > Religious' 카테고리의 다른 글
| SHAER MOHAMMAD PARA JAME MOSQUE (0) | 2022.10.14 |
|---|---|
| MOSQUE OFREFLECTION (0) | 2022.10.13 |
| TAMKANG CHURCH (0) | 2022.10.11 |
| CLIFFORD’S TOWER (0) | 2022.10.05 |
| EXTENSIONS TO GOSAN CATHEDRAL (0) | 2022.09.14 |
마실와이드 | 등록번호 : 서울, 아03630 | 등록일자 : 2015년 03월 11일 | 마실와이드 | 발행ㆍ편집인 : 김명규 | 청소년보호책임자 : 최지희 | 발행소 : 서울시 마포구 월드컵로8길 45-8 1층 | 발행일자 : 매일



