
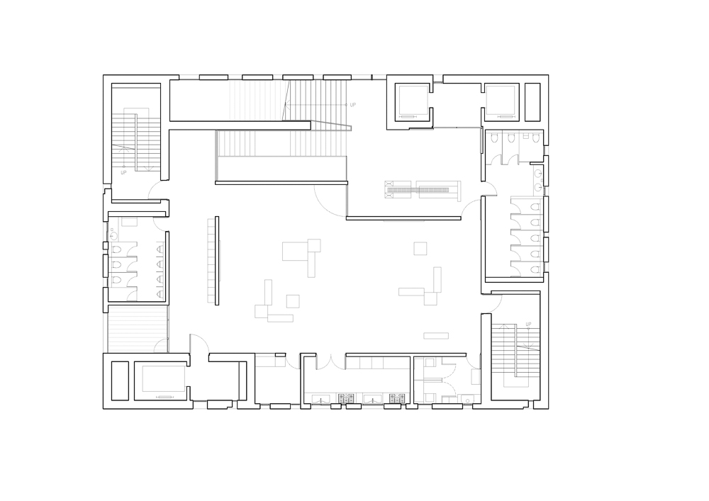
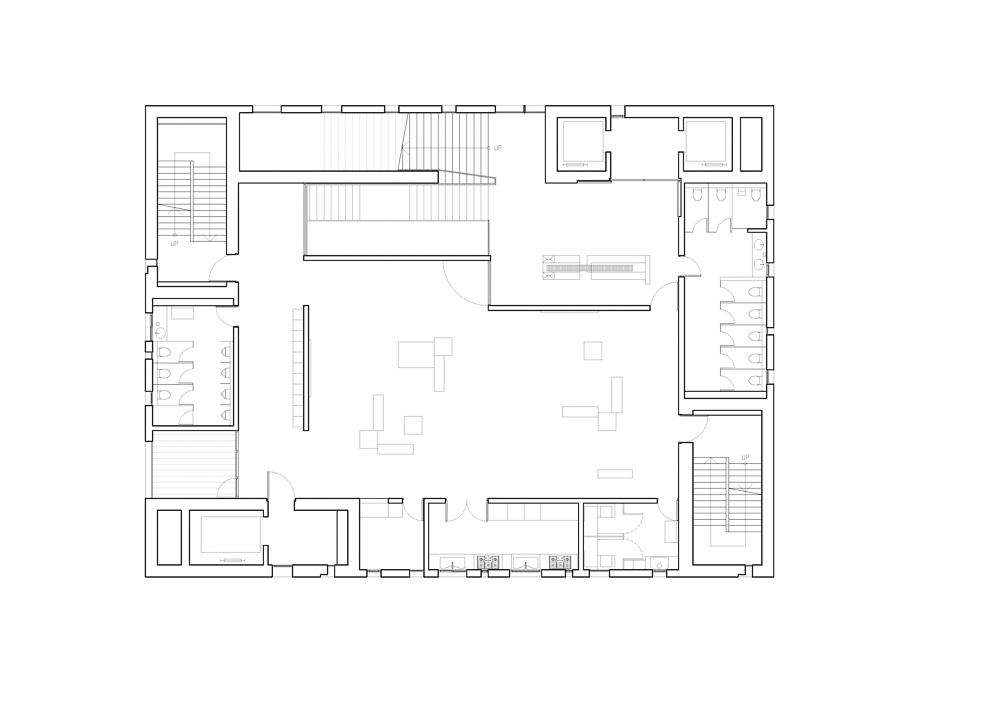
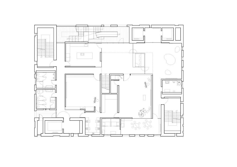
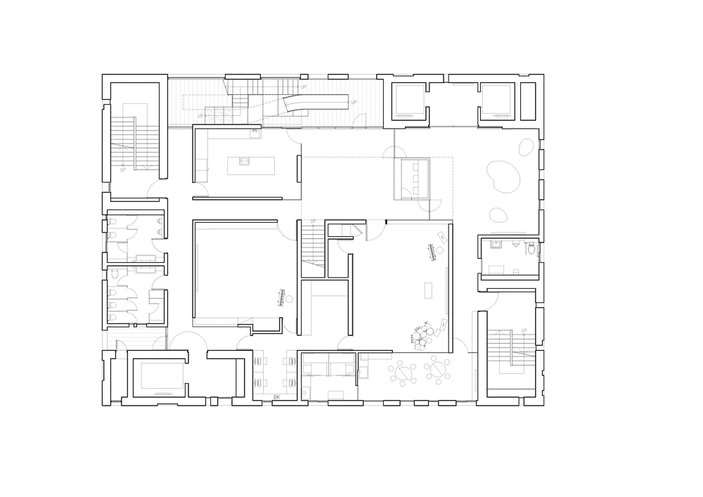
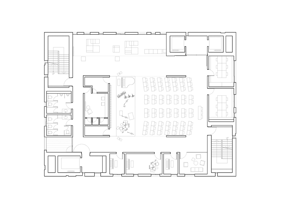
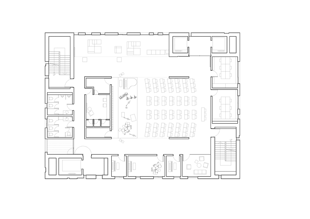
All church buildings are built with the hope of interpreting the Christian doctrine perspective of the world (weltanschauung in German). Tamkang Church emphasizes eternity, universality and community.
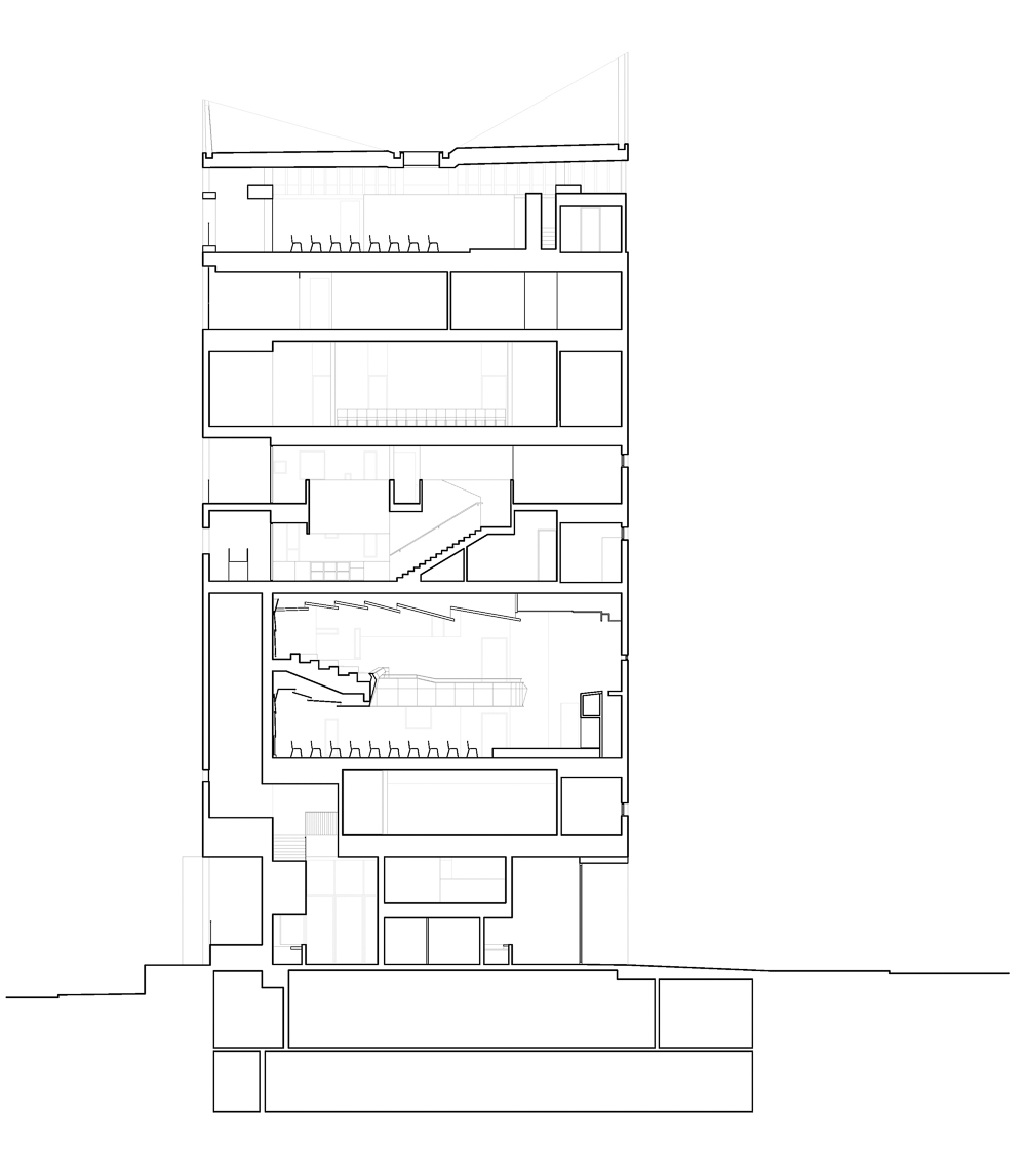
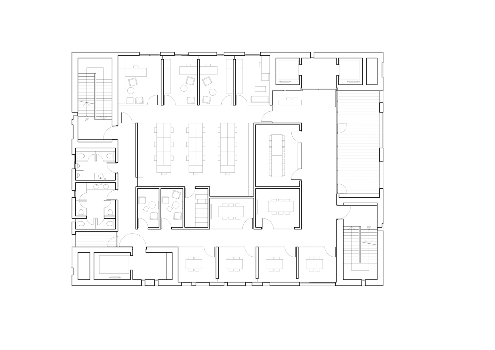
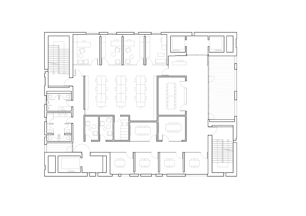
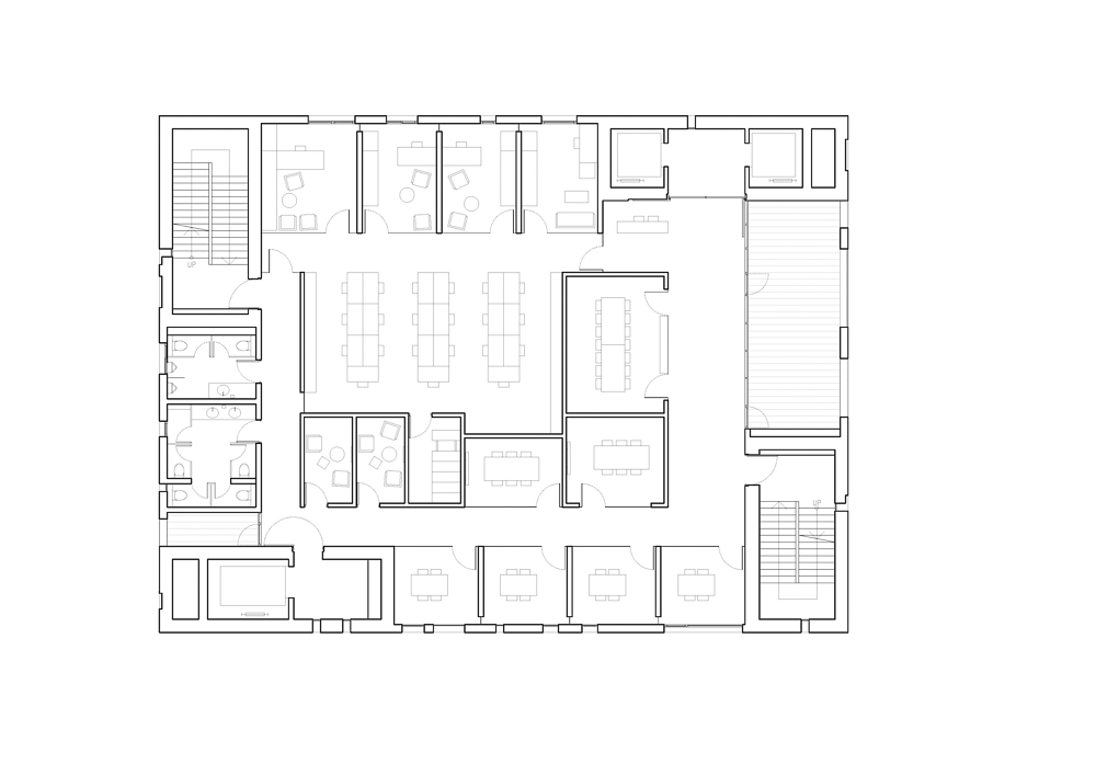
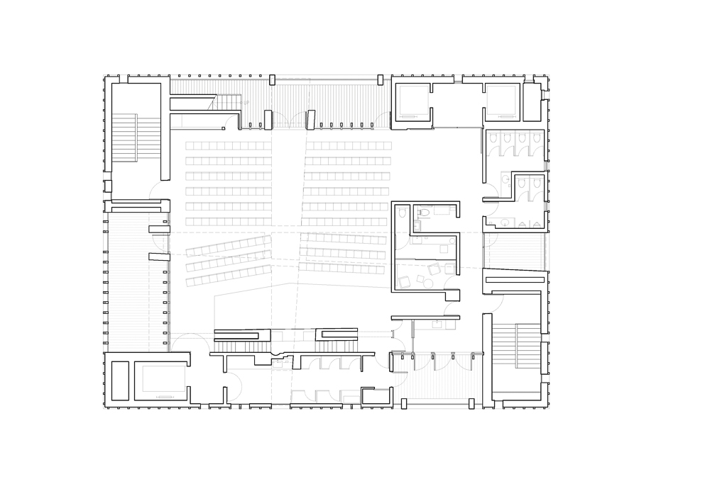
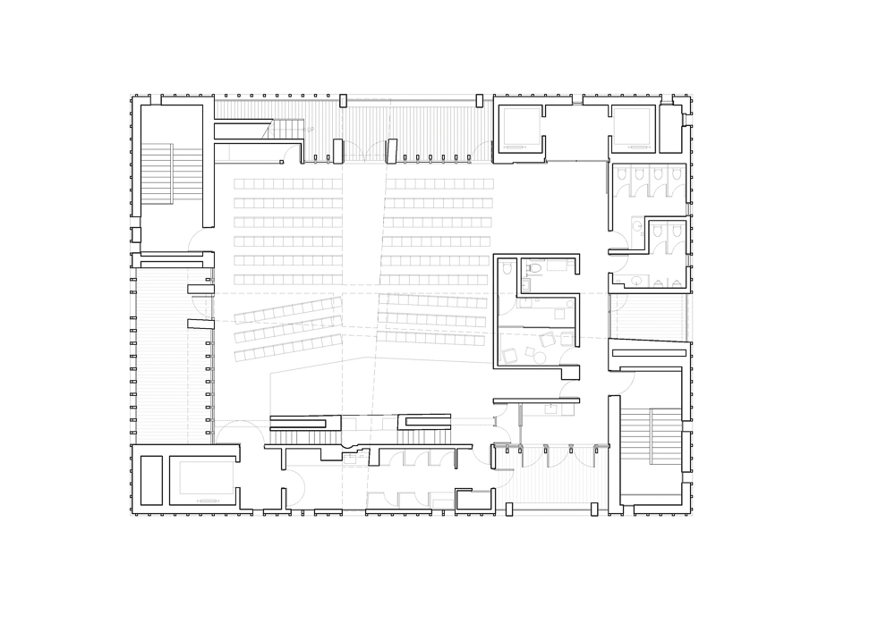
Because of the difficulty to acquire land rights and the crowdedness of metropolitan spaces in Taiwan, religious architecture in this country often ought to confront the distance between man and heaven caused by the vertical massing of buildings. Unlike European churches that are able to create sanctity through structure, elevated space and mysterious lighting between the ground level and roof, the Tamkang Church also has to face the challenge of fulfilling the building code and floor area requirements by vertically stacking both the day‐to‐day and sacred spaces of the church. How to build a holy and sanctified place that embraces the love and compassion within the society is the most critical focus on the design of the Tamkang Church.
The architecture of cathedrals often uses the cruciform shape as the main element to organize its space; the design concept of the Tamkang Church is also based on the cross, but in a broader sense. It interweaves people’s lives through the church celebrations and their daily life and brings nature into the city life The site is located on the northernmost side of the island of Taiwan, Danhai in New Taipei City is a windy and rainy city in the coastline. The building faces the harsh conditions of this sea shore and embraces the beautiful scenery of this environment. Although, the customized thick double layered walls can be used as an architectural element that regulates the climate they as well play the role of intertwining lives within the space.
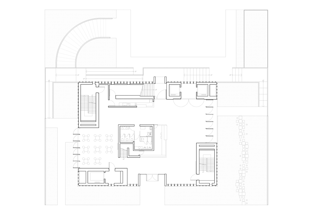
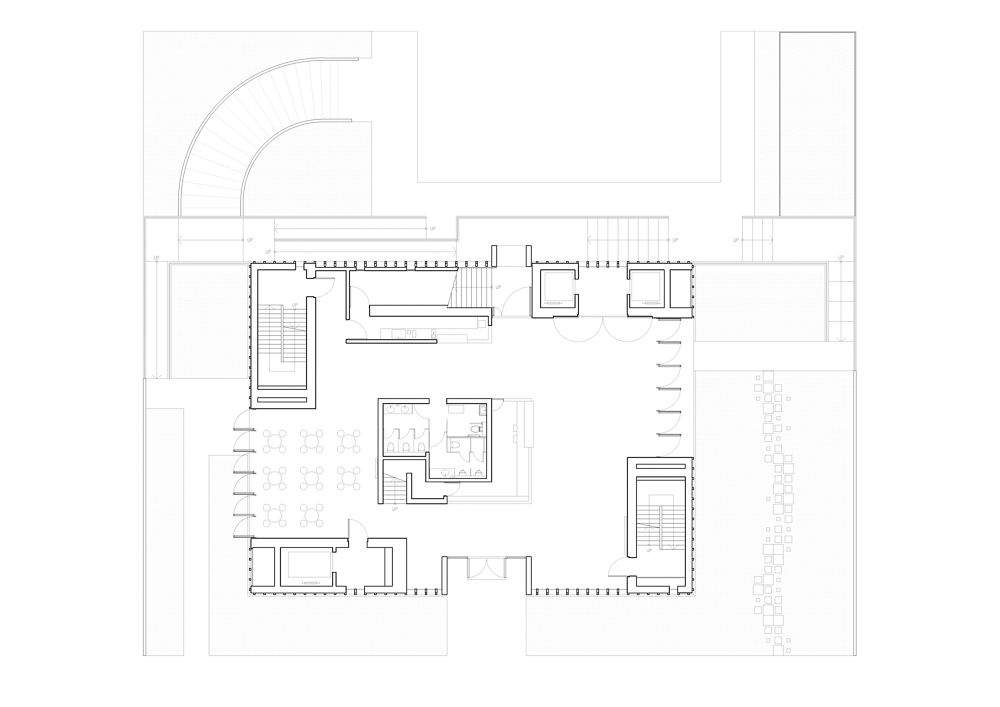
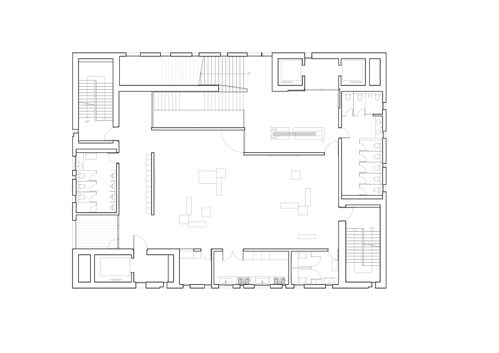
Churches in Taiwan play a different role in the society than they do in Europe. Pastor Juang from the Tamkang Church once said that the Tamkang Church would be a church where anyone would be welcome, and he wanted to put the focus on its role of social welfare-under the premise of recognizing “everyone is a sinner,” and “nobody is perfect,” it would help remedy the defects in the society. Thus, the Tamkang Church leaves more than half of their facilities to be used as a social welfare center, emphasizing communication but not hierarchy, security but not distance. The architecture must reflect on its social responsibility, bearing the cross to serve this land.

탐강 교회
모든 교회 건물은 기독교 교리의 관점에서 세계를 이해하려는 염원을 담고 지어진다(독일어로 weltanschauung). 탐강 교회는 영원성, 보편성, 공동체를 강조한다.
대만의 경우, 토지권 획득의 어려움과 대도시 공간의 혼잡 탓에 종교 건축물은 건물의 수직 볼륨으로 사람과 하늘 사이의 거리적 문제에 직면해야 하는 경우가 많다. 구조, 높은 공간, 지상과 지붕 사이의 신비한 조명을 사용해 신성함을 드러내는 유럽 교회와는 다르게 탐강 교회는 교회라는 신성한 공간에 건물을 하나하나 쌓아 올릴 때 필요한 법규와 바닥 면적에 요구되는 사항을 충족해야 했다. 사회 안에서 사랑과 긍휼을 품은 거룩하고 성결한 곳을 어떻게 짓느냐가 탐강교회 설계에서 가장 중요한 초점이다.
대성당 건축의 경우, 주요 요소로 십자가 형태를 사용하여 공간을 구성하기도 한다. 마찬가지로 탐강 교회의 디자인도 십자가 형태를 기본 틀로 삼고 있다. 더 넓은 의미에서 교회 행사와 일상생활을 통해 사람들의 삶을 엮어 도시 생활에 자연을 불어넣은 듯하다. 이곳은 대만 섬의 최북단에 있다. 신베이 시의 단하이는 바람이 많이 부는 해안가의 비가 오는 도시다. 이 건물은 해안가라는 가혹한 조건이 있지만, 주변에는 아름다운 풍경이 있다. 맞춤 제작한 두꺼운 이중 벽체는 기후를 조절할 수 있는 건축 요소로 사용되기도 하고 공간 내에서 삶을 엮는 역할도 한다.
사회에서 대만 교회의 역할과 유럽 교회의 역할은 다르다. 탐강 교회의 주앙 목사는 “탐강 교회는 누구든지 환영해주는 교회가 될 것이고 ‘모든 사람은 죄인이다’, ‘완벽한 사람은 없다’라는 전제를 바탕으로 사회복지 역할에 중점을 두어 사회의 결함을 개선하는 데 도움이 될 것”이라고 했다. 탐강교회는 시설의 절반 이상을 사회복지시설로 남겨두었고 위계가 아닌 소통을, 거리가 아닌 안전을 강조한다. 이 땅의 구원을 위해 십자가를 지었던 것처럼 건축에도 사회적 책임을 반영해야 한다.








































Architects Behet Bondzio Lin Architekten
Location Tamsui District, Taipei, Taiwan
Site area 1,538㎡
Building area 507㎡
Gross floor area 6,340㎡
Building scope B2, 11F
Height 50m
Project team Behet Bondzio Lin Architekten, Fuguach Architecture, Yen Partnership Architects
Design period 2013 - 2020
Construction period 2017 - 2021
Client Promised Land Church
Photographer YuChen Chao Photography
해당 프로젝트는 건축문화 2022년 6월호(Vol. 493)에 게재되었습니다.
The project was published in the June, 2022 recent projects of the magazine(Vol. 493).
June 2022 : vol. 493
Contents : RECORDS A NEW SPACE PROPOSAL THAT REFLECTS PERSONAL PREFERENCES OUTSIDE THE CITY CENTER 도심 밖, 개인의 취향을 반영한 새로운 공간 제안 CALL FOR ENTRIES: ‘SEOUL AR..
anc.masilwide.com
'Architecture Project > Religious' 카테고리의 다른 글
| MOSQUE OFREFLECTION (0) | 2022.10.13 |
|---|---|
| THE HOLY REDEEMER CHURCH AND COMMUNITY CENTRE (0) | 2022.10.12 |
| CLIFFORD’S TOWER (0) | 2022.10.05 |
| EXTENSIONS TO GOSAN CATHEDRAL (0) | 2022.09.14 |
| MOSQUE OF REFLECTION (0) | 2022.09.01 |
마실와이드 | 등록번호 : 서울, 아03630 | 등록일자 : 2015년 03월 11일 | 마실와이드 | 발행ㆍ편집인 : 김명규 | 청소년보호책임자 : 최지희 | 발행소 : 서울시 마포구 월드컵로8길 45-8 1층 | 발행일자 : 매일



