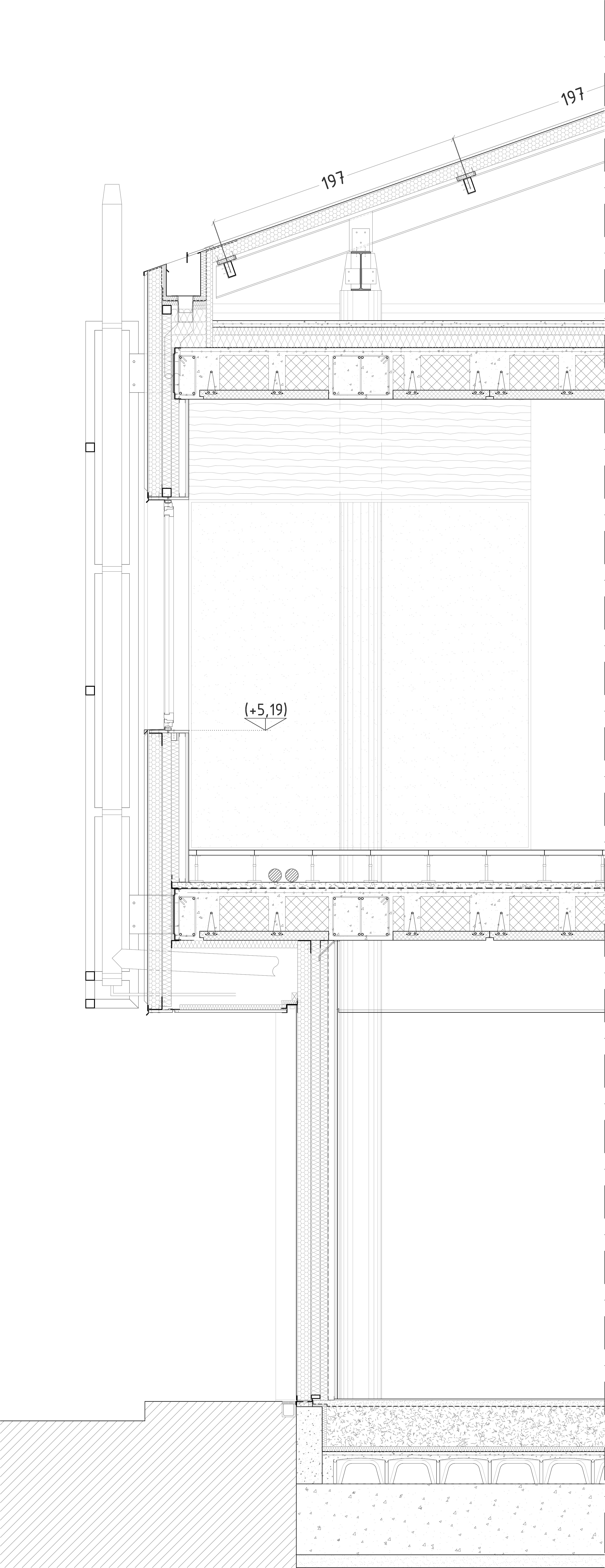
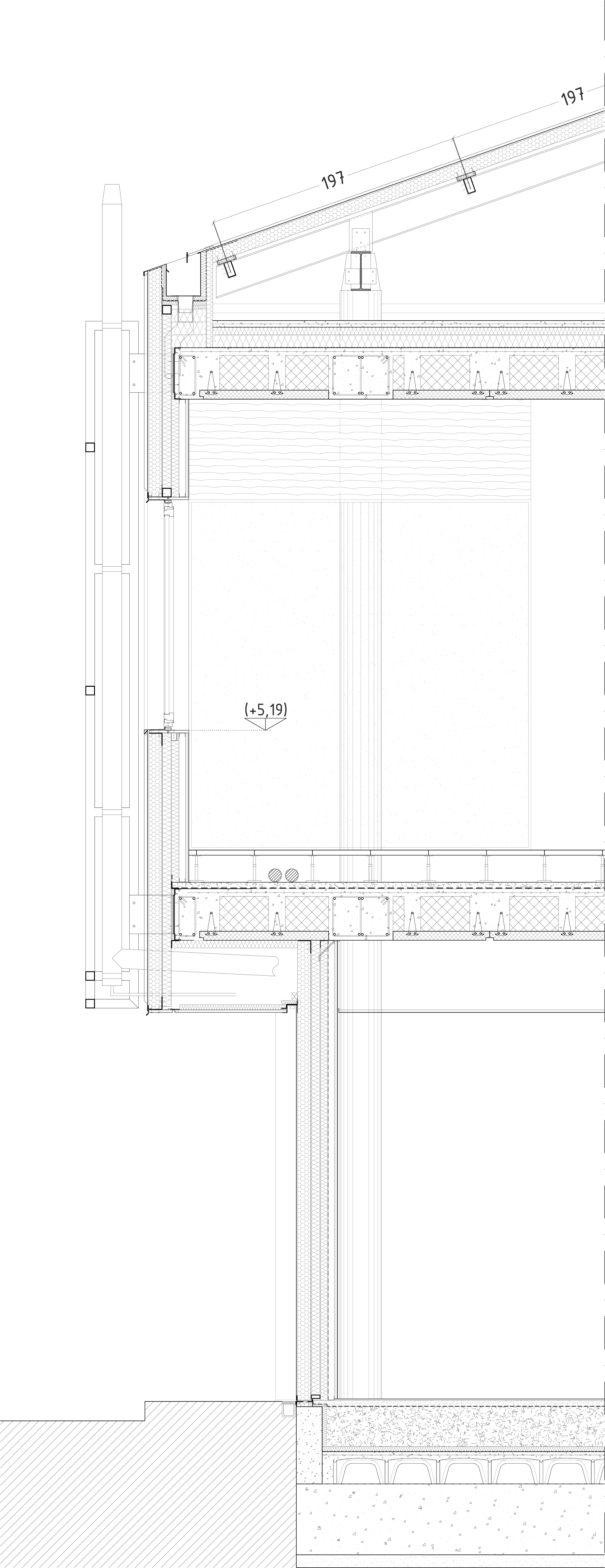
MERIEUX NUTRISCIENCES HEADQUARTERS
The Merieux Nutrisciences is a multinational company which is dealing with chemical analyses and microbiological for the food&nutrition, ambiental, pharma, cosmetic, consumer goods, packaging and a..
anc.masilwide.com




Architects Iscattolin
Location Resana, Treviso, Italy
Completion 2018
Photographer Marco Zanta
반응형
'Detail' 카테고리의 다른 글
| [Facede, Balcony, Window] MORE WITH LESS (0) | 2022.07.22 |
|---|---|
| [Exterior Wall] MIZU MORI JAPANESE RESTAURANT (0) | 2022.07.21 |
| [Exterior Wall] 333 Kingsland Road & Hackney New Primary School (0) | 2022.07.19 |
| [Facade, Rooftop Crane] O6A LOT HOUSING (0) | 2022.07.18 |
| [Roof, Joint] THE BRAUNSTEIN TAPHOUSE (0) | 2022.07.15 |
마실와이드 | 등록번호 : 서울, 아03630 | 등록일자 : 2015년 03월 11일 | 마실와이드 | 발행ㆍ편집인 : 김명규 | 청소년보호책임자 : 최지희 | 발행소 : 서울시 마포구 월드컵로8길 45-8 1층 | 발행일자 : 매일



