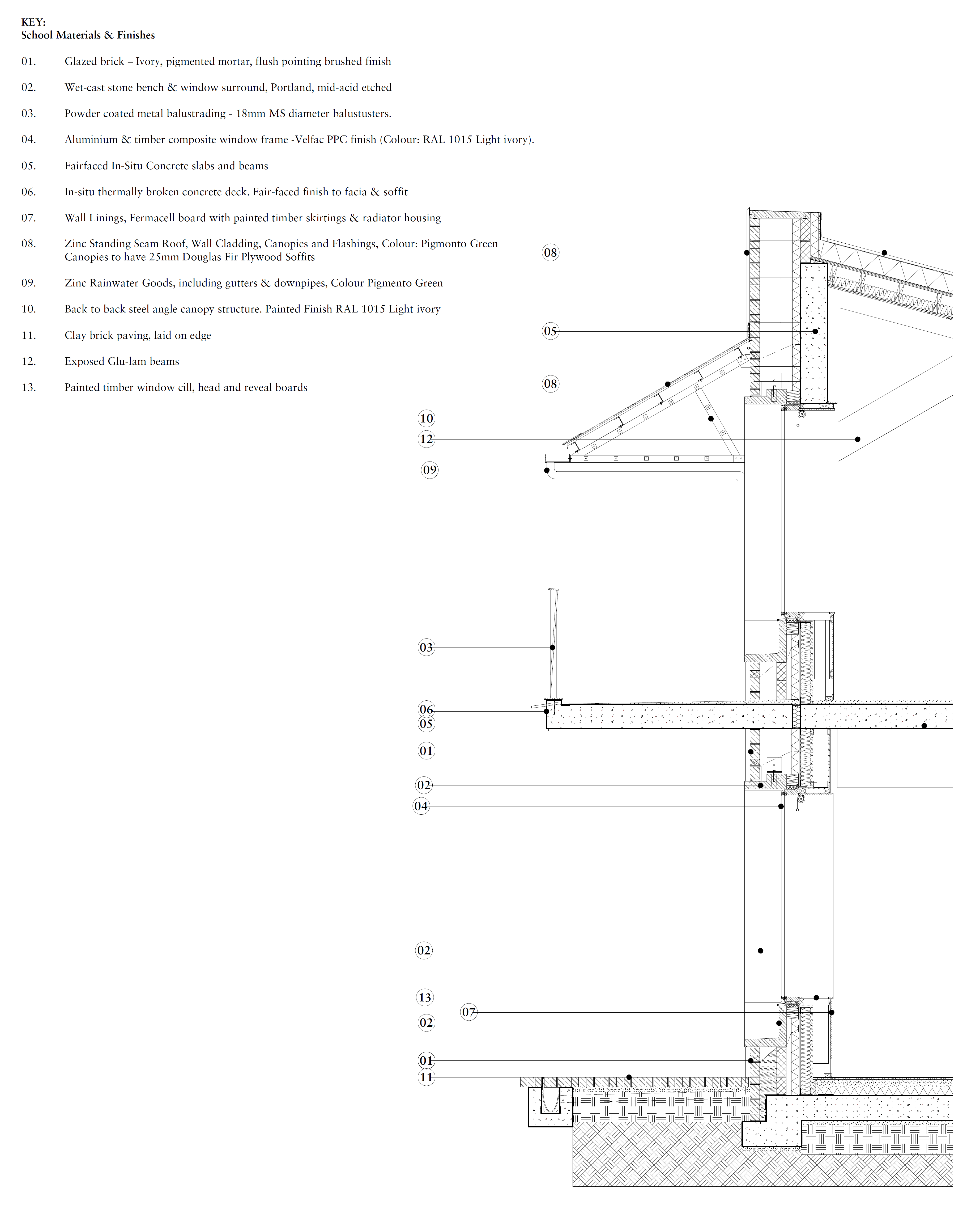
333 Kingsland Road & Hackney New Primary School
Located on Kingsland Road, one of Hackney’s busy arterial roads on the edge of a conservation area, Hackney New Primary School combines a community-led school with affordable homes and shops at st..
anc.masilwide.com


Architects Henley Halebrown
Location 333 Kingsland Road, London, United Kingdom
Completion 2020
Photographer Nick Kane
반응형
'Detail' 카테고리의 다른 글
| [Exterior Wall] MIZU MORI JAPANESE RESTAURANT (0) | 2022.07.21 |
|---|---|
| [Section] MERIEUX NUTRISCIENCES HEADQUARTERS (0) | 2022.07.20 |
| [Facade, Rooftop Crane] O6A LOT HOUSING (0) | 2022.07.18 |
| [Roof, Joint] THE BRAUNSTEIN TAPHOUSE (0) | 2022.07.15 |
| [Exterior Wall, Sunken] LAND COMMUNITY CENTER (0) | 2022.07.14 |
마실와이드 | 등록번호 : 서울, 아03630 | 등록일자 : 2015년 03월 11일 | 마실와이드 | 발행ㆍ편집인 : 김명규 | 청소년보호책임자 : 최지희 | 발행소 : 서울시 마포구 월드컵로8길 45-8 1층 | 발행일자 : 매일



