
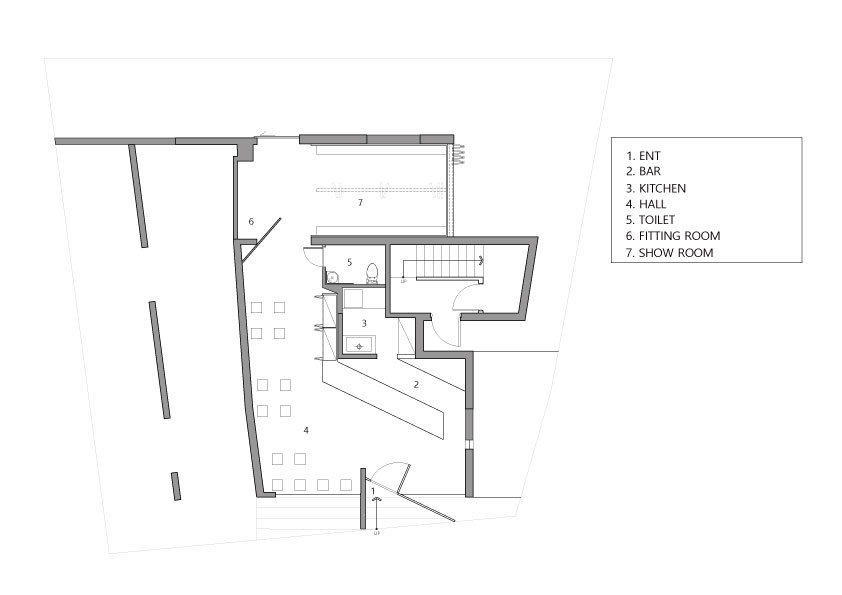
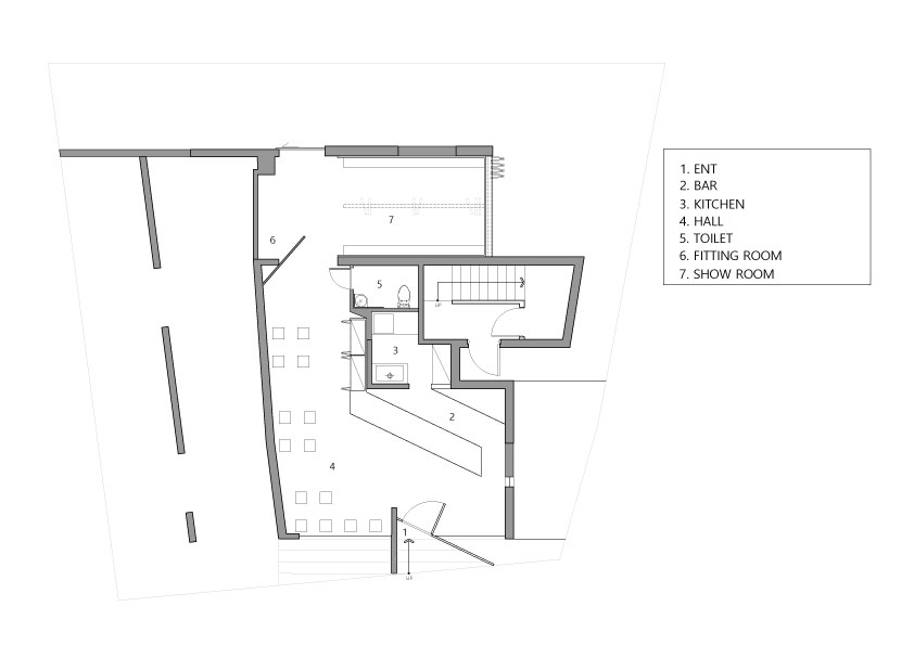
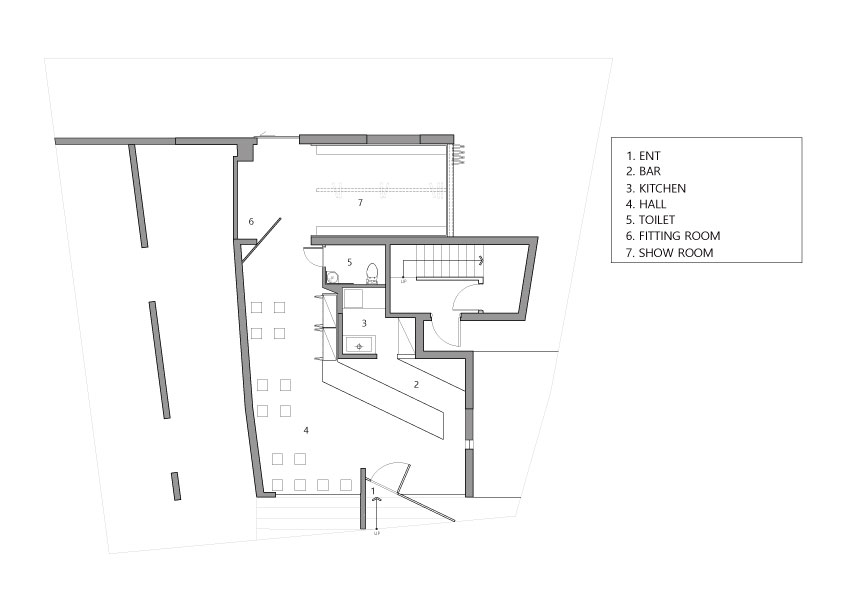
The Slit Cafe is located in a quiet, quiet alley a little away in front of Hongdae, a bustling street in Seoul. It is a space that requires versatility as it is located in a niche in the neighborhood of the busy street and has a launching plan as a fashion brand at the same time. The focus was on conceptualizing the gaps between existence and absence and understanding the totality of slits, even if part of this space is experienced in the small space that each structure creates.
So even if we all look from different locations, the flow of the diagonal structure continues the same, whether inside, outside, or anywhere. Through this process, we planned to customers feel the same flow, identity and the atmosphere created by the slit.
And it was important to create the environment itself, especially considering the connectivity with the surroundings. You can relax by yourself, and have your own space where you can make noise, and at the same time all these separate places are open and connected to each other through the same flow. Not just creating a gap in the Facade plan, but a three-dimensional slit occurs in the form of a huge mass penetrating. By doing so, we wanted to control light properly and naturally control light over time and create an appropriate atmosphere without the need to artificially control light. The slit of a triangle is an identity, as well as a trace of an existing entrance. The facade that harms the existing building landscape was removed and changed the material as the one of the entire building, but only with different colors was used to finish.

슬릿 카페는 서울의 번화한 거리인 홍대 앞 조금 떨어진 조용하고 한적한 골목에 위치해 있다. 번화가 인근 틈새에 자리 잡은 데다 패션 브랜드로서의 런칭 계획도 동시에 갖고 있어 다재다능함이 요구되는 공간이다. 존재와 부재 사이의 차이를 개념화하고 정체성을 이해하며, 공간의 일부가 각 구조물이 만들어내는 작은 공간에서 사용자들이 경험할 수 있도록 설계되었다. 모두가 다른 위치에서 바라본다고 해도, 내부 또는 외부, 대각선 구조의 흐름은 계속된다. 내 외부의 동일한 흐름을 연출하였고, 그 과정에서 공간의 구조를 고객이 느낄 수 있도록 계획했다. 단순히 파사드 평면상에 틈새를 만드는 것이 아니라 거대한 덩어리가 관통하는 형태로 3차원 슬릿이 발생한다. 이를 통해 빛을 적절히 조절하고 시간이 지남에 따라 자연스럽게 빛을 조절하여 인공적으로 빛을 조절할 필요 없는 분위기를 조성하고자 초점을 두었다.














Design : ARTEFACT
Location : Seogyo-dong 364-29, Mapo-gu, Seoul, Republic of korea
Gross floor area : 73m2
Photography : Inwoo Yeo
'Interior Project > Cafe&Restaurant' 카테고리의 다른 글
| PINOCCHIO (0) | 2022.07.11 |
|---|---|
| will.b Bakery Cafe (0) | 2022.07.08 |
| EGEO (0) | 2022.06.21 |
| Baovan restaurant (0) | 2022.06.20 |
| Mansion Feast (0) | 2022.06.16 |
마실와이드 | 등록번호 : 서울, 아03630 | 등록일자 : 2015년 03월 11일 | 마실와이드 | 발행ㆍ편집인 : 김명규 | 청소년보호책임자 : 최지희 | 발행소 : 서울시 마포구 월드컵로8길 45-8 1층 | 발행일자 : 매일



