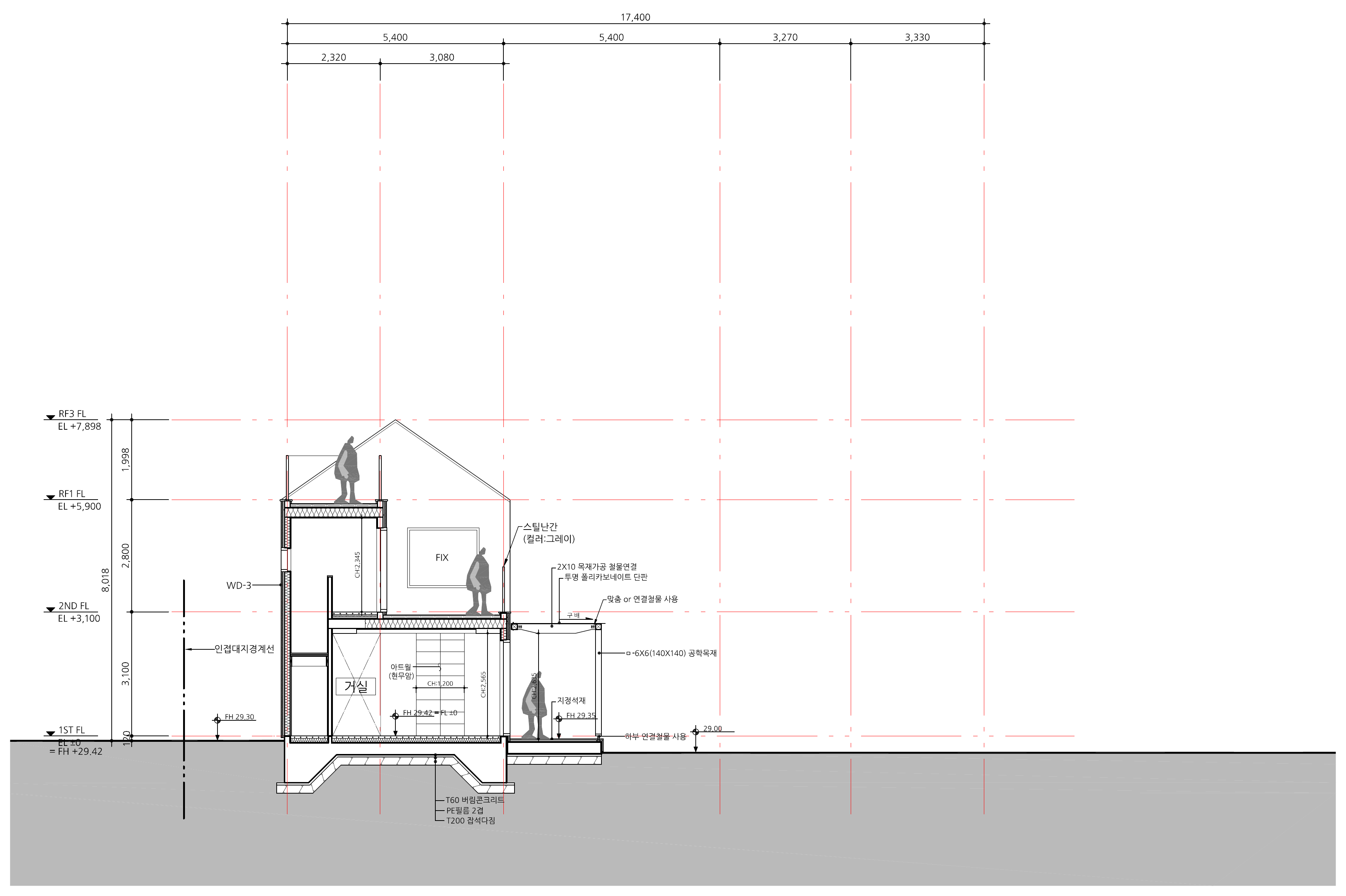
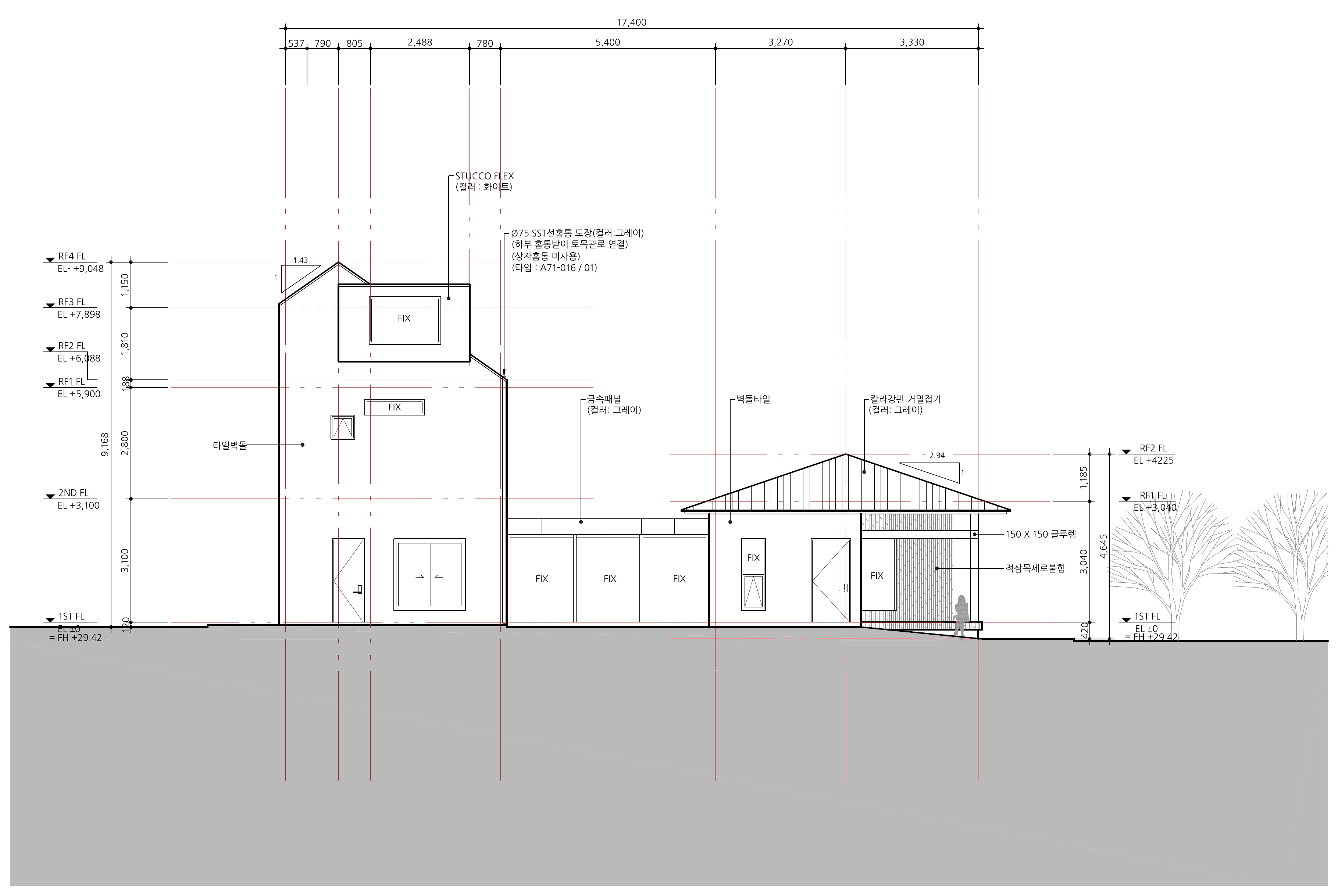
JAEHO HOUSE
The client came to Seoul from Jeju Island when he was young, and now he has reached the age of retirement beyond middle age, returning to the place where he was born and raised again, off the coast..
anc.masilwide.com




Architects JNPeople Architects
Location Namwon-eup, Seogwipo-si, Jeju-do, Republic of Korea
Photographer Donggyu Yoon
반응형
'Detail' 카테고리의 다른 글
| [Window] HAHYUNGAE (0) | 2022.05.31 |
|---|---|
| [Parapet, Piloti] SIMON HOUSE (0) | 2022.05.30 |
| [Section] SWISSHOUSE XXXVI (0) | 2022.05.26 |
| [Section] IWAKURA HOUSE (0) | 2022.05.25 |
| [Roof, Floor] HOUSE LHOTKA (0) | 2022.05.24 |
마실와이드 | 등록번호 : 서울, 아03630 | 등록일자 : 2015년 03월 11일 | 마실와이드 | 발행ㆍ편집인 : 김명규 | 청소년보호책임자 : 최지희 | 발행소 : 서울시 마포구 월드컵로8길 45-8 1층 | 발행일자 : 매일



