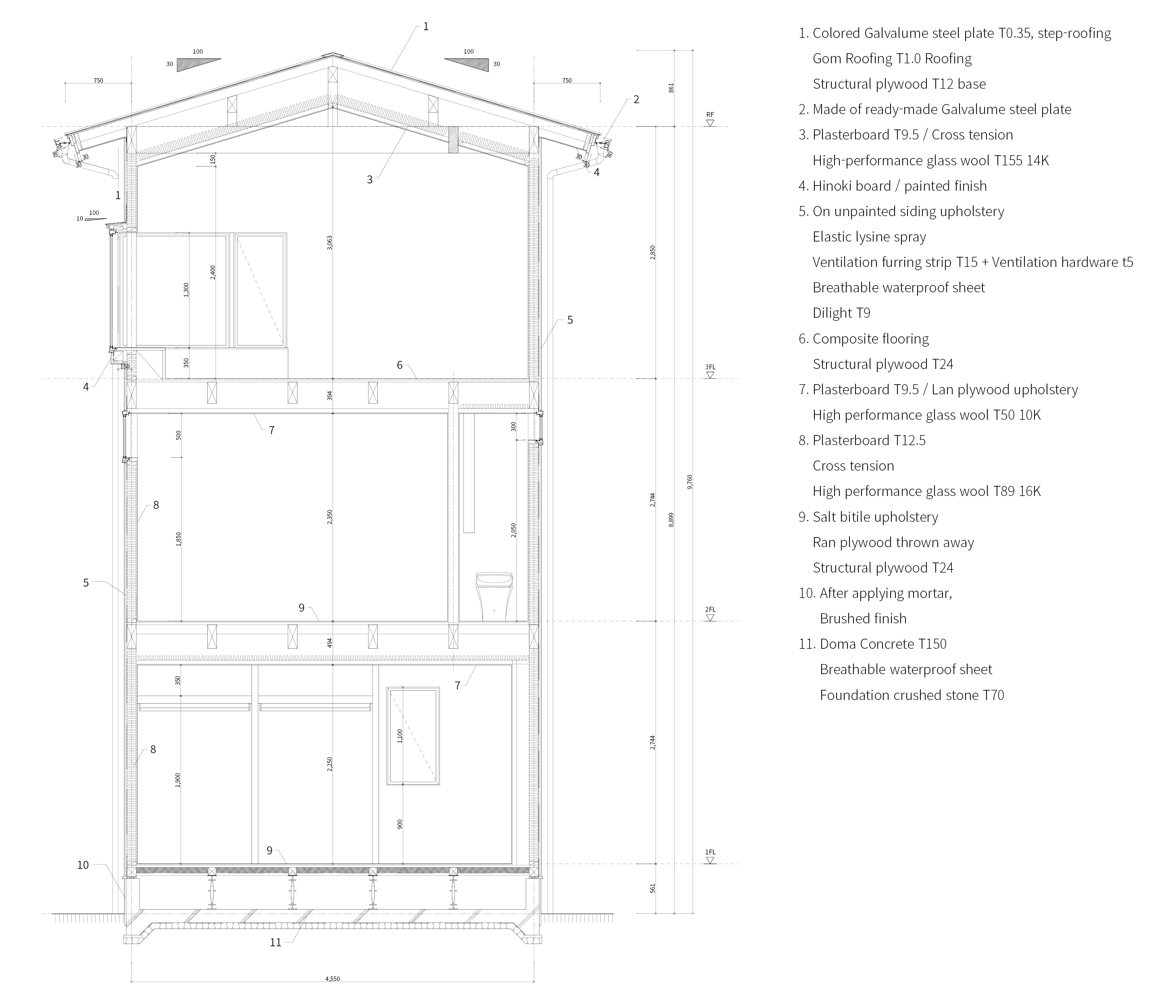
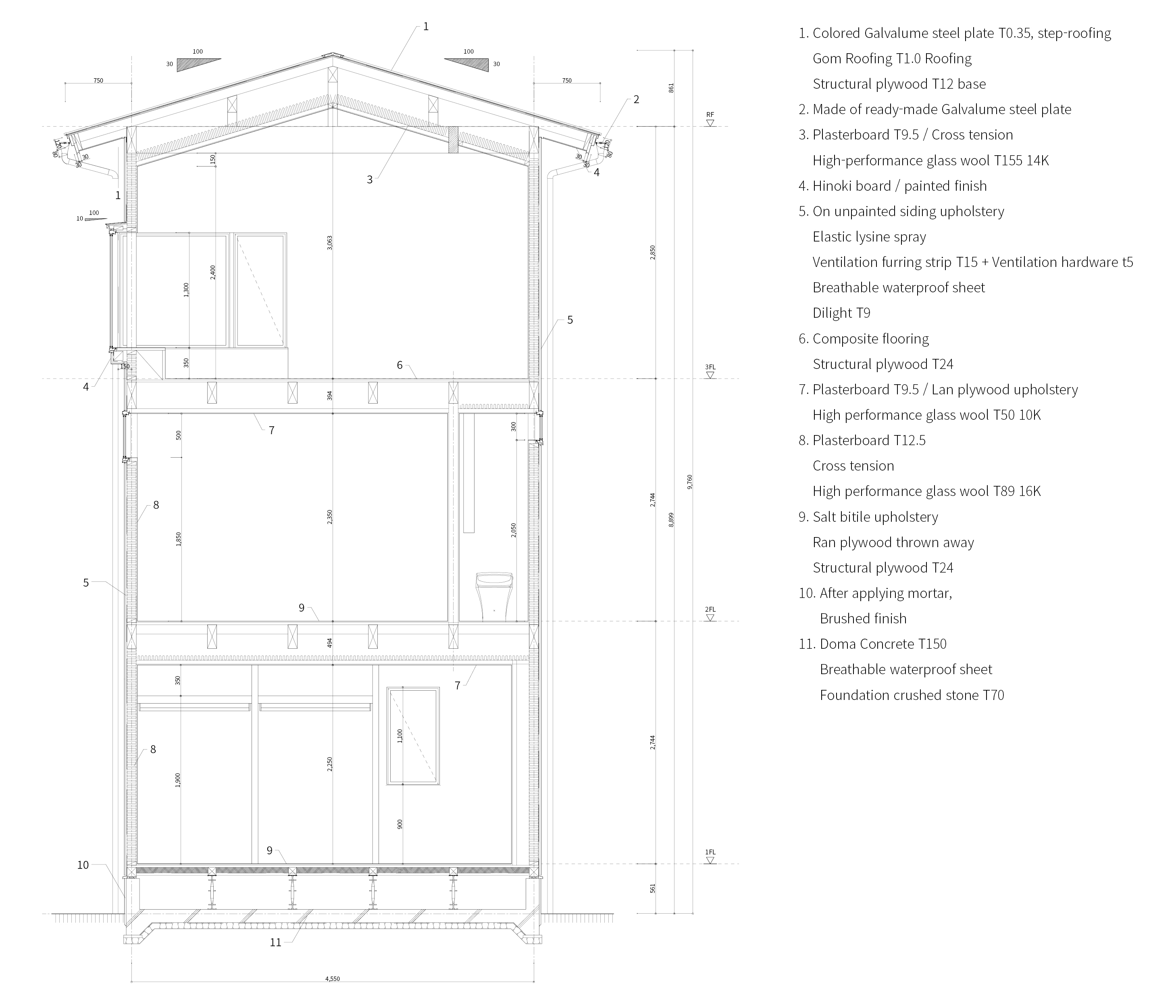
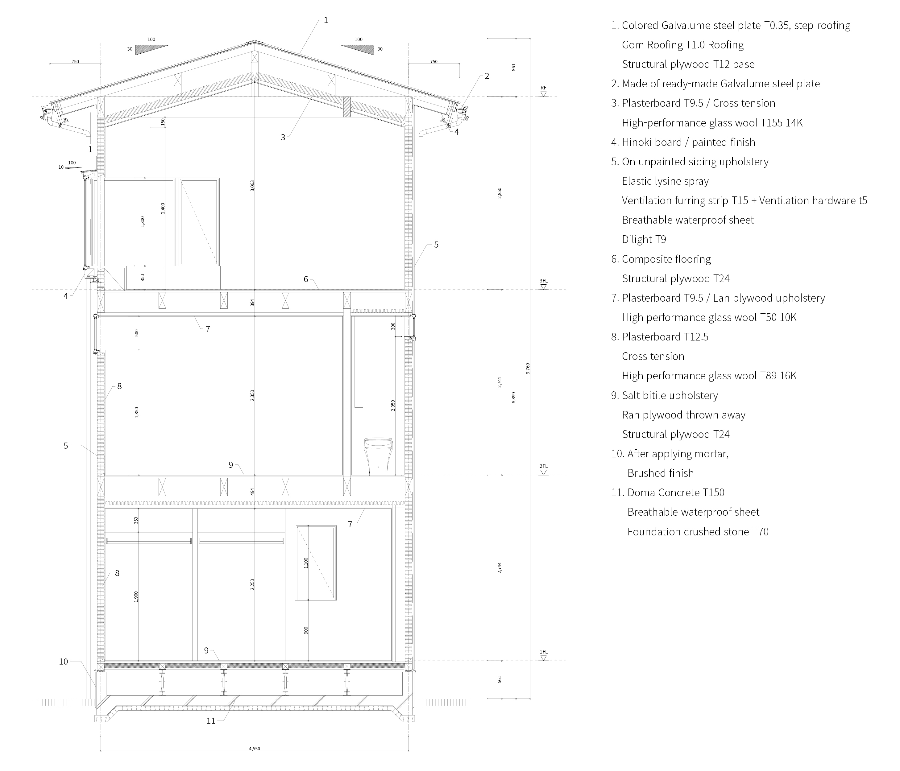
IWAKURA HOUSE
We constructed a new house at the corner of a quiet residential neighborhood in Sakyo-ward, Kyoto, after demolishing the existing building on the lot. The former building had a three-story structur..
anc.masilwide.com


Architects ALTS Design Office
Location Kyoto, Japan
Completion 2021. 05
Photographer I.T.P Planning
반응형
'Detail' 카테고리의 다른 글
| [Section] JAEHO HOUSE (0) | 2022.05.27 |
|---|---|
| [Section] SWISSHOUSE XXXVI (0) | 2022.05.26 |
| [Roof, Floor] HOUSE LHOTKA (0) | 2022.05.24 |
| [Roof] FENDALTON HOUSE (0) | 2022.05.23 |
| [Terrace] TTARO TTO GACHI HOUSE (0) | 2022.05.20 |
마실와이드 | 등록번호 : 서울, 아03630 | 등록일자 : 2015년 03월 11일 | 마실와이드 | 발행ㆍ편집인 : 김명규 | 청소년보호책임자 : 최지희 | 발행소 : 서울시 마포구 월드컵로8길 45-8 1층 | 발행일자 : 매일



