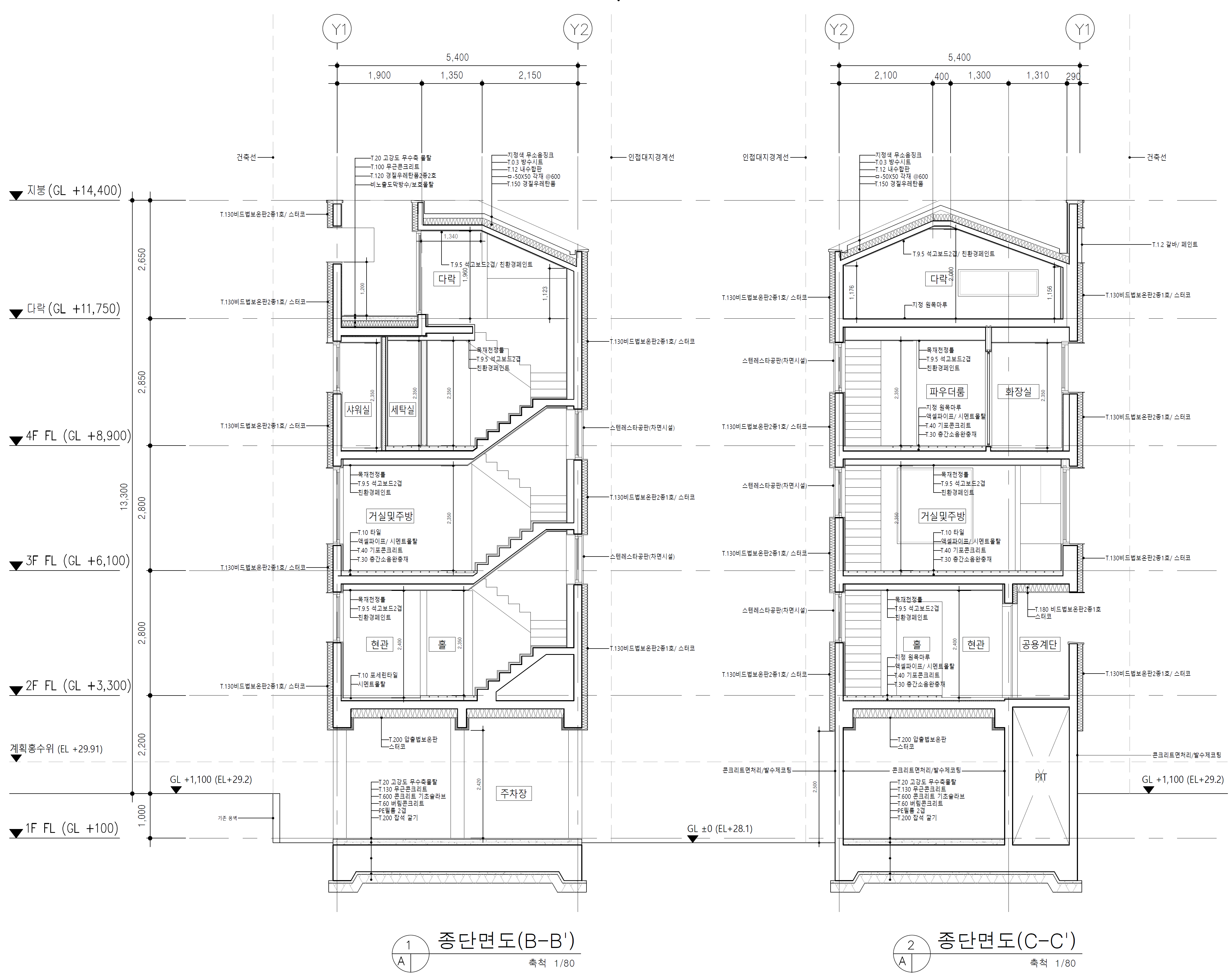
MOJO HOUSE
Mojo House is a duplex house on small site for two families. It has advantages of using the ecological park of the front side as a front yard and could overlook Bukhan-river in 3, 4th floor height...
anc.masilwide.com



Architects TODOT architects
Location Yangsu-ro, Yangseo-myeon, Yangpyeong-gun, Gyeonggi-do, Republic of Korea
Completion 2019. 05
Photographer Jinbo Choi
반응형
'Detail' 카테고리의 다른 글
| [Sunken] CHEONGYEONJAE (0) | 2022.04.13 |
|---|---|
| [Roof] COTTON HOUSE (0) | 2022.04.12 |
| [Exterior Wall, Staircase] ELEVEN (0) | 2022.04.08 |
| [Sunken, Exterior Wall] 1+4 HOUSE (0) | 2022.04.07 |
| [Section] Y HOUSE (0) | 2022.04.06 |
마실와이드 | 등록번호 : 서울, 아03630 | 등록일자 : 2015년 03월 11일 | 마실와이드 | 발행ㆍ편집인 : 김명규 | 청소년보호책임자 : 최지희 | 발행소 : 서울시 마포구 월드컵로8길 45-8 1층 | 발행일자 : 매일



