
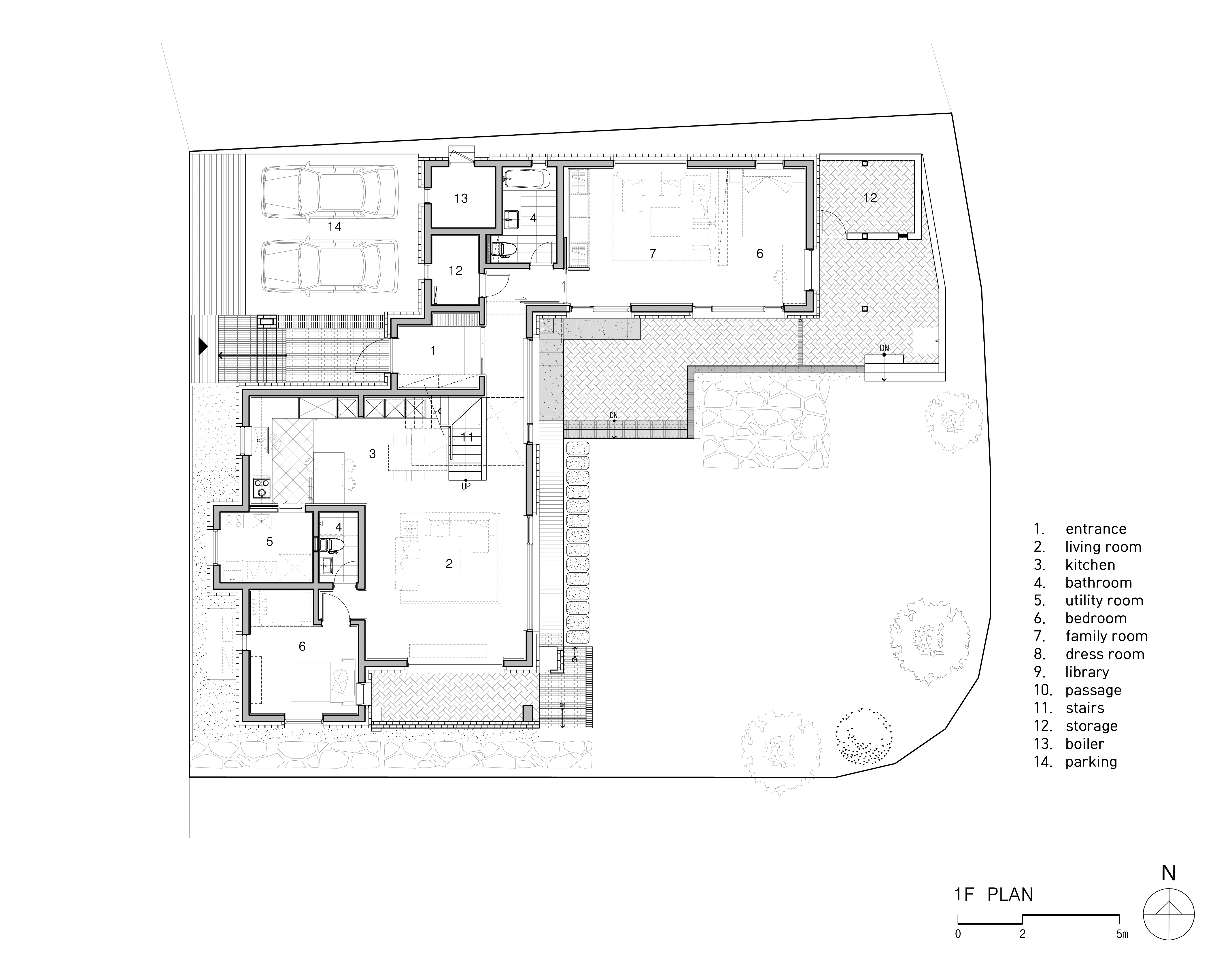
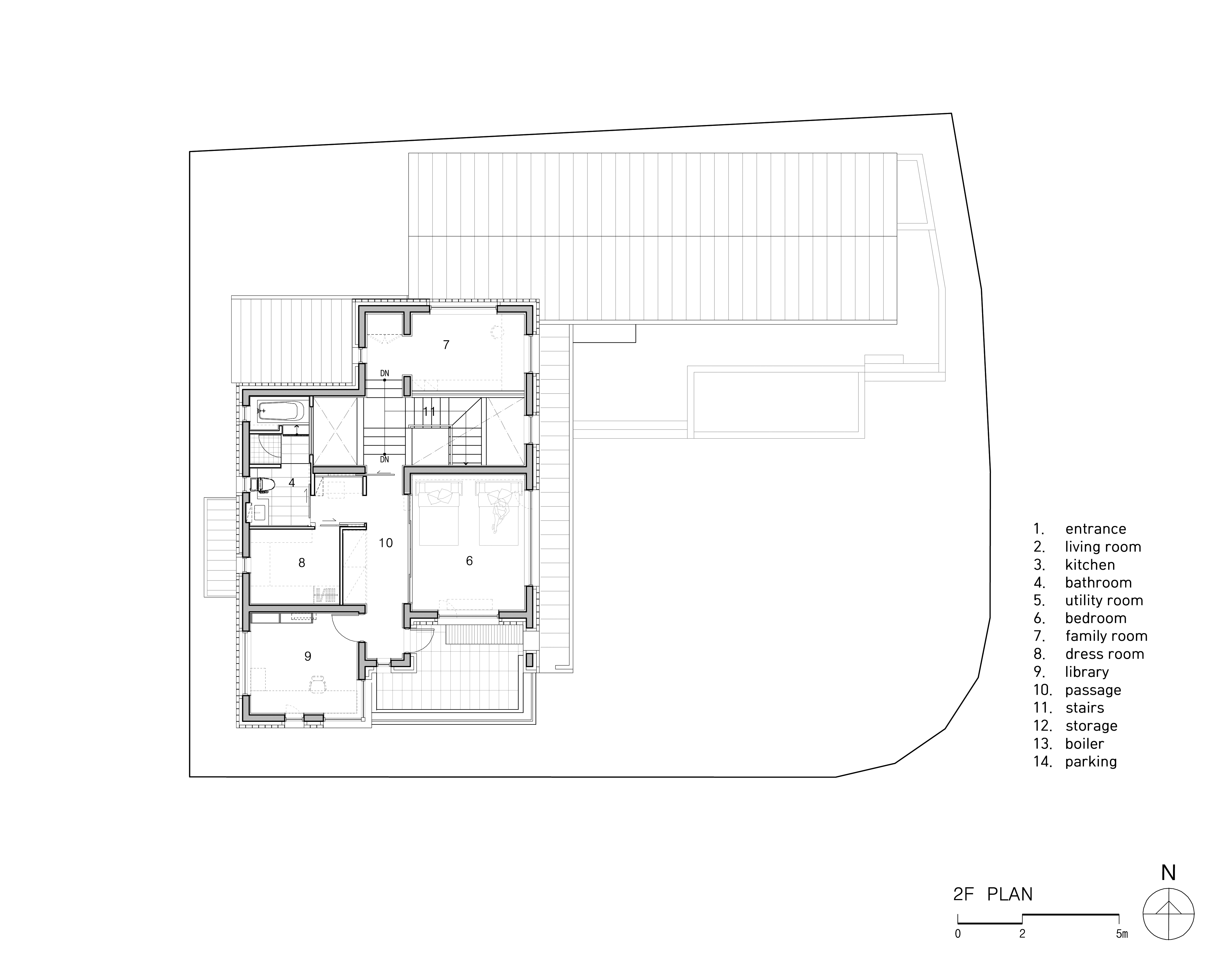
Wanju House, located at the entrance of a rural housing complex between Moaksan Provincial Park and Gui Reservoir in Wanju-gun, is a house owned by a client who was preparing for retirement. The client was captivated by the surrounding landscape, and so they valued the view of the house to be built the most. Therefore, it became an L-shaped house that is open to the southeast direction along the southeast view, which wouldn’t obstruct their view when a house is built in front. Lighting windows were appropriately placed to the east side towards the lake as well as the south side towards the road, and the master bedroom of the second floor was arranged at the location with the best view of the southeast.
The area of the separate building was separated from the entrance of the front door. As it is connected to the main building in an L-shape, the clients can see each other through the straight and neat front yard. Since the spaces covered by the roof outside are included in the floor area of the house, it lays a burden on the size of the house, but they enrich the use of external space in real life. From the moment the front door is entered, an extensive corridor window that draws attention to the yard is connected to the living room, and the view seen from the interior is widely open towards the mountains in the direction of the lake. The length of the low gable roof of the separate building was extended to the platform for crocks to help with the stability and gaze of the yard, and due to the roof, they are connected to the exterior storage house behind the platform for crocks. The ponderous appearance of Moaksan or the landscape of the mountain that stretches out far away while surrounding Gui Lake are landscapes that the gable roof best harmonizes with in a stable way. The scale of the house seems to be divided into three masses, and there are three gable roofs that are characteristic of Wanju House. The sense of scale of the gable roof created by the division of masses seems comfortable. For the exterior material, bricks are finishing materials that one does not get tire of looking at even for a long time, they have a sense of warmth, and they are materials that are easy to manage and become better with time. Furthermore, it does not lay a burden on the surroundings. Two colors were chosen for this house, and the outer gable roof area was finished with red bricks and main volume of the living room and master bedroom area located towards the yard was finished with profound traditional bricks to avoid monotony and augment the sense of division of the masses.

완주 모악 호수집은 완주군 모악산 도립공원과 구이 저수지 사이, 전원주택단지의 진입부에 있는 집으로, 당시 은퇴를 준비하던 건축주가 의뢰한 집이다. 건축주는 주변 경관에 매료되어, 지어질 집의 조망을 가장 중요하게 여겼다. 따라서 앞집이 들어설 경우 시야를 가리지 않을 남동향의 조망을 따라 남동향이 열려 있는 ㄱ자 집이 됐다. 호수방향인 동향과 도로가 있는 남향으로는 적절하게 배치된 채광창들과 남동향 조망이 가장 멋진 위치에는 2층의 안방이 배치되어 있다.
별채영역은 현관 진입부터 분리됐다. 본채와 ㄱ자로 연결되어 반듯한 앞마당을 사이로 시선을 주고받을 수 있는 거리이다. 외부에 지붕이 덮이는 공간들은 기둥이 있을 경우 바닥면적으로 포함되어 집의 규모에 대해 부담을 갖게 하지만, 실제 생활에서 외부공간 활용을 풍요롭게 한다. 현관문을 들어서는 순간부터 마당으로 시선을 끄는 시원한 복도창이 거실로 이어져 있고 내부에서 바라보이는 조망은 호수방향의 산들로 시원하게 트인다. 별채의 낮은 박공 지붕은 마당의 안정감과 시선처리에 도움이 되도록 지붕길이를 장독대까지 연장되어, 지붕 덕분에 장독대 뒤로 외부창고로 연결된다. 모악산의 묵직한 모습이나 구이호수를 감싸며 멀리까지 굽이굽이 펼쳐지는 산세의 풍경은 박공 지붕이 가장 안정감있게 주변과 어울리는 모습이다. 집은 세 개의 매스로 구분되는 것처럼 보이는데, 세 개의 박공 지붕이 모악 호수집의 특징이다. 매스 분할로 생긴 박공 지붕의 스케일감은 편안해 보인다. 외장재로써 벽돌은 온도감을 갖는 마감재료로써 오래 봐도 질리지 않고, 관리가 용이하며, 세월이 흐르면서 깊은 맛이 베여가는 재료다. 이 집의 색상은 두 가지로 선택되어 외곽의 박공 지붕쪽은 적벽돌로, 마당 쪽에 자리한 거실과 안방 영역의 메인 볼륨은 중후한 느낌의 전벽돌로 마감되어 단조로움을 피하고 매스의 분할감을 더한다.


















Architects MORPH architects office
Location Wongi-ri, Gui-myen, Wanju-gun, Jeollabuk-do, Republic of Korea
Site area 487.0㎡
Building area 182.60㎡
Gross floor area 253.51㎡
Building scope 2F
Building to land ratio 37.49%
Floor area ratio 52.06%
Construction period 2017. 05 - 2018. 03
Completion 2018. 03
Principal architect Jongmin Park
Project architect Jongmin Park
Partner team (GRISIM design group)Seongtaek Kang
stuctural engineer Eun structural engineers
Mechanical engineer Pcmglobal engineering
Electrical engineer (Kunchang engineering)Jinyeong Kim
Construction (DCOMSTUDIO)Byeongjin Oh
Photographer Kyung Rho
해당 프로젝트는 리빙즈, 디테일 01호에 게재되었습니다.
The project was published in LIVINGS, Detail 01
[BOOK] LIVINGS, Detail 리빙즈, 디테일 01호, 02호
단행본 발행 67개의 형태와 라이프스타일을 담은 주거공간, 국내외 "디테일한 주택 프로젝트"의 엮음
www.masilwide.com
'Architecture Project > Single Family' 카테고리의 다른 글
| STACKED HOUSE (0) | 2022.03.22 |
|---|---|
| GYESAN27 (0) | 2022.03.21 |
| MUNHO-RI HOUSE (0) | 2022.03.18 |
| SIHYUNGAK (0) | 2022.03.18 |
| JOYCE (0) | 2022.03.17 |
마실와이드 | 등록번호 : 서울, 아03630 | 등록일자 : 2015년 03월 11일 | 마실와이드 | 발행ㆍ편집인 : 김명규 | 청소년보호책임자 : 최지희 | 발행소 : 서울시 마포구 월드컵로8길 45-8 1층 | 발행일자 : 매일



