

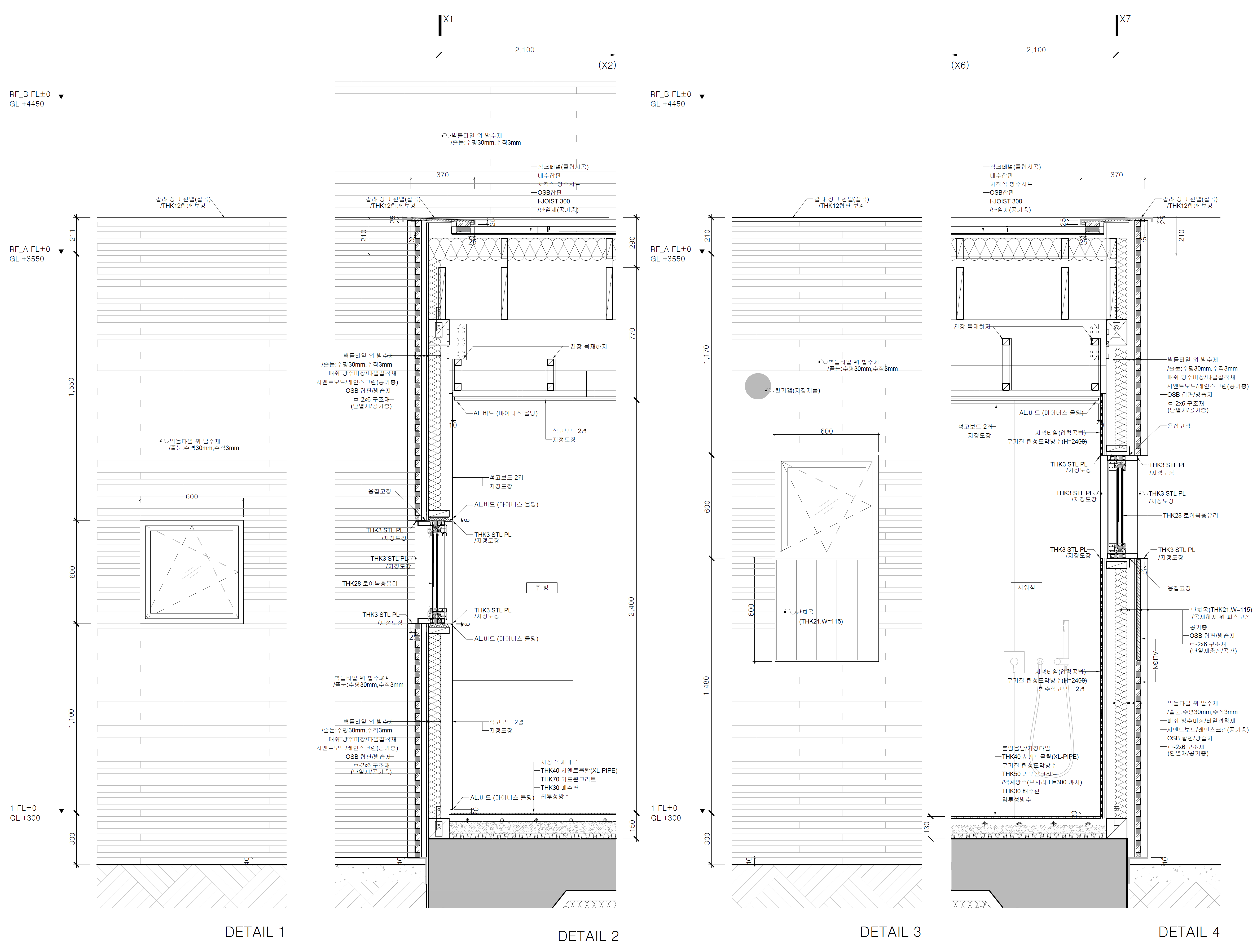
Architects NOMAL
Location Seogwipo-si, Jeju-do, Republic of Korea
Completion 2020. 01
Photographer Kyung Roh
'Detail' 카테고리의 다른 글
| [Exterior Wall] WALDEN HOUSE (0) | 2022.03.10 |
|---|---|
| [Canopy Joint] GANGHOEHEON (0) | 2022.03.08 |
| [Winndow, Balcony] ZELLIGE (0) | 2022.03.04 |
| [Facade] The Village (0) | 2022.03.03 |
| [Window] HERMINE (0) | 2022.03.02 |
마실와이드 | 등록번호 : 서울, 아03630 | 등록일자 : 2015년 03월 11일 | 마실와이드 | 발행ㆍ편집인 : 김명규 | 청소년보호책임자 : 최지희 | 발행소 : 서울시 마포구 월드컵로8길 45-8 1층 | 발행일자 : 매일



