
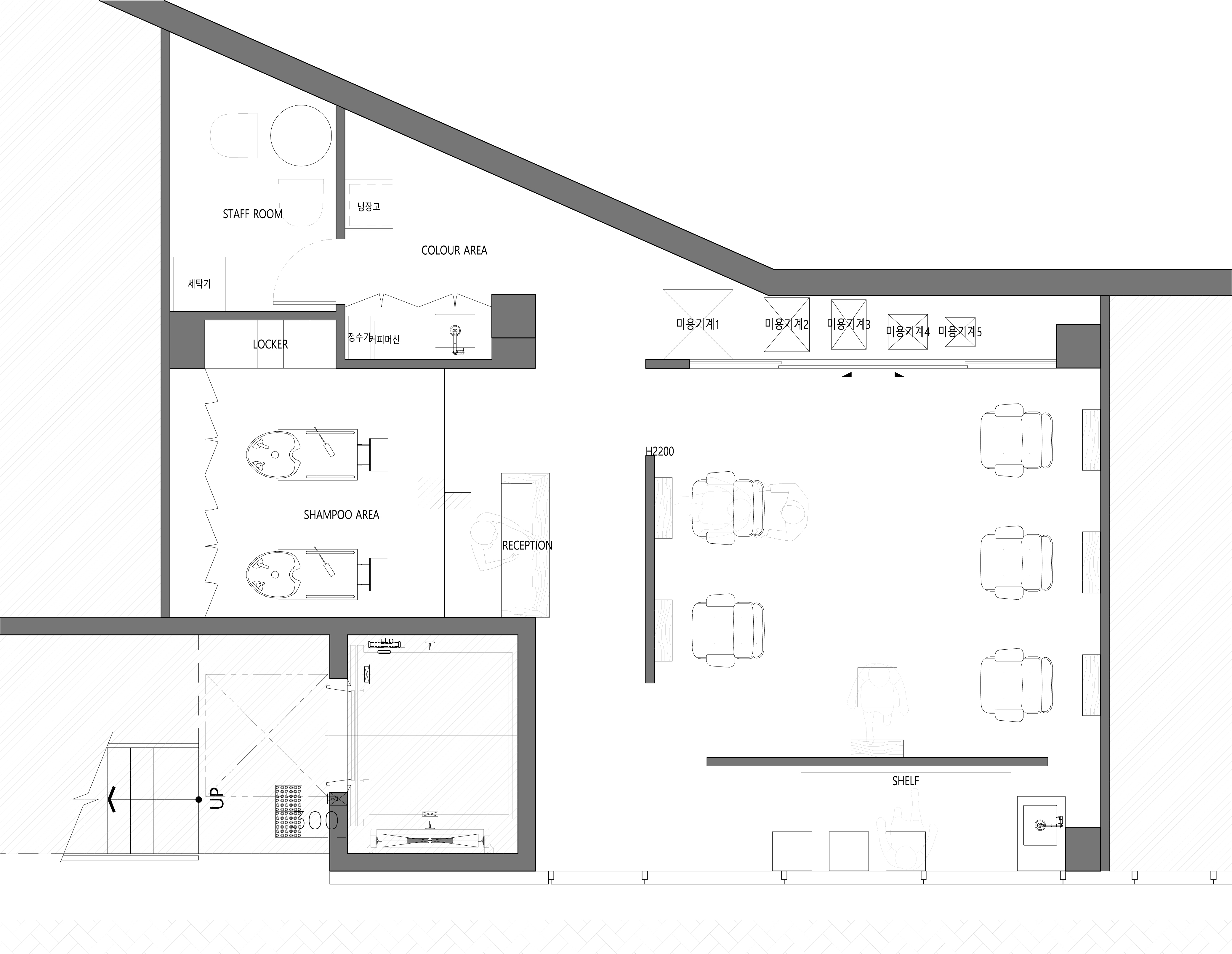
Outline hair is a lifestyle select shop and hair salon located in Sinsu-dong. When planning the floor plan, the client wanted a space to make hair dye as well as a private treatment space where the beauty appliances are not visible. First, the front area of the store was used as a customers’ space, and naturally, the remaining space in the back was planned to be used as an employees’ space. In addition, to form a private treatment space, a wall was placed facing the full glass window of the building, and the middle space was used as a waiting area. The opening and the low height of the wall were made to prevent it from seeming stifling. Furthermore, a sliding wall was applied to the space for storing the beauty appliances and was finished with metal to become an accent feature of the space.
Since we believed that a hair salon was a background space that contains the different hairstyles of customers, we chose monotone colors for outline hair. However, we wanted the shampoo room to be cozy and comfortable unlike other spaces. Therefore, the shampoo room’s ceiling height was intentionally lowered and was finished with dark tones. The lighting was also planned to be dark. As the unique structure and sense of space harmonize with the vintage furniture and small decorations personally selected by the client, outline hair has been completed as a space that provides various spatial experiences to customers.

아웃라인 헤어는 신수동에 위치한 라이프스타일 편집숍이자 미용실이다. 건축주는 평면 구성 당시 염색약을 제조하는 공간과 미용기구들이 보이지 않는 것과 프라이빗한 시술 공간을 원했다. 먼저 매장의 앞부분은 고객 공간으로 활용하고, 자연스럽게 남은 뒷공간을 직원 공간으로 쓰는 평면구성을 계획했다. 또한 프라이빗한 시술 공간을 위해 건물의 통유리창을 마주하는 벽체를 구성했고 가운데 공간은 대기공간으로 활용했다. 벽체에 개구부를 낸 것과 벽체의 높이를 낮게 적용한 건 시선이 답답하지 않게 하기 위함이었다. 그리고 미용기구들을 보관하는 공간은 편의를 위해 슬라이딩 벽체로 적용했고 공간의 포인트가 될 수 있도록 금속으로 마감했다. 미용실은 고객들의 다양한 헤어를 담는 배경이 되는 공간이라고 생각했기에 전체적으로 모노톤의 색상을 선택했다. 하지만 샴푸실은 다른 공간과 달리 아늑하고 편안하길 바랬다. 때문에 샴푸실은 천장 높이를 의도적으로 낮추었고, 어두운 톤의 색상으로 마감했다. 조도 또한 어둡게 계획했다. 독특한 구조와 공간감, 그리고 건축주가 직접 셀렉해 온 빈티지 가구와 소품까지 어우러져 아웃라인 헤어는 고객들에게 다양한 공간 경험을 제공하는 공간으로 완성되었다.


















Design yellowpaper
Location 20 Gwangseong-ro, Mapo-gu, Seoul, Republic of Korea
Gross floor area 68㎡
Building scope 1F
Design period 2021. 07 - 08
Construction period 2021. 08 - 09
Completion 2021. 09
Construction yellowpaper
Client Outline hair
Photographer Yeongmin Jeong
'Interior Project > Other' 카테고리의 다른 글
| Interview-ABOUT “THE WRITER’S CABIN” (0) | 2022.12.21 |
|---|---|
| Großweikersdorf Community Center (0) | 2022.02.16 |
| Hôpital Vétérinaire du Parc (0) | 2022.02.14 |
| Black Star Car Wash (0) | 2021.11.08 |
| The Garage Project (0) | 2021.09.07 |
마실와이드 | 등록번호 : 서울, 아03630 | 등록일자 : 2015년 03월 11일 | 마실와이드 | 발행ㆍ편집인 : 김명규 | 청소년보호책임자 : 최지희 | 발행소 : 서울시 마포구 월드컵로8길 45-8 1층 | 발행일자 : 매일



