
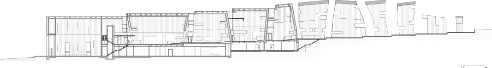
The building of the Mausoleum of Martyrdom of Polish Villages in Michniów is an architectural form of commemoration. The solid reflects the process of destruction, annihilation, that inspired Mirosław Nizio, the head of Nizio Design International, to create this sculptural form. In the foreground, the Mausoleum resembles a rural house. This first, intact part of the building is the House of Tranquillity. Subsequent segments convey the dramaturgy of the process that has upset a certain “order of the world”: the solid is degraded, destroyed, as in the aftermath of a fire. The concrete structure is marked with fractures, cuts, tears which generate emotions and tension. Both the architecture and the interior of the Mausoleum, as well as the permanent exhibition, are strongly inspired by historical events and the dramatic effects of pacification; they are a symbol of the repression that affected Polish villages during World War II and the Nazi and Soviet occupations.
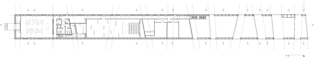
The designed museum as a whole covers more than 16,000㎡. The form of the building was determined by sculptural inspirations and the wish for unity between the architecture that is being designed and the historical narration. The monolithic body of the Mausoleum consists of 11 segments – entering the premises, the visitor first enters five closed segments. The sculptural, degraded part is open to nature, sky and landscape, changing - sometimes abruptly – as the weather conditions change. Through the glazing and the rips in the structure one can see the larch crosses surrounding the building. Their shape and symbolism inspired the form of the rips. The expressive architecture and intentional, progressive degradation of the solid create a unique atmosphere of the place.
The light reaches the interior of the building through the cracks between the segments; depending on the time of the day and the season, it models the area of the permanent exhibition, located in the closed and open parts of the building. Architectural and scenographic details are designed to intensify the sensory experience. On concrete, the cool and ascetic material from which the solid is made, the symbolic imprint of the wood grain is noticeable.
Concrete develops a patina. The passage of time and the forces of nature have influenced its texture and colour. The wall and roof structure and the steel components bear traces of water, dust and soil. This makes the solid become even more integrated with its surroundings and take root in the context of the place.
The permanent exhibition of the Mausoleum covers an area of about 1,700㎡. As the visitors pass through successive parts of the building, they are faced with charred ruins. The materials that dominate in the interior are concrete, wood from the old huts and barns that was brought in from the surrounding villages, and black steel; they serve as a medium for the exhibition narrative. The displays present photos and historical documents, multimedia. Large-sized sculptural objects of irregular shapes, resembling ruins of huts, are one of the elements of the museum content presentation.

역사를 기억하는 묵직하고 거친 콘크리트, 미치외프 순교자 묘소의 박물관
미치외프 순교자 묘소의 박물관은 “기억”하기 위해 지어진 건물이다. 묘소에 세워진 이 묵직한 콘크리트들은 바로, 제2차 세계대전과 나치 및 소비에트 점령 동안 폴란드 마을에 영향을 미친 억압을 뜻한다. 건물은 마치 콘크리트로 이뤄진 조각품같다. 이러한 조각의 형태는 파괴와 소멸의 과정의 언어를 전달한다. 한 눈에 들어오는 묘소의 박물관은 이 지역의 일반적인 집의 형태 같이 보이기도 하는데, 이 건물의 첫 번째 부분은 평온의 집(House of Tranquillity)이라고 불리며, 온전한 공간을 가진 부분이다. 그 뒤를 따르는 부분들은 특정 “세계의 질서”를 뒤엎은 비극적인 과정의 감정을 전달한다.
콘크리트로 세워진 부분은 화재가 지나가고 퇴락하고 파괴된 것 처럼 보인다. 골절, 베인 자국, 찢긴 자국, 눈물의 흔적을 가진 콘크리트들은 감정과 긴장감으로 가득차 있다. 묘소의 박물관 건축과 내부, 그리고 상설 전시는 역사적 사건으로부터 크게 영감을 받아 설계됐다.
건물의 형태는 조각적 영감과 설계될 건축물과 역사적 서사 간의 통일성에 대한 염원에 의해 결정되었다. 박물관의 일체형 몸체는 11개 부분으로 구성되어 있다. 부지에 들어선 방문자는 먼저 5개의 닫힌 부분으로 들어간다. 조형적이고 퇴락한 부분은 기상 조건의 변화에 따라 때로는 갑자기 변하기도 하는 자연, 하늘, 풍경에 열려 있다. 구조의 유약과 찢긴 부분을 통해 건물을 둘러싸고 있는 잎갈나무가 지나가는 모습을 볼 수 있다. 이 나무들의 모양과 상징성이 찢어진 부분의 형태에 영감을 주었다. 표현력 있는 건축과 의도적이고 점진적인 솔리드의 분해가 장소의 독특한 분위기를 만들어낸다.
빛은 여러 부분 사이의 균열을 통해 건물 내부에 도달한다. 시간과 계절에 따라 건물의 닫힌 부분과 열린 부분에 위치한 상설 전시 영역의 공간을 결정한다. 디테일은 풍부한 감각적 경험을 제공한다. 형태를 이루는 단단하고도 금욕적인 느낌의 콘크리트 표면 위에는 나뭇결의 상징적인 음각이 눈에 띈다.
콘크리트에는 고색이 발생한다. 시간의 흐름과 자연의 힘이 질감과 색상에 따라 다른 느낌을 준다. 벽과 지붕 구조와 강철 구성 요소에는 물, 먼지, 흙의 흔적을 지녀, 솔리드가 주변 환경과 더욱 통합되고 장소의 맥락에서 뿌리를 내리도록 한다.
묘소 안 박물관의 상설 전시 공간은 약 1,700㎡의 면적을 덮는다. 방문객들이 건물의 연속되는 부분을 통과할 때, 그들은 그을린 폐허와 마주하게 된다. 내부를 지배하는 재료는 주변 마을의 오래된 오두막과 헛간에서 가져온 콘크리트와 목재, 검은색 강철로, 전시를 묘사하는 매개체 역할을 한다. 전시물에는 사진, 역사적 문서, 멀티미디어가 있다. 오두막의 폐허를 닮은 불규칙한 형태의 대형 조형물은 그 자체로 역사를 보여주는 박물관의 전시품 같은 존재이기도 하다.












Architect Nizio Design International
Location Michniów, Poland
Site area 16,225㎡
Building area 2,155㎡
Gross floor area 3,480㎡
Design period 2019
Construction period 2010 - 2020
Completion 2020
Principal architect Mirosław Nizio
Project architect Mirosław Nizio / (Lead architect) Bartłomiej Terlikowski
Landscape architect mgr inż. arch. kraj. Agnieszka Michalska
Construction mgr inż. Cezary Koc, inż. Zbigniew Koc
Client KIELCE COUNTRYSIDE MUSEUM
Photographer MARCIN CZECHOWICZ
해당 프로젝트는 건축문화 2021년 11월호(Vol. 486)에 게재되었습니다.
The project was published in the November, 2021 recent projects of the magazine(Vol. 486).
November 2021 : vol. 486
Contents : RECORDS OPEN EXPO 2020 DUBAI, AND KOREA PAVILION 세계에 퍼지는 한국의 친환경 메시지, 그리고 “마당" : NEWS / COMPETITION / BOOKS : SKETCH THE REMARKABLE PLACE IN THE NEIGHBO..
anc.masilwide.com
'Architecture Project > Other' 카테고리의 다른 글
| BANK OF NORRLAND (0) | 2022.06.16 |
|---|---|
| MANTINUM INTERVENTION (0) | 2022.02.11 |
| FOOTBALL STADIUM YEKATERINBURG ARENA (0) | 2021.12.14 |
| FOOTBALL STADIUM SAMARA-ARENA (0) | 2021.12.13 |
| FOOTBALL STADIUM VOLGOGRAD-ARENA (0) | 2021.12.10 |
마실와이드 | 등록번호 : 서울, 아03630 | 등록일자 : 2015년 03월 11일 | 마실와이드 | 발행ㆍ편집인 : 김명규 | 청소년보호책임자 : 최지희 | 발행소 : 서울시 마포구 월드컵로8길 45-8 1층 | 발행일자 : 매일



