
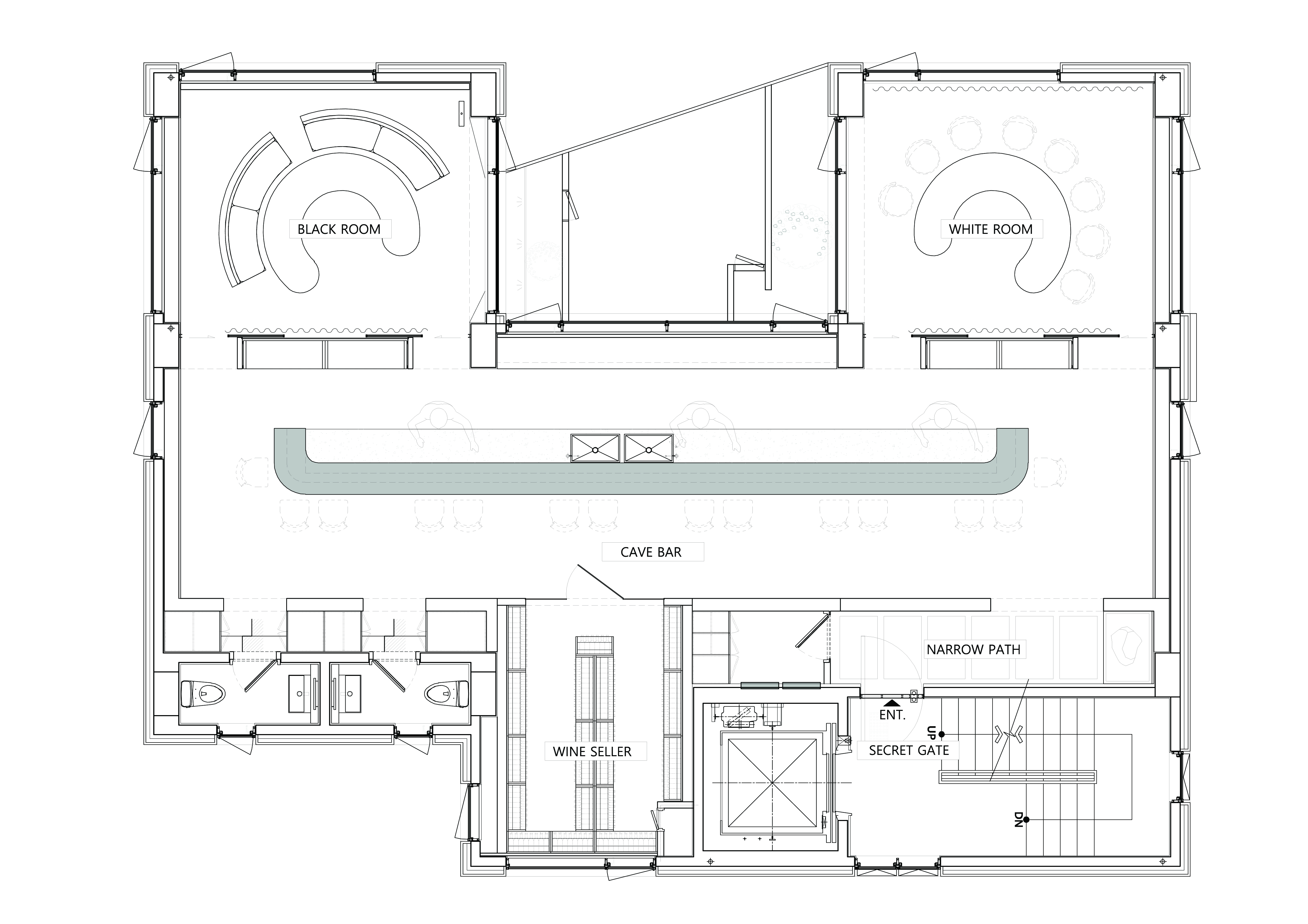
Wine Social is a wine tasting cultural space where one can fully enjoy wines curated by a sommelier through blind tasting and comfortably share the experience.
As for the concept of the space, the space was expressed with a story of opening a secret door with a small light in the busy metropolis of Gangnam to find a new world different from the city center, then passing through a small trail to meet a white cave and a space under a sky where darkness and light coexist.
The design motif started with trails, caves (wine cellar), day sky and night sky. For the secret trail, the hallway space was darkened to make it seem as if sunlight was pouring through the leaves, and light from lightings were made to shine through the latticed open spaces on the wall. After passing the trail, a linear bar and two rooms are found. The cave, which is a linear bar, was arranged in the form of a cave imagining a cave where wine is stored and was created into a space with a modern and bright atmosphere to be able to concentrate on the wines. Black mirrors were used on both walls of the cave as a device to expand the narrow space's sense of space.
The two rooms are made up of the White Room (day sky) and the Black Room (night sky). For the Black Room (night sky), black finishing materials were used for the floor and walls to express darkness, and floating clouds were expressed on the ceiling using silhouette white fabric and the wind from the ceiling lined diffusers. The C-shaped tables and chairs were embodiments of rocks, and we imagined a space where one would sit on a rock, close their eyes, and enjoy their wine on a dark night. For the White Room (day sky), white finishing materials were used on the floor and walls to express brightness, and a space that contrasts from the night sky was created. In expressing nature on the walls, only one tree was placed rather than many trees so that they could be more focused on. We wanted it to be a social space where social exchanges between customers take place through wine as a medium in a space with a modern interpretation of nature. We thought that it would become a true Wine Social when it becomes a space where two or three people in the CAVE BAR and four or five people in the White Room and Black Room can enjoy wine and share the experience. The finishing materials were also unified as much as possible to allow focus to be set on the wines and people.

와인소셜은 소믈리에가 직접 큐레이팅 와인을 블라인드 테이스팅을 통해 오롯이 느끼고 그 경험을 편하게 나눌 수 있는 와인 테이스팅 문화공간이다.
공간의 콘셉트는 강남이라는 복잡한 대도시에서 작은 빛을 머금은 비밀의 문을 열면 도심과는 다른 새로운 세상이 열리고 작은 오솔길을 지나 CAVE 형태의 하얀 동굴과 어둠/밝음이 공존하는 하늘 아래의 공간을 만난다는 스토리로 공간을 표현했다.
디자인 모티브는 오솔길, 동굴(와인저장고), 낮하늘, 밤하늘에서 시작했다. 비밀의 오솔길은 나뭇잎사이로 햇빛이 쏟아지는 느낌을 내고자 복도공간은 어둡게 하고 벽체의 격자 오픈공간사이로 조명의 빛이 나오게 했다. 오솔길을 지나면 일자형 바와 두개의 룸이 구성되는데, 일자형 바인 동굴은 와인이 저장되어 있는 동굴을 상상하며 CAVE의 형태를 구성했고 최대한 와인에 집중할 수 있게 모던하고 밝은 느낌의 공간으로 구성했다. 동굴의 양쪽 벽면은 흑경을 사용하여 좁은 공간의 공간감을 확장하는 장치로 사용했다.
두개의 룸은 화이트룸(낮하늘)과 블랙룸(밤하늘)로 구성되어 있다. 블랙룸(밤하늘)은 바닥과 벽을 블랙마감재를 사용하여 어두음을 표현했고 천장은 실루엣 화이트 패브릭과 천장 라인디퓨져에서 나오는 바람을 통해 하늘거리는 구름을 표현했다. C자형 테이블과 의자는 바위덩어리를 형상화 하여 어두운 밤, 바위덩어리에 앉아 눈을 감고 와인을 음미하는 공간을 상상했다. 화이트룸(낮하늘)은 바닥과 벽은 화이트마감재를 사용하여 밝음을 표현하였고 밤하늘과 대비되는 공간을 구성했다. 벽면에는 자연을 표현하는데 있어 나무들을 많이 구성하는게 아니고 한그루만 두어 더 집중될 수 있게 표현했다. 자연을 모던하게 해석한 공간 속에서 와인을 매개체로 고객들간의 사회적 교류가 이루어지는 소셜공간이기를 원했다. CAVE BAR에서 두 세명이, 화이트룸과 블랙룸에서 네 다섯 명이 와인을 즐기면서 그 경험을 편하게 나눌 수 있는 공간이 될 때 진정 와인소셜이라고 생각했다. 그리고 와인과 사람에게 집중될 수 있게 마감재를 최대한 통일했다.























Design LAB404
Location Apgujeong-ro 46-gil, Gangnam-gu, Seoul, Republic of Korea
Building area 126.45㎡
Construction Sequence Lab
Photographer Yongjoon Choi
'Interior Project > Cafe&Restaurant' 카테고리의 다른 글
| Osmo X Marusan Café (0) | 2022.02.09 |
|---|---|
| Slow & Raw (0) | 2022.02.08 |
| KAPPO AKII Japanese Dining, Korea (0) | 2022.01.27 |
| Bun Burgers Turin (0) | 2022.01.21 |
| Café KUO’S (0) | 2022.01.21 |
마실와이드 | 등록번호 : 서울, 아03630 | 등록일자 : 2015년 03월 11일 | 마실와이드 | 발행ㆍ편집인 : 김명규 | 청소년보호책임자 : 최지희 | 발행소 : 서울시 마포구 월드컵로8길 45-8 1층 | 발행일자 : 매일



