
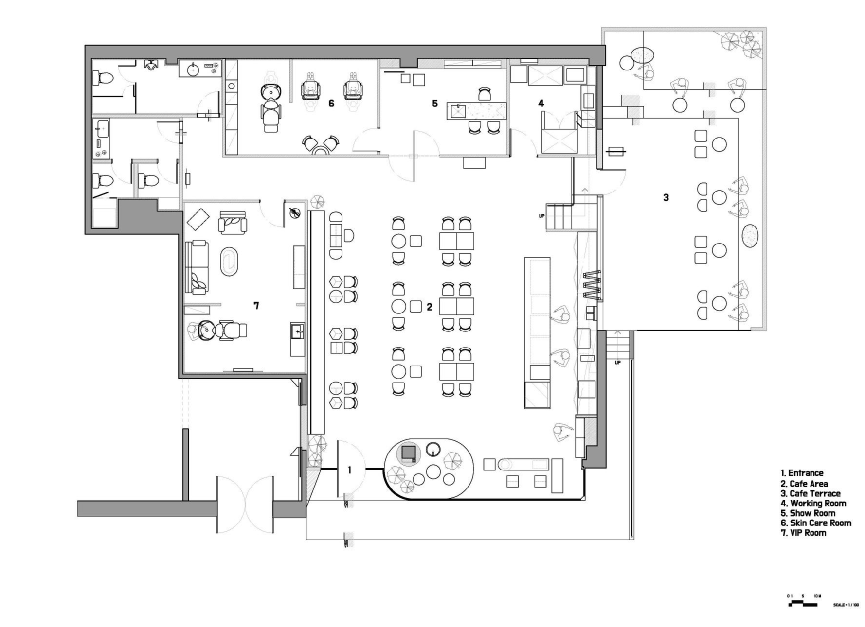
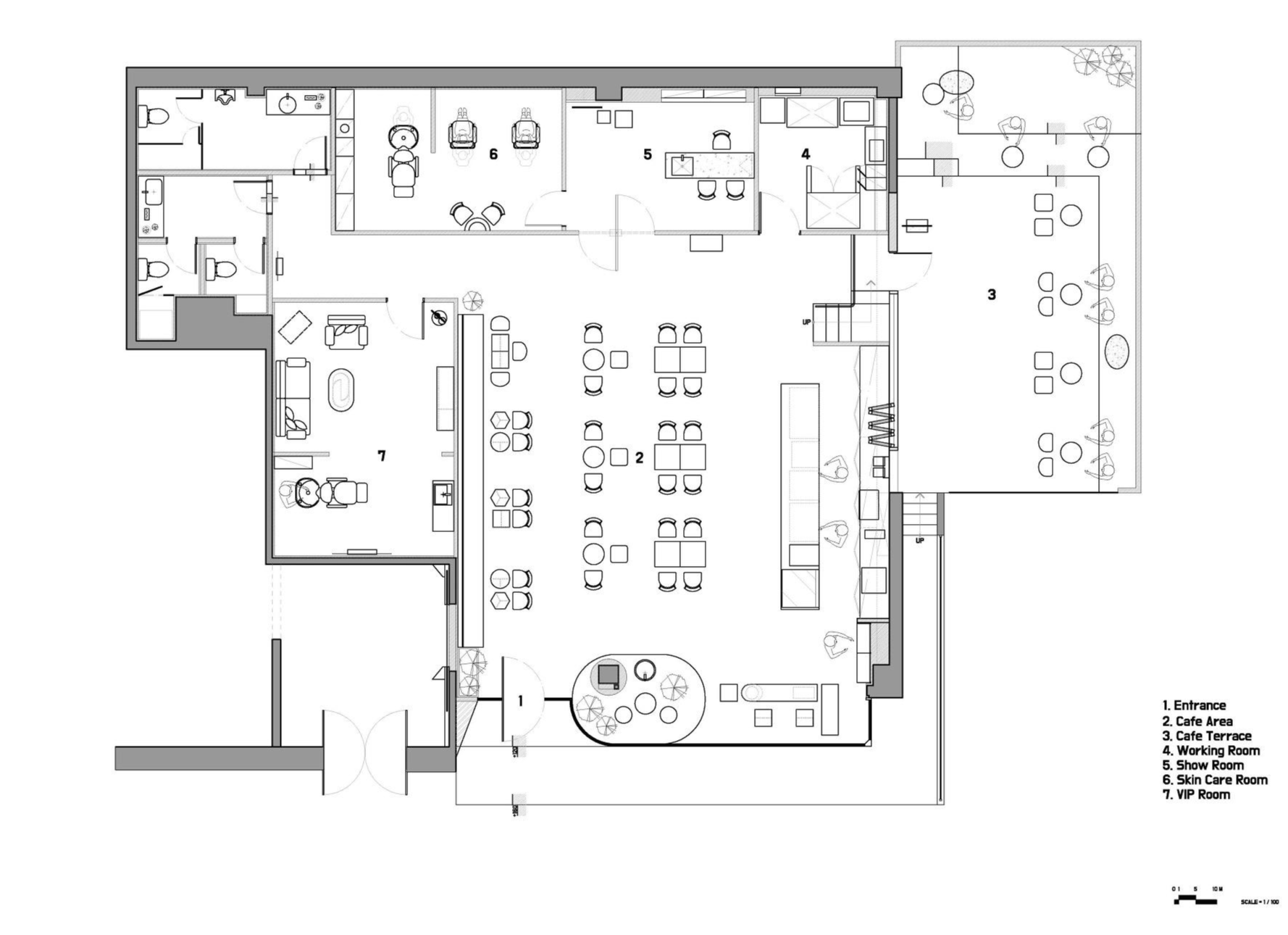
As can be seen from the design slogan, Café KUO’S was designed to touch the sentiment of women from the very beginning. It depicts a marketing strategy called Sense marketing, and refers to the experience of the value, impression, and sense of resonance of the space. The design of Café KUO’S begins with minimalism. Since various functions of a showroom-type cafe had to be established, the large space that was initially large was divided as needed, and only a square space remained in the middle. The interior space, which can be seen right from the outside, may seem simple, but we wanted visitors to naturally scan, stay, and focus on the space. While restraining from excessively expressing design, we developed a design that emphasizes a consistent repetitive rhythm by creating constant patterns with lines and surfaces to maintain order. We wanted to provide an experience where one believes that everything can be seen at once, but can feel and enjoy a new space every time they change their seat. In addition, we hoped that customers staying at the cafe could notice their mood, expression, and behavior changing in the space and feel the value of the ‘place’ they are staying in once again. Café KUO’S pursues a more realistic minimalism, and concentrates more on the areas where simple lines and surfaces that exist within the space meet. Also, it rejects spaces that are simply pretty and do not feel warm. The warmth of a space is always created in its relationship with people, and relationships are what is mainly mentioned in IMA’s projects. A space is made up of simple things, but when the movements and sounds of people that harmonize with the space exist, and as they feel the blanks and perceive the space to create a sense of composure, the space is filled. We believe that Dosan Park Café KOU’S will become a space that can adapt to the changing seasons and culture, create its own color, and greet people comfortably.

카페 쿠스의 디자인은 미니멀리즘을 바탕으로 시작한다. 쇼룸형 카페라는 다양한 기능을 풀어야 했기에, 처음 주어진 커다란 공간을 필요에 의해 쪼개고 나니 가운데 정사각형의 공간만이 남게 됐다. 외부에서부터 정직하게 들여다 보이는 내부 공간은 자칫 단순해 보일 수 도 있지만, 우리는 이 공간을 이곳을 찾는 사람들이 자연스럽게 훑어보고, 머물고, 집중할 수 있기를 원했다. 과도한 디자인의 표출을 절제하고, 선과 면으로 일정한 패턴을 만들어 질서를 유지한 채 일정한 반복적인 리듬감을 살리는 디자인을 전개했다. 한눈에 전부 들어오는 듯 하지만, 자리를 옮겨 앉을 때마다 새로운 공간을 느끼며 즐길 수 있는 경험을 제공하고 싶었다. 또한, 카페에 머무는 고객이 공간에서 변화되는 자신의 기분과 표정과 행동을 지각하며, 자신이 머무는 ‘장소’의 가치를 한번 더 느낄 수 있기를 바랐다. 카페 쿠스는 좀 더 사실적인 미니멀리즘을 추구하며, 공간에 존재하는 단순한 선과 면들이 만나지는 곳에도 집중을 더했다. 그리고, 한 가지 단순히 이쁘기만 하고 온기가 느껴지지 않는 공간을 지양한다. 공간이 지니게 되는 온기는 반드시 사람과의 관계에서 만들어지며, 아이엠에이의 프로젝트에서 주로 언급되는 것이 바로 관계다. 공간을 이루고 있는 것들은 단순한 것들이지만, 공간과 함께 어우러지는 사람들의 움직임과 소리가 있고, 여백을 느끼며 공간을 인식하고 둘러볼 수 있는 여유를 만들어 공간이 채워진다. 도산공원 카페 쿠스는 계절의 변화에도 문화의 변화에도 적응해가며, 자신만의 색깔을 만들어내고, 편안하게 사람들을 반겨줄 공간이 될 것이다.













Design STUDIO IMA
Location Sinsa-dong, Gangnam-gu, Seoul,Republic of Korea
Design team Jaehyeon Ahn, Hoyong Lee, Yeonghyeon Kim
Building area 300㎡
Design period 2020. 05
Completion 2020. 07
Constructor STUDIO IMA
Client KUO'S Korea
Photographer Yongjoon Choi
Floor finish tile
Wall finish TERRACOAT FLEXITEX
Ceiling finish lacq paint
'Interior Project > Cafe&Restaurant' 카테고리의 다른 글
| KAPPO AKII Japanese Dining, Korea (0) | 2022.01.27 |
|---|---|
| Bun Burgers Turin (0) | 2022.01.21 |
| Bun Burgers Bligny (0) | 2022.01.20 |
| GYUBAN HANSIK LOUNGE (0) | 2022.01.19 |
| Café 7 yad (0) | 2022.01.18 |
마실와이드 | 등록번호 : 서울, 아03630 | 등록일자 : 2015년 03월 11일 | 마실와이드 | 발행ㆍ편집인 : 김명규 | 청소년보호책임자 : 최지희 | 발행소 : 서울시 마포구 월드컵로8길 45-8 1층 | 발행일자 : 매일



