ⓒCarlo Oriente

 

 

 

To the fifth of tiles, a series of elements are added that enrich the scene, which will then be completed by the garments. The coffee table is by Poliform. The table continues with the pattern of the tile. Instead the sofa for waiting lights up in color and carries as a plinth a black diamond-tipped wedge, which turns along allor the circumference. The walnut briar case seems suspended, thanks to the optical effect of the fully reflective plinth. Resting on it the "Chiara" by Mario Bellini for Flos. The mirrors turn on three sides, creating a "mise en abyme" effect. The "Superleggera" chair by Gio' Ponti for Cassina, helps in the testing of footwear. The dressing rooms have a silver laminate curtain. Wooden display compartments and velvet platforms. Wooden logs on a gold base for displaying shoes and cylinders in steel or lacquered for display accessories. Emergency lights and neon writing "For evermore",a quote from the song byRoisin Murphy, diva and muse of the architect.

 

 

 

ⓒCarlo Oriente

 

 

 

전체 공간에 사용된 타일에는 여러가지 요소가 가미되어 공간을 풍부하게 만든다. 커피 테이블은 가구회사 Poliform의 제품이다. 테이블은 타일 패턴으로 계속된다. 데스크의 월넛 브라이어 케이스는 거울로 된 받침대의 광학 효과 덕분에 매달린 것처럼 보인다. 하단부의 3면으로 된 거울은 "미장센" 효과를 만들어내며, Mario Bellini가 Flos를 위해 디자인한 Chiara 테이블 램프가 올려져 있다. 의자는 Gio' Ponti의 "Superleggera"다. 탈의실에는 은색 라미네이트 커튼이 있다. 전시공간과 벨벳 플랫폼에는 신발과 전시용 액세서리를 위한 금색 받침대가 있는 통나무가 놓여 있다. 비상등과 네온사인 "FOREVER MORE"은 건축가의 뮤즈인 Roisin Murphy의 노래 가사를 인용한 것이다.

 

 

 

ⓒCarlo Oriente

 

 

 

ⓒCarlo Oriente

 

 

 

ⓒCarlo Oriente

 

 

 

ⓒCarlo Oriente

 

 

 

ⓒCarlo Oriente

 

 

 

ⓒCarlo Oriente

 

 

 

ⓒCarlo Oriente

 

 

 

ⓒCarlo Oriente

 

 

 

ⓒCarlo Oriente

 

 

 

ⓒCarlo Oriente

 

 

 

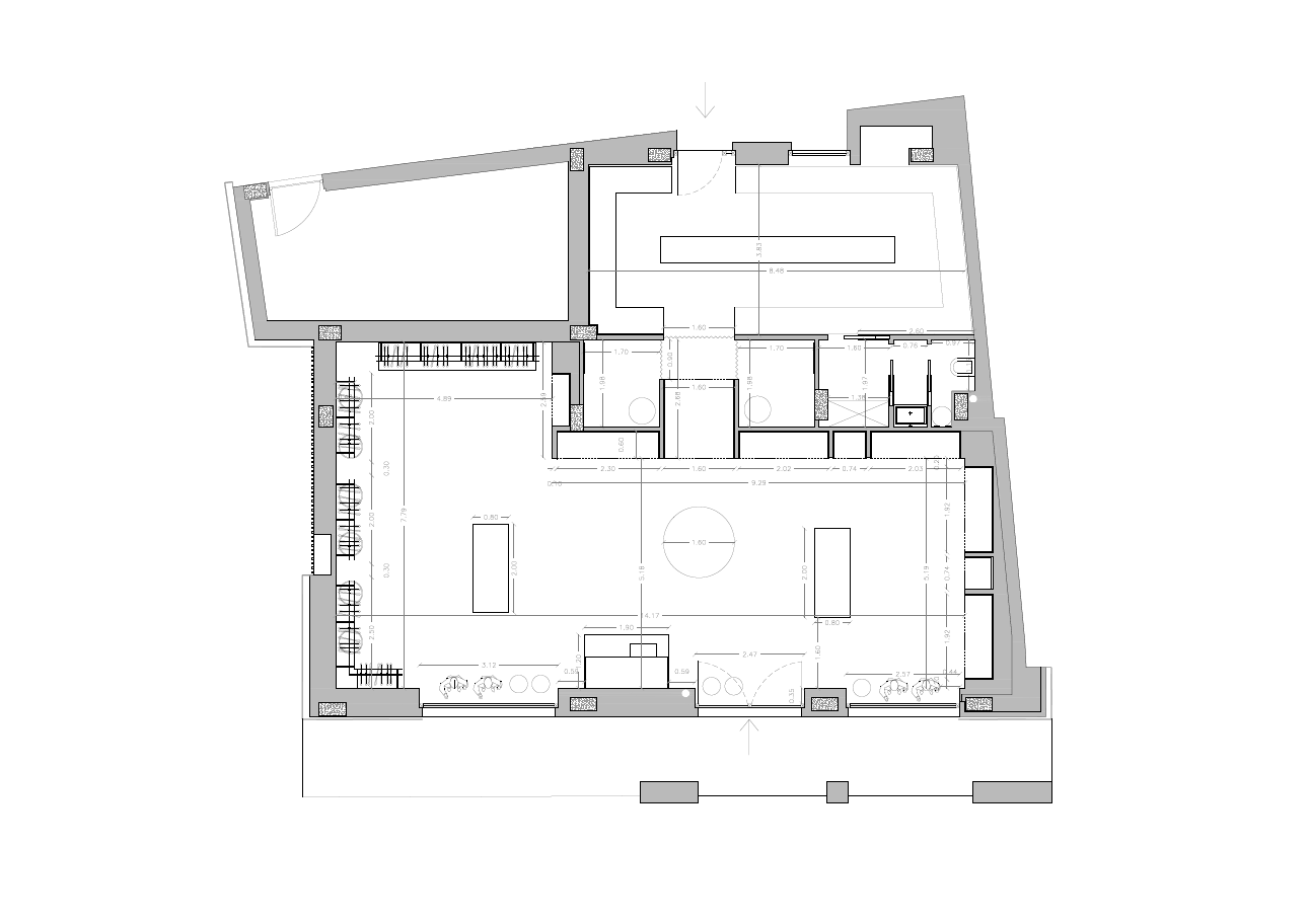
FLOOR PLAN

 

 

 

Architect   Carmine Abate Architetto
Location   Castellammare di Stabia, Naples, Italy
Building area   170㎡ 
Construction period   2020
Completion   2021. 01
Client   Vittorio Pecoraro 
Photographer   Carlo Oriente 

'Interior Project > Retail' 카테고리의 다른 글

SEVENTY STUDIO  (0) 2022.03.03
Rareraw  (0) 2022.02.25
OASIS veterinary surgical center  (0) 2022.01.28
Homme Store  (0) 2022.01.13
Cubitts Victoria Arcade  (0) 2022.01.07


마실와이드 | 등록번호 : 서울, 아03630 | 등록일자 : 2015년 03월 11일 | 마실와이드 | 발행ㆍ편집인 : 김명규 | 청소년보호책임자 : 최지희 | 발행소 : 서울시 마포구 월드컵로8길 45-8 1층 | 발행일자 : 매일





© MasilWIDE
위로가기