
OASIS Veterinary Surgical Center is a veterinary hospital specializing in orthopedics and neurosurgery, and it is a specialized clinic for joints, spine, fractures, severe trauma, neurological diseases, etc. that operates based on the philosophy of “Restoring function, saving lives, and contributing to the healthy coexistence of animals and humans”. The following are some phrases that we considered as the spatial concept of a specialized veterinary hospital specializing in such surgical treatment. “Less but More & More but Less” and “Form Follows Function”. We believed that there were more stories told in simplicity, and wanted to pursue a formative perfection built with functions and systems.
We didn’t want this space to simply become another space for pets that we have always seen, or be remembered as an ambiguous space, not being able to clearly tell if it was a pets cafe, a pet care space, a hospital, or a general store. We wanted it to be the most professional space, and a space that could offer its customers trust and belief. Therefore, the design of all spaces began with solutions of functions and systems, rather than thoughts on pursuing the aforementioned beauty.
Choosing finishing materials that understand the behavior patterns and tendencies of companion animals
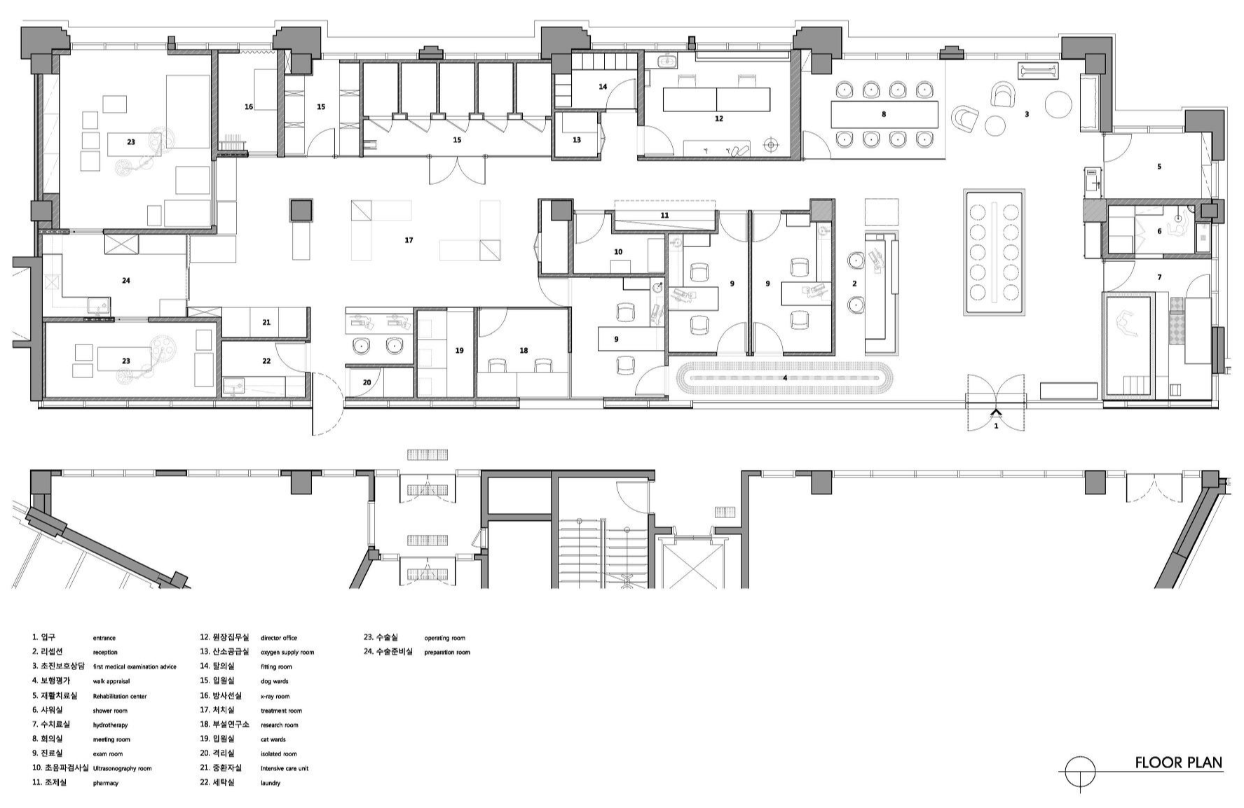
Reinforced concrete was used for the floor of the hospital to solve maintenance and sanitation problems. The rounding of the corners was planned from a management approach to the behavior of dogs peeing. As for the composition of the hospital rooms, the arrangement and spatial composition were planned while considering the characteristics of small dogs, large dogs, and cats. Since the barking of large dogs could interfere with the operation of the treatment rooms, the large dog wards were completed as double rooms with a front room and a water system for efficient excretion management was applied. We believe that filling a space in the most concise way is the way to contain the most. We concentrated on setting a tone that gives off the same energy as a research facility or a laboratory while organizing the floor plan in the most systematic way and reasonably arranging the size and location of each functional room. Although the physical behavior of the patients is taken into account, the guardian’s sense of trust and assurance were prioritized, the entire treatment process (examination>treatment>hospitalization>surgery>rehabilitation treatment>research) was configured to be naturally exposed so that the guardians could visually experience the entire process. After zoning the rooms by each function, each room was formed into a rhythmic mass through a volume study process, and through this, the abundance of the space was aimed to be kept even though the same finishing materials have been used.

오아시스 동물병원은 “기능을 되살리고, 생명을 살리며, 동물과 인간의 건강한 공존에 기여한다”는 철학을 기반으로 하는 정형외과/신경외과 전문 동물 병원으로 관절, 척추, 골절, 중증외상 및 신경계질환 등에 대한 특화 동물병원이다. 고난이도 수술 및 중증환자의 집중치료, 재활치료가 가능한 전문 동물 병원이다.
이러한 성격의 수술 진료 특화된 전문 동물병원의 공간 컨셉으로 떠올랐던 문구들이다. “Less but More” & More but Less” 와 “Form Follows Function” 간결함속에 더 많은 이야기가 있다고 믿고 기능과 시스템으로 구축된 조형적 완성미를 추구하고싶었다. 단순히 우리가 많이 접해왔던 애완반려동물들 공간 애견카페인지 애견 케어 공간인지 병원인지 잡화점인지 구분이 모호한 성격의 모습으로 기억되는 공간이 되고 싶지 않았다. 가장 전문적이면서 공간을 통한 고객들의 믿음과 신뢰를 제공해 줄 수 있는 공간 이길 바랬다. 그래서 모든 공간의 방식은 앞서 이야기한 미를 추구하기 위한 고민이 아니라 기능과 시스템의 해결책을 통한 디자인 출발을 했다.
반려동물들의 행동 패턴과 성향을 파악한 형태의 마감재 선택
병원내 바닥은 콘크리트 강화를 통해 유지 관리 및 청결에 대한 고민을 했다. 코너의 라운딩은 오줌을 누는 강아지의 행동에서 관리적 접근과 입원실의 구성에서 소형견, 대형견, 고양이들의 특성을 고려한 배치와 실구성을 계획했다. 대형견은 짖는 소리가 처치실의 작업의 방해를 주기 때문에 전실을 두어 2중실로 구성하는 방식과 행동이 크고 배설관리를 효율적으로 하기위한 물 시스템 적용되어 졌다. 가장 간결한 방식으로 공간을 채워야 가장 많은 것을 담을 수 있다고 믿는다. 연구실과 실험실과 같은 기운이 느껴지는 톤을 설정하고 평면을 가장 시스템적으로 배치하면서 각 기능별 실의 크기와 위치를 합리적으로 배치하는데 집중했다. 환자의 물리적인 행동을 고려하기도 하지만 보호자의 신뢰감 안도감을 우선 고려하여 모든 치료과정을 (진료>처치>입원>수술>재활치료>연구) 자연스럽게 노출되도록 구성하여 전과정을 보호자가 시각적 체험이 가능하도록 했다. 기능별 실조닝을 한 후 볼륨스터디 과정을 거쳐 각각의 실을 리듬감있는 매스로 구성하여 동일한 마감재의 표피를 사용했지만 공간내의 풍성함을 잃지 않도록 했다.
























Design Betwin Space Design
Location Yeongtong-gu, Suwon-si, Gyeonggi-do, Republic of Korea
Building area 363m²
Completion 2017. 01
Designer Hwanwoo Oh, Junggon Kim
Constructor Betwin Space Design
Brand identity YNL DESIGN(이유나)
Photographer Yongjoon Choi
'Interior Project > Retail' 카테고리의 다른 글
| Rareraw (0) | 2022.02.25 |
|---|---|
| Blessing - Castellammare Di Stabia (0) | 2022.02.03 |
| Homme Store (0) | 2022.01.13 |
| Cubitts Victoria Arcade (0) | 2022.01.07 |
| OUTOFSTOCK (0) | 2021.12.31 |
마실와이드 | 등록번호 : 서울, 아03630 | 등록일자 : 2015년 03월 11일 | 마실와이드 | 발행ㆍ편집인 : 김명규 | 청소년보호책임자 : 최지희 | 발행소 : 서울시 마포구 월드컵로8길 45-8 1층 | 발행일자 : 매일



