
Territories of the Danube-Ipoly National Park (DINP) encompassing mountains, river valleys and plains spread out also in the vicinity of Budapest. DINP opened a new visitor center in Pilisszentiván, near the center of the settlement. The task was to provide a solution considering the natural fit into a residential village area and the function of a characteristic public facility. As a concept of extension, a new skin of wooden slat structure frames the extant white plastered core.
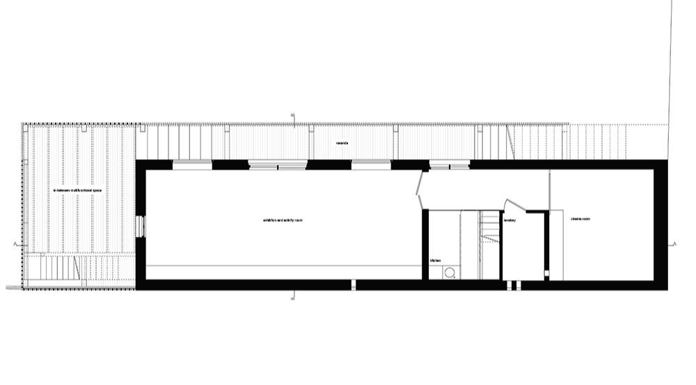
The section remained in residential scale, but the length of the house gathering new functions leaps to public facility scale.
On sloping terrains the building line usually follows the gradient. In this case however, this traditional approach would have resulted in significant altitude difference between the two endpoints of the ridge. This was handled with a slight leaning of the ridge instead of slicing the volume (like in cases of further built traditional houses). This solution reserved the public building characteristic while keeping residential proportions on the end facades.
Wooden slat shell made of larch (Larix decidua) frames the white plastered original house. This shell creates transition space between outside and inside. The transparency enhances the public character and sets up a pleasing pattern of lights and shadows in the building.
The original ground floor is still the functional core of the building, here takes place the exhibition, while on the top floor there is an open office space for the colleagues of the National Park on the entrance side and an attic atmosphere quarters for the schoolchildren. Shaping of the outdoor environment was also considering the requirements of the practical courses offered by the National Park in several respects: the outdoor learning space in the steep slope, the wooden slat bordered garden terrace, the familiar loft terrace connecting the children quarters, the cook-house in the garden, and of course the long garden itself.

부드러운 목재로 덮인 상생의 공간, 두나이폴리 국립공원 방문자 센터
두나이폴리 국립공원(DINP)의 산, 강과 계곡, 평야를 아우르는 영토는 부다페스트 인근까지 펼쳐져 있다. 정착촌의 중심인 필리젠티반(Pilisszentivan)에 위치한 새로운 방문자 센터는 주거지역에 자연스럽게 녹아들면서 공공시설의 특성을 고려한 프로그램을 제공한다. 대지에 존재했던 기존 흰 주택의 코어를 목구조의 새로운 입면으로 구성했다.
건물의 규모는 기존 주거용 건물의 규모지만 새로운 기능을 통해 집의 길이는 공공시설 규모로 커졌다. 경사진 지형에서 건물의 선은 일반적으로 기울기를 따르게 된다. 그러나 이 건물은 기존의 접근 방식을 따른다면 능선의 두 끝점 사이에 상당한 고저차를 초래하게 된다. 따라서 건물의 볼륨을 분할하는 대신에 전체 능선을 약간 기울여 계획했다. 이 방법을 통해 외관은 주거 비율을 유지하면서 공공건물의 특성을 가질 수 있었다.
낙엽송(Larix decidua)으로 만든 목재 파사드는 흰 미장으로 마감되어 있던 기존 건물의 외관을 씌우는 형태다. 이 셸은 내·외부 사이에 전환 공간을 만들면서 투명성을 통해 공공성을 강화하고 건물에 다채로운 빛과 그림자의 패턴을 만든다.
건물의 1층부에서는 전시회가 열리고 2층부 입구 쪽에는 국립공원 직원들을 위한 열린 사무실과 학생들을 위한 다락방 분위기의 숙소가 있다. 가파른 경사면을 따라 야외 학습공간을 배치하고, 목재 파사드로 싸인 정원 테라스, 학생 숙소를 연결하는 다락방 테라스, 정원의 요리공간을 계획했다.

















Architect ÉPÍTÉSZ STÚDIÓ
Location Pilisszentiván, Hungary
Area 265㎡
Completion 2020
Principal architect Richárd Hőnich, Péter Nagy
Design team Építész Stúdió
Architectural detail Géza Kapovits
Project manager DINP(Judit Vida, Tibor Károlyi, Pál Kézdy)
Structural engineer Tetra-Plan(Gábor Cséfalvay, Miklós Armuth)
Mechanical engineer Mangel Épületgépész Iroda(Zoárd Mangel)
Electrical engineer Árpád Szabó
Fire protection Antal Bársony
Construction Zoltán Kasza
Construction supervisor Eurout Kft.(Orsolya Soltész)
Photographer Juhász Norbert Photography
해당 프로젝트는 건축문화 2021년 10월호(Vol. 485)에 게재되었습니다.
The project was published in the October, 2021 recent projects of the magazine(Vol. 485).
October 2021 : vol. 485
Contents : RECORDS SEOUL ARCHITECTURE FESTIVAL 2021 성황리에 마친 서울건축문화제 2021 FORESCO, PREPARING FOR THE "CARBON NEUTRAL" THROUGH RECYCLING EXHIBITION 포레스코, 리사이클링 ..
anc.masilwide.com
'Architecture Project > Cultural' 카테고리의 다른 글
| BOGORCREATIVE HUB (0) | 2022.01.21 |
|---|---|
| LA MAISON DEL’ÌLE AUX OISEAUX (0) | 2022.01.20 |
| HIMITSUJANAI KICHI (0) | 2022.01.18 |
| CUISUBA YI CULTURAL & VISITOR CENTER (0) | 2022.01.17 |
| DESERT X ALULA VISITOR CENTRE (0) | 2022.01.14 |
마실와이드 | 등록번호 : 서울, 아03630 | 등록일자 : 2015년 03월 11일 | 마실와이드 | 발행ㆍ편집인 : 김명규 | 청소년보호책임자 : 최지희 | 발행소 : 서울시 마포구 월드컵로8길 45-8 1층 | 발행일자 : 매일



