
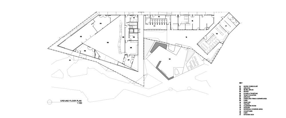
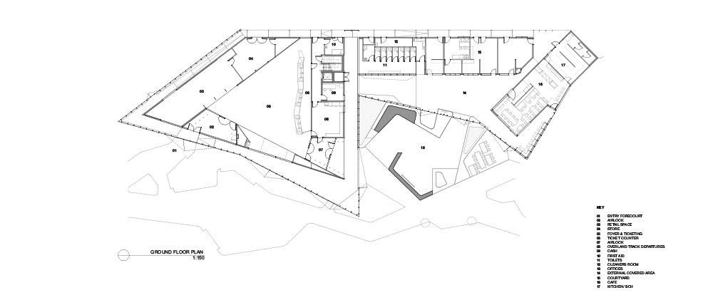
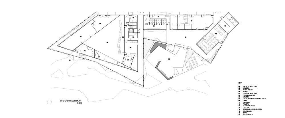
The Visitor Centre offers a warm alpine welcome to reflect both the sense of rugged-up anticipation on arrival and the distinctive Cradle Mountain geology. The sculptural, wilderness-inspired development includes an orientation building, commercial services base, shuttle bus shelter and coach transit centre. At every turn, we aimed to honour the significance and sensitivity of this worldrenowned national park.
We designed the buildings to feel grounded, as if carved from a solid rock by a glacier. The umbrella rain-screen form references the folding angular geology of the site, inviting visitors into the cave-like timber interior. It’s quite a feeling to walk inside the sculpted interior timber cave, a completely unexpected gem inside the building.
Our intuitive way-finding strategy creates a flow to subtly guide visitors while they interact with site interpretation and visitor information. We used a hierarchy of space that organises services but lets the staggering natural setting sing out.

산행으로 지친 사람들을 따뜻하게 품는 보금자리, 크래들 산의 방문자 센터
크래들 산의 방문자 센터는 산의 독특한 지형을 반영한 디자인으로 험난한 산행을 거친 사람들에게 따뜻한 보금자리가 된다. 야생에서 영감을 받아 조각하듯 만들어진 건물에 관광 안내소, 상업공간, 셔틀버스 정류장 및 버스 환승센터 기능이 포함됐다. 건물의 각 모퉁이마다 세계적으로 유명한 이 국립공원의 중요성과 감수성을 담아내는 것을 목표로 삼았다.
모든 건물이 땅에 발을 딛고 서있는 느낌이 들도록 단단한 암석을 깎아 만든 것처럼 계획했다. 우산 형태의 레인 스크린은 부지의 접힌 듯한 각진 지형을 참조했으며, 방문객들을 동굴 같은 내부로 이끄는 역할을 한다. 건물 내부의 목재 동굴 공간은 방문객들에게 전혀 예상치 못한 보석 같은 느낌을 준다.
직관적인 동선계획은 방문자가 부지에서 느끼는 공간의 감각과 상호작용하는 동안 자연스럽게 안내하는 흐름을 만들도록 계획했다. 이를 통해 건축가는 각 프로그램들을 연결하면서도 놀라운 자연환경을 느낄 수 있는 공간을 구성할 수 있었다.












Architect Cumulus Studio
Location Cradle Mountain, Tasmania, Australia
Site area 98,428㎡
Building area 1,379㎡(including covered walkway), 880㎡(including ground floor area without covered walkways)
Gross floor area 1,639㎡
Completion 2020. 6
Principal architect Peter Walker
Project architect Andrew Geeves, Elizabeth Walsh
Design team Luke Waldron, Todd Henderson, Matt Green, Claire Austin, Jason Licht, Gary Fleming
Landscape architects Playstreet
Lighting design Stantec
Planning consultants ERA Planning
Structural engineer Aldanmark
Electrical engineer Pitt & Sherry
Construction Fairbrother
Client Department of Primary Industries, Parks, Water and Environment, Tasmania(Tasmania Parks & Wildlife Services)
Photographer Anjie Blair, Rob Burnett
해당 프로젝트는 건축문화 2021년 10월호(Vol. 485)에 게재되었습니다.
The project was published in the October, 2021 recent projects of the magazine(Vol. 485).
October 2021 : vol. 485
Contents : RECORDS SEOUL ARCHITECTURE FESTIVAL 2021 성황리에 마친 서울건축문화제 2021 FORESCO, PREPARING FOR THE "CARBON NEUTRAL" THROUGH RECYCLING EXHIBITION 포레스코, 리사이클링 ..
anc.masilwide.com
'Architecture Project > Cultural' 카테고리의 다른 글
| DESERT X ALULA VISITOR CENTRE (0) | 2022.01.14 |
|---|---|
| VISITOR CENTER IN SKOMAKERDIKET LAKE (0) | 2022.01.13 |
| MON AMOUR (0) | 2021.12.28 |
| THE IAN POTTER SOUTHBANK CENTRE (0) | 2021.12.21 |
| MATSUBARA CIVIC LIBRARY (0) | 2021.10.22 |
마실와이드 | 등록번호 : 서울, 아03630 | 등록일자 : 2015년 03월 11일 | 마실와이드 | 발행ㆍ편집인 : 김명규 | 청소년보호책임자 : 최지희 | 발행소 : 서울시 마포구 월드컵로8길 45-8 1층 | 발행일자 : 매일



