
The new home of the Melbourne Conservatorium of Music celebrates the activities of music rehearsal and practice – a green room for Melbourne’s arts precinct.
Outwardly focused and inviting, the building balances the singular concentration required of students with the camaraderie of engaging with others. The building is a place to rub shoulders with fellow music students, and the artistic milieu of the wider campus and precinct.
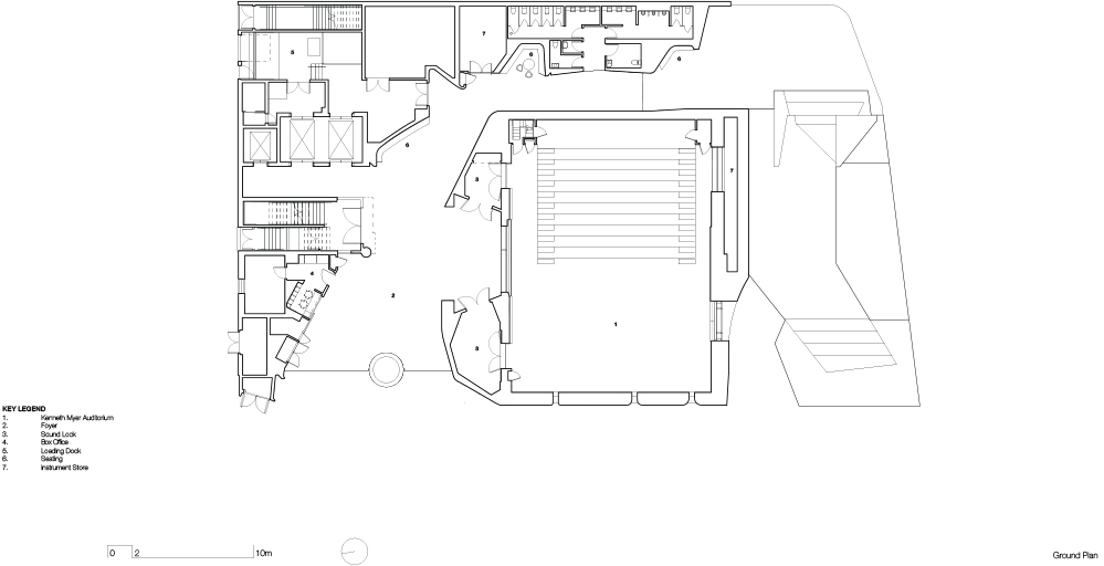
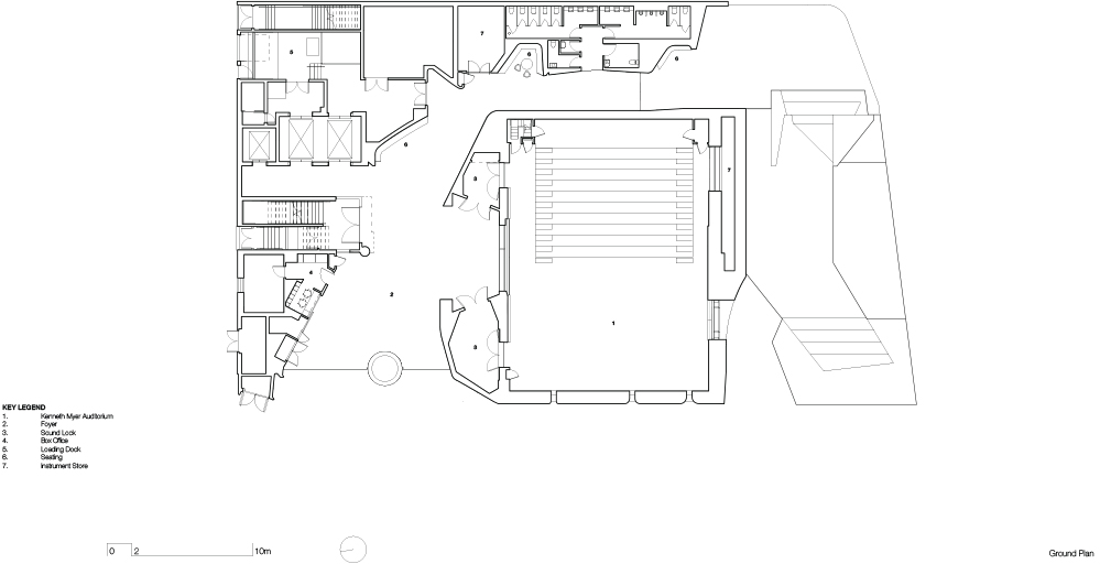
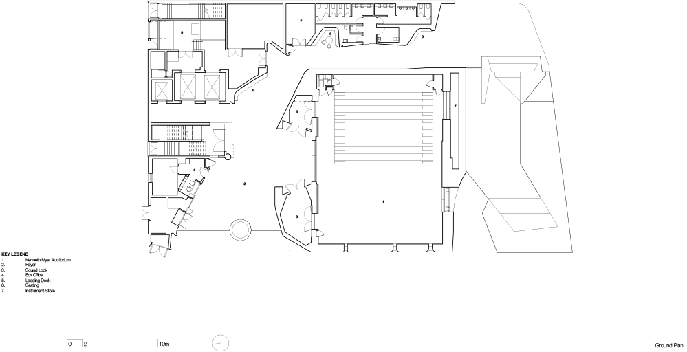
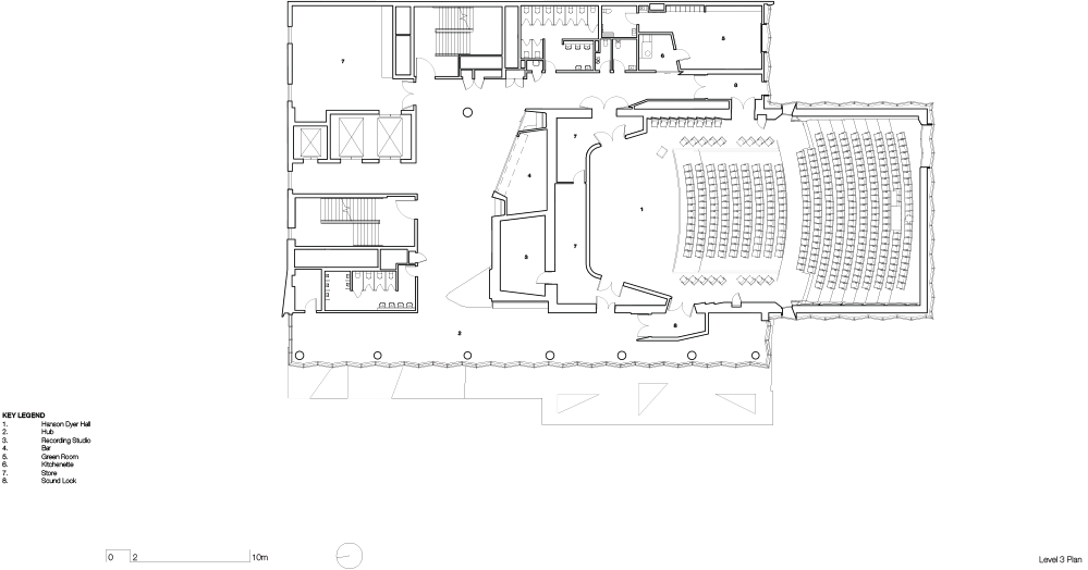
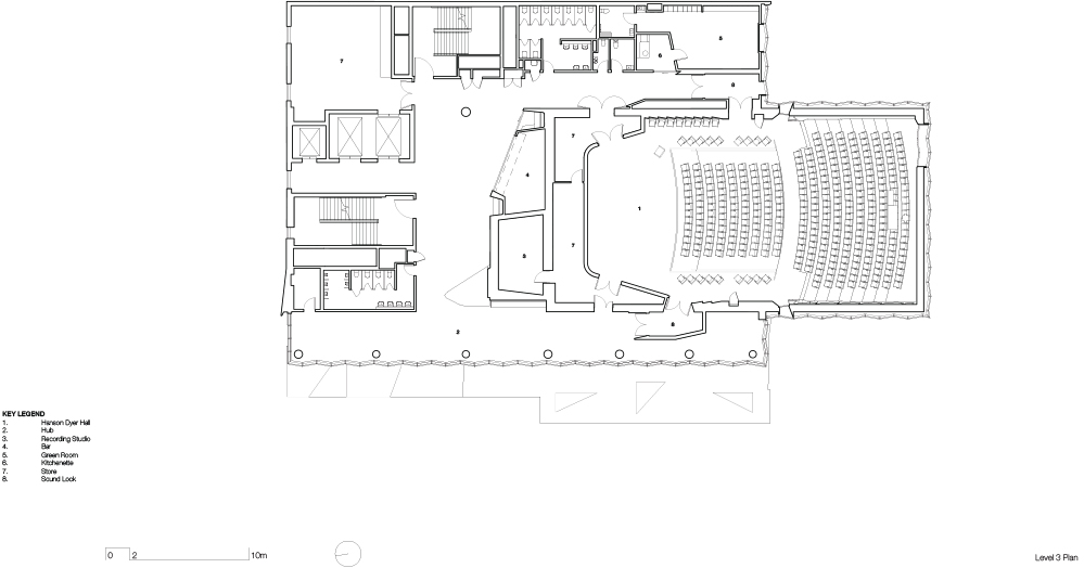
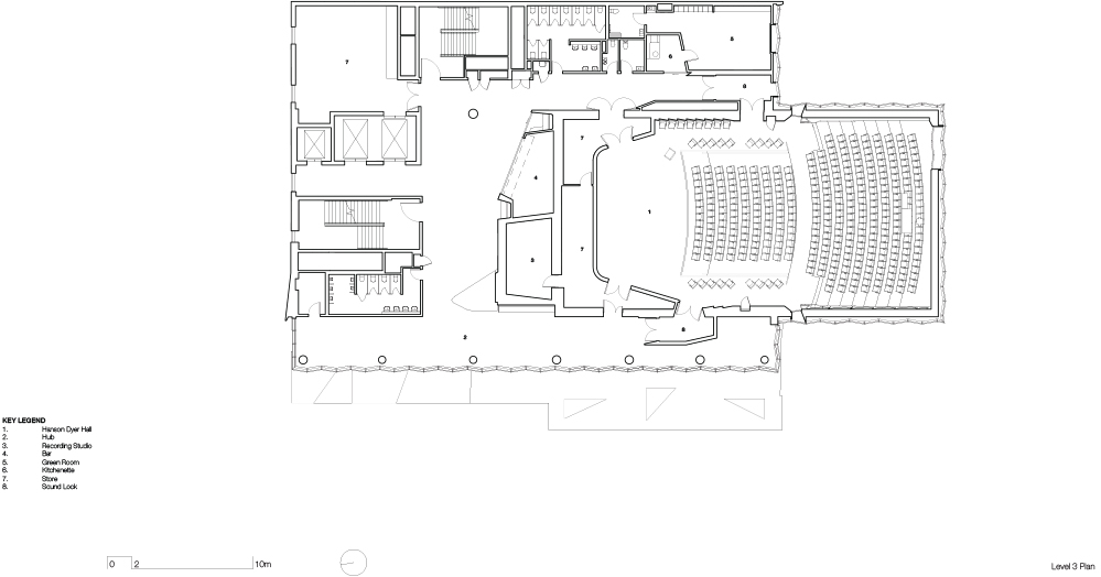
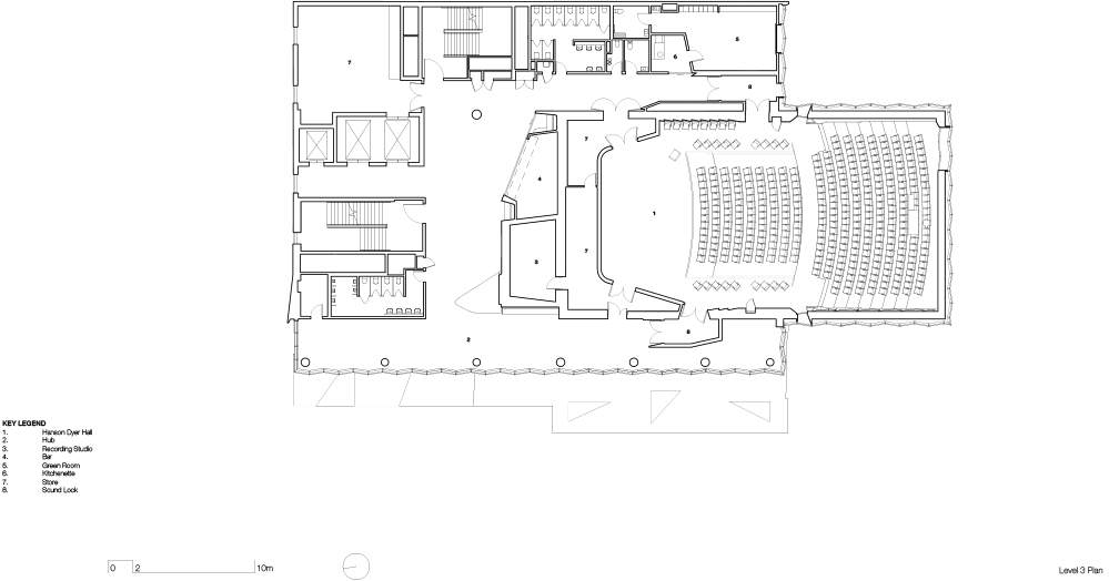
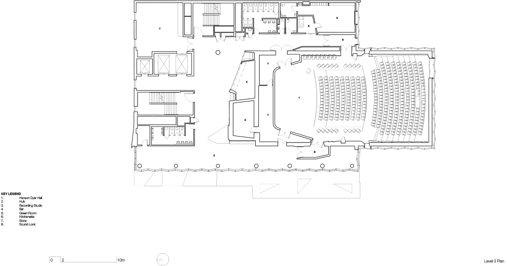
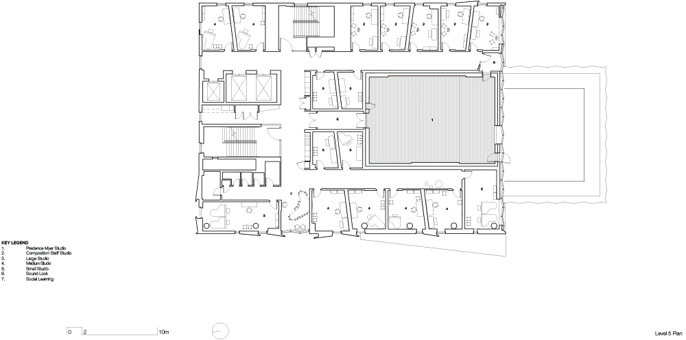
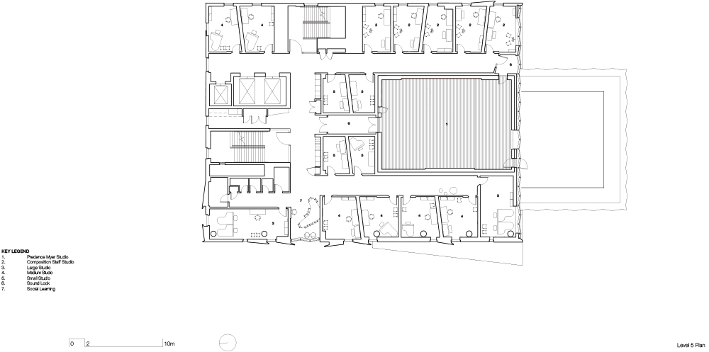
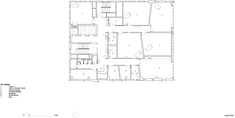
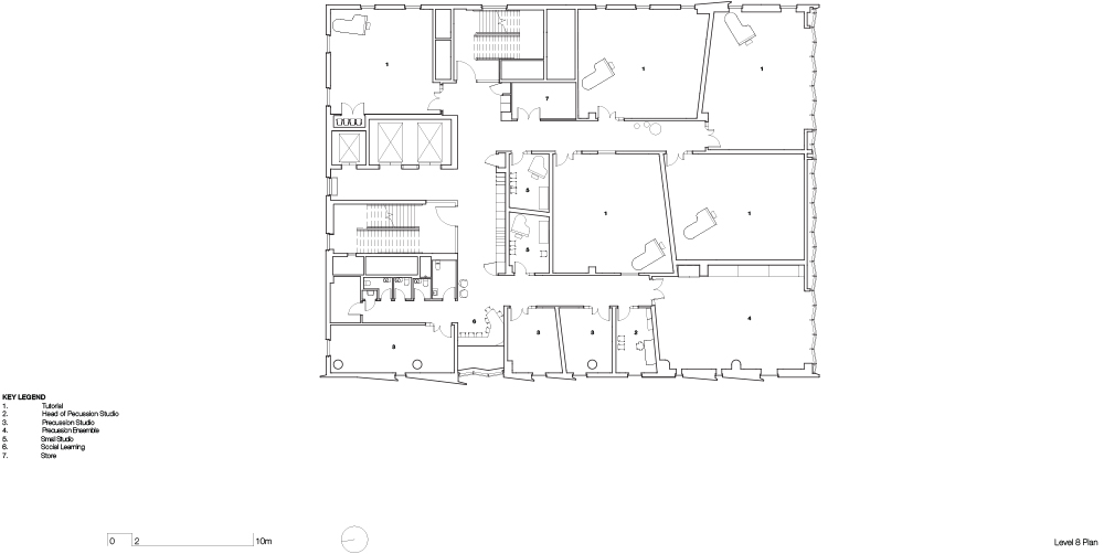
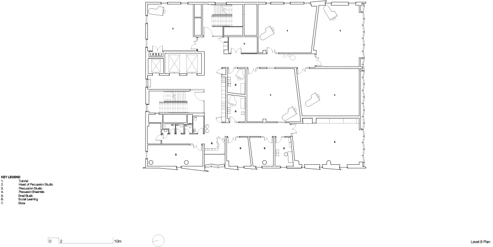
Numerous vantage points in the conservatorium allow for appreciating the inner workings of music teaching. Throughout the building, learning and rehearsal spaces are interspersed with bell-shaped portholes, hinged panels and disguised windows that generously exhibit the activity within. The largest of these apertures is the oculus window located on the ground floor of the orchestral rehearsal space, it offers passers-by a glimpse into the inner realm of music education.

거리에서 감상하는 음악의 세계, 이안 포터 사우스뱅크 센터
멜버른 음악학교의 새 보금자리는 멜버른의 예술을 위한 녹색 공간으로서 여러 음악활동과 연습을 위한 공간을 제공한다. 외관에서부터 이목을 끄는 이 건물은 학생 개개인이 스스로에게 집중하는 것과 서로 교류하는 동지애 사이의 균형을 이루고 있다. 동시에 더 넓은 캠퍼스와 멜버른 지역의 예술적 환경을 조성한다.
이 학교는 음악 수업의 내부를 감상하는 것으로 지역 사회와 소통한다. 건물 전반에 걸쳐져 있는 교육 및 리허설 공간들은 커다란 둥근 창, 경첩이 달린 패널 그리고 수업 활동을 아낌없이 보여주는 숨겨진 창들로 수놓아져 있다.
이 개구부들 중 가장 큰 것은 오케스트라 리허설 공간이 있는 1층에 위치한 오큘러스 창이다. 지나가는 사람들은 이 창을 통해 음악 교육의 내부 세계를 잠시 엿볼 수 있다.













Architects John Wardle Architects
Location Southbank, Victoria, Melbourne, Australia
Site area 3,430㎡
Building area 1,340㎡
Gross floor area 9,700㎡
Project period 2015 - 2019
Principal architect John Wardle
Design team John Wardle, Stefan Mee, Meaghan Dwyer, Andy Wong, Kah-Fai Lee, Stephen Georgalas, Megan Marks, Minnie Cade, Alan Ting, James Loder, Jeff Arnold, Barry Hayes, Tom Denham, Alexandra Morrison, Clare Porter, Ariani Anwar, Daniel Sykes, Sharon Crabb, Kristina Levenko, Adrian Bonaventura, Tatiana Malysheva, Bill Kalavriotis, Sumedha Dayaratne, David Ha, Anna Jankovic, Will Rogers, Nick Roberts
Landscape architect Aspect Studios
Structural engineer Irwin Consult
Facade engineer Arup
Civil engineer Irwin Consult
Acoustic Marshall Day Acoustics
Construction Lendlease
Client The University of Melbourne
Photographer Trevor Mein
해당 프로젝트는 건축문화 2021년 9월호(Vol. 484)에 게재되었습니다.
The project was published in the September, 2021 issue of the magazine(Vol. 484).
September 2021 : vol. 484
Contents : RECORDS 39TH SEOUL ARCHITECTURE AWARD 서울시, 제39회 서울특별시 건축상 발표 WOOD PLASTIC COFFEE DECK, THE MATERIAL IN THE LEADING CARBON-NEUTRAL ERA 커피박 합성목재, 선..
anc.masilwide.com
'Architecture Project > Cultural' 카테고리의 다른 글
| CRADLE MOUNTAIN GATEWAY PRECINCT (0) | 2022.01.12 |
|---|---|
| MON AMOUR (0) | 2021.12.28 |
| MATSUBARA CIVIC LIBRARY (0) | 2021.10.22 |
| GALLERY SIMON (0) | 2021.10.18 |
| GUNG-DONG ART CENTER (0) | 2021.09.01 |
마실와이드 | 등록번호 : 서울, 아03630 | 등록일자 : 2015년 03월 11일 | 마실와이드 | 발행ㆍ편집인 : 김명규 | 청소년보호책임자 : 최지희 | 발행소 : 서울시 마포구 월드컵로8길 45-8 1층 | 발행일자 : 매일



