
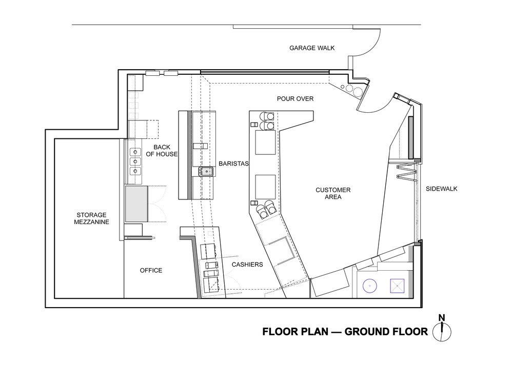
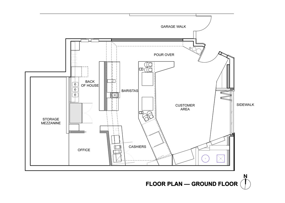
The cafe sits at the entrance to Saint Mary’s Garage, located centrally on the block of Kearny Street directly across from the Bank of America plaza. This stretch of sidewalk has been plagued by vacancy: adjacent lies a neglected lot, and the space itself has been empty for at least twenty years. After the Loma Prieta earthquake, the garage underwent seismic upgrades. This placed a large concrete shear wall between the space and the sidewalk, effectively making it undesirable for retail. In an effort to bring life back to this crucial pedestrian zone, the concrete shear wall was opened, connecting the space to the sidewalk. In order to reduce waste, materials were used sparingly. Instead of covering up an othewise rough shell, existing concrete and piping were refreshed and left exposed, celebrating their industrial character.
Utilizing the Japanese Shou Sugi Ban technique, the exterior wood siding is scorched, a process which inherently prolongs the life of the wood. Above the opening, the scorching fades into the wood’s natural color. On the left, at pedestrian level, the scorched wood wraps to the interior, becoming the main intervention: a black frame surrounding the baristas. This black frame becomes a room within a room, emphasizing the artistry of the barista through a minimal use of materials and high efficiency lighting. The blackened steel counter provides a stark backdrop for the finished product, and will patina over time.

카페는 Bank of America 광장 바로 건너편 Kearny Street 블록 중앙에 위치한 Saint Mary's 차고의 입구에 있다. 이 블록은 공실에 시달렸다. 인접한 곳에 방치된 부지가 있으며, 그 공간 자체는 적어도 20년 동안 비어 있었다. 1989년 로마 프리타 지진 후 차고는 내진 보수를 받았다. 공간과 인도 사이에 큰 콘크리트 전단벽을 배치하여 소매점에서 바람직하지 않게 만들었다. 이 중요한 보행자 구역에 생명을 불어넣기 위한 노력의 일환으로 콘크리트 전단벽을 열어 공간을 인도와 연결했다. 쓰레기를 줄이기 위해 최소한의 재료를 사용했다. 거친 쉘을 덮는 대신 기존 콘크리트와 배관을 새로 고치고 노출된 채로 두어 산업적 특성을 기념했다.
일본의 전통적인 목재 보존 방법인 Shou Sugi Ban 기술을 사용하여 목재의 외부 측멱을 그을리는 과정을 통해 목재의 수명을 연장한다. 개구부 위의 그을린 나무의 색상으로 자연스러워진다. 왼쪽의 보행자 동선에서는 그을린 나무가 내부를 감싸고 있어 바리스타를 둘러싼 검은색 프레임이 주요 개입이 된다. 이 블랙 프레임은 방 안의 방이 되어 최소한의 재료 사용과 고효율 조명을 통해 바리스타의 예술성을 강조한다. 검게 칠해진 강철 카운터는 완성된 제품의 완벽한 배경을 제공하며 시간이 지남에 따라 녹청색이 된다.









Architects jones | haydu
Location San Francisco, United States
General contractor Northern Sun
Structural engineer Double D Engineering
Photographer Art Gray
'Interior Project > Cafe&Restaurant' 카테고리의 다른 글
| Galaxy Bar and Bottle Shop (0) | 2022.01.03 |
|---|---|
| Minéral (0) | 2021.12.24 |
| STETCH (0) | 2021.12.16 |
| Torteria San Cosme (0) | 2021.12.15 |
| Shuck Shuck (0) | 2021.12.14 |
마실와이드 | 등록번호 : 서울, 아03630 | 등록일자 : 2015년 03월 11일 | 마실와이드 | 발행ㆍ편집인 : 김명규 | 청소년보호책임자 : 최지희 | 발행소 : 서울시 마포구 월드컵로8길 45-8 1층 | 발행일자 : 매일



