
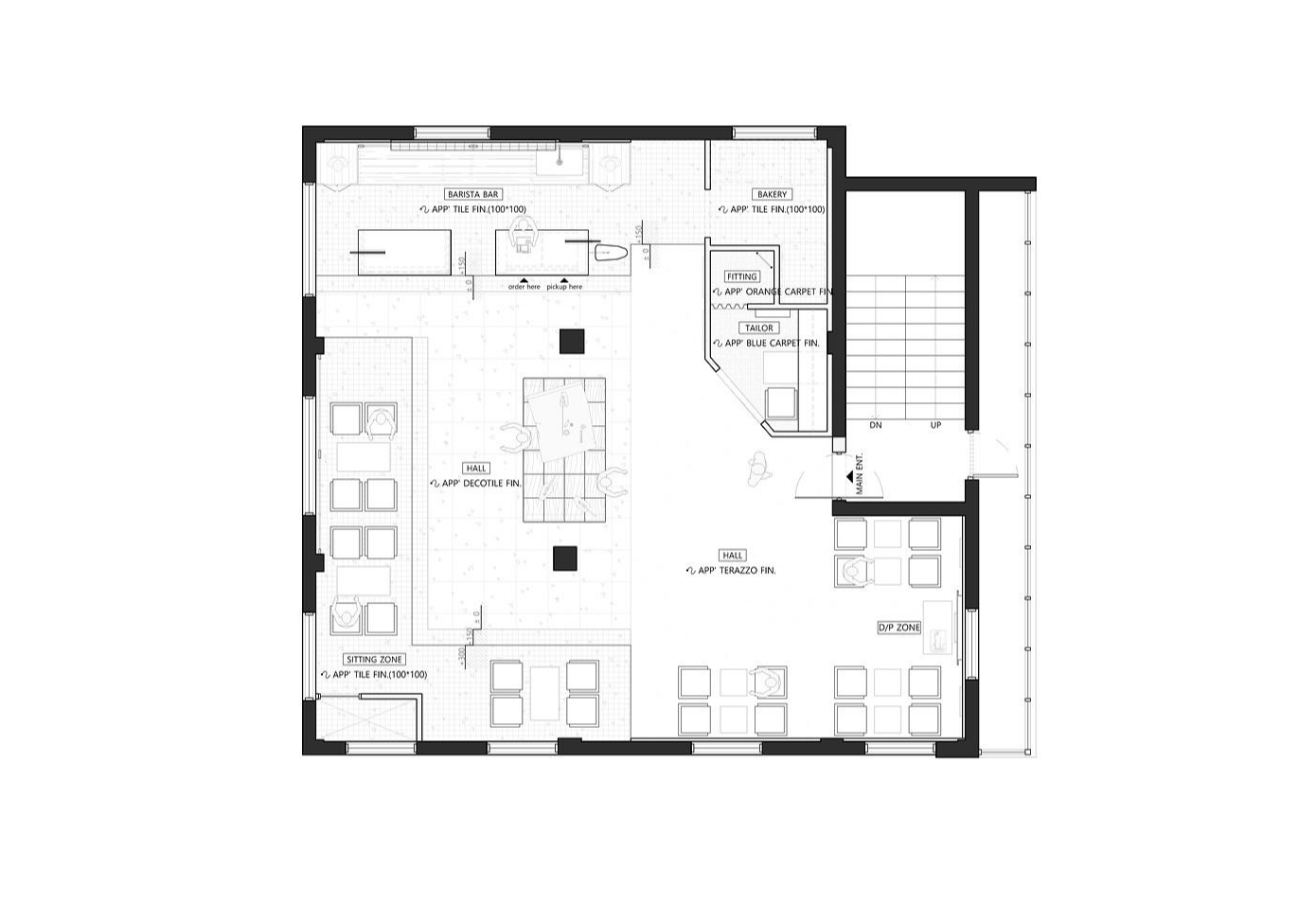
Stetch Cafe is a project that started from the story of the client. The client, a barista, wanted to present this space as a trophy to their parents by reinterpreting the now forgotten story of their parents, who once made a name for themselves as tailors all their lives, in Seongsu-dong. The space has a barista space where the barista client can make coffee, and a tailor zone where the parents, who were seamstresses, can perform consulting and mending works.

Before Stetch Cafe was built, this place was used as a repair shop, and this gave us another idea that could best represent the concept of ‘recalling the past reinterpreted in a modern way’. A new finish was used for half of the floor, but we reused the existing finish for the other half so that it could be revealed as it is. We designed it with the intention of capturing our concept, while leaving the traces of when this space was a repair shop. Since it was a project that focused on reinterpreting the recollections of the past in a modern way, the space was formed with diverse colors and finishes, and the sewing table, irons the fabrics and skeins of colorful patterns delight the eyes.

The most prominent finishing material is the primary colored, checkered fabric. As it is natural and familiar for people to wear clothes made of different fabrics, this finishing material was chosen with the intention of dressing the space with various checkered fabrics. Moreover, we wanted to express the feeling as if the space was formed by sewing one stitch at a time using various colored ropes both inside and outside, and the section where this stands out the most dramatically is the facade. The unity of applying the characteristic of ‘sewing’ to the entire space using colored ropes continues in the interior. Details using these ropes can be seen throughout the space, such as the barista workbench, the pillar face finishes, and the tailor zone window frames.

In addition, all the colored finishing materials, such as the front wall of the barista bar finished with yellow paint and the blue and orange floor tiles, support the design intent of ‘recalling the past reinterpreted in a modern way’. In the very center of the space, there is a cutting board sitting zone inspired by the appearance of seamstresses of the past sitting around a wide, low cutting board, ironing and sewing. Leather fabrics and irons were roughly displayed together as elements that can clearly show that it is a piece of furniture made with the motif of a cutting board.

카페 스테치는 한 때 평생을 재봉사로 이름을 떨쳣던, 하지만 지금은 희미해진 부모님의 이야기를 바리스타 아들이 성수동에서 다시 재해석하여, 이 공간을 부모님께 트로피로 선사하고 싶다는 클라이언트의 스토리에서 시작된 프로젝트이다. 공간은 바리스타인 클라이언트가 커피를 만들어낼 바리스타 공간과, 재봉사였던 부모님께서 상담 및 수선 업무를 하실 수 있는 테일러 존이 마련되어 있다. 카페 스테치가 생긴 전, 실제로 이 곳은 수선집으로 사용되던 공간으로, 우리는 ‘현대적으로 재해석된 과거의 회상’ 이라는 컨셉을 잘 타나낼 수 있는 또 하나의 아이디어를 떠올렸습니다. 바닥의 반은 새로운 마감재이지만, 반은 기존의 마감재가 그대로 드러날 수 있게 재사용하였다. 이 공간이 과거서부터 수선집이었던 세월의 흔적을 남기고 싶은 동시에, 우리의 컨셉도 담아내고자 하는 의도로 디자인되었다.

과거의 회상을 현대적으로 재해석함에 초점을 두었던 프로젝트였기에 다양한 컬러와 다양한 마감재들로 공간을 구성하고 재봉테이블, 다리미, 그리고 알록달록한 다양한 패턴의 옷감들과 살타래들이 눈을 즐겁게 한다. 가장 포인트가 되는 마감재로는 원색의 체크패턴 원단을 입니다. 사람이 다양한 원단을 이용해 만들어진 옷을 입는 것은 당연하고 익숙하기에, 마찬가지로 공간에도 다양한 체크패턴을 활용한 원단을 입혀주고 싶다는 의도로 선택된 마감재였다. 또한 외/내부 통틀어 다양한 컬러 밧줄을 활용하여 마치 정말 한 딴 한 땀 재봉이 되어 공간이 만들어진 것 같은 느낌을 표현하고 싶었고, 그런 점이 가장 극적으로 돋보이는 섹션은 파사드이다. 컬러 밧줄을 통해 ‘재봉’이라는 특성을 공간 전반에 적용시키는 통일성은 내부에서도 이어진다. 바리스타 작업대, 기둥 벽 마감, 테일러존 창문틀 등 공간 곳곳에서 밧줄을 활용한 디테일을 볼 수 있다.

그 밖에도 원색의 노란색 도장으로 마감한 바리스타바 전면 벽이나 블루, 오렌지 바닥타일처럼 컬러가 들어간 모든 마감재가 ‘현대적으로 재해석된 과거의 회상’이라는 디자인 의도를 뒷받침해주고 있다. 공간의 가장 가운데에는 과거의 재봉사들이 넓고 낮은 재단판에 둘러앉아 다림질, 박음질을 하는 모습에서 영감을 받아 만들어진 재단판 시팅존이 있습니다. 재단판을 모티브로 만들어진 가구임을 여실히 보여줄 수 있는 요소로 러프하게 가죽 원단들과 다리미를 함께 디스플레이 하였다.




Studio WANDERLUST
Location 6, Yeonmujang 9-gil, Seongdong-gu, Seoul.
Use Cafe
Area 129.7㎡ / 39.2py
Design period 2021.06 - 2021.08
Construction period 2021. 08. 10 - 2021. 09. 10
Completion 2021. 09. 10
Design WANDERLUST Han Hye-soo, Jang Hyun-ju
Design team WANDERLUST Han Hye-soo, Jang Hyun-ju, Shin Yong-ho
Construction Luen Design
Photographer MO STUDIO
'Interior Project > Cafe&Restaurant' 카테고리의 다른 글
| Minéral (0) | 2021.12.24 |
|---|---|
| Coffee Bar Kearny (0) | 2021.12.20 |
| Torteria San Cosme (0) | 2021.12.15 |
| Shuck Shuck (0) | 2021.12.14 |
| Sliced Pizza- Terogong (0) | 2021.12.13 |
마실와이드 | 등록번호 : 서울, 아03630 | 등록일자 : 2015년 03월 11일 | 마실와이드 | 발행ㆍ편집인 : 김명규 | 청소년보호책임자 : 최지희 | 발행소 : 서울시 마포구 월드컵로8길 45-8 1층 | 발행일자 : 매일



