
Architecture to weave the Mediterranean
Throughout the Mediterranean there are dozens of domes and roofs that shine filtered by light and the blue of the sea flashes with ceramics. Almost a hundred years ago, the moment in which a perception evokes a memory was baptized as "Proust's Madeleine". An effect that inevitably arises when entering Trenta Tres, the renovated takeaway rice place in Petrer.
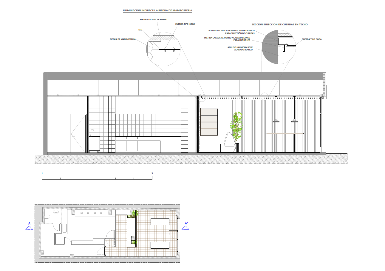
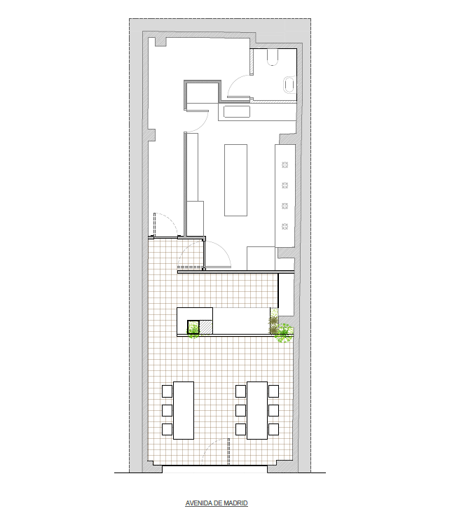
The project occupies a ground floor located on Avenida de Madrid, the main intersection - and the widest street - between the Elda and Petrer conurbation, near Alicante. The program is spread over the 72.67㎡ between the public counter where the traditional rice dishes are ordered and delivered and the kitchen reserved for the Trenta Tres team. The lighting and the finishing of the materials already advance at street level the appeal of a design that combines modernity and tradition. On a white ceramic panel, to match the interior, the store's label is displayed in blue. Longitudinal strips of light illuminate the walls, inviting you to enter the counter directly with the passage marked by two elongated tables. With an inexpensive and handcrafted design, even the tables have been designed on purpose for the takeaway, using oak wood with a handcrafted system of white lacquered sheet steel. A blue wall on the left and a white wall on the right are reminiscent of Proust's "madeleine" with glazed ceramic designed in Castellón.
The characteristic relief and volume of the piece not only recalls the typical tiles, but also the waves of the sea dancing with the light. Behind the counter, the back of the public area is topped by a masonry wall, a traditional stone-laying technique from Bateig, a quarry near Petrer. Chopped and laid by hand, the Bateig stone blends with the terracotta-like floor and brings clarity to the perspective of the takeaway. Planters that flank the counter add a touch of freshness to the place. For this, species such as the bird of paradise (Strelitzia augusta) and areca palms (Dypsis lutescens) have been chosen. To increase the feeling of spaciousness, their heights are alternated to invite you to look at the ceiling. A network of jute ropes, in the style of boat ropes, cross the false ceiling to increase the warmth of the takeaway with a simple but effective solution.

지중해를 엮은 건축
지중해 전역에는 빛에 의해 빛나는 수십 개의 돔과 지붕이 있고 바다의 푸른빛은 도자기처럼 반짝인다. 약 100년 전, 어떤 인식이 기억을 불러일으키는 순간을 '프루스트의 마들렌'이라고 표현했다. 스페인의 Petrer에 위치한 리노베이션 된 빠에야(스페인 요리) 테이크아웃 전문점인 TRENTA TRES에 들어서면 필연적으로 나타나는 효과다.
‘프루스트 효과(Proust Effect)’ 향기로 기억이 환기되는 현상 일반을 일컫는 심리학 용어. 프랑스 작가 마르셀 프루스트(Marcel Proust, 1871.7.10~ 1922.11.18)의 소설 ‘잃어버린 시간을 찾아서’에 등장하는 소설 주인공이 홍차에 적신 마들렌 조각을 머금는 순간 유년의 기억을 환기하는 유명한 에피소드에서 비롯된 용어.
이 프로젝트는 알리칸테 근처의 Elda와 Petrer 지역 사이의 주요 교차로이자 가장 넓은 거리인 마드리드의 지상 1층에 위치한다. 프로그램은 요리가 주문되어 배달되는 공용 카운터와 전용 주방 사이 72.67㎡에 걸쳐 펼쳐져 있다. 조명과 재료의 마감은 이미 거리 수준에서 현대성과 전통을 결합한 디자인의 매력을 발전시켰다. 흰색 세라믹 패널에는 인테리어와 어울리도록 상호가 파란색으로 표시되어 있다. 세로 방향의 빛이 벽을 비추며, 두 개의 긴 테이블이 표시된 통로로 카운터에 직접 들어가도록 유도한다. 저렴하고 수공예적인 디자인으로 테이블도 테이크아웃을 위해 의도적으로 디자인됐고, 하얀 옻칠한 강판의 수공예 시스템과 오크 나무를 사용했다. 왼쪽의 파란색 벽과 오른쪽의 흰색 벽은 Castellón에서 디자인된 유약 세라믹으로 Proust의 "마들렌"을 연상케 한다.
작품의 특징적인 부조와 볼륨은 전형적인 기와를 떠올리게 할 뿐만 아니라 빛과 함께 춤추는 바다의 파도도 떠올리게 한다. 계산대 뒤편에는 Petrer 근처의 채석장인 Bateig의 전통적인 석조 기술로 만들어진 석조 벽이 있다. 손으로 잘게 잘라 깔아놓은 Bateig 스톤은 테라코타 같은 바닥과 조화를 이루며 시야를 선명하게 해 준다. 카운터 옆의 화분들은 공간에 신선함을 더해준다. 이를 위해 극락조(Strelitzia Augusta)와 아레카 야자(Dypsis lutescens)와 같은 종이 선택됐다. 공간감을 높이기 위해 높이를 번갈아 가며 천장을 바라볼 수 있게 했다. 보트 밧줄이 천장을 가로지르며 간단하지만 효과적인 방법으로 보온성을 높였다.








Architects Pablo Muñoz Payá Arquitectos
Location Petrer, Alicante, Spain
Completion 2020. 6
Floor area 72.67㎡
Design team Sonia García Pérez, Pablo Marcos Vila, Raquel Miralles Pérez, Gemma Rincón del Río
Branding LaVaché
Photographer Pablo Muñoz Payá
'Interior Project > Cafe&Restaurant' 카테고리의 다른 글
| IVOIRE Pastry Boutique in Saigon (0) | 2021.11.30 |
|---|---|
| Keki Shop (0) | 2021.11.29 |
| Double Slash Coffee Space (0) | 2021.11.22 |
| Tea House in Hutong (0) | 2021.10.29 |
| SANDY BEACH BAKE HOUSE (0) | 2021.10.25 |
마실와이드 | 등록번호 : 서울, 아03630 | 등록일자 : 2015년 03월 11일 | 마실와이드 | 발행ㆍ편집인 : 김명규 | 청소년보호책임자 : 최지희 | 발행소 : 서울시 마포구 월드컵로8길 45-8 1층 | 발행일자 : 매일



