
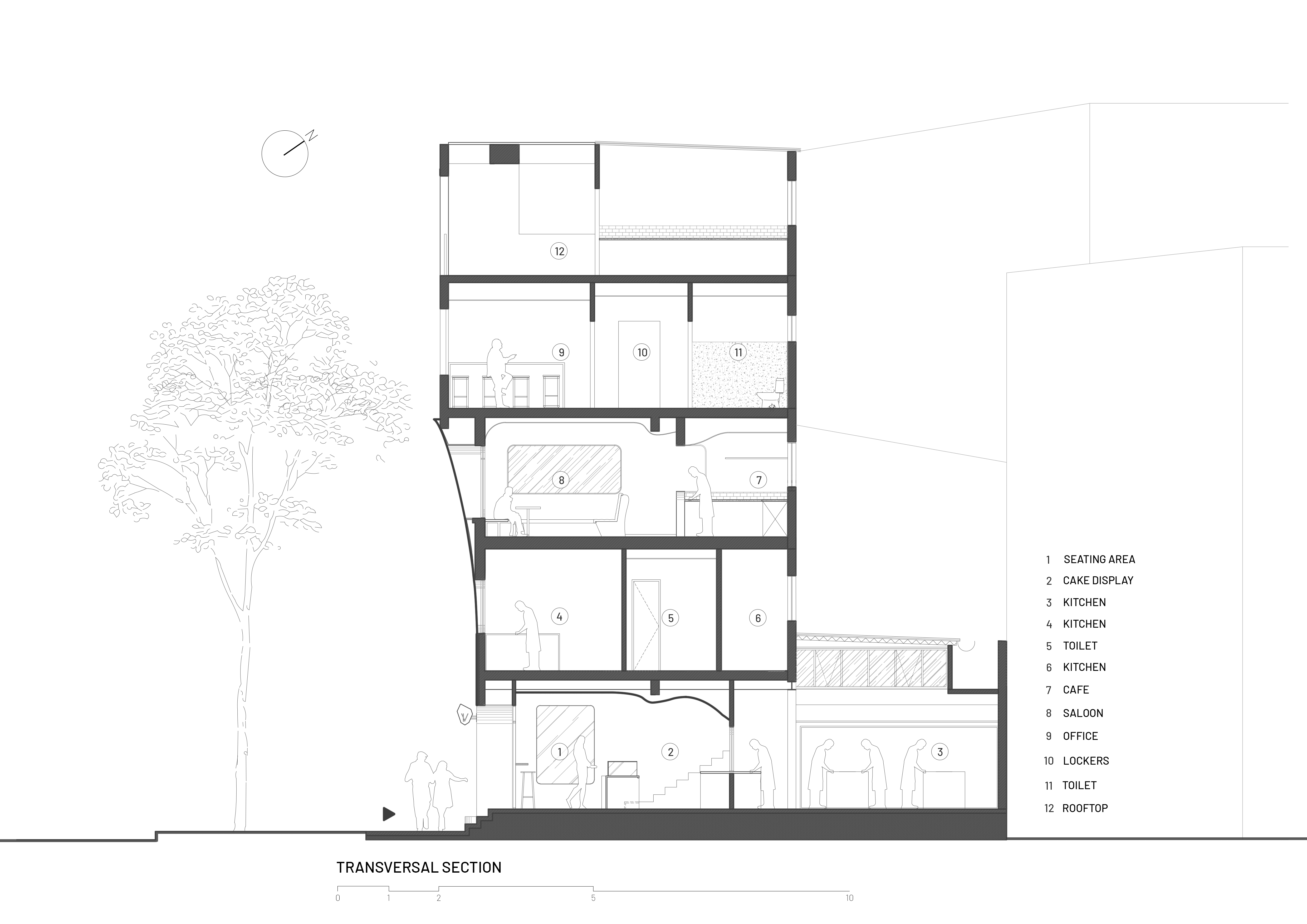
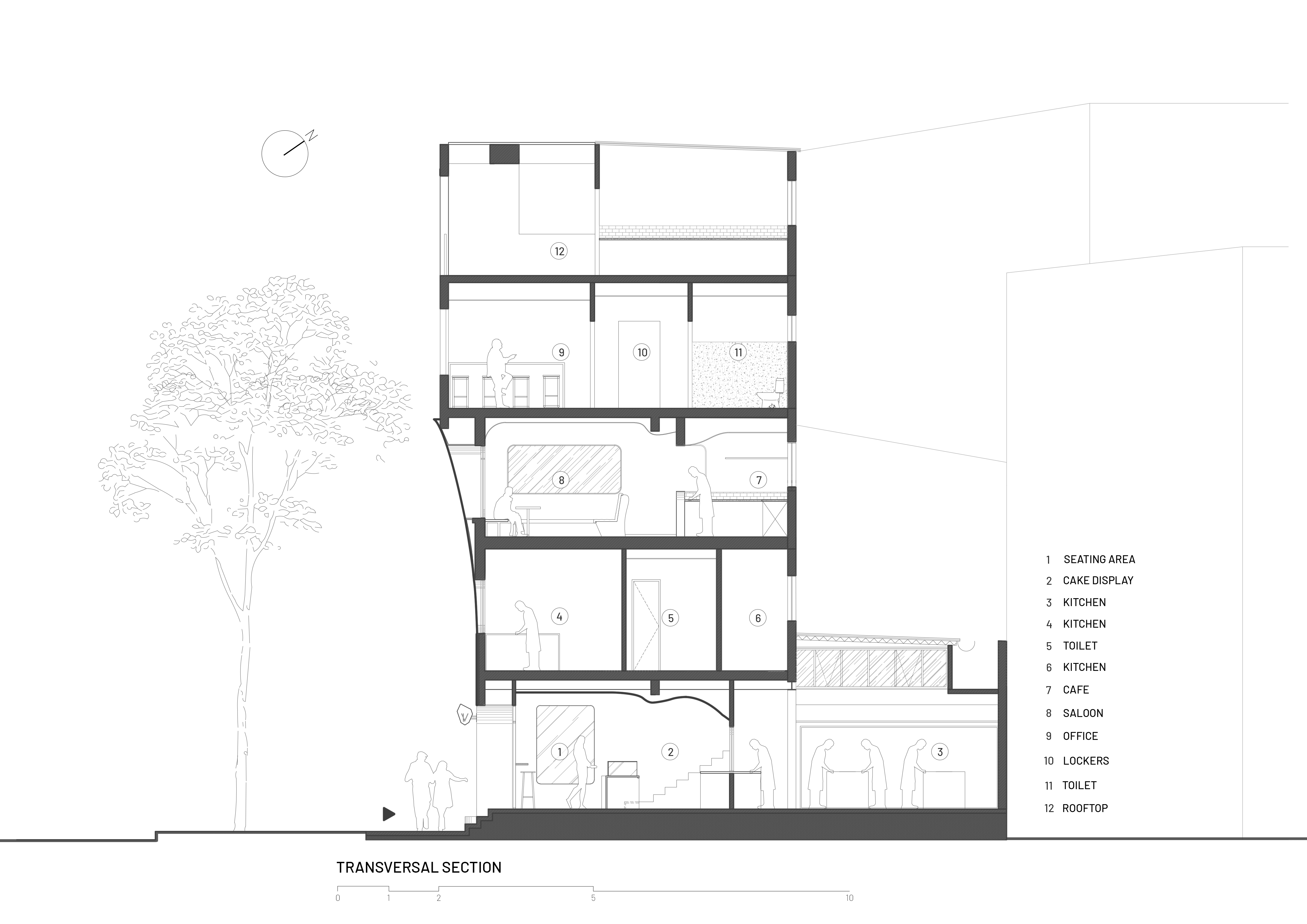
The design of T3 Team reflects the level of refinement of the pastries in terms of quality, aesthetic and innovation. First, T3 designers concentrate their effort on façade, to propose a minimalist design but promoting a Vietnamese’s materials (ceramic from North Vietnam), hand-made, with an Ivory color, of course. The random shapes of ceramic pieces brings both dynamism and elegance to the façade.
The door handle and signage has been designed by Matthias Laurent from Wedothatstuff and made by Sebastien Sicot, best steel craftsman in Vietnam; the illuminated flag sign has been hand-made by KOBI Lighting Studio workshop. The interior IVOIRE logo made in ceramic is an art piece from Agnes Thierry. All details have been carefully considered, designed and realized, like the pastries from Doan. When we push the doors, the pastries are highlighted by a very precise lighting with a strong red light index to make sure that the real color of cakes appear. It has also a direct positive impact on sales. All serious people know that. Staircase have been designed as an Art piece, with a beautiful stairs shape made in terrazzo, and inspired by pastry dough. Same for the “wave” of the façade and ceiling which makes reference to the softness of the dough before doing pastries. In terms of color palette, T3 mixed off-white (for façade and terrazzo floor), black (for steel frames), solid wood (to bring coziness), grey (stucco on certain walls) and a cocoa powder color (in line with “gourmandize”). Materials are all sourced in Vietnam to limit the pollution related to transport and also to promote the local economy and Vietnamese know-how. Air quality has been also well considered to avoid chemicals, VOC and all plastic, except the doors, lockers, large desk and roof at the 3rd and 4th level where T3 collaborated with Plastic People to design and produce tailor-made lose furniture made from recycled plastic (700kg recycled in total for such a “small” project).
T3 first intention on IVOIRE project was to convince the owners to preserve the concrete structure of the existing building as it is the most sustainable approach we can have when considering any project: preserving existing is the best manner to reduce the carbon footprint of the construction process. Then, if architects and interior designer are talented, it is always possible to turn a “basic” building” in a sustainable and elegant building which make Saigon more beautiful. Even on small project like IVOIRE Pastry, T3 always promotes a frugal approach in terms of Design solutions and selection of materials. Global warming affect all the Humanity right now and every single Design Studio must be involved to fight against it.

건축가의 디자인은 페이스트리의 품질, 미적 및 혁신의 수준을 반영한다. 첫째, 디자이너들은 미니멀한 디자인을 제안하면서도 아이보리 색상은 물론 수작업으로 만든 베트남 재료(북베트남 세라믹)를 홍보하기 위해 노력을 기울였다. 세라믹 조각의 무작위 모양은 외관에 역동성과 우아함을 제공한다.
도어 핸들과 간판은 Wedothatstuff의 Matthias Laurent가 디자인했으며 베트남 최고의 철강 장인인 Sebastien Sicot이 제작했다. 조명 깃반 사인은 KOBI 조명 스튜디오 공방에서 직접 제작했다. 세라믹으로 만든 내부의 IVOIRE 로고는 Agnes Thierry의 작품이다. 모든 디테일은 Doan의 페이스트리처럼 신중하게 고려, 디자인되고 실현됐다. 문을 밀면 페이스트리가 강한 적색광과 함께 매우 정밀한 조명으로 강조되어 케이크의 실제 색상이 보인다. 이는 매출에도 직접적인 영향을 미치고 있다. 계단은 테라조로 만들어졌으며 페이스트리 반죽에서 영감을 받은 예술 작품으로 디자인됐다. 페이스트리를 만들기 전에 반죽의 부드러움을 나타내는 외관과 천장의 "파도"도 마찬가지다. 색상은 미색(파사드 및 테라조 바닥용), 검은색(철골 프레임용), 원목(편안함을 가져오기 위해), 회색(특정 벽의 스투코), 코코아 파우더 색상( "좋은 음식과 음료를 즐기는 것")을 혼합하여 사용했다. 자재는 모두 베트남에서 조달하여 운송과 관련된 오염을 제한하고 지역 경제와 베트남의 노하우를 홍보하고자 노력했다. 건축가가 Plastic People과 협력하여 재활용품으로 만든 맞춤형 가구를 설계 및 생산한 3층 및 4층의 문, 사물함, 대형 책상 및 지붕을 제외하고 화학 물질, VOC 및 모든 플라스틱의 사용을 줄일 수 있도록 고려됐다(이 소규모 프로젝트를 위해 총 700kg가 재활용됐다.).
IVOIRE 프로젝트의 첫 번째 의도는 기존 건물의 콘크리트 구조를 보존하는 것이 모든 프로젝트를 고려할 때 할 수 있는 가장 지속 가능한 접근 방식이므로 기존 건물을 보존하도록 건축주를 설득하는 것이었다. 이는 건설 과정의 탄소 발자국을 줄이는 가장 좋은 방법이다. 건축가와 인테리어 디자이너가 재능이 있다면 "기존" 건물을 지속 가능하면서도 우아한 건물로 바꾸는 것이 가능하여 사이공을 더 아름답게 만들 수 있다. IVOIRE Pastry와 같은 소규모 프로젝트에서도 건축가는 디자인 솔루션 및 재료 선택의 측면에서 항상 검소한 접근을 장려한다. 지구 온난화는 현재 모든 인류에게 영향을 미치며 모든 디자인 스튜디오가 이에 맞서 싸우기 위해 함께 참여해야 한다.


























Architects T3 Architects
Location Ho Chi Minh City, Vietnam
Completion 2021
Gross floor area 200㎡
Lead architects Charles GALLAVARDIN, Tereza ZELENKOVA GALLAVARDIN, Rafael LIRA
Design team Ta Quang Hai (Architect) – Kobi Lighting Studio (Lighting Consultant)
Lighting design Kobi Lighting Studio
Contractor Harmonie Co. and Minh Chuong Construction Co.
MEP Harmonie Co.
Signage and Branding Matthias Laurent-Wedothatstuff
Door Handle, Signage Production Sebastian Sicot-Blacksmith & Design
Kitchen Supplier Ly Bao Minh
Recycled Plastic Furniture Plastic People
Clients Ivoire Pastry
Photographer Herve GOUBAND(Alisa Production)
'Interior Project > Cafe&Restaurant' 카테고리의 다른 글
| JIGI Poke Restaurant (0) | 2021.12.03 |
|---|---|
| Kinoya Izakaya (1) | 2021.12.01 |
| Keki Shop (0) | 2021.11.29 |
| TRENTA TRES (0) | 2021.11.25 |
| Double Slash Coffee Space (0) | 2021.11.22 |
마실와이드 | 등록번호 : 서울, 아03630 | 등록일자 : 2015년 03월 11일 | 마실와이드 | 발행ㆍ편집인 : 김명규 | 청소년보호책임자 : 최지희 | 발행소 : 서울시 마포구 월드컵로8길 45-8 1층 | 발행일자 : 매일



