
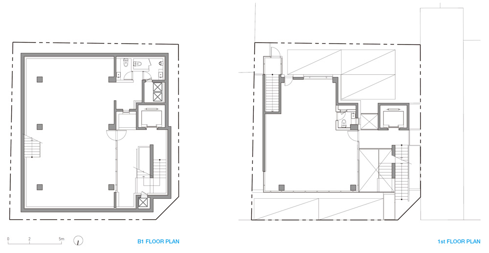
This project started with an attempt to create a very small vertical city that anyone can easily enter while walking the street by excluding the conventional proportions and elements seen in ordinary rental buildings as much as possible and obscuring the intersection of public and private areas. By analyzing the texts of the surrounding buildings, the proportional beauty is adjusted to make it appear proportionally more vertical, and the mass of the upper floor, which is closed dramatically, opposite to the open elevation of the lower floor, is composed, but the lighting is repeated in the direction of the south side of the road. I tried to solve it because of the small windows. While solving lighting and ventilation with natural lighting and ventilation as much as possible, the stair room, which can be a public space, is planned as a public space where users can come out of each floor and see each floor instead of a separate balcony. Through the underground sunken, users on the ground can easily enter the underground, and users on the ground can wave and greet the moving population of the ground floor in the entrance bridge space.
Rather than closing the city through subtle crossings in the public performance historical area, we plan a proportional elegant building that connects people and people.

청담동 근린생활시설(120-7)
일반 임대 건물에서 보이는 상투적인 비례와 요소들을 최대한 배제하고 공공성과 사적영역의 교차를 모호하게 해서 길을 걷다가 누구나 손쉽게 들어올 수 있는 아주 작은 수직적 도시를 만들고자 한 게 이 프로젝트의 시작이다.
주변 건축물의 텍스트들을 분석해서 비례적으로 좀 더 수직적으로 보이게끔 매스를 조정하고 저층부의 개방적인 입면과는 정반대로 닫혀 있는 상층부의 매스를 구성하되 채광은 도로의 반대편인 정남 방향의 반복되는 작은 창들로 해결하고자 했다. 채광과 환기를 최대한 자연채광과 환기로 해결하되 공용공간일 수 있는 계단실을 별도의 발코니 대신, 각층에서 나와서 사용할 수 있고 외기를 접할 수 있는 공용공간으로 계획하여 각층의 이용자들이 눈을 마주치고 바라볼 수 있는 구조로 계획했다. 지하의 선큰을 통해서 지상의 이용자들이 손쉽게 지하로 진입하고 지상층의 이용자들은 진입 브리지 공간에서 지상층의 이동 인구들과 손을 흔들고 인사하며 마주칠 수 있는, 공공성이 공존하는 시적 공간이다.
공공성과 사적영역의 미묘한 교차를 통해서 도시가 닫히기보다는 도로와 건축물, 사람과 사람이 연결되는, 비례미 있는 단아한 건축물을 계획했다.







Architect Archigroup MA
Location Cheongdam-dong, Gangnam-gu, Seoul, Republic of Korea
Program Commercial
Site area 252.30㎡
Building area 126.00㎡
Gross floor area 734.87㎡
Building scope B1, 5F
Building to land ratio 49.94%
Floor area ratio 225.08%
Design period 2018. 10 - 2019. 4
Construction period 2019. 5 - 2020. 1
Completion 2020. 2
Principal architect Byungan You
Design team Honsup Chung, Younghwan Lee, Jongsoo Ha, Jinmo Jo
Structural engineer Eun Structural Eng. lnc.
Mechanical engineer Suyang Engineering
Electrical engineer Suyang Engineering
Civil engineer Topjung Engineering
Construction KCPM
Photographer Hansuk Kim
해당 프로젝트는 건축문화 2021년 7월호(Vol. 482)에 게재 되었습니다.
The project was published in the July, 2021 issue of the magazine(Vol. 482).
July 2021 : vol. 482
Contents : RECORDS 2021 SEOUL LIVING DESIGN FAIR 2021 서울리빙디자인페어 : NEWS / COMPETITION / BOOKS : SKETCH BETWEEN PERSON AND ARCHITECTURE / NIKITA BATRAKOV 사람과 건축 사이..
anc.masilwide.com
'Architecture Project > Retail' 카테고리의 다른 글
| COEXISTENCE PLATFORM (0) | 2022.01.26 |
|---|---|
| 40-24, CHEONGDAM-DONG (0) | 2021.10.07 |
| THE MOST MICRO-BREWERY (0) | 2021.08.09 |
| LOGAN COVE MARINA & CLUBHOUSE (0) | 2020.06.16 |
| LIGHT HOUSE (0) | 2020.04.28 |
마실와이드 | 등록번호 : 서울, 아03630 | 등록일자 : 2015년 03월 11일 | 마실와이드 | 발행ㆍ편집인 : 김명규 | 청소년보호책임자 : 최지희 | 발행소 : 서울시 마포구 월드컵로8길 45-8 1층 | 발행일자 : 매일



