
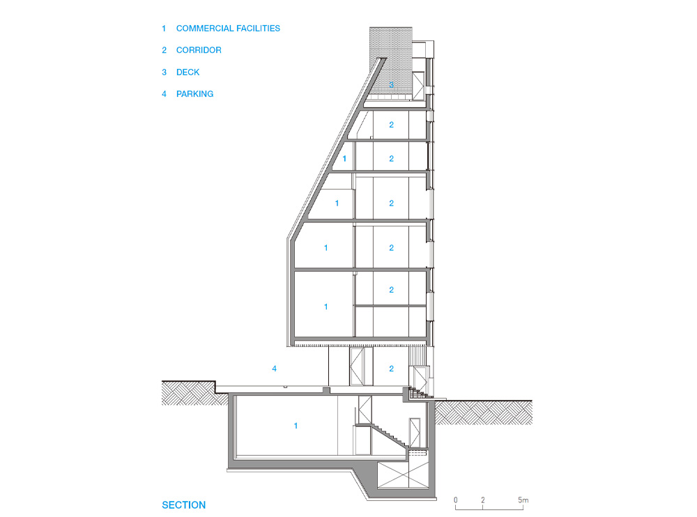
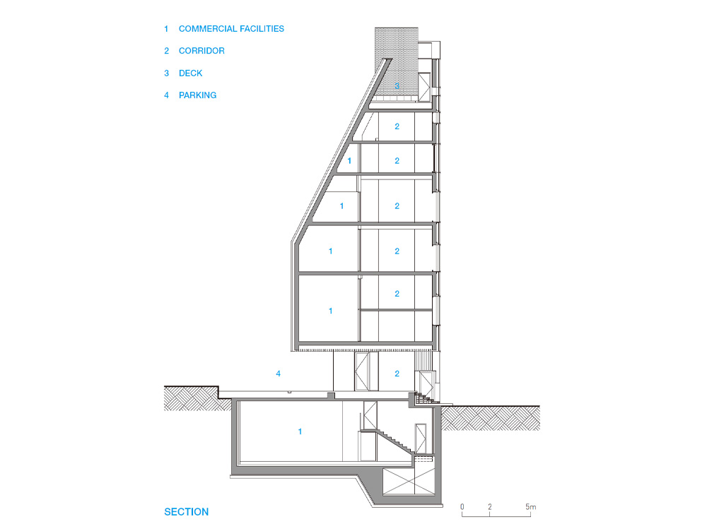
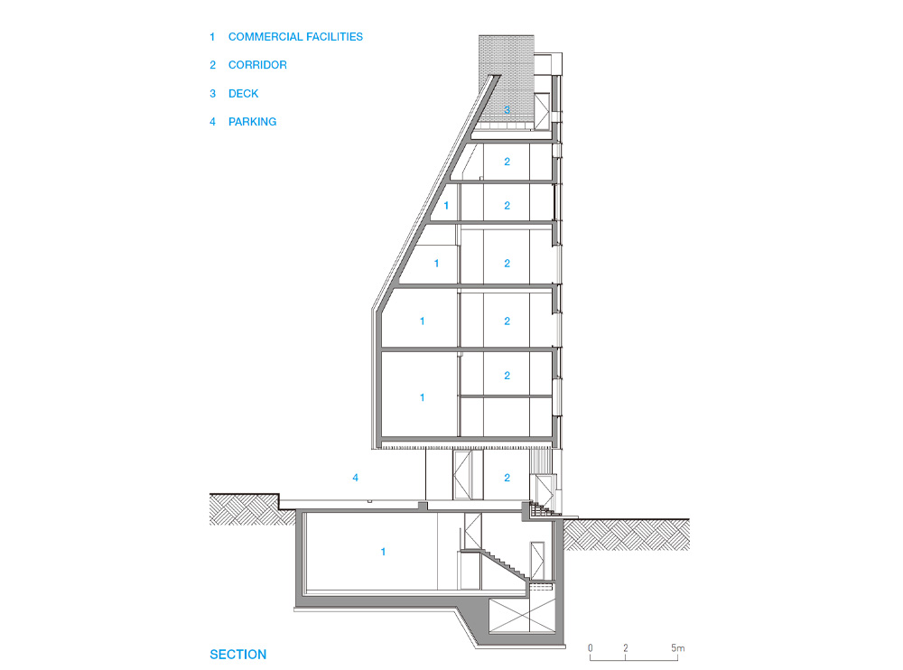
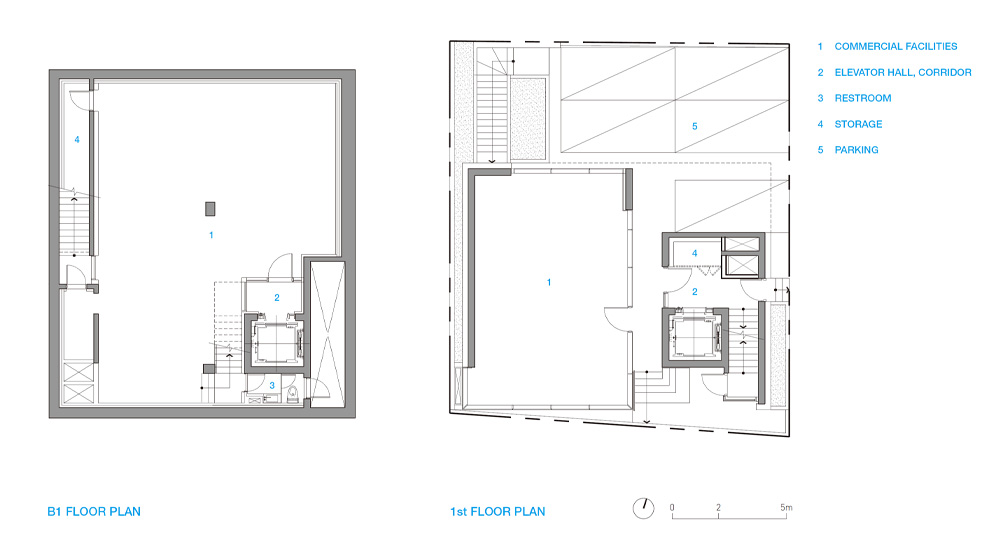
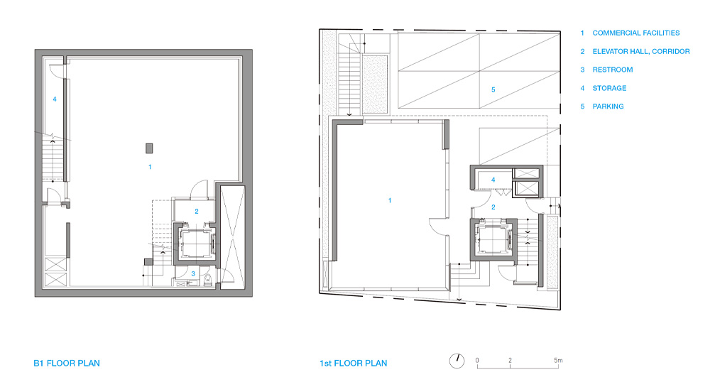
Buildings that enter these sites adjacent to the side road always have to consider the shape of the building by a road diagonal or a north diagonal. The building was intended to emphasize this legal regulation, which is difficult to change from the large public space diagram no matter who designed it. In addition, the road level in the rear was set as the main level of the building, and the entrance from the front side upside down was made through stairs, but natural light and ventilation were considered by installing windows on the junction of the basement floor. Considering the owners who will use the basement floor, the direct entry method was planned from the front part, and a small alleyway was constructed inside the building even though it is a small building by connecting the rear parking lot and the entrance staircase in the front to provide fun to enjoy the building.
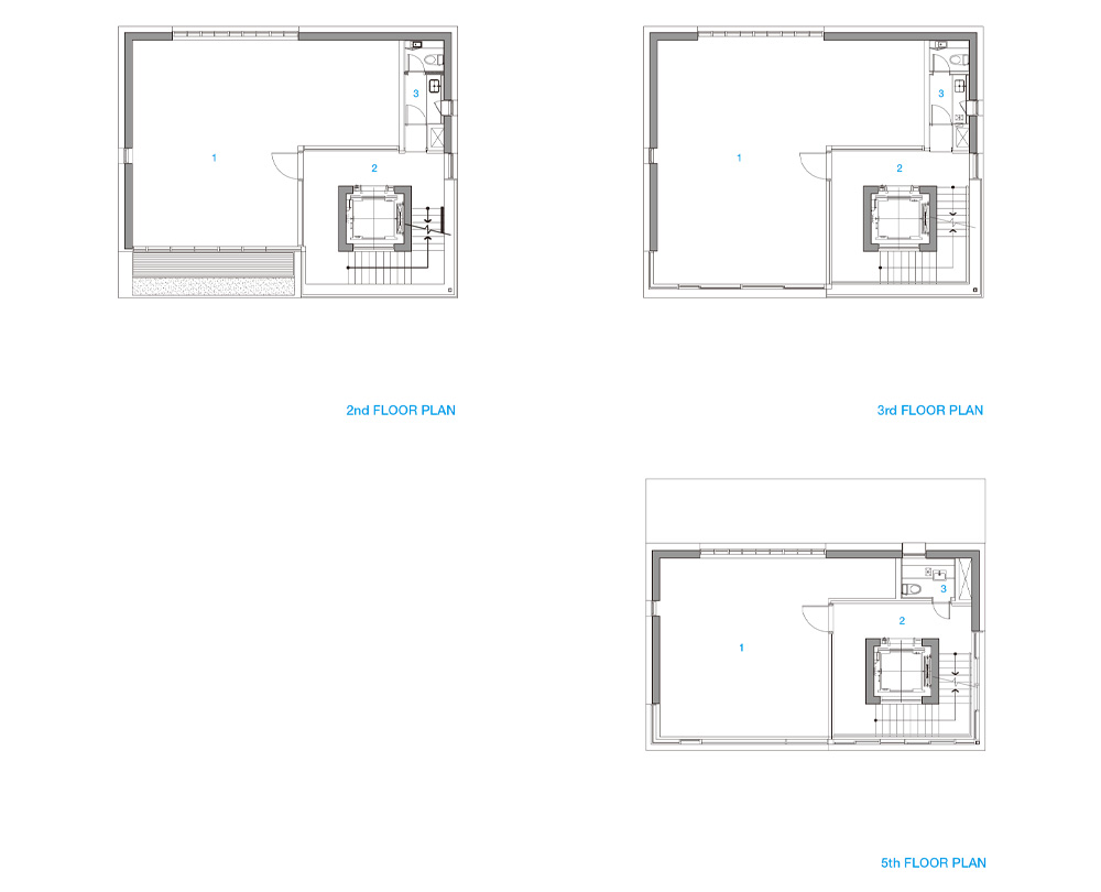
Even though it is a small building, it is possible to enter three types of access from the parking lot to the south, east, and north, and create a vertical moving space where natural light enters during the day with glass blocks in the staircase room that actively utilizes the stairs. It is composed of a lighting box that serves as a landscape lighting that enhances the light. On the rooftop, a small but nice rooftop garden was created, and a stage was built so that a mini observatory can be made and used. All floors and sections from the basement to the roof are arranged so that they are the same building, but each floor has a completely different sense of space. Although it is a very small building, they hope that this building is also a city where different planes are piled up and interact with each other organically.

청담동 근린생활시설(40-24)
이면 도로에 접해 있는 부지에 들어가는 건축물은 늘 도로 사선이나 정북 사선에 의한 건축물의 형태를 고민하지 않을 수 없다. 어느 누가 설계해도 큰 공간 다이어그램에서는 달라지기 힘든 이러한 법적 규제를 이 건축물은 거꾸로 강조하고자 했다. 그리고 후면의 도로 레벨을 오히려 건축물의 메인 레벨로 설정하고 거꾸로 전면에서의 진입을 계단을 통해서 진입하게 하되 그로 인해 생겨나는 지하층의 접도면에 창호를 설치해서 자연채광과 환기를 고려했다. 지하층을 사용할 건축주를 고려해서 전면부에서의 직접 진입 방법을 계획했고, 후면 주차장과 전면의 진입 계단부를 연결해서 작은 골목길을 작은 건축물임에도 건물 내부에 구성하도록 해서 건축물을 유희하는 재미를 선사하고자 했다.
작은 건축물임에도 남쪽과 동쪽, 북쪽 주차장에서 진입하는 세 가지 진입이 가능하도록 계획했다. 계단을 적극 활용할 수 있도록, 계단실에 유리 블록으로 낮에는 자연채광이 환히 들어오는 수직이동 공간을 만들고, 야간에는 인공조명을 통해서 건축물의 인지도를 높여주는 경관조명 역할을 하는 라이팅 박스로 구성했다.
옥상에는 작지만 전망이 좋은 옥상정원을 만들고 단을 조성해서 미니 전망대를 만들어 사용할 수 있도록 했다. 지하부터 옥상까지 모든 평면과 단면이 다른 공간을 배치해서 같은 건물이지만 층마다 전혀 다른 공간감을 구성할 수 있도록 계획했다. 작은 건축물이지만 각기 다른 평면이 쌓여 서로 유기적으로 교류하는 도시이기를 바라는 마음이다.











Architect Archigroup MA
Location Seolleung-ro, Gangnam-gu, Seoul, Republic of Korea
Program Commercial
Site area 248.00㎡
Building area 121.02㎡
Gross floor area 721.89㎡
Building scope B1, 5F
Building to land ratio 48.64%
Floor area ratio 218.46%
Design period 2018. 4 - 2019. 5
Construction period 2019. 4 - 2020. 3
Completion 2020. 3
Principal architect Byungan You
Design team Hongsup Chung, Younghwan Lee, Jihyun Jeong
Structural engineer Teo structure
Mechanical engineer Suyang Engineering
Electrical engineer Suyang Engineering
Civil engineer Topjung Engineering
Construction DAWON D&I / Archigroup MA._Jongsoo Ha, Seungmin Han, Sokhun Park
Photographer Hansuk Kim
해당 프로젝트는 건축문화 2021년 7월호(Vol. 482)에 게재 되었습니다.
The project was published in the July, 2021 issue of the magazine(Vol. 482).
July 2021 : vol. 482
Contents : RECORDS 2021 SEOUL LIVING DESIGN FAIR 2021 서울리빙디자인페어 : NEWS / COMPETITION / BOOKS : SKETCH BETWEEN PERSON AND ARCHITECTURE / NIKITA BATRAKOV 사람과 건축 사이..
anc.masilwide.com
'Architecture Project > Retail' 카테고리의 다른 글
| ROUEN (0) | 2022.02.25 |
|---|---|
| COEXISTENCE PLATFORM (0) | 2022.01.26 |
| 120-7, CHEONGDAM-DONG (0) | 2021.10.06 |
| THE MOST MICRO-BREWERY (0) | 2021.08.09 |
| LOGAN COVE MARINA & CLUBHOUSE (0) | 2020.06.16 |
마실와이드 | 등록번호 : 서울, 아03630 | 등록일자 : 2015년 03월 11일 | 마실와이드 | 발행ㆍ편집인 : 김명규 | 청소년보호책임자 : 최지희 | 발행소 : 서울시 마포구 월드컵로8길 45-8 1층 | 발행일자 : 매일



