
The images of Hawaii have melted everywhere in the space with the hope that everyone will be reminded of the exotic memories they experienced during the trip.
The exotic natural materials, sunset colored the entire sea horizon, and fine sand along the beach.
The ceiling used wallpaper made of exotic woven bamboo material and turned the low ceiling into an exposed ceiling to create a sunset. It features a sunset and gives off a unique feeling of Kihei's own with signs and handles painted gradations on acrylic.
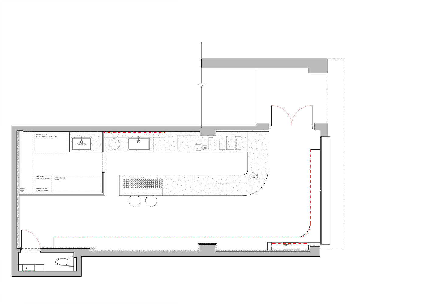
It is a narrow and long space that surrounds the seat and the entrance in the longitudinal direction so that it can be connected to the outside. At the end of the BAR, you can see a drip coffee show, and sand and small pebbles are placed to provide a device reminiscent of a small beach.
Overall, Kihei's own curve without corners can be felt throughout the space from the ceiling to furniture and handles.

누구에게나 여행에서 경험한 이국적인 추억들이 이 공간에서 상기되길 바라는 마음으로 하와이의 모습들을 공간 곳곳에 녹였다.
이국적인 자연소재, 바다 수평선 전체를 물들인 노을, 바닷가의 고운 모래.
천장은 이국적인 대나무 우븐 소재의 벽지를 사용하고 낮았던 천장을 노출천장으로 만들어 노을이 물드는 모습을 만들었다. 노을을 형상화해 아크릴에 그라데이션 착색을 한 간판과 손잡이로 키헤이만의 색다른 느낌을 풍긴다.
좁고 기다란 공간으로 좌석과 길이방향으로 입구까지 둘러 외부까지도 연결되도록 하였다. BAR 끝부분에서는 드립 커피 쇼잉을 볼 수 있으며 모래와 작은 조약돌을 배치해 작은 해변을 연상시키는 장치를 두었다.
전체적으로 모서리가 없는 키헤이만의 곡선은 천장에서부터 가구, 손잡이까지 공간 전체에서 느낄 수 있다.








Studio Plainoddity
Location Samseong-dong, Gangnam-gu, Seoul
Use SELEC SHOP
Site area 57m²
Design period 2020. 10. 15 - 2020.11. 20
Construction period 2021. 04. 05 - 2021. 04. 09
Material CEMENT STACCO, OVEN WALLPAPER, HUE LIGHTING, OAK WOOD
Construction Plainoddity
Photographer Yongjoon Choi
'Interior Project > Cafe&Restaurant' 카테고리의 다른 글
| Milky's Cloud Room (0) | 2021.10.14 |
|---|---|
| Hell of the North (0) | 2021.10.08 |
| Memory of the old days (0) | 2021.10.05 |
| Place Carmin (0) | 2021.09.29 |
| Das Bier (0) | 2021.09.13 |
마실와이드 | 등록번호 : 서울, 아03630 | 등록일자 : 2015년 03월 11일 | 마실와이드 | 발행ㆍ편집인 : 김명규 | 청소년보호책임자 : 최지희 | 발행소 : 서울시 마포구 월드컵로8길 45-8 1층 | 발행일자 : 매일



