
The design of the Rug Republic headquarters emerged from Akshat Bhatt’s thought. The idea is that there is no space, no water and no forest anymore for continuous production of new things. Thus, it makes sence to take something old and make it special, and it is fascinating to take something forgotten and to give it new life. The building is a reflection of the current time and creates a strong impression with the onlooker. It has been designed as a protective armour offering very little views of the outside, keeping the hostile and acrid environment away.
Instead of hiding under a veil of glass and granite, the design aims to make a post-industrial statement that would intrigue the visitor. Okhla is equated to a war zone, and in response, a metal shell envelops the structure to protect the interiors from the hostile and acrid environment. An inward-looking building, therefore, finds its justification in the site’s industrial skyline that offers nothing of visual interest at eye level. The poor air quality and ruckus created by the monkeys in the neighbourhood prevented large openings on the facade. But a visual connection to the outside has been maintained using controlled apertures crafted in corten steel. The jaali screen allows minimal daylight to penetrate within and prevents monkeys from entering the premises.
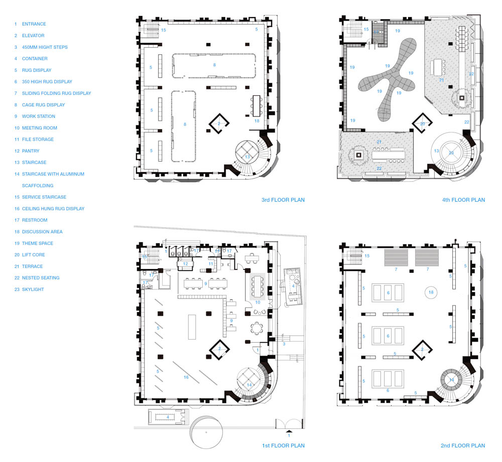
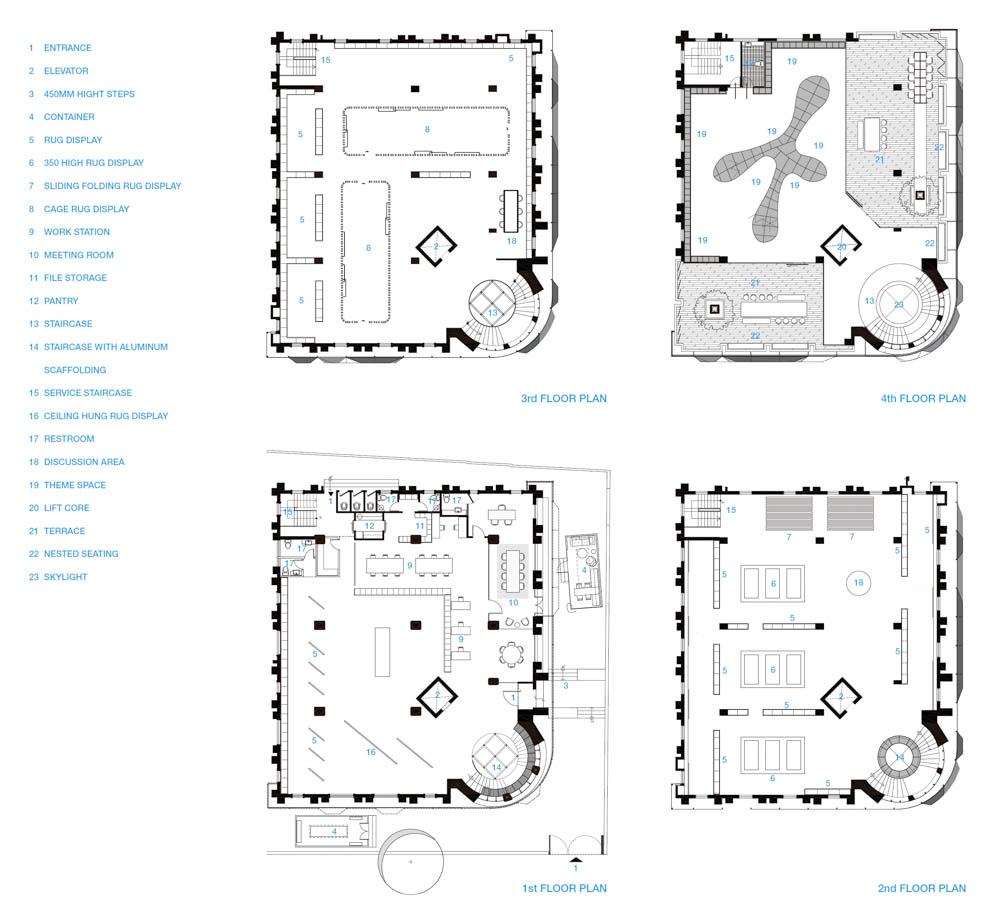
Rug Republic is one of India’s largest international exporters of rugs and soft furniture, and hence, the idea was to create a bare shell — a non-intrusive backdrop to celebrate the brand’s exquisite work. Bare black interiors, rebar cage and other inexpensive interventions for the exhibition offer an unfinished aesthetic to the space. Furthermore, the use of temporary interventions adds to a degree of flexibility to the internal layout. The floors are lined with fire bricks to allow ease of removal for future changes.
The brief presented by the client was to make the existing dilapidated building usable again within a limited budget and with minimal interventions. Hence, our approach was focused on reclaiming usable spaces by undoing ad-hoc alterations in the building’s spatial layout and removing layers of flooring put in by the building’s previous occupants. With carefully engineered design interventions, a new life has been leased to the structure and made it pertinent for years to come.

러그 리퍼블릭 본사의 디자인은 회복의 의미를 지닌다. 인도 델리의 산업 중심지인 오클라(Okhla)에 세워진 러그 리퍼블릭의 본사는 주변 환경에 녹아 들며, 이 도시에 대한 기소(起訴)이다. 디자인은 건물의 물리적 맥락과 그로 인해 제기된 과제에서 드러나는 창고를 재해석한 것이다.
이 건물은 현재의 반영이며 보는 이에게 강한 인상을 준다. 외부를 거의 볼 수 없는 보호 장갑으로 설계되어 주변 환경을 멀리한다. 유리와 화강암의 베일 뒤에 숨어 있기보다, 방문자의 관심을 끌 수 있는 탈공업화의 느낌을 강조한다. 오클라는 전쟁 지역이나 마찬가지이며, 이에 대응하여 금속 재질의 외피가 구조물을 감싸 적대적이고 신랄한 환경으로부터 내부를 보호한다. 따라서 내부를 향한 건물은 눈높이에서 시각적인 흥미를 제공하지 않는 대지의 산업화된 정경에서 그 정당성을 찾는다. 주변의 원숭이들이 조성하는 열악한 공기질과 소음 때문에 정면에 큰 개구부를 만드는 것을 회피했다. 그러나 코르텐 강철로 제작된 제어 가능한 구멍을 사용하여 외부와의 시각적 연결이 유지되었다. 쇠사슬을 사용함으로써 최소한의 자연광은 내부로 침투하도록, 원숭이는 사내에 들어오는 것을 방지한다.
러그 리퍼블릭은 인도 최대의 러그 및 소프트 가구 수출 업체 중 하나로, 브랜드의 정교한 작업을 기념하기 위해 거슬리지 않는 배경이 되도록 단단한 껍데기를 만드는 것이 설계 핵심이었다. 드러난 블랙 인테리어, 철근 케이지 등 저가 재료를 통한 전시공간 계획은 공간에 미완성의 미를 더한다. 또한, 임시적인 개입을 사용하여 내부 레이아웃에 어느 정도의 유연성이 추가되었다. 바닥에는 향후 변경 시 쉽게 제거할 수 있도록 내화 벽돌을 깔았다.
건축주가 제시한 개요는 기존의 낡은 건물을 제한된 예산 내에서 최소한의 개입으로 다시 사용할 수 있도록 만드는 것이었다. 따라서 우리의 접근 방식은 건물의 공간 배치에 있어 임시로 변경한 부분을 되돌려놓고 이전 거주자가 공사한 바닥 층을 제거하여 사용 가능한 공간을 되찾는 데 중점을 뒀다. 신중하게 설계된 디자인적 개입으로 구조에 새로운 삶이 더해졌으며, 향후 수년 동안 적절하게 사용될 수 있을 것이다.












Architects ARCHITECTURE DISCIPLINE
Location Okhla, New Delhi, India
Site area 1,254.19m2
Gross floor area 1,858.06m2
Completion 2020
Design team Akshat Bhatt, Heena Bhargava
Collaborator Rug Republic
Furniture Rug Republic
Client Rug Republic
Photographer Jeetin Sharma
해당 프로젝트는 건축문화 2021년 7월호(Vol. 482)에 게재 되었습니다.
The project was published in the July, 2021 issue of the magazine(Vol. 482).
July 2021 : vol. 482
Contents: RECORDS 2021 SEOUL LIVING DESIGN FAIR : NEWS / COMPETITION / BOOKS : SKETCH BETWEEN PERSON AND ARCHITECTURE / NIKITA BATRAKOV
anc.masilwide.com
'Architecture Project > Office' 카테고리의 다른 글
| BRIGHT SPOT (0) | 2021.11.16 |
|---|---|
| OŌELI COMPLEX_JNBY AND GOA HEADQUARTERS (0) | 2021.09.24 |
| ANTİK DANTEL HQ (0) | 2021.09.17 |
| LSB REGIONAL HEADQUARTERS (0) | 2021.09.16 |
| FLASH BATTERY HEADQUARTERS (0) | 2021.09.14 |
마실와이드 | 등록번호 : 서울, 아03630 | 등록일자 : 2015년 03월 11일 | 마실와이드 | 발행ㆍ편집인 : 김명규 | 청소년보호책임자 : 최지희 | 발행소 : 서울시 마포구 월드컵로8길 45-8 1층 | 발행일자 : 매일



