
The space is a public space for infants and toddlers to play. Nowadays, kids consume and pay to use spaces. Children pay for private educational institutions to meet friends and study, and teenagers pay to stay at cafes. Not only children and teenagers, but also infants and toddlers can play at kids cafes or amusement parks at a fee. In such a world where space is consumed, people with difficult economic conditions are not free to use spaces even to study or play. Therefore, a public space for infants and toddlers that can freely be used rather than consumed is necessary. The space for infants and toddlers managed by the public should be able to be operated flexibly according to the changes of programs rather than installing a special play facility like the existing kids cafes. Above all, we hoped it could become a home-like space where children can come to their own home and play comfortably. It is a composition of small houses, sized for the eyes of small children, and each house will be filled with a different kind of play. It is a space where the playful children can joyfully play in their own home.
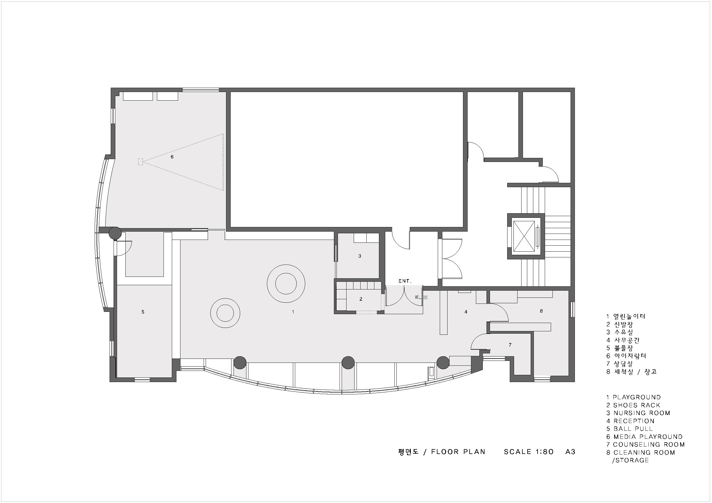
Imagine a scenery of the children playing, where there are trees around the playful children's houses and they can freely play among the trees. The columns between the houses portray trees, and circular structures that embody trees were also installed on the ceiling. The space also has a program room where independent programs can be run, a washing room where toys are washed and stores, a shoe cabinet, reception, meeting room and a nursing room. The overall atmosphere was created with the white color and wood of birch plywoods, and a bright green color and signs were used to highlight the space. The same was applied to the toy storage shelf that occupies the entire wall on one side, and for some of of the storage boxes, mats were installed to allow children to enter and play. We hope that it can become a public playground, where the playful children can play for as much as they want, as if playing comfortably at home rather than consuming a space.

공공에서 운영하는 영유아들이 놀 수 있는 공간이다. 요즘 아이들은 공간을 사용하는데 비용을 지불하며 공간을 소비한다. 어린이들은 학원에 비용을 지불해 친구를 만나 공부를 하고, 청소년들은 카페에서 비용을 내고 머무른다. 어린이, 청소년뿐만 아니라 영유아도 비용을 지불하고 키즈카페나 놀이공원에서 놀 수 있다. 이렇게 공간을 소비하는 세상에서 경제적인 여건이 어려운 사람들은 공부를 하거나 노는 것조차 공간의 사용이 자유롭지 않다. 그래서 공공에서 운영하는 영유아들이 공간의 소비가 아닌 자유로운 공간의 활용이 필요하다. 공공에서 운영하는 영유아를 위한 공간은 기존의 키즈카페의 특별한 놀이시설의 설치보다 프로그램의 변화에 따른 유동적인 운영이 가능해야 했다. 무엇보다 아이들이 자기만의 집에 와서 편안히 놀 수 있는 집과 같은 공간이 되길 바랬다. 작은 아이들의 시선에 맞는 크기의 작은 집들의 구성이고, 각각의 집에는 다른 종류의 놀이로 채워질 것이다. 장난꾸러기들이 자기만의 집에서 장난스럽게 놀 수 있는 공간이다.
장난꾸러기들이 있는 집 주변에는 나무가 있고 그 나무들 사이에서 자유롭게 놀 수 있는 놀이 풍경을 상상해 본다., 집과 집 사이에 있는 기둥은 나무를 형상화하고 천정에도 나무를 형상화한 원형 구조물이 설치되었다. 독립적인 프로그램 운영이 가능한 프로그램실, 장난감을 세척하고 보관하는 세척실, 신발장, 리셉션, 회의실, 수유실로 구성되어 있다. 전체적으로 자작합판의 나무와 흰색으로 분위기를 만들고 밝은 그린컬러와 사인으로 포인트를 주었다. 이는 한쪽 벽면 전체를 차지하고 있는 장난감 수납함에도 마찬가지로 적용하고 수납함의 일부는 아이들이 들어가서 놀 수 있도록 매트를 설치했다. 이 곳에서 어린 아이들이 공간의 소비가 아닌 집에서 편안하게 놀 듯, 장난꾸러기가 맘껏 놀 수 있는 놀 수 있는 공공의 놀이터가 되길 바란다.


















Studio G/O Architecture
Location Gangdong -gu, Seoul
Program Public Childcare Centre
Project area 205m2
Design period 2019. 7 - 2019. 12
Construction period 2020. 1 - 2020. 3
Completion 2020. 4
Project director Juyoung Lee
Mechanical engineer Gunwoo
Electrical engineer Gunwoo
Construction Total Heights
Client Gangdong-gu
Photographer tqtq Studio
'Interior Project > Education' 카테고리의 다른 글
| iA Financial Group Workshop (0) | 2022.02.23 |
|---|---|
| City Kids Educational Center (0) | 2022.01.19 |
| The Playful Objects (0) | 2021.09.03 |
| Seoul Jeongmin School _Sensory Playroom & Physical Exercise Room (0) | 2021.04.19 |
| WINDSOR BILINGUAL KINDERGARTEN (0) | 2020.04.14 |
마실와이드 | 등록번호 : 서울, 아03630 | 등록일자 : 2015년 03월 11일 | 마실와이드 | 발행ㆍ편집인 : 김명규 | 청소년보호책임자 : 최지희 | 발행소 : 서울시 마포구 월드컵로8길 45-8 1층 | 발행일자 : 매일



