
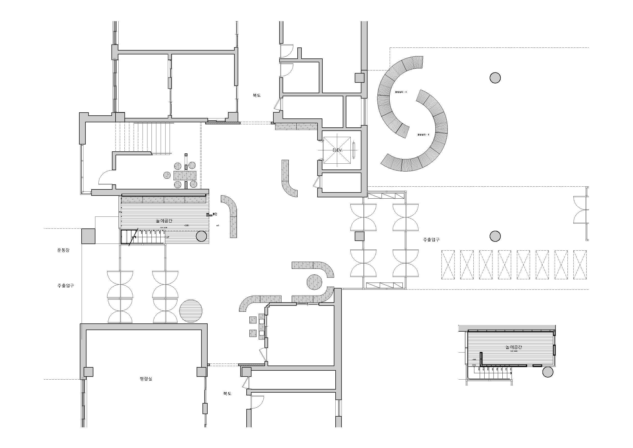
The lobby of Gangmyeong Elementary School is a space where all students pass by at least three to four times a day, when going to and from school, gym class, during lunch break, etc. The lobby is the first greeting upon entering the school, and the last greeting. Furthermore, it is a large hallway that is passed by the most, as well as a space with many intersections where many want to stay and take a rest. It was difficult to contain special functions as the space was small compared to such frequency of use and the number of users. The space had polished hard granite floors and dark lighting. Also, it was occupied by abandoned flower beds and the only place to rest was a three-seater sofa. Despite being an open space, it played more roles than expected. It was the place where the main staircase and both sides of the elevator hall met, the place where the phones to wait in line and call parents during break time were located, the place with the only comfortable chair, albeit a three-seater sofa, and the place where all students lined up before leaving outside for gym class. We thought about how to respect such existing functions and also contain the functions that children wanted. The lobby had to be a lobby with some space for students of one class to line up while respecting the existing circulation as much as possible, and most of all, it had to be a lobby where students could play and sit, which was what the students wanted the most. Therefore, rather than dividing the space to contain functions, the space was designed using objects that induce the functions, and we we hoped that the objects induced play.
Up and Down Object
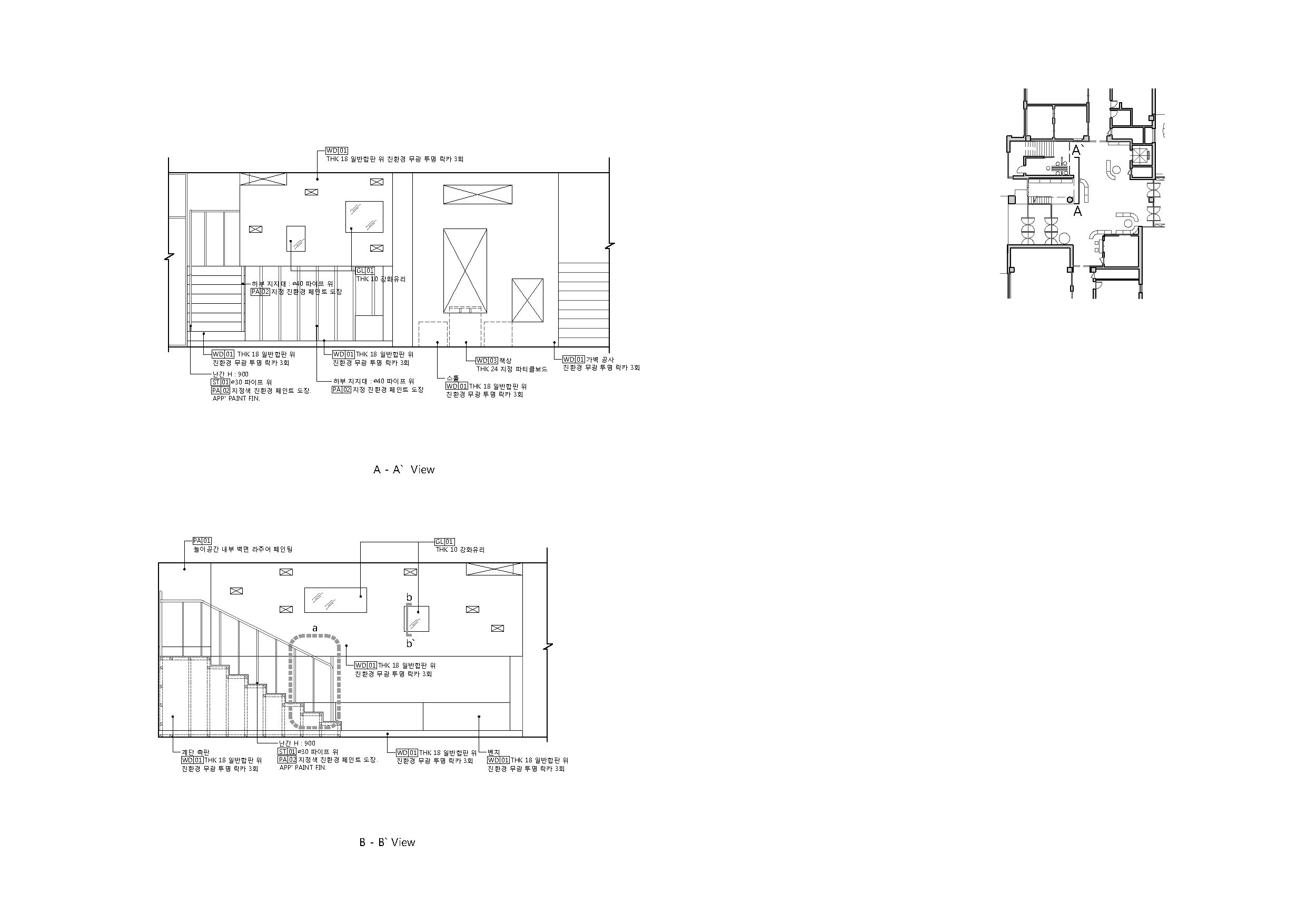
First of all, a two-story play space with low ceilings, where children could take off their shoes, and go up and down, was designed to replace the abandoned flower beds. The interior of the second floor was painted with the work of an artist who uses natural paint, and was painted with blue tones that symbolize the sky. The visual curiosity of the children was aimed to be provoked with openings of various sizes on the walls.
Moreover, there is another circular 'up and down' object in the exterior space of the lobby. The children can actually climb up and down the circular play object, and the space in the middle of the circle can be used as a space for children to wait for their turn or as a different play space.
Skin Object
One of the reasons that the existing lobby seemed desolate was that, since the floor was formed with granite, the walls with bricks and wood-colored wallpapers, and the ceiling with white textile, each material in the space existed separately. Accordingly, we chose colors and materials that were similar to the existing materials for the furniture to be placed in the hallways on both sides, the lower area of the staircase, and throughout the entire lobby, which all act as visual joints of the floor, wall, and ceiling. Furthermore, we aimed to produce a cozy feeling from the lobby space itself by placing walls that act as skins in places that serve as boundaries within the lobby space, such as the hallways on both sides, and the lower area of the stairs. In addition, the circulation and gaze were made to be able to pass through using openings of various forms without windows.
Red, Yellow, Blue, Green Object
We hope that the various colors; the red phone shelf where the children make phone calls, the blue table in front of the bench, the yellow low bench where multiple students can sit or lie down, the green reading table at the lower area of the staircase, the sky blue color of the Up and Down space interior, and the green color of the lower staircase area, can contain the unique liveliness of children.

강명초등학교의 로비는 모든 학생들이 등하교, 체육시간, 점심시간 등 하루에 최소 3~4회 지나쳐가는 공간이다. 로비는 학교에 들어오는 첫 인상이자 마지막 인사이다. 또한 가장 많이 지나쳐가는 큰 복도이자 교차점이 많은 머물러 쉬어가고 싶은 공간이기도 하다. 이러한 사용빈도와 사용자의 수에 비해 공간이 협소해 특별한 기능을 담기는 어려웠다. 딱딱한 화강석 물갈기 바닥과 어두운 조명, 버려진 화단이 차지하고 있었고, 쉬어갈 곳은 3인용 소파가 전부였다. 이 곳은 오픈된 공간이지만 생각보다 많은 역할을 하고 있었다. 메인 계단과 엘리베이터홀 양쪽 복도가 모두 모이는 곳이고, 쉬는 시간에 부모님에게 전화하려고 줄을 서는 전화기가 있는 곳이었고, 비록 3인용 소파이지만 유일하게 편히 쉴 수 있는 의자가 있는 곳이었고, 체육시간에 외부수업을 나가기 전에 전체 학생이 정렬을 하는 곳이었다. 이러한 기존의 기능을 존중하고 이에 아이들이 원하는 기능을 담내는 방법을 고민했다. 기존의 동선을 최대한 존중하고 한 반 학생들이 한번에 정렬할 수 있는 공간을 비워두며 무엇보다 학생들이 가장 원하는 놀 수 있는 로비, 앉을 수 있는 로비가 되어야 했다. 따라서 기능을 담기 위한 공간의 구획보다 기능을 유도하는 오브젝트로 디자인하고 그 오브젝트가 놀이를 유도하길 바랬다.
오르락 내리락 Object
우선 버려진 화단 대신 아이들이 신발을 벗고 천정이 낮은 2개층의 공간을 오르락 내리락하며 사용할 수 있는 놀이공간으로 계획했다. 2층 내부는 천연페인팅 작가의 작품으로 하늘의 상징하는 파란색 계열의 색상으로 도장을 했고, 벽체에 다양한 크기의 오프닝을 통해 아이들의 시각적인 호기심을 자극하고자 했다.
그리고, 로비 외부공간에 원형의 오르락내리락 Object가 또 하나 있다. 실제로 아이들이 원형의 놀이 object를 오르고 내리며 놀 수 있고 원형의 가운데 공간은 순서를 기다리거나 다른 놀이 공간으로 사용이 가능하다.
Skin Object
기존 로비가 삭막해 보이는 이유가 바닥은 화강석, 벽은 벽돌과 나무색상 시트, 천정은 흰색 텍스로 각각의 재료가 따로 존재하기 때문이기도 했다. 이에 바닥, 벽, 천정의 시각적 이음새 역할을 하는 양쪽 복도, 계단하부, 로비 곳곳에 놓일 가구들의 재료와 색상을 기존의 재료와 유사한 색상과 재질을 활용했다. 또한 양쪽 복도, 계단 하부와 같은 로비공간의 경계 역할을 하는 곳에 Skin 역할을 하는 벽체를 세워 로비공간 자체로 아늑한 공간감을 주려고 했다. 또한 창이 없는 다양한 형태의 오프닝을 활용하여 동선 및 시선이 통과할 수 있도록 하였다.
빨강, 노랑, 파랑, 초록 Object
아이들이 전화를 거는 빨강 전화기 선반, 벤치 앞에 놓여진 파랑 테이블, 여러명이 둘러앉거나 누울수 있는 노랑 평상, 계단하부의 초록 독서테이블 그리고 오르락내리락 공간 내부의 하늘색, 계단 하부의 초록색이 아이들 특유의 발랄함을 담아내길 바란다.


















Studio G/O Architecture
Location Gangdong-gu, Seoul
Program Lobby
Project area 175㎡
Building scope 1F
Design period 2019. 4 - 2019. 8
Construction period 2019. 8 - 2019. 10
Completion 2019. 10
Project director Juyoung Lee
Client Gangmyeong Elementary School
Photographer tqtq Studio
'Interior Project > Education' 카테고리의 다른 글
| iA Financial Group Workshop (0) | 2022.02.23 |
|---|---|
| City Kids Educational Center (0) | 2022.01.19 |
| The Playful Houses (0) | 2021.09.06 |
| Seoul Jeongmin School _Sensory Playroom & Physical Exercise Room (0) | 2021.04.19 |
| WINDSOR BILINGUAL KINDERGARTEN (0) | 2020.04.14 |
마실와이드 | 등록번호 : 서울, 아03630 | 등록일자 : 2015년 03월 11일 | 마실와이드 | 발행ㆍ편집인 : 김명규 | 청소년보호책임자 : 최지희 | 발행소 : 서울시 마포구 월드컵로8길 45-8 1층 | 발행일자 : 매일



