
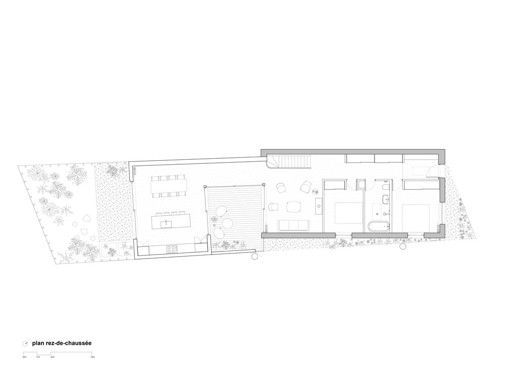
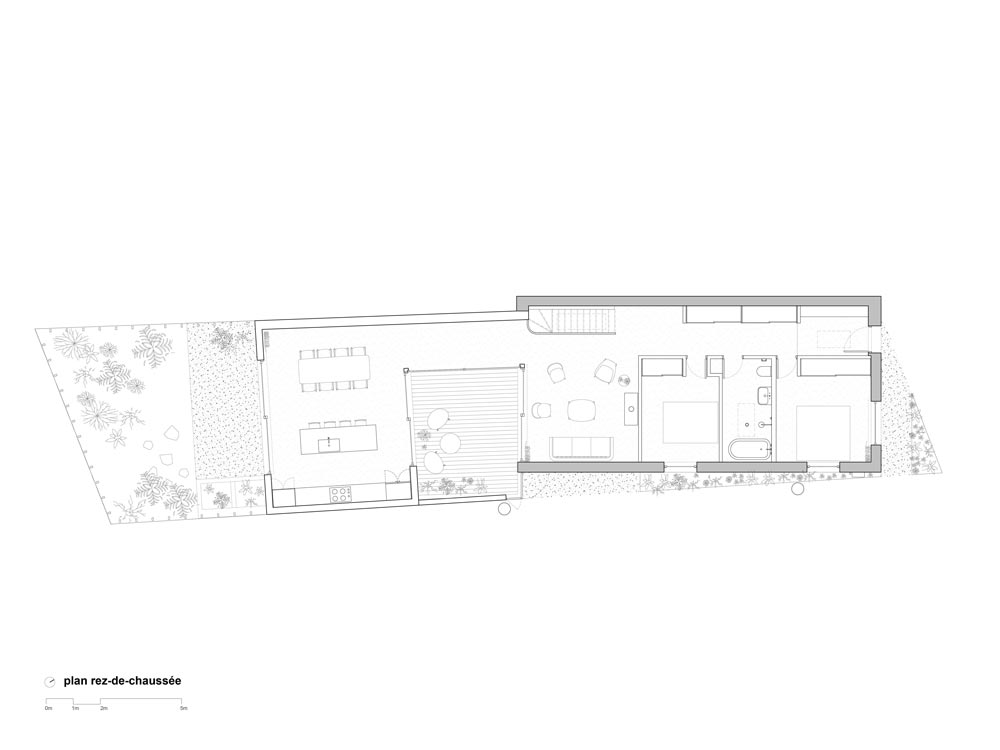
Situated in the eclectic Marconi-Alexandra neighbourhood, the project takes advantage of unusual urban conditions such as surrounding garages, train tracks, an adjacent laneway. Rather than being seen as negative, these elements are incorporated to the project beneficially.

Built-in 1910, the original building was a typical Montreal one-storey bungalow with a flat roof, commonly referred to as “shoeboxes”. Despite being located in an area where housing is prohibited according to the zoning plan, the house had a vested right to be modified or extended. The client’s request was to renovate the house and expand it to accommodate a small family. A number of factors led to the decision of preserving the existing one-storey volume of the building.

While the clients were immediately seduced by the buzzing energy of the site with garages on one side, trains on the other, and the laneway along the southern edge of the lot, it seemed important to create a place to escape the constant stimulation emanating from the surrounding context.

By distancing the addition from the existing structure, a void was created at the center of the house. This void creates a physical and visual gap, a pause between old and new, a new heart of the house. It is both a place to isolate from the street and a place for concentration and introversion. The extension filters exterior stimuli and acts as a sort of acoustic and visual buffer between the tracks and the patio.

마르코니 알렉산드라 인근 지역에 위치한 본 프로젝트는 주위를 둘러싸는 차고들, 철로, 골목길 등과 같은 독특한 도시 조건을 가지고 있다. 이러한 요소들은 설계에 좋은 방향으로 녹아들었다.

1910년에 지어진 기존의 건축물은 흔히 ‘신발 상자’라고 불리는 전형적인 몬트리올의 평면 지붕을 가진 1층짜리 주택이었다. 구역 계획에 따르면 해당 건물은 주거가 금지된 영역에 위치하고 있었지만, 건물은 개조나 확장이 가능한 권리를 갖고 있었다. 건축주의 요청은 소규모 가족을 위해 집을 개조하고 확장하는 것이었다. 기존 1층짜리 건물의 부피를 보존하기로 결정한데에는 몇 가지 이유가 있다.

첫 번째로, 길거리에 나란히 정렬된 ‘신발 상자’들의 순서를 유지하는 것은 중요했다. 두 번째, 유형을 분류하는 체계로서 ‘신발 상자’들은 도시 전망으로부터 서서히 사라지고 있는 추세이고 이는 밀도 있는 2층 혹은 3층짜리 건축물로 대체되고 있다. 이번 프로젝트는 이러한 유형의 1층짜리 건물을 위한 대안적인 접근법을 발전시켜볼 수 있는 기회였다. 이에 따라, 건물의 배면부와 철로가 가까이 있음에도 확장된 부분은 그 높이 보다는 깊이의 장점을 취할 수 있다.

한 쪽엔 차고가 있고 다른 쪽엔 철로가 있으며 대지의 남쪽 모서리를 따라 골목이 있는 대지의 활기 넘지는 에너지에 건축주는 빠르게 매료됐다. 그리고 대지 주변의 맥락에 따라오는 지속적인 자극으로부터 피할 수 있는 공간을 창출하는 것은 중요한 부분이었다.

기존 구조에서 개조·증축되는 부분을 멀리 두기위해 집의 중앙에 비워진 공간이 만들어졌다. 이 공간은 오래된 것과 새로운 것 사이에서 물리적이고 시각적인 완충작용을 한다. 이는 거리로부터 독립적으로 집의 내향을 향해 집중할 수 있는 공간이기도 하다. 증축된 부분은 외부의 자극을 걸러주며, 철로와 파티오 사이에서 소음과 시각적인 자극을 줄여주는 역할을 한다.





Architect Pelletier de Fontenay
Location Mile-Ex, Montréal, Canada
Gross floor area 263m2
Project period 2017-2019
Completion 2019
Design team Hubert Pelletier, Yves de Fontenay, Yann Gay-Crosier
Structural engineer Lateral
Construction Construction FRX
Photographer Pelletier de Fontenay
'Architecture Project > Single Family' 카테고리의 다른 글
| Forest House I (0) | 2021.06.22 |
|---|---|
| Koya House (0) | 2021.06.21 |
| WEEKEND HOUSE NOVÉ HAMRY (0) | 2021.06.08 |
| YONGIN I HOUSE (0) | 2021.06.07 |
| SQUARE IN TRIANGLE (0) | 2021.05.20 |
마실와이드 | 등록번호 : 서울, 아03630 | 등록일자 : 2015년 03월 11일 | 마실와이드 | 발행ㆍ편집인 : 김명규 | 청소년보호책임자 : 최지희 | 발행소 : 서울시 마포구 월드컵로8길 45-8 1층 | 발행일자 : 매일



