
The Yongin I House is located at the northern block of the Jisanbalt Housing Complex in Yongin. The site is facing the east on a slightly sloping road, and it is a flat, long-south-facing land in the east-west direction. It is a house designed for client couples, children and guests, and the clients demanded “the placement of windows considering the south-facing view” and “the protection of privacy.” The house is located at a detached house complex, but the building was arranged with the concept of creating a courtyard and ventilating and lighting with ease because there is a mountain around it. The entrance to the building was not made on the side of the road for the sake of privacy, but the entrance was made on the inside from the road. In the access road approaching the entrance, temporary walls, lighting, and planting were used to create a beautiful scenery from the road to the entrance. The idea of reaching the first floor using the gentle slope as much as possible was also the reason for making the long access road.

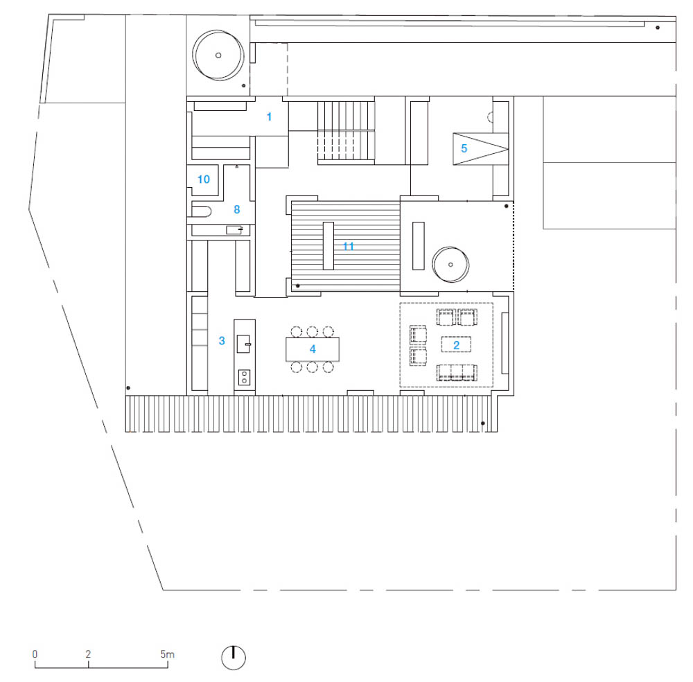
The mass of the building is in the form of a C, and is a structure that is open toward the road. This allowed the courtyard, which is the center of the building, to become a bright space. In addition, a grill is used at the end of the C-shaped courtyard to minimize the tightness of the courtyard. The elevation seen from the roadside was planned to be as simple as possible. The eastern side of the building was designed to give the main impression of the building as the windows were not made as much as possible. Overall, it was finished with a white eco-friendly coating paint, and some glass was used. On the south side of the building is a living room, dining room, and kitchen.

The interior finish was unified with birch plywood and ivory-colored eco-friendly painting. The flooring was made of the same color as the birch plywood. The birch plywood used in the interior is also applied to some walls, doors and furniture. All furniture is designed to match the image of the building. The birch wood used in the built-in furniture was also made of the same material, and all birch wood surfaces were painted with eco-friendly oil. Accessories such as hinges and rails used inside furniture are also hidden invisible types. In all bedrooms, general downlights are reduced to a minimum, and long and large indirect lightings are installed throughout the room so that living is possible by using only indirect lighting. In addition, all lights used inside the house were applied in consideration of the color temperature so as to have a warm atmosphere.

The architectural landscape design focuses on two places. It is planned to plant birch trees in two layers on the west side to separate privacy from neighboring houses, and to plan planting on the driveway from the road to the front door to create a wonderful feeling in the entrance line. All indoor and outdoor finishes meet 1:1. This design is even more important in simple design, as it can leave no windows, doors, or jawlines of finish. Many of these details are the reason why this house feels tidier. It takes a lot of hidden details to look simple. Written by: June Hwang

용인 I 주택은 용인 지산발트 주택단지의 북측 블록에 위치한다. 대지는 약간 경사진 도로에 동측을 접하고 있으며, 평탄하고 장변이 동서 방향으로 긴 정남향의 대지다. 건축주 부부, 자녀, 손님을 위해 설계된 주택으로, 건축주는 ‘정남향 전망을 고려한 창의 배치’와 ‘프라이버시를 보호받을 수 있을 것’ 등을 요구했다.

집은 단독주택 단지에 있지만, 주변에 산이 있어서 중정을 만들어서 마음 놓고 환기 및 채광이 가능하도록 건물이 배치됐다. 건물의 입구는 프라이버시를 위해 도로 측에 입구를 만들지 않고, 도로에서 안쪽으로 들어온 곳에 현관을 만들었다. 현관으로 접근하는 진입로에는 가벽과 조명, 식재를 이용하여 도로에서 현관까지의 동선이 근사한 풍경을 가지도록 했다. 최대한 완만한 경사를 이용하여 1층에 도달하고자 하는 생각도 긴 진입로를 만드는 이유였다.

건물의 매스는 ㄷ자 형태로, 도로 측으로 열려 있는 구성이다. 이로 인해 건물의 중심이 되는 중정이 밝은 공간이 될 수 있었다. 또한, ㄷ자 중정의 끝에는 그릴을 사용하여 중정이 가지는 답답함을 최소화한다. 도로 측에서 보이는 입면은 최대한 단순하게 계획됐다. 건물의 동측 면에는 창문을 최대한 만들지 않아서 동측 입면이 건물의 주요한 인상을 주도록 디자인했다. 전체적으로는 흰색 친환경코팅 페인트로 마감했고, 유리가 일부 사용됐다. 건물의 남측은 거실과 식당, 주방이 위치한다.

내부 마감재는 자작나무 합판과 아이보리 색의 친환경 도장으로 통일했다. 바닥재는 자작나무 합판과 동일한 색상의 재질을 적용했다. 내부에 사용되는 자작나무 합판은 일부 벽체, 문짝과 가구들에도 적용된다. 모든 가구는 건물의 이미지에 어울리도록 디자인했다. 붙박이 가구에 사용되는 자작나무 역시 동일한 재질을 사용했고, 모든 자작나무의 표면 도장은 친환경 오일로 마감했다. 가구 내부에 사용되는 힌지, 레일과 같은 액세서리도 눈에 보이지 않는 히든 타입을 적용했다. 모든 침실은 일반적인 다운라이트를 최소로 줄이고, 평소 간접조명만을 사용하여 생활이 충분히 가능하도록 방 전체를 관통하는 길고 커다란 간접조명을 설치했다. 또한, 주택 내부에 사용되는 모든 조명은 따뜻한 분위기의 느낌을 갖도록 색온도를 고려하여 적용했다.

건축적인 조경 디자인을 했는데, 식재는 2곳에 집중된다. 서측 면에 2겹으로 자작나무를 식재하여 이웃집과의 프라이버시를 분리할 수 있도록 계획했고, 도로에서 현관에 이르는 진입로에 식재를 계획하여 진입동선에서 근사한 느낌을 갖도록 한다. 실내외의 모든 마감은 1:1로 만난다. 이런 설계는 창문이나 문, 마감의 턱선을 없게 할 수 있으므로, 단순한 디자인에 있어서 더욱 중요하다. 이 주택이 더욱 정갈한 느낌을 주는 이유는 이러한 많은 디테일에 의한 것이다. 단순하게 보이기 위해서는 많은 숨어있는 디테일이 필요하다. 글: 황준






Architect HWANG JUNE ARCHITECT & ASSOCIATES
Location Wonsam-myeon, Cheoin-gu, Yongin-si, Gyeonni-do, Republic of Korea
Program Detached house
Site area 495m2
Building area 123m2
Gross floor area 160m2
Building to land ratio 25%
Floor area ratio 33%
Building scope 2F
Structure Reinforced concrete
Principal architect June Hwang
Design period 2019. 4 - 2021. 2
Construction period 2020. 3 - 2021. 2
Design team Boeun Shin, Eonjae Lee
Construction IMZIP
Structural engineer (TSEC GROUP) Wooho Lee
MEP engineer Cheonil E&C, CO.,Ltd
Client Jaeseong Heo
Photographer Youngchae Park
해당 프로젝트는 건축문화 2021년 4월호(Vol. 479)에 게재 되었습니다.
The project was published in the April, 2021 issue of the magazine(Vol. 479).
April 2021 : vol. 479
Contents: RECORDS THE WINNERS OF THE 2021 PRITZKER PRIZE: NEWS / COMPETITION / BOOKS: SKETCH ROBIE HOUSE, CHICAGO / LAPIN
anc.masilwide.com
'Architecture Project > Single Family' 카테고리의 다른 글
| Marconi Residence (0) | 2021.06.18 |
|---|---|
| WEEKEND HOUSE NOVÉ HAMRY (0) | 2021.06.08 |
| SQUARE IN TRIANGLE (0) | 2021.05.20 |
| THE HOUSE WITH MOUNTAIN (0) | 2021.05.18 |
| Casa Colorada (0) | 2021.05.13 |
마실와이드 | 등록번호 : 서울, 아03630 | 등록일자 : 2015년 03월 11일 | 마실와이드 | 발행ㆍ편집인 : 김명규 | 청소년보호책임자 : 최지희 | 발행소 : 서울시 마포구 월드컵로8길 45-8 1층 | 발행일자 : 매일



