
The client of the building, who had been agonizing over whether to buy a triangular land or a square land, asked what land would be better, not what house, before the land contract. The person who asked the question probably forgot the architect’s answer to him already. It seems that the triangular land has its own meaning and the square land has its own meaning. The top of the ground in the shape of an isosceles triangle was the only access road narrowly connected to the road. The opposite vertex of the land is the junction of two apartment complexes, and the outside of the longest side of the South is the terminal retaining wall of an industrial complex designated by local governments across narrow private land. Therefore, the earth is a triangle that connects the vertices of several large compartments from the sky that meet at one point, creating an island-like atmosphere in itself.

Although it is a triangular land, I thought about how to eliminate the disadvantage of the triangular land. The road was low, the land was high, and the interface between the road and the ground was narrow. It was self-evident how land, roads and houses should meet if they were in the direction of adaptation to the environment.

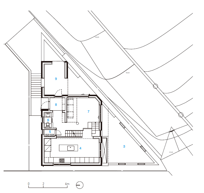
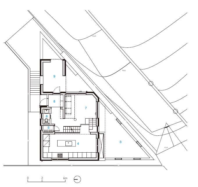
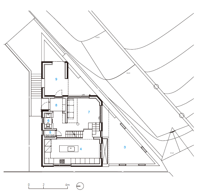
A rectangular house was placed in the center of the triangular land for purely functional and convenient reasons. There weren’t many clients in the world who liked the triangular room, and I thought it was more enjoyable to see the triangular yard in the square living room than to see the square yard in the triangular living room. Using height differences to separate individual spaces by half a layer so that the process of coming up to high ground from low roads was not boring, so that the house was used more independently.

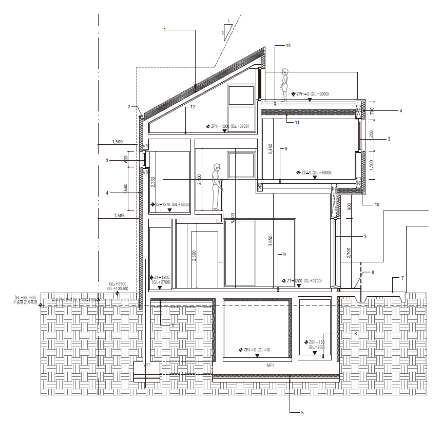
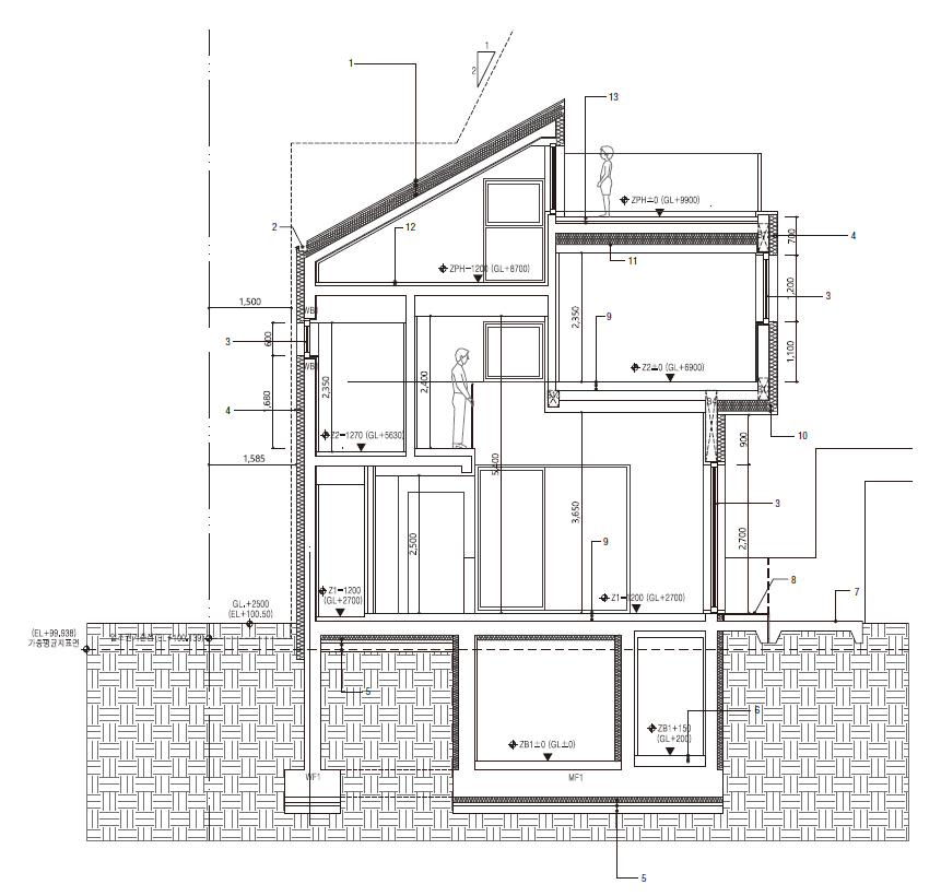
The house is divided into eight levels. Each half-story height from the road was connected to the stairs, forming different floors in the order of garage, hobby room, living room, dinning space, son’s room, public bathroom, daughter’s room, couple’s bedroom, attic, and rooftop. With a straight interior area available, the house feels wider and bigger than it actually is due to its unique openness caused by the skip floor configuration. In each space, neighboring spaces overlapped high and low, offsetting the location and shape of the unfavorable land by expanding the field of view.


The remaining small triangular spaces, which were cut after a rectangular house entered the triangular land, naturally became a yard, terrace, and sun-room. As such, the house has a unique exterior that connects to a single house with a square interior and a triangular exterior.

세모난 땅을 사야할지 네모난 땅을 사야할지부터 고민이던 건축주는 땅 계약 전 어떤 집이 아닌, 어떤 땅이 좋겠냐고 질문을 했다. 세모난 땅도 네모난 땅도 그것 자체로 고유의 의미가 있다. 삼각사각의 대지는 이등변 삼각형 모양의 땅 윗면이 도로와 협소하게 연결된 유일한 동선 접근로였다. 대지의 반대쪽 꼭짓점은 두 개의 아파트 단지가 만나는 접점이고 남측 가장 긴 변 바깥은 좁은 사유지를 건너 지자체에서 지정한 산업단지의 말단 옹벽이다. 그러니 대지는 하늘에서 보면 여러 개의 큰 구획이 한 점에서 만나는 꼭짓점을 잇는 삼각형으로, 그 자체로 섬 같은 분위기를 자아냈다.

삼각형 땅이지만 형태에 따른 불리함을 없앨 방법에 대해 고민했다. 도로가 낮고 땅은 높고 도로와 땅이 만나는 접점은 좁았다. 환경에 순응하는 방향이라면 땅과 도로와 집이 어떻게 만나야 하는지는 자명했다. 삼각형 땅 중심에 사각형의 집을 놓은 건 순전히 기능과 편리의 이유였다. 건축주는 삼각형 거실에서 네모난 마당을 보기보단 네모난 거실에서 삼각형 마당을 보는 게 보다 즐거운 풍경이라고 생각하는 사람이었다. 하여, 낮은 도로에서 높은 땅으로 올라오는 과정이 지루하지 않게 높이차를 활용해 개별 공간들을 반 층씩 분리시켜 독립적으로 사용하는 것이 집을 좀 더 넓게 쓰도록 설계했다.

집은 총 8개의 레벨로 분리된다. 도로에서부터 반층 높이마다 차고-취미실-거실-식당-아들의 방과 공용화장실-딸의 방과 부부 침실-다락-옥상 순으로 서로 다른 층을 형성하며 계단을 중심으로 연결된다. 사용 가능한 반듯한 내부 면적이 20평 남짓 되는 상황에서 집이 실제보다 넓고 크게 느껴지는 건 스킵플로어 구성에서 비롯된 특유의 개방감 덕분이다. 각 공간에서 이웃한 공간이 높고 낮게 서로 겹쳐 보이는 시야의 확장이 불리한 땅의 입지와 형태를 상쇄시켰다. 삼각형 땅에 사각형 집이 들어간 후 잘려 나간 나머지 작은 삼각형 공간들은 자연스레 마당과 테라스, 선룸(Sun Room)이 됐다. 그렇게 집은 네모난 내부와 세모난 외부가 이웃하며 하나의 집으로 연결되는 개성있는 외관을 가진다.











Architect NAAULAB ARCHITECTS
Location Jukjeon-dong, Suji-gu, Yongin-si, Gyeonggi-do, Republic of Korea
Site area 194.10m2
Building area 82.16m2
Gross floor area 194.87m2
Building scope B1, 2F
Building to land ratio 42.33%
Floor area ratio 70.14%
Construction period 2019. 7 - 2020. 2
Completion 2020. 2
Principal architect Junseok Choi, Hyunho Cha
Project architect Junseok Choi, Hyunho Cha
Structural engineer DELTA
Mechanical engineer SEWON engineering
Electrical engineer JUNGYUN engineering
Photographer Jinbo Choi
해당 프로젝트는 건축문화 2021년 3월호(Vol. 478)에 게재 되었습니다.
The project was published in the March, 2021 issue of the magazine(Vol. 478).
March 2021 : vol. 478
Contents: RECORDS THE EXPERIMENT TO FACE A REALITY IN AN INFINITE GRIDMAESTRO SOFA COMPETITION: NEWS / COMPETITION / BOOKS: SKETCH VILLA MAIREA, FINLAND / ASHWIN SWAMINATHAN : RECENT PROJECT ARIJUJIN / PROF. BEOMKWAN KIM(UNIV. OF ULSAN)
anc.masilwide.com
'Architecture Project > Single Family' 카테고리의 다른 글
| WEEKEND HOUSE NOVÉ HAMRY (0) | 2021.06.08 |
|---|---|
| YONGIN I HOUSE (0) | 2021.06.07 |
| THE HOUSE WITH MOUNTAIN (0) | 2021.05.18 |
| Casa Colorada (0) | 2021.05.13 |
| 10th Avenue (0) | 2021.05.12 |
마실와이드 | 등록번호 : 서울, 아03630 | 등록일자 : 2015년 03월 11일 | 마실와이드 | 발행ㆍ편집인 : 김명규 | 청소년보호책임자 : 최지희 | 발행소 : 서울시 마포구 월드컵로8길 45-8 1층 | 발행일자 : 매일



