
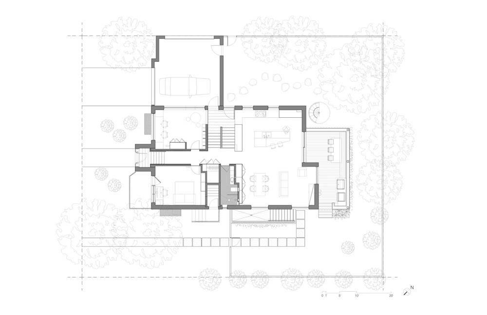
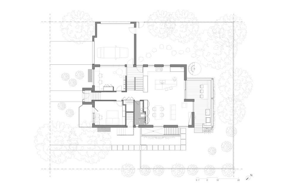
In this detached duplex of the Rosemont district, the owners wanted to transform the ground floor and the semi-basement to make it their home. The second floor was preserved for their tenant. A garden was also to be laid out all around the building as well as a terrace in the back, connected to the living area.

The architects first sought to reorganize the partitions to obtain fluid circulations and spaces that are well-proportioned, clean, and uncluttered.

Several new openings have been made in the exterior walls to illuminate the space at any time of the day. They also opened the floor to create a large double-height space for the new staircase, thus reinforcing an impression of continuity between the two levels. A large piece of satin glass between the office and the stair allows these spaces to benefit from the light coming from the neighboring space while ensuring privacy.

The lighting has also been thought of from a functional point of view but also for the ambiance it can create and also for the beauty of the object itself in space.

For this project, the architects have designed several elements of integrated furniture that meet the needs of the clients in their daily activities. The built-in furniture also acts as a partition and defines the space.

로즈몽 구역에 위치한 두 세대용 주택건물의 1층과 반지하를 건축주의 새로운 주택을 위해 개조했다. 2층은 세입자를 위한 공간으로 남겨졌다. 건물 뒷편의 거실영역과 연결되는 테라스와 정원 또한 건물 주위로 계획되었다.

건축가는 비율이 좋고, 깔끔하며, 정돈된 유동성 있는 동선과 공간의 확보를 위해 먼저 가벽들을 재조직 했다.

하루종일 공간에 자연광을 들이기 위해 외벽에 새로운 개방구를 계획했다. 그리고 새로운 계단에 거대한 두 배 높이의 공간을 창조하기 위해 바닥을 열였고, 이를 통해 두 층간의 연속성을 강화시켰다. 사무실과 계단 사이의 유리벽은 프라이버시를 보장해주면서 이 공간들이 이웃하는 다른 공간에서 들어오는 자연광을 최대한 끌어들인다.

조명 또한 기능적 관점 뿐 아니라 그것이 만들 수 있는 분위기와, 공간에서 한 오브젝트 자체로서 아름다움이 된다는 점을 고려하였다.

이 프로젝트를 위해, 건축가들은 그들의 일상 활동 속에서 고객들의 수요를 만족시키는 몇몇의 통합된 가구 요소들을 설계했다. 빌트인 가구 또한 가벽으로서 역할을 하며, 공간을 구분해 준다.




Architect Paul Bernier Architecte
Location Rosemont, Montréal, Québec, Canada
Completion 2020
Design team Paul Bernier, Luc-Olivier Daigle, Évelyne St-Jacques
Structural engineer Zarrabi et associés
Concrete Atelier B
Contractor Construction Libersan
Cabinetmaker La Clé de Voute
Photographer Raphaël Thibodeau
'Architecture Project > Single Family' 카테고리의 다른 글
| THE HOUSE WITH MOUNTAIN (0) | 2021.05.18 |
|---|---|
| Casa Colorada (0) | 2021.05.13 |
| Pearl House (0) | 2021.05.03 |
| DeNormanville (0) | 2021.04.27 |
| High Park Residence (0) | 2021.04.26 |
마실와이드 | 등록번호 : 서울, 아03630 | 등록일자 : 2015년 03월 11일 | 마실와이드 | 발행ㆍ편집인 : 김명규 | 청소년보호책임자 : 최지희 | 발행소 : 서울시 마포구 월드컵로8길 45-8 1층 | 발행일자 : 매일



