
THENAEUN HOSPITAL The building’s site is located on the main road which is like an artery crossing in Daegu and Daegu Metro Line 1 where crowded transportations are overlapping. It’s near with the transportation hub Jukjeon-ne-geori, and various commercial facilities and housing buildings are mixed and being adjacent to each other. When I first visit the current site, I felt confused because of the night club building adjacent to it. I was worried if there will be a problem due to the gap between the entertainment building near it and the rehabilitation hospital with many hospital rooms and treatment spaces. The difference of main operation time, and the worry on noise was a useless concern in an aspect of the actual use after the construction afterwards.

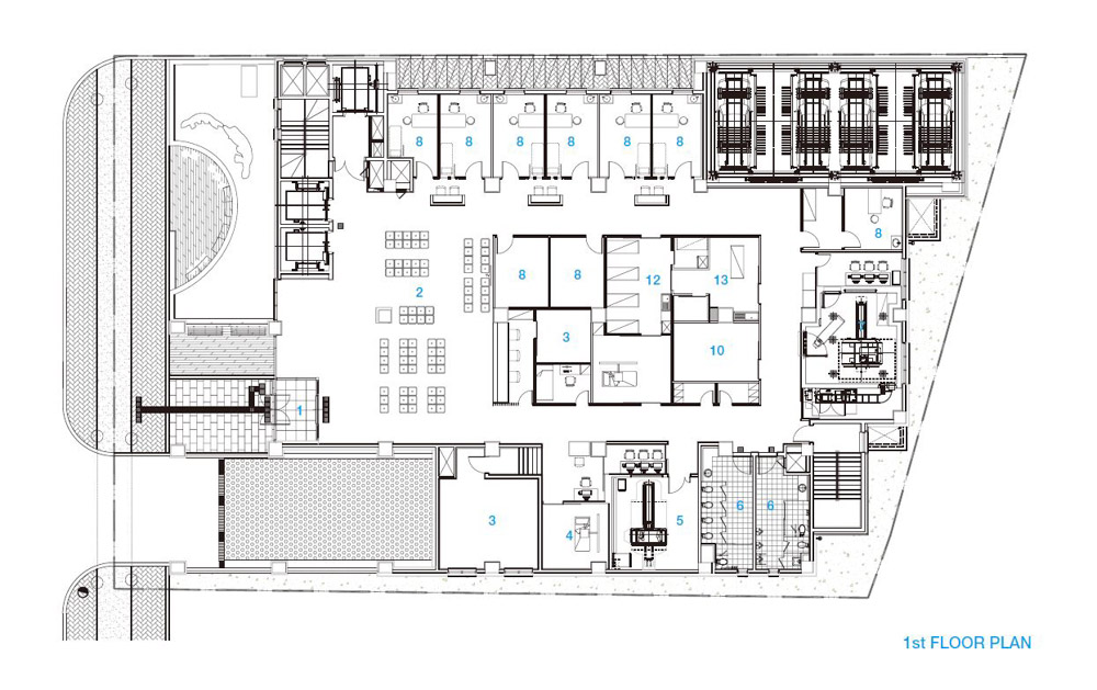
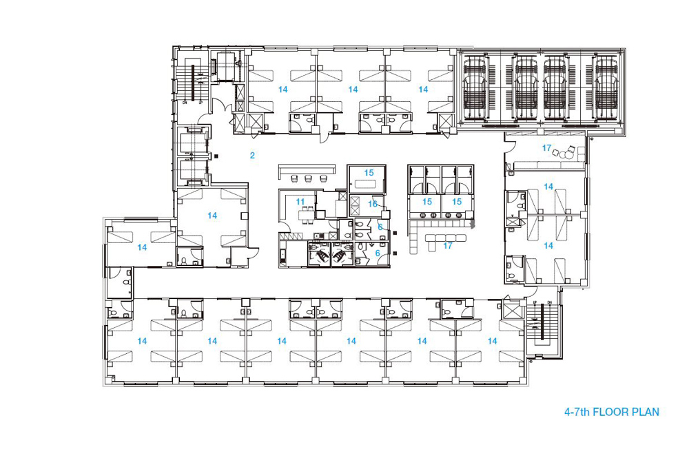
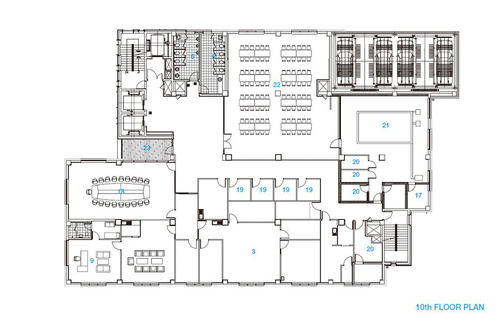
This building is a rehabilitation hospital in 10 stories from the B1. On the first basement level, there are parking lot and a machine room. A medical treatment room and check up room is on the 2nd floor. There is a treatment center on the 3rd to 4th floor. The wards is on the 5th to 9th floor. An administration office, a seminar room, and a cafeteria is on the 10th floor. The roof top is composed of the garden where people could enjoy the outdoor space at least. To look at the automotive approach in the aspect of the arrangement, I planned to make an entrance making the road to move back about 3m as it’s hard to approach the plot directly from the frontal 50m road. Because of the legal public open space securing for the medical facilities, the frontal entry and openness could be secured, and I planned an entry route directly to the lobby from the frontal sidewalk stepping aside a public open space.

When you see the building on the front side, it could be divided into two masses according to two materials. It’s the Aluminum panel's mass which is the center part, and the stone burner treatment's mass which are comprising the individual rooms’ space so you could see the masses which look like a material separation according to the functions. Due to the plan arrangement according to the hospital rooms, the elevators and core of the staircase are front-oriented. The mass of the aluminum panel is vertically divided and fragmented very sharply. The openness has added by installing windows between those divided spaces.

The space for a treatment and check-up on the 1st floor has composed according to the actual users’ circulation and the functional division, 2nd and 3rd floor’s treatment center has focused on planning rooms according to the objectives and functions and making a connectable plan according to the treatment’s flow. On the floors where the ward are located, considering there are many long-term hospitalization cases, I focused on the plan composition making lighting and exterior air circulation easier at least. It’s a place which could provide little composure to the patients and hospital employees’ repeating life and a space which could be flexible based on the hospital’s objectives and give a treatments.

더나은병원 대구를 동서로 가로지르는 동맥같은 주요 간선도로와 지하철 1호선이라는 큰 교통의 신경들로 겹쳐져 있는 곳에 이 건물의 대지는 자리를 잡고 있다. 죽전네거리라는 교통의 요충지와 근접하고 무수한 상업시설과 주택지가 혼재되어 있다. 현 대지를 처음 방문했을 때 인접하고 있는 나이트클럽 건물로 인하여 매우 혼란스러웠다. 무수한 병실과 치료공간이 필요한 재활병원이 과연 인접 유흥시설과 괴리감으로 혹여나 문제가 발생하지 않을까라는 고민 아닌 고민을 하게 되었다. 주 사용 시간대가 다르고, 그리고 생각보다 소음에 대한 고민은 추후에 준공 이후의 실 사용에서 본다면 괜한 기우였다는 생각도 든다.

본 재활병원은 지하 1층과 지상 10층 규모의 건축물이다. 지하 1층에는 주차장과 기계실, 2층은 진료, 검사실, 3~4층은 치료센터, 5층부터 9층까지는 병실로 되어 있다. 10층은 행정관련 사무실, 세미나실, 식당이 있으며 옥상은 외부의 공간을 조금이나마 만끽할 수 있는 옥상 정원으로 이루어져 있다. 배치에서의 차량 접근을 본다면 전면 50m 폭의 대로에서 대지로의 직접적 접근이 불리하여 도로를 3m 가량 후퇴를 하여 진입하는 계획을 세웠다. 의료시설에서의 법적 공개공지 확보로 전면에서의 진입을 가능하게 하며 개방감을 살릴 수 있었고, 전면 인도에서 공개공지를 지나 바로 로비로 진입할 수 있다. 전면에서 이 건축물을 본다면 두 개의 재료에 의해 두 개의 매스로 구분된다. 코어 부분에 해당하는 알루미늄 패널 매스와 실별 공간을 구성하고 있는 고흥석 버너구이의 매스로 보면 기능에 따른 재료 분리와 같은 매스를 볼 수 있다.


병실에 따른 평면구성에 의해 어쩔 수 없는 듯 엘리베이터 및 계단실의 코어 부분은 전면으로 향해 있다. 알루미늄 패널부에 대한 부분은 아주 샤프하게 수직으로 분할되고 세분화되어 있다. 그 분할된 공간의 틈틈이 사이로 창문을 설치하여 개방감을 준다. 1층 진료와 검사부분은 실사용자의 동선과 기능별 구획에 따라 평면을 구성했고, 2층과 3층의 치료센터는 목적 및 기능에 따라 큰 실을 구획하고 치료의 동선에 따라 서로 연계될 수 있는 평면을 구성하는 데 중점을 두었다.

병실 층의 경우 장기 입원의 경우가 많은 점을 고려하여 조금이라도 외기에 대한 채광과 환기가 될 수 있도록 평면 구성에 역점을 두었다. 반복되는 환자와 병원종사자와의 많은 시간을 조금이나마 여유를 선사할 공간을 줄 수 있는 계획, 병원의 목적에 따라 가변성을 가지며 원활한 치료가 되는 공간이다.





Architect INTER ARCHITECTURE
Location Dalgubeol-daero, Dalseo-gu, Daegu, Republic of Korea
Program Medical facility
Site area 1,527.60m2
Building area 1,164.06m2
Gross floor area 11,590.19m2
Building scope B1, 10F
Building to land ratio 76.20%
Floor area ratio 685.13%
Design period 2016. 9 - 11
Construction period 2017. 6 - 2019. 6
Completion 2019. 6
Principal architect Sungyong Yang
Project architect Sungyong Yang, Sungahn Baek
Architectural design team Unseong Park, Jiyun Yang, Taeyeon Kim
Interior design team Eunjeong Lee, Jimin Song, Seunghee Choi
Structural engineer Jewon E&C
Mechanical engineer DONGNAM engineering
Electrical engineer SHINLA ENGINEERING
Construction HONGSUNG CONSTRUCTION
Photographer Donggyu Yoon
해당 프로젝트는 건축문화 2021년 1월호(Vol. 478)에 게재 되었습니다.
The project was published in the January, 2021 issue of the magazine(Vol. 476).
January 2021 : vol. 476
Contents : RECORDS MMCA OPENS THE EXHIBITION: UNITY POINT OUT THE INTERACTION FOLLOWING A VISUALIZATION OF REALISTIC SPACE : NEWS / COMPETITION / BOOKS : SKETCH DOUGLAS HOUSE / ASHWIN SWAMINATHAN :..
anc.masilwide.com
'Architecture Project > Healthcare' 카테고리의 다른 글
| EASY N BUILDING (0) | 2021.08.02 |
|---|---|
| Fertility clinic & IVF laboratory (0) | 2021.07.19 |
| DODAMJI HOSPITAL (0) | 2021.03.12 |
| SETTSUMOTOYAMA DENTAL CLINIC (0) | 2021.01.12 |
| CLEMENTE DENTAL CLINIC (0) | 2020.04.01 |
마실와이드 | 등록번호 : 서울, 아03630 | 등록일자 : 2015년 03월 11일 | 마실와이드 | 발행ㆍ편집인 : 김명규 | 청소년보호책임자 : 최지희 | 발행소 : 서울시 마포구 월드컵로8길 45-8 1층 | 발행일자 : 매일



