
Dodamji hospital Dodamji hospital is located on Yongheung-dong, Pohang. Not much time has passed after the Pohang earthquake. The time could be an uncomfortable time for all designers and builders. This building’s client was as well. Think it was a time when the earthquake resistance, water resistance were the prefixes before asking for a building design.

I started a plan expecting the ground quality. It’s a complex structured building with the 1st floor’s commercial facilities and the hospital on upper level. The facade has composed by cutting the mass horizontally with some of the terracotta panels on the entire white complex panels.

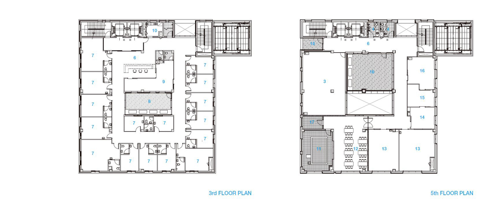
The structure which fronts the air outside was required due to the needed hospital room spaces in terms of the entire scale space composition and the restrictions per levels etc. in addition to it, we needed a structure giving us openness inside by making a hole in the middle of thick square void as a courtyard. This kind of space layout simultaneously secures openness in ward floor level and making a flow space which circulates naturally.

The 2nd floor is where diagnosis room, check-up, and treatment room are placed. It is higher heighth of than other floors. As there are many waiting patients and guardians considering the characteristics of pediatrics, it concerns them by securing a comfortable space and the height of the small parts.

The 3rd and 4th floor is wards. The entry to the hospital rooms inside has blocked firstly from the elevator and staircase, and as I explained before it’s a plan where wards have arranged on the outside making courtyard space as a center. The 5th floor is composed of the attached facilities of hospitals: Administration and office space, kitchen, cafeteria etc. Giving us composure by connecting with the outside deck.

도담지병원 도담지병원은 포항 용흥동에 위치하고 있다. 설계 당시, 포항지역의 지진이 발생한지 그렇게 많은 시간이 흐르지 않았다. 그때 그 순간은 아마 설계하는 사람, 집을 짓고자 하는 사람 누구나 부담스러운 시간이었을 것이다. 이 건물의 건축주도 마찬가지였다. ‘지진에 튼튼한 건축물’, 물이 세지 않는 건축물을 설계해달라는 말은 이제 당연한 요구가 되어버렸다.

건물은 지상 1층의 상업시설과 상부층의 병원이 같이 있는 복합 구조의 건축물이다. 전체적으로 화이트 복합 패널로 마감하고 일부를 테라코타 패널로 마감함으로써 수평으로 매스를 분절하여 입면을 구성했다. 전체 규모의 공간구성에서 필요한 병실 층별 제한 등으로 외기에 많이 면하는 구조가 필요했다. 그리고 그 두터운 사각 박스를 가운데 중정으로 뚫어 내부 공간에서도 개방감을 둘 수 있는 구조가 필요했다. 이러한 공간 구성은 병실 층에서의 개방감을 확보하는 동시에 자연스럽게 순환되는 동선을 만들었다.

지상 2층은 진료와 검사 및 치료센터가 있는 곳으로, 다른 층보다 높은 층고가 확보됐다. 소아과 특성상 대기 환자와 보호자가 많은 관계로 쾌적한 공간을 확보하고 층고를 확보하여 환자와 보호자를 배려한다. 지상 3, 4층은 병실공간이다. 엘리베이터와 계단에서 먼저 내부 병실공간으로 공간을 구분해주고 중정 공간을 중심으로 외부 측에 병실을 구성했다. 지상 5층은 행정 및 사무공간, 주방, 식당 등 병원 부속시설로 구성되어 있으며, 외부 데크와 연계되어 여유를 준다.





Architect INTER ARCHITECTURE
Location Saecheonnyeon-daero, Buk-gu, Pohang-si, Gyeongsangbuk-do, Republic of Korea
Program Medical facility
Site area 1,297.40m2
Building area 770.96m2
Gross floor area 3,551.54m2
Building scope B1, 5F
Building to land ratio 76.20%
Floor area ratio 685.13%
Design period 2018. 6
Construction period 2019. 2 - 2020. 4
Completion 2020. 5
Principal architect Sungyong Yang
Project architect Sungyong Yang, Sungahn Baek
Architectural design team Unseong Park, Jiyun Yang, Taeyeon Kim, Gahyun Woo
Interior design team Minji Park, Jimin Song, Seunghee Choi
Structural engineer BUM engineering
Mechanical engineer DONGNAM engineering
Electrical engineer SHINLA engineering
Construction HONGSUNG CONSTRUCTION
Photographer Donggyu Yoon
해당 프로젝트는 건축문화 2021년 1월호(Vol. 478)에 게재 되었습니다.
The project was published in the January, 2021 issue of the magazine(Vol. 476).
'Architecture Project > Healthcare' 카테고리의 다른 글
| Fertility clinic & IVF laboratory (0) | 2021.07.19 |
|---|---|
| THENAEUN HOSPITAL (0) | 2021.03.15 |
| SETTSUMOTOYAMA DENTAL CLINIC (0) | 2021.01.12 |
| CLEMENTE DENTAL CLINIC (0) | 2020.04.01 |
| HARALDSPLASS HOSPITAL (0) | 2020.03.30 |
마실와이드 | 등록번호 : 서울, 아03630 | 등록일자 : 2015년 03월 11일 | 마실와이드 | 발행ㆍ편집인 : 김명규 | 청소년보호책임자 : 최지희 | 발행소 : 서울시 마포구 월드컵로8길 45-8 1층 | 발행일자 : 매일



