
후당건축상 심사평(이상홍_경북대학교 건축학부 교수/ 사. 한국건축가협회 대구경북건축가회 회장)
본 건물은 상업지이지만 큰길에서 들어가 주택지가 시작되는 경계 지점에까지 깊숙이 들어와 있다. 처음 찾아오는 사람은 쉽게 찾지 못할 만큼 상업 배후 뒷골목의 주택지 한적한 곳에 위치한다. 이런 지역은 모텔이나 주점 같은 큰 건물이 작은 매스의 주택지에 완충 없이 바로 부딪히거나 소규모의 영세 상업 시설이 밤에 시작하여 새벽까지 골목을 장악하는 그런 애매한 곳이 된다.
건축물 크기의 측면에서, 이렇게 상당한 연면적을 가진 카페가 주택가에 있자면 도시적 맥락과 매스 규모에서 이질적일 수 있겠고 반대로 동네 카페처럼 작은 주택을 개량한 사이즈라면 사람들이 외부에서 모임이나 약속의 장소로 찾아올 만큼 인상적이거나 많은 수의 사람을 수용하게 되기는 쉽지 않다. 더구나 요즘 주택가에 개발되는 상업 시설은 주택가의 다양성과 활기를 불어오기도 하지만 승용차가 트럭으로 사용되는 만큼이나 원래 가졌던 용량의 골목을 메워버려서 극심한 주차난과 위계를 깨며 새어나오는 소음의 부작용 또한 심각하다.

“크레도”는 이런 점에서 작가는 어떤 고민을 하였고 그것을 어떻게 풀어나갔는지 잘 보여준다. 안쪽으로 들어오면 좁은 골목에서 가지는 근거리 시점의 특성에서 압도적이어야 할 2층 규모의 단일 카페는 선뜻 찾을 수 없다. 마치 두 개의 서로 다른 건물이 나란히 주택이 시작되는 경계지 앞쪽에 다른 맛의 초콜릿처럼 배열되어 있을 뿐이다.
두 쪽 다 원재료의 외피 본성을 살렸으나 한쪽은 여느 주택처럼 빨간 벽돌로 단정하게 지어지고 다른 한쪽은 노출 콘크리트의 무채색 파사드다. 이 골목의 역사만큼 더불어 가겠다는 긴 호흡이 보인다. 다만, 잘게 쪼개어 빛을 분산시키면서 만들어진 스치듯 무수히 작은 그림자의 미송 무늬 자국은 콘크리트 벽면에 가로로 녹아 붙어서, 원재료가 가졌던 투박하고 차가운 질감을 옆 벽돌 매스의 모르타르 줄눈 스케일만큼으로 줄여주어 두 매스의 차별성과 유사성을 이 주택지의 경계처럼 혼재시켜주고 있다. 더구나 현관으로 들어가기 전 골목에서 2층 벽면으로 올려다보는 시선을 과감하게 뚫어서 근접 매스에서 오는 위압감을 해소시키는 동시에 하늘과 중첩 벽면을 담는 비워진 프레임을 걸어 놓았다.

이렇듯 두 매스는 딱딱한 대칭에서 비껴나서 다이나믹한 균형을 한 건물의 분절에서 쪼개내고 서로 다른 듯 닮은 형제처럼 서로에게 스스로 서로 다른 하나임을 증명해주고 있다. 좁은 공간의 건물 속에 둘러싸인 주변 입지의 특성상, 태양의 움직임에 따라 이질적 재료의 두 파사드는 하나의 건물임에도 그림자처럼 한쪽이 빛날 때 한쪽은 침묵하여 서로의 시간을 기다려준다. 주택과 상업지의 경계에서 고민하였던 작가의 인내와 절제가 엿보이는 대목이다.
주차는 노출콘크리트 매스가 있는 건물을 들어 올려서 필로티로 해결하고 두 매스의 무게중심을 만들었다. 주차는 필로티를 깊은 부지 안쪽 또 하나의 골목길을 펼치듯 넉넉하게 배열되어 있고 부지 바깥면 주택 쪽 벽면은 허물어 폐쇄성을 줄였지만 낮은 경계 담으로 벽의 일부처럼 공간을 둘러싸 안정성을 가져왔다. 주변의 주택 담에서 흔하게 보이는 재질의 콘크리트로 평범해 보일 수 있겠지만, 작가는 높이를 허리춤까지 올려서 내부 공간성을 높이는 동시에 반복적으로 세로홈을 시원하게 뚫어놓고선 안에다 조명을 설치하여 특별함을 더했다.

세로로 뚫린 홈은 낮에는 태양광의 이동로로 빛과 그림자를 내부로 길게 드리우고 밤에는 조명의 광원길을 안내등처럼 들여오며 평범한 콘크리트 담을 특별함으로 바꾸었다. 주차를 위한 필로티지만 1층 벽이 제거된 것이 아닌 매스가 들어 올려졌다는 표현은, 벽돌 매스 쪽이 마치 어쩔 수 없이 노출되는 외벽 그대로가 아니라 들어올려진 높이만큼 클래식한 세로 창이 있는 파사드의 디테일도 함께 풀 파사드로 노출되어 있기 때문이다. 주차하고 걸어나오는 현관 주 출입구 쪽 동선은 주차장 속이라기보다는 마치 근사한 벽돌 외관의 아케이드 건물을 따라 거리를 걷는 듯한 상쾌한 착각을 일으킨다.
내부로 가기 위해 처음 만나는 출입문은 클래식한 무게감 속에 철망사 메시가 보이는 유리창으로 만들어졌다. 커피 체인점에서 볼 수 있는 유니폼같이 강화유리로 된 투명한 통유리의 현대식 문보다 포근하면서 스크린된 시간의 감성을 느끼게 해준다. 첫발의 입구 마감은 나무 마룻바닥이다. 두꺼운 무게감과 묵직한 윤기는 자신의 발걸음을 들으며 들어오는 사람으로 하여금 대접받고 있다는 느낌을 주기에 충분하다. 내부의 벽면은 외부의 외피와 동일하다. 솔직한 만큼 강렬하다. 금방 걸어들어왔던 주차장 쪽의 내부 창밖이 이곳에선 역전되어 오히려 외부가 아닌 내부로 보인다. 그만큼 내외부 이미지를 재료와 형태로 일치시킨 디자인과 디테일의 완성도가 높다고 볼 수 있다.

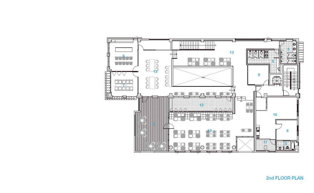
내부의 중간 천장은 2층까지 트여 시원한 공간 연결성을 준다. 그리고 벽면을 따라 거침없는 일직선 계단을 오르면 2층은 1층의 넓은 공간감과 다르게 모든 공간이 벽면에 매달린 테라스처럼 펼쳐지는 반전의 공간이다. 테이블이 레이아웃된 계단 쪽 공간 다음은 비슷한 폭의 보이드 그리고 다시 테이블 공간, 그 너머에 조경이 있는 좁은 중정, 또 그 너머에 있는 필로티 위층의 내부공간, 이렇게 2층은 카페에 가면 모두가 선호하는 창가 자리가 되는 순차적으로 채워지고 비워진 평면적 층(Layer)이 마법처럼 디자인되었다. 그리고 단차가 있는 바닥은 각각의 테이블에 위치적 정체성을 부여하면서 테라스를 돌듯이 공간을 한 바퀴 돌면 내부가 외부로 바뀌고 다시 내부로 이어지는 극적인 공간체험을 일으킨다.

외부에서 보았던 서로 다르면서 닮은 두 매스의 내부공간은 2층에서도 중정에 있는 푸른 나무 잎사귀 사이로 볼 수 있다. 도시는 자연의 경관을 필터링해서 사랑방 건너처럼 보이게 한다. 한쪽에서 보면 다른 한쪽은 이웃 건물 공간으로 보이지만 막상 내부공간을 찾아가면 하나의 공간으로 펼쳐지며 두 개로 이루어진 매스의 연결을 인식하지 못하게 한다. 그만큼 공간은 막힘과 열림이 들어서는 시점에 따라 펼쳐져서 한눈에 의도적으로 들어오게 하지 않았지만 테이블을 찾아 돌아서면 자연스럽게 이어지도록 디자인되어 있다.

내부의 조명은 벽면을 돋보이게 하는 요소로 금속 패널에 반짝이기도 하고 벽돌에 스며들기도 하면서 직접 내려 퍼지거나 간접적으로 실루엣을 만든다. 그러나 2층의 보이드 공간 난간에서 1층의 카운트 쪽을 내려다볼 때 조명이 눈을 쏘아붙이는 일은 없다. 그만큼 시선 처리 하나에도 조명의 각도를 계산하여 바로 보이는 업라이트를 없애고 포근한 나무 바닥을 내려보게 한다. 중심 가로에 있는 크고 화려한 기교의 건물만큼 고급스럽고 임팩트를 만들진 않을지라도 우린 배려와 디테일의 완성이 훌륭한 건물을 만든다는 것을 이 건물을 보며 생각하게 한다. 그 위치에 적절한 그 공간의 정체성이 뚜렷할 때 우리는 삶 속에 함께하는 진정한 도시의 장소성을 발견하게 된다. 크레도, 주택가에 스며드는 빵과 커피의 진하고 매력적인 향기만큼, 작가는 이곳에 향기 나는 공간을 선물하였다.
Architect INTER ARCHITECTURE
Location Dongdaegu-ro, Suseong-gu, Daegu, Republic of Korea
Program Cafe
Site area 887.30㎡
Building area 617.90㎡
Gross floor area 883.22㎡
Building scope 4F
Building to land ratio 69.64%
Floor area ratio 99.54%
Design period 2014. 12 - 2015. 1
Construction period 2015. 3 - 2016. 5
Completion 2016. 5
Principal architect Sungyong Yang
Project architect Sungyong Yang, Sungahn Baek
Architectural design team Unseong Park, Jiyun Yang
Interior design team Eunjeong Lee, Minji Park
Structural engineer JEWON ENG
Electrical engineer SHINLA ENGINEERING
Photographer Donggyu Yoon
해당 프로젝트는 건축문화 2021년 1월호(Vol. 478)에 게재 되었습니다.
The project was published in the January, 2021 issue of the magazine(Vol. 476).
'Architecture Project > Commercial' 카테고리의 다른 글
| ARIJUJIN (0) | 2021.05.14 |
|---|---|
| PAUL BASSET DT 1ST STORE (0) | 2021.04.05 |
| VOID LINE (0) | 2021.02.17 |
| INTERACTING CUBE (0) | 2021.02.16 |
| THE GROUND (0) | 2021.02.12 |
마실와이드 | 등록번호 : 서울, 아03630 | 등록일자 : 2015년 03월 11일 | 마실와이드 | 발행ㆍ편집인 : 김명규 | 청소년보호책임자 : 최지희 | 발행소 : 서울시 마포구 월드컵로8길 45-8 1층 | 발행일자 : 매일



