봉산면 행정복지센터 건립 설계공모_ 당선작 / 이진욱황정헌건축사사무소

커뮤니티 안뜰, 마루, 링 : 장소가 되다.
기존 부지여건은 넓은 대지 크기의 잠재성 발현없이 차량,보행 혼잡의 건조한 아스팔트 위 산발적 건물 군집으로만 되어 있어서, 주민의 일상이 유기적으로 스며드는 장소성까지 얻어내고 있지는 못한 편이다.
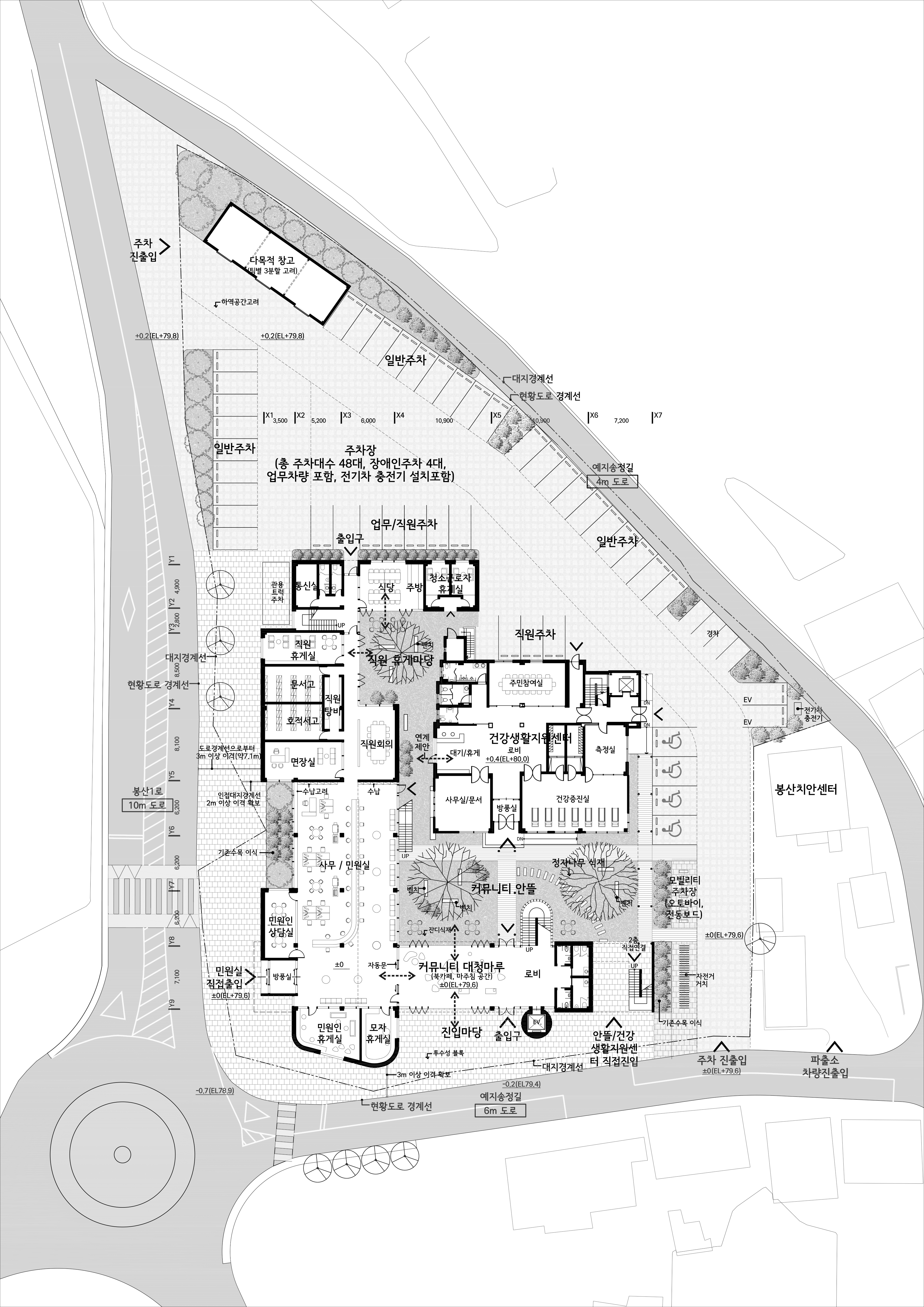
이제 봉산면 행정복지센터는 남겨질 건강생활지원센터 건물과 함께 대지 전체가 갖고 있는 물리적 크기의 장점을 살리되, 면 전체 커뮤니티의 일상이 공유되는 새로운 장소로 만들어져야 한다. 이를 위해, 먼저 새로운 면사무소의 앉음새는 기존 건물과 함께 공동체 모두의 말랑말랑한 안마당인 ‘커뮤니티 안뜰’을 만들어 내는 방식으로 시작된다. 이 안뜰은 예지리 마을을 포함한 면 전체 공동체의 상징적 안마당이자 언제든 편히 쉬어갈 수 있는 부드러운 외부공간으로 작동할 것이다. 한편 안뜰은 그 세부적 위치에 따라 진입부와의 자연스런 경계가 되기도 하고 직원들의 호젓한 쉼 공간이 되기도 한다.
이러한 안뜰 중심의 새로운 건물 클러스터와 구분되는 대지 북측 긴 변을 따라서 주차장과 편리한 통과차로가 형성된다. 대지 크기의 잠재성을 활용하여 기존 주차대수 이상의 충분한 주차장 확보로 면 지역 이용 편의성과 자전거와 모빌리티 사용을 함께 고려하되, 보행동선과 겹치지 않도록 조성된다. 전체건물은 공사비를 고려하여 지하층 없이 간결한 지상2층으로만 구성된다. 또한 기존 면사무소를 공사중에도 사용할 수 있게 하는 배치계획으로, 전체 사업비 절감과 주민이용 연속성의 이점도 염두에 두었다.
1층에는, 접근 용이하고 기능성이 고려된 민원실이 자리잡고 민원실은 ‘커뮤니티 안뜰’과도 연계되며 또한 ‘커뮤니티 대청마루’라는 공간과도 유기적으로 연결된다. 이 곳 ‘커뮤니티 대청마루’는 남동측 전면도로와 안뜰 사이에 내외부 경계가 느슨하게 자리잡히면서, 주민 소통과 마주침, 북카페 등의 기능으로 면 공동체 전체의 열린 ’거실’역할을 하게 될 것이다. 2층에는 독립적으로 접근 가능한 주민 자치실, 프로그램실, 강당 등이 위치한다. 건강지원센터의 프로그램실, 탁구장 등과도 연결되는 순환고리 형식의 ‘커뮤니티 링’을 형성함으로써 2층 전체가 다양한 주민 활동의 플랫폼이 되게 하며, 남서측에는 주변 풍광을 바라보는 방향으로 널찍한 ‘어울림 데크’를 두어 여러 행사와 일상 경험에 대응 할 수 있도록 하였다.
지붕에는 충분한 태양광 패널이 설치될 수 있도록 하고, 창면적비와 어울림데크의 옥상녹화 등, 전체적으로 에너지 절감의 건축 성능도 함께 고려하였다. 편안한 수평성과 차분한 테라코타 외장 적용으로 단정하면서도, 코너부지의 활력 또한 은근히 담아내는 새로운 형태의 봉산면 행정복지센터는 이로써, 커뮤니티 전체의 함께하는 ‘장소’로 거듭날 것이다.













이진욱황정헌건축사사무소
당선작_ 이진욱황정헌건축사사무소(http://www.leenhwang.com)
대표건축가 이진욱, 황정헌
대지면적 4,794㎡
연면적 1,643.42㎡
건축면적 1,020.62㎡
건폐율 29.92%
용적률 61.71%
층수 지상 2층
구조 철근콘크리트조, 철골조
대표건축가 이진욱, 황정헌
디자인팀 류영민
조경면적 728㎡
주차대수 48대
발주처 김천시