The World’s Biggest Bicycle Parking

Historically, the Dutch have always been fervent cyclists. This enthusiasm is now growing even further as cycling is being discovered as a key ingredient of the sustainable city. New bicycle typologies such as the introduction of the so-called e-bike are helping to amplify this shift in mass transportation. More and more public transport hubs will be complemented with extensive and user friendly amenities for cyclists, as increasing amounts of people begin to favour the combination of cycling and public transport over car use.
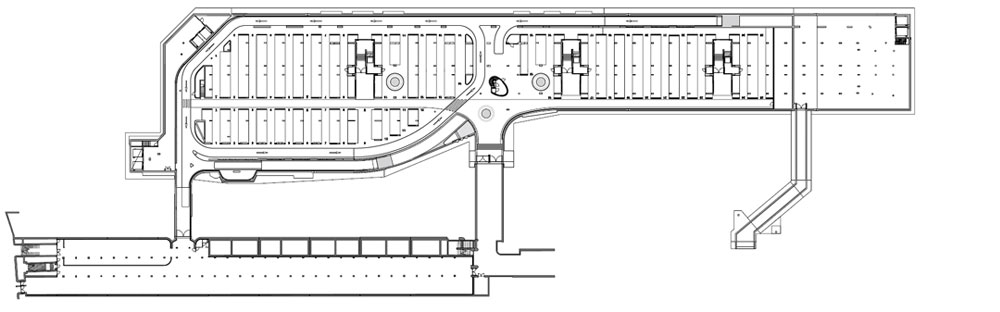
The Utrecht Central station area is currently undergoing a major makeover. By healing the scars left behind by a number of ‘modernizations’ carried out in the sixties and seventies and adding new functions to the area this part of Utrecht is designated to finally become a vibrant and friendly part of the city centre. To achieve this, inner city highways are being replaced by more modest streets and historic canals are being restored. Also, the huge modernist megastructure that once glued together the railway station and the Hoog Catharijne shopping mall (both the biggest of their kind in the Netherlands) has been taken apart, allowing for a new public street and square to be inserted, together with a bicycle parking garage. This new “Stationsallee”, a street aimed mainly at pedestrians rises by means of 30 meter wide starircases, to a level of 6 meters to widen into a square where the entrances of both the station and the shopping mall are situated. An enormous iconic canopy marks the square and enables a dry crossing between the parts that before have always been connected.
The three storey bicycle parking is situated underneath the square. It has been designed with three aims in mind: convenience, speed and safety. In order to achieve this in a facility of this scale cyclists are enabled to pedal all the way up to their parking slot. The parking lanes branch off the cycle paths, to ensure that users do not get in the way of cyclists passing through the system. Room for mounting and dismounting is left alongside the cycling lanes. Modestly sloping ramps connect the parking areas on different levels The walls are colour-coded to indicate the routing, and electronic signals indicate the position of free parking slots. Additional facilities such as a cycle repair shop, a cycle rental outlet and several floor managers meet users’ every need.
Stairwells and tunnels create direct connections to the elevated square, the main terminal building and the platforms. Ensuring good orientation and plenty of daylight, the stairwells are located inside atria covered by glass roofs. Large windows in the outer walls allow users views toward the platforms and the bus terminal. The bike park uses durable materials such as concrete, steel and chemically treated wood. In combination, these raw materials create an atmosphere in the building that still feels warm and pleasant. Three concrete columns supporting the giant canopy extend all the way down into the parking area. These trumpet-shaped elements have a diameter of 5 metres at floor level, falling to 1.2 m at the top, and each one is cast as a single element. The building is more than just infrastructure. It adds an exciting and surprising architectural dimension to the city. Cycling through the garage has become a unique experience; not just another part of everyday life in the city, but almost an attraction in its own right.

역사적으로, 네덜란드에는 항상 열성적인 사이클리스트들이 존재 해 왔다. 이러한 열정은 현재 사이클이 지속가능한 도시의 주요 인자로써 발견됨에 따라 더욱 커지고 있다. 소위 e-bike의 도입과 같은 새로운 자전거 유형은 대중 교통 속에서 이러한 변화를 증폭시키는 데 도움이 되고 있다. 점점 더 많은 사람들이 자동차 사용보다 자전거와 대중교통의 결합을 선호하기 시작함에 따라, 점점 더 많은 대중교통 중심지들은 자전거 타는 사람들을 위한 광범위하고 사용하기 쉬운 편의시설로 보완될 것이다.
위트레흐트 중앙역은 현재 대대적인 개조가 진행 중이다. 60년대와 70년대에 수행된 많은 ‘현대화’가 남긴 상처를 치유하고 이 지역에 새로운 기능을 추가함으로써 위트레흐트의 이 지역은 마침내 활기차고 친근한 도시의 일부가 될 것이다. 이를 달성하기 위해, 도심 고속도로는 더 많은 소박한 도로로 대체되고 있으며, 역사적인 운하들은 복원되고 있다. 또한, 한때 철도역과 후그카타리네 쇼핑몰(둘 다 네덜란드에서 가장 큰 쇼핑몰)을 연결했던 거대한 모더니즘 거대 구조물이 분해되어 자전거 주차장과 함께 새로운 공공 거리와 광장을 삽입할 수 있게 되었다. 주로 보행자를 대상으로 하는 이 새로운 ‘스테이션앨리’는 가로 30m, 세로 6m 높이로 솟아올라 역과 상가 입구가 모두 있는 광장으로 확장된다. 거대한 상징적인 캐노피가 광장을 나타내며, 이전에는 항상 연결되어 있던 부분들 사이를 육로로 가로지를 수 있게 한다.
3층짜리 자전거 주차장은 광장 아래 위치해 있다. 이는 편의성, 속도 그리고 안전이라는 세 가지 목표를 기반으로 두고 설계되었다. 이러한 규모의 시설에서 이를 이루기 위해서는 사이클리스트들이 그들의 주차장까지 페달을 밟고 올라 갈 수 있어야 한다. 주차 차선은 사용자가 시스템을 통과하는 자전거 사용자를 방해하지 않도록 하기 위해 사이클 경로에서 분기된다. 자전거 전용 차선을 따라 오르막 및 내리막 공간이 남아 있다. 적당히 경사진 경사로가 여러 층의 주차 구역을 연결한다. 벽은 경로를 나타내기 위해 색상으로 구분되며, 전자 신호는 무료 주차 슬롯의 위치를 나타낸다. 자전거 수리점, 자전거 대여점과 같은 추가 시설 및 여러 명의 층 별 관리인들은 사용자의 모든 요구를 충족 시킨다.
계단 및 터널들은 상승된 광장, 주요 터미널 건물 및 플랫폼들로의 직접적인 연결을 창조 한다. 좋은 방향성과 풍부한 일조량을 보장하며 계단들은 유리 지붕으로 덮인 아트리움 내부에 위치 해 있다. 외벽의 거대한 창문은 사용자들의 플랫폼 및 버스 터미널로의 조망을 가능하게 해 준다. 자전거 공원은 콘크리트, 철재 및 화학 처리 된 목재와 같이 오래 가는 재료들을 사용한다. 모두 결합되어, 이러한 원료들은 건축물에 여전히 따듯하고 쾌적한 분위기를 조성한다. 거대한 캐노피를 지지하는 세 개의 콘크리트 기둥들은 주차장 전체로 아래로 확장된다. 이러한 트럼펫 모양의 요소는 바닥으로부터 5m 직경, 위에서 1.2m 떨어지며 단일 요소로써 빛을 발한다. 그 건물은 단순한 기반 시설 이상이다. 그것은 도시에 흥미롭고 놀라운 건축적 차원을 더한다. 차고를 자전거로 통과하는 것은 독특한 경험이 되었다. 도시에서의 일상 생활의 또 다른 부분일 뿐만 아니라, 그 자체로 거의 명소가 되었다.


























건축가 Hoogstad Architecten
위치 네덜란드, 위트레흐트
용도 자전거 주차장
연면적 21,373㎡
준공 2019. 8.
디자인팀 Joost Ector, Max Pape, Chris Arts, Stijn Rademakers, Gijs Sanders, Ralph Sijstermans, Lesley Bijholt, Romy Berntsen, Daniel Diez, Kees Bongers
조경건축가 Buro Sant en Co
구조엔지니어 DGMR
조명엔지니어 Arup
시공 BAM Bouw en techniek
발주자 The Municipality of Utrecht
사진작가 Petra Appelhof
해당 프로젝트는 건축문화 2023년 2월호(Vol. 501)에 게재되었습니다.
The project was published in the February, 2023 recent projects of the magazine(Vol. 501).
February 2023 : vol. 501
Contents : NEWS / COMPETITION / BOOKS : SKETCH Things that make a day in your daily life / Hossain mousavi 일상 속에서 하루를 만드는 것들 / 호사인 무사비 : RECENT PROJECT Building of Music / Aisaka Architects’ Atelier 음악 복합공
anc.masilwide.com