Palette H

“Palette H” is a beauty salon that individual designers use while sharing space.
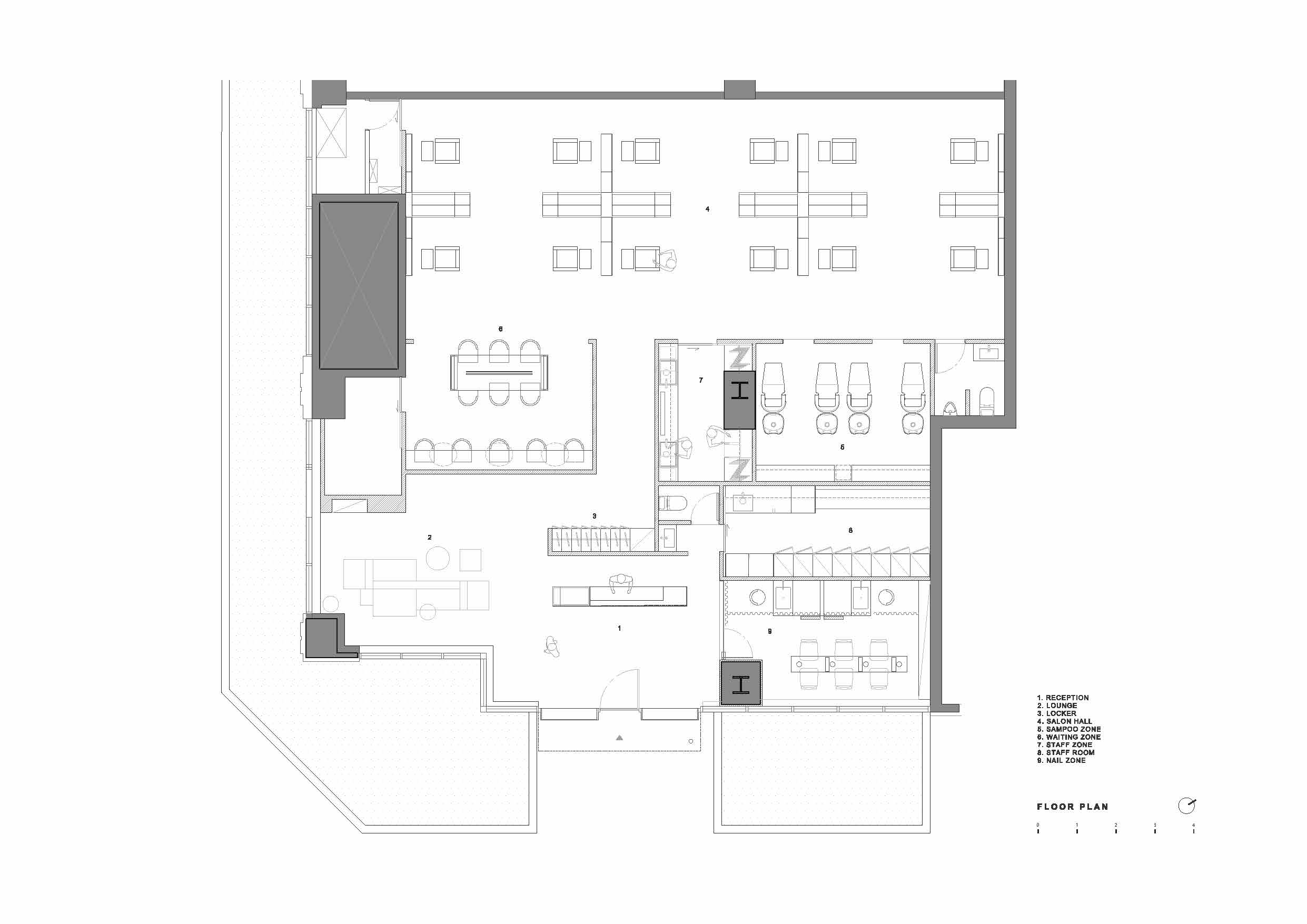
Each designer shares or occupies a limited space. We identified invisible boundaries, distances, and frequency of actions, and organized the space. The most important act among the acts that take place in this space is beauty. Beauty is an act for change. We wanted to maximize the changing experience through space. The external waiting space and the internal beauty space were separated, and the welcoming and waiting space and the hairdressing space were separated through a curved corridor. It was intended to give you a feeling of changing your mood as you move through space and space using dark passages. Even if we made tiles of the same color, we used tiles with different colors. The ceramic tiles that produce different results even when the same color is applied are regular and natural, just as each individual gets their own results through beauty. And tiles were used only as a flat surface, not a lump, as a decorative material for a flat surface. The space composed only of thin, wide and flat surfaces was intended to provide a sense of depth and a wider sense of expansion. Small fragments of light are embedded in it to guide the way.

팔레트에이치는 개별의 디자이너들이 공간을 공유하며 이용하는 미용실이다.
각각의 디자이너들이 한정된 공간 안에서 공유하기도 하고, 점유하기도 한다. 우리는 보이지 않는 경계와 거리, 행위의 빈도를 파악하고 공간을 정리하였다. 이 공간에서 일어나는 행위 중에서 가장 중요한 행위는 미용이다. 미용은 변화를 위한 행위이다. 변화하는 경험을 공간을 통해 좀더 극대화할 수 있기를 원했다. 외부 대기공간과 내부의 미용공간을 분리하고 꺽인 복도를 통해 맞이하고 대기하는 공간과 미용하는 공간을 분리하였다. 어두운 통로를 이용해 공간과 공간을 이동하면서 기분이 변화하는 느낌을 받을 수 있도록 의도했다. 우리는 같은 칼라의 타일을 만들어도 각기 다른 색의 차이가 있는 타일을 사용했다. 같은 색을 입혀도 각기 다른 결과가 나오는 자기질의 타일은 각자가 미용을 통해 각자의 결과물이 나오는 것처럼 규칙적이면서도 자연스럽다. 그리고 타일은 평면을 장식하는 재료로, 덩어리가 아닌 평평한 면으로만 이용했다. 얇고 넓고 평평한 면으로만 구성된 공간은 깊이감과 더 넓은 확장감이 있도록 의도했다. 그 안에 작은 조명의 파편들이 박혀 길을 유도한다.













Design : STUDIO FRAGMENT
Location : 190-1, Sinheung-ro, Bucheon-si, Gyeonggi-do
Site area : 264.0㎡
Photographer : Hong Kiwoong