
Riyue Bay Yuyue Artia Hotel
하이난 완닝의 르웨이 베이는 중국에서 가장 뛰어난 서핑 환경을 갖춘 해안 지역으로 알려져 있다. 열대 몬순 해양성 기후 아래 연중 온난하고 일조량이 풍부한 이 지역은 스포츠와 레저 활동이 일상처럼 이어지는 장소다. 호텔은 서핑을 테마로 한 복합 리조트 ‘Zhulang Resort’ 내에 위치하며, 해안선에서 약 500m 떨어진 산과 바다 사이에 자리한다.
대지는 리조트의 북동쪽 끝에 놓여 있어 직접적인 해안 조망이 없고, 주요 상업 시설 및 인공 파도 풀과도 거리가 있다. 남측에는 향후 개발 구역이, 동·북측에는 차량 도로가 접해 있어 환경적 제약이 존재했다. 이러한 조건에 대응해 건축가는 외부로 향하는 공간을 계획하기보다, 내부로 수렴하도록 했다. 명확한 경계를 설정하고 중정을 중심으로 한 폐쇄적 배치를 통해, 리조트 안의 또 다른 독립적 세계를 구축했다. ‘리조트 속의 정원’이라는 개념이다.
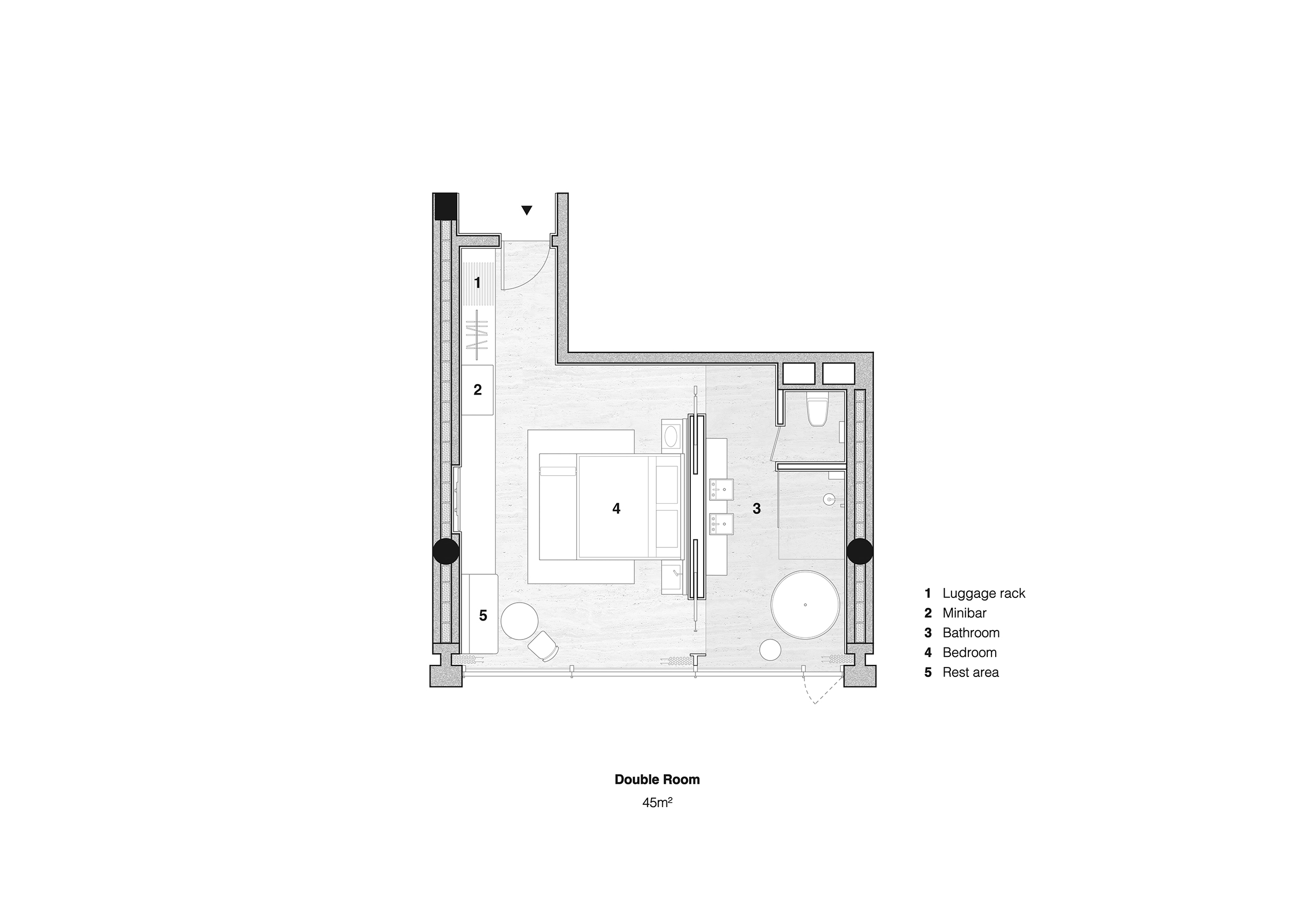
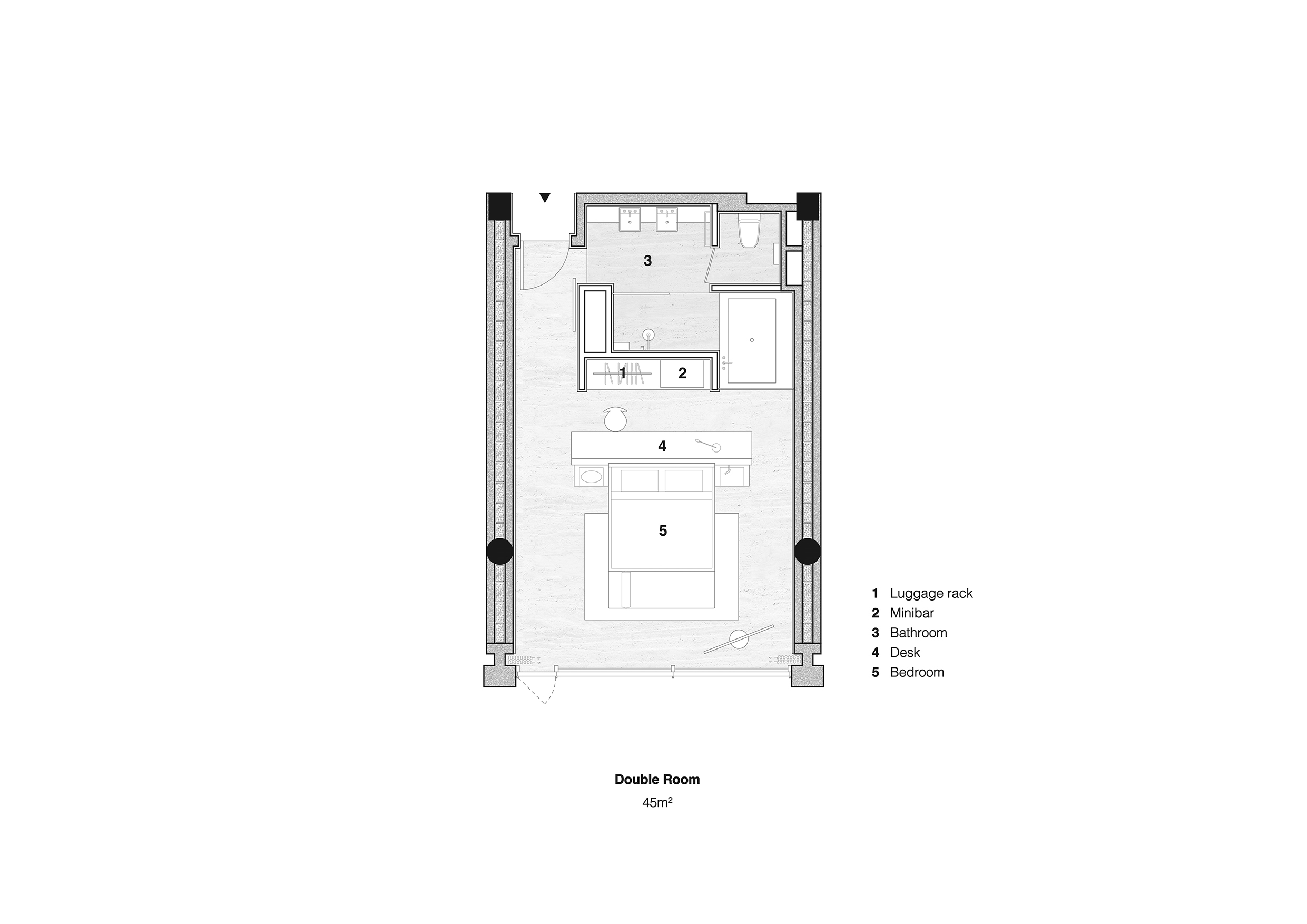
건물의 중심에는 41 × 45m 규모의 수공간 중정이 자리한다. 1층은 수면을 둘러싼 연속된 열주 회랑으로 구성되며, 로비, 레스토랑, 엘리베이터 코어 등 주요 기능이 그 둘레에 배치된다. 수공간은 동선을 직선으로 연결하지 않고 우회하게 만들며, 이동 자체를 경험으로 전환한다. 반외부 휴식 공간과 계단식 플랫폼은 다양한 체류 방식을 허용한다.
객실은 하나의 대형 매스로 묶지 않고 동·서·북측에 세 개의 볼륨으로 분절 배치되었다. 남측에는 공용 라운지 볼륨을 두어 중정의 폐쇄감을 완화한다. 각 볼륨은 수면 위에 떠 있는 듯한 캔틸레버 형태로 설계되어 가벼운 인상을 만든다. 모든 객실은 중정을 향해 전면 유리로 열려 있으며, 수면과 하늘을 하나의 풍경으로 끌어들인다.
재료는 라이트 그레이 페인트와 실버 톤 알루미늄 패널로 절제되었다. 내부는 매트 오크, 화석목 질감 마감 등 따뜻한 중성 톤을 사용해 감각적 깊이를 더한다. 이 호텔은 형태보다 ‘공간의 여백’에서 출발한다. 전체 약 6,500㎡ 중 약 1,600㎡는 특정 프로그램을 부여하지 않은 채 남겨 두었다. 이 의도적 공백은 감정적 경험을 위한 장소로 기능한다.
서핑 리조트의 활기와 대비되는 고요한 공간. 이곳에서 건축은 물리적 구조가 아니라 감각의 장으로 작동한다. 물 위를 스치는 바람, 빛이 반사되는 수면, 거친 재료의 촉감은 머무는 이의 내면을 자극하며, 일상의 속도를 늦추는 환경을 만든다.














건축가 비.엘.유.이. 아키텍처 스튜디오(B.L.U.E. Architecture Studio)
위치 중국, 하이난, 완닝
용도 호텔
대지면적 4123.16㎡
연면적 6585.01㎡
설계자 Shuhei Aoyama, Yoko Fujii, Lingzi Liu, Houjun Jin, Jiahui Wang, Nailun Chen, Lei Feng
설계기간 2023.03. – 2023.09.
시공기간 2024.01. – 2025.10.
발주처 China Tourism Group
조경 Shenzhen General Institute of Architectural Design and Research Co. Ltd., Z’scape
조명 Mason Wisdom Technologies Co. LTD.
시공 China Construction Third Engineering Bureau Group Co. LTD.
사진 Xia Zhi
'Architecture Project > Hospitality' 카테고리의 다른 글
| 산 위에 얹어진 산 모양의 별장 / 필리페 피나 아르키텍투라 (0) | 2026.04.27 |
|---|---|
| 유영의 공간을 품는 호텔 / 디제이엑스 디자인 (0) | 2026.03.25 |
| 풍경 뒤로 물러난 건축, 사덱 가든 / 피에이유 아키텍츠 (0) | 2026.03.10 |
| 산의 시간을 안는 건축, 테라센스 마운틴 참 리트리트 / 아틀리에 디알케이 (0) | 2026.02.10 |
| 타트라 산맥 아래에서 되살아난 산업 유산, 프라디아렌 케주마로크 / 비프 아르키텍티 (0) | 2026.01.21 |
마실와이드 | 등록번호 : 서울, 아03630 | 등록일자 : 2015년 03월 11일 | 마실와이드 | 발행ㆍ편집인 : 김명규 | 청소년보호책임자 : 최지희 | 발행소 : 서울시 마포구 월드컵로8길 45-8 1층 | 발행일자 : 매일

















