
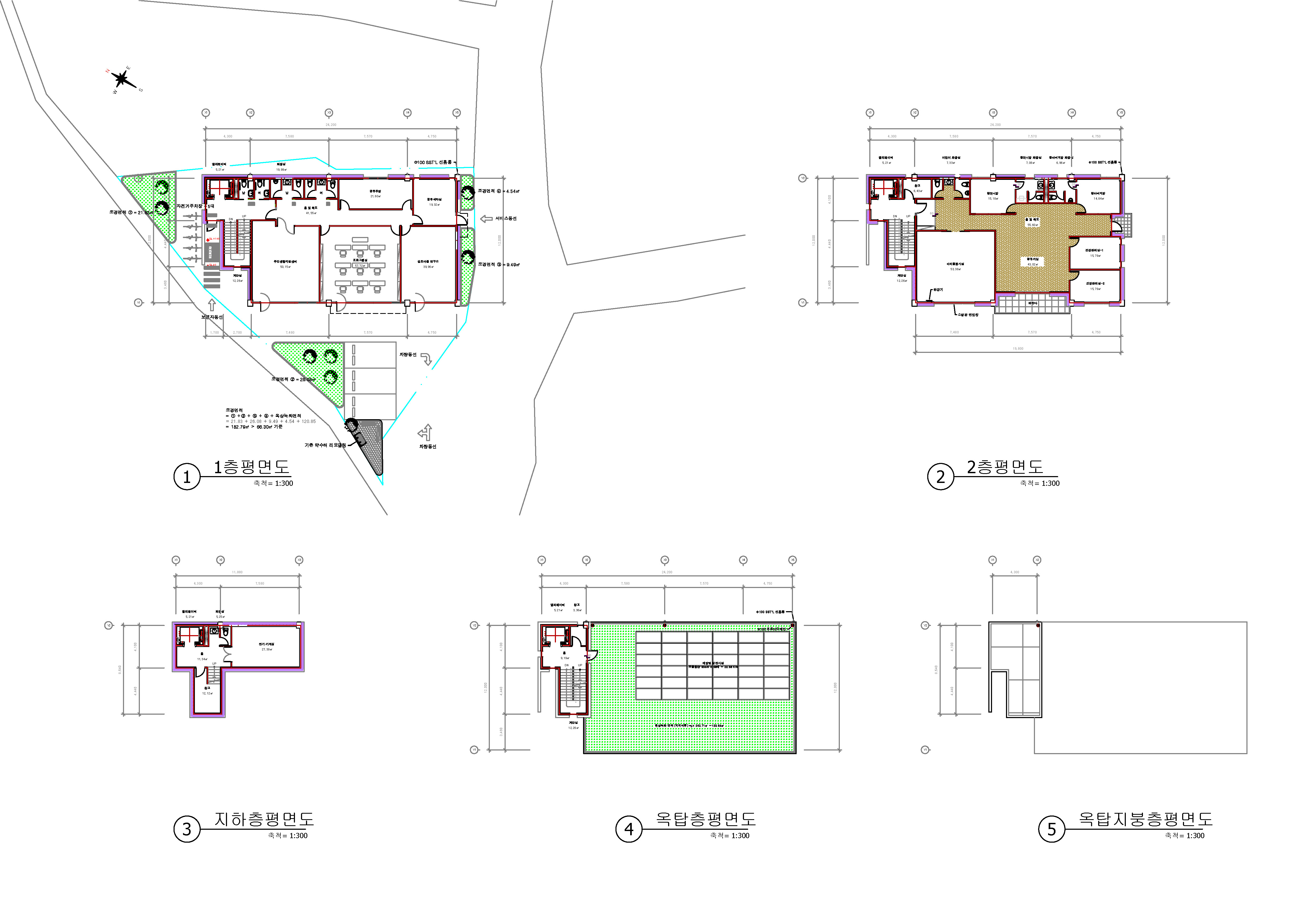
■ 마을을 담는 생활 플랫폼
1층은 지역사회와 자연스럽게 연결되는 개방형 커뮤니티 공간으로 계획
2층은 돌봄과 휴식 중심의 보호된 생활공간으로 구성
옥상은 신재생에너지와 녹지를 담는 환경 플랫폼으로 설계
■ 배치계획
코너 대지의 장점을 살려 2면이 도로에 접함으로 가시성 확보
주출입구를 전면 가로에 배치하여 공공성 강화
차량 동선과 보행자 동선의 완벽한 분리
■ 조경계획
가로수 연계형 소규모 마을광장 형성
옥상 녹화로 건축물 열에너지 효율 증대
■ 동선계획
관리자 동선과 이용자 동선 분리
EV 및 계단실 수직동선 중앙집중형 배치
돌봄시설 층은 외부와 분리된 안전 동선
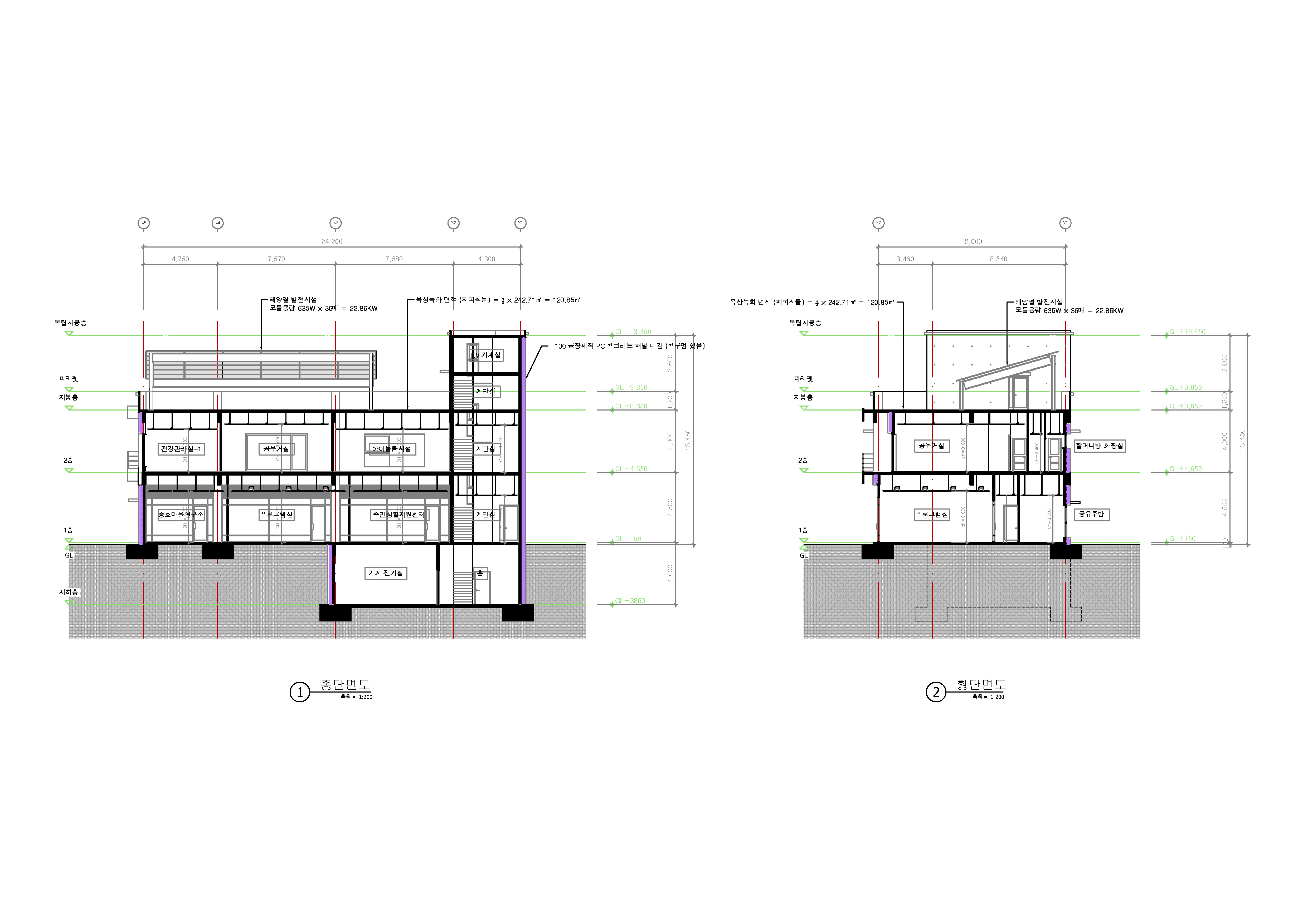
■ 입면 및 조형계획
과도한 장식을 배제한 절제된 콘크리트 매스로 네오부르탈리즘 구현
수평 캐노피 강조하여 차양 효과와 더불어 건축적 요소로 활용
전면부는 투명성, 측 · 후면부는 단단한 매스로 구성하여 공공성과 안정성 동시 확보
■ 구조계획
향후 증축 및 실 사용의 가변성을 고려하여 철근콘크리트 라멘조 채택
단순한 구조와 그리드 적용, 건설비 절감에 기여
공장제작 PC 콘크리트패널(콘구멍 있음) 도입, 설치 및 외벽 유지보수 비용 절감
■ 핵심 메시지
본 계획은 " 마을을 담는 생활 플랫폼 "을 목표로
단순하지만 정직한 파사드로 친근감과 강인함을 나타내고
과도한 형태가 아닌 지속 가능하고 유지관리가 효율적인 공공건축을 제안 함









이경용 건축사사무소
3등작_이경용 건축사사무소 (https://www.gyongle.com)
대표건축가 이경용
대지면적 569㎡
연면적 526.48㎡
건축면적 267.62㎡
건폐율 47.03%
용적률 92.52%
최고높이 13.75m
층수 지하1층, 지상2층
구조 철근콘크리트 라멘조
외부마감 콘구멍 노출콘크리트 마감
조경면적 182.79㎡ 개방형 광장 중심조경 및 옥상녹화
주요시설 돌봄영역 · 살림영역 · 문화영역
주차대수 3대
에너지계획 외단열 · 고기밀 창호 · 태양광 발전시설
대표건축가 이경용
디자인팀 김영림
발주처 해남군
'Plans' 카테고리의 다른 글
| 경상북도 국민안전체험관건립_ 5등작/ (주)명가 건축사사무소 (0) | 2026.04.06 |
|---|---|
| 백운면 농촌중심지 활성화사업 기본 및 실시설계용역_ 당선작/ (주)에스지파트너스 건축사사무소 (0) | 2026.03.30 |
| 경남 남해경찰수련원 신설 신축사업 설계 용역_ 4등작/ 건축사사무소 하이어 (0) | 2026.03.27 |
| (가칭)서울강율초등학교 신설사업 설계공모 용역_ 5등작/ (주)호가건축사사무소 (0) | 2026.03.27 |
| 수석농공단지 청년문화센터 건립사업 설계공모_ 당선작/ (주)내일건축사사무소 (0) | 2026.03.27 |
마실와이드 | 등록번호 : 서울, 아03630 | 등록일자 : 2015년 03월 11일 | 마실와이드 | 발행ㆍ편집인 : 김명규 | 청소년보호책임자 : 최지희 | 발행소 : 서울시 마포구 월드컵로8길 45-8 1층 | 발행일자 : 매일



