
BARN & PAPA
경기도, 평택의 생산녹지지역에 자리한 BARN & PAPA는 다가구주택과 근린생활시설(일반음식점)을 결합한 복합 건물이다. 한우 농장을 운영하는 아버지와 암소 한우 요리 전문점을 운영하는 아들이 함께 만든 공간으로, 건물명 역시 그 관계에서 비롯되었다.
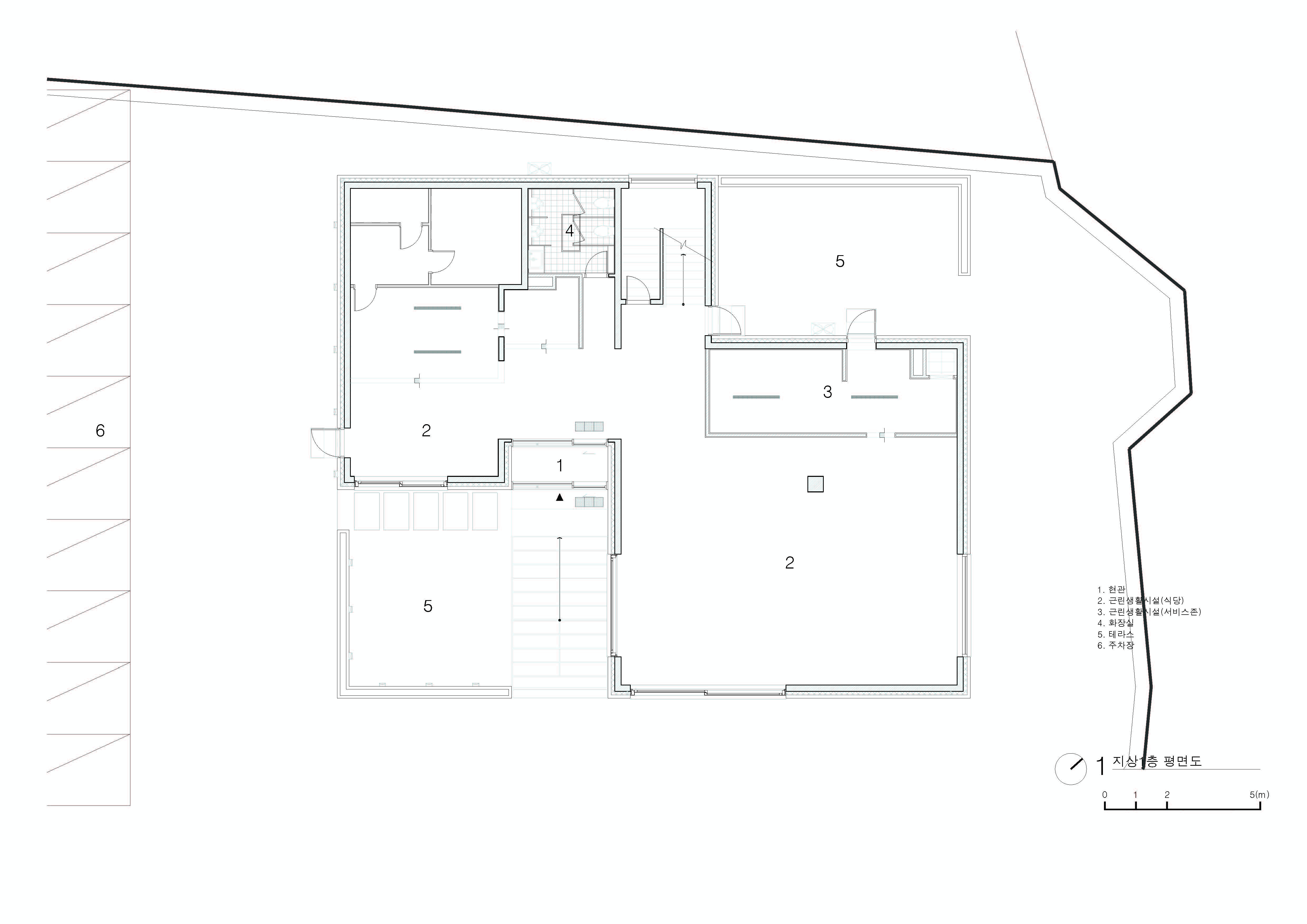
프로그램은 명확하다. 1층과 2층은 일반음식점으로 구성되고, 3층에는 두 세대를 위한 거주 공간이 배치된다. 일과 생활이 수직적으로 겹쳐지며, 가족의 서사가 건물 전체를 관통한다.
형태는 두 개의 입방체를 교차시키는 방식으로 설정되었다. 이 교차로 인해 자연스럽게 생성된 외부 공간은 기능적으로 구분된다. 전면부는 주 진입을 위한 전이 공간으로 작동하며 방문자의 동선을 정돈한다. 반면 후면부는 설비와 지원 공간으로 계획되어 실질적인 운영을 뒷받침한다. 단순한 매스 조합이 공간의 질서를 만든다.
내부는 노출콘크리트가 주된 벽체를 형성한다. 다소 차갑게 느껴질 수 있는 콘크리트의 시각적 온도를 완화하기 위해, 칸막이 벽에는 합판 위 오일스테인을 마감재로 사용했다. 거친 재료와 따뜻한 목질 마감이 대비를 이루며 균형을 만든다. 구조적 정직함과 감성적 보완이 동시에 읽힌다.
이 프로젝트는 단순히 음식점을 수용하는 건물이 아니다. 농장에서 식탁까지 이어지는 시간을 공간으로 번역한 결과물에 가깝다. 방문객이 이곳에서 경험하는 것은 음식만이 아니라, 아버지와 아들이 공유하는 삶의 태도이다. 공간은 그 정신을 담는 그릇으로 기능한다.
BARN & PAPA는 가족의 노동과 기억을 구조로 드러낸 건축이다. 교차하는 두 매스 사이에서, 생산과 소비, 일과 주거, 세대와 세대가 하나의 건물 안에서 맞물린다.


































건축가 (주)엘케이에스에이 건축사사무소(LEE KEUN SIK ARCHITECTS)
위치 대한민국, 경기도, 평택시
용도 근린생활시설, 다가구주택
대지면적 1,101.00㎡
건축면적 218.15㎡
연면적 645.33㎡
규모 지상 3층
건폐율 19.81%
용적률 58.61%
설계기간 2017.07 – 2018.04
시공기간 2018.05 – 2019.03
대표건축가 이근식
구조엔지니어 SDM|구조
기계엔지니어 주신MEC
소방엔지니어 주신MEC
시공 경현종합건설
발주자 김지성
사진작가 ㈜엘케이에스에이 건축사사무소
'Architecture Project > Single Family' 카테고리의 다른 글
| 꽃의 움직임을 건축으로 번역한 집 / 산드라 미카엘라 카시냐 아틀리에 (0) | 2026.03.20 |
|---|---|
| 돌을 들어 올린 집, Casas Piedra Suspendida / 폴 드라기세비치 – 아르크디폴 (0) | 2026.03.18 |
| 나무와 벽이 만든 중심의 공간 / 셋 아르크 (0) | 2026.03.18 |
| 경사 위에 얹은 두 개의 수평선 / 엘투씨 아르키텍투라 (0) | 2026.03.16 |
| 시간과 풍경을 포획하는 삼각의 장치, 카사 코스모스 / 크리스티안 난세르 (0) | 2026.03.16 |
마실와이드 | 등록번호 : 서울, 아03630 | 등록일자 : 2015년 03월 11일 | 마실와이드 | 발행ㆍ편집인 : 김명규 | 청소년보호책임자 : 최지희 | 발행소 : 서울시 마포구 월드컵로8길 45-8 1층 | 발행일자 : 매일



